Перейти к содержанию
Форумы о ремонте и строительстве

Подключение нового санузла к старому

Оценить эту тему:


Рекомендуемые сообщения

Опубликовано (изменено)

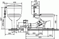
Есть старый санузел (планировка и разводка труб нарисованы на схеме). Водопровод - сталь, канализация - чугун (стояк, отвод от стояка, подвод к унитазу) и пластик (подводы к ванной, раковине, умывальнику). Будет сделан еще один санузел, и от него нужно провести водопроводные и канализационную трубы (канализационная будет напорной - от сололифта или сфа). Подскажите, пожалуйста, наиболее грамотный и наименее трудоемкий способ врезаться в существующие трубы.Сам вижу такие варианты по канализации:- Выломать 2 чугунных колена (подвод к унитазу) и вместо них поставить разветвление (тройник). Но тогда нужно поставить после унитаза обратный клапан, а места для него уже нет.- В канализационном стояке на высоте около 1 метра от пола есть ревизия, но можно ли туда завести трубу?- Врезаться в стояк ниже существующего отвода. Имхо, слишком сложный вариант.По водопроводу вариантов два:- Поставить тройники после запорных кранов (на схеме они слева).- Поставить тройники на тупиковых трубах, идущих в сторону нового санузла (на схеме они справа). Но запорных кранов на них нет, есть только колена 90*. Запорные краны в подвале дома есть, но они "не держат". Можно ли прикрутить (без отключения воды) вместо колен краны?

post-28572-1271622192_thumb.gif

post-28572-1271622762_thumb.gif

Изменено пользователем Ослик

Давайте начнём с Законодательства о перепланировке , а уже потом будем решать технические вопросы. Итак:

Не допускается размещение санузла (туалета, ванной или душевой) непосредственно над жилыми комнатами и кухнями. Возможен только один вариант - устройство санузла в верхнем уровне над кухней в двухуровневых квартирах(п. 9.22 СНиП 31-01-2003 "Здания жилые многоквартирные").

6. Не допускается устройство непосредственного входа из спальни и кухни в санузел (ванную комнату) во всех квартирах, кроме элитных. Исключение - наличие другого помещения, оборудованного унитазом, с входом в него из коридора или холла (п. 4.13 МГСН 3.01-01).

Ограничений по размещению других "влажных зон" - кухонь и постирочных - нет.

Таким образом, располагать кухню можно в любом месте квартиры, за исключением площади под санузлами соседей сверху (при условии соблюдения норм освещенности и вентиляции). Расширение и перенос санузлов возможны только в пределах прилегающих вспомогательных помещений: коридоров, холлов, прихожих, кладовых и т. д. На месте комнат и кухонь их устраивать не разрешается.

(изменено)

Tehnik-san, это первый этаж и нет под санузлами ни жилых комнат, ни кухонь, ничего нет. Полная свобода для смелых технических решений.Прилегающим к первому санузлу второй сделал бы с радостью , но увы, ничего не получается.

Изменено пользователем Ослик

...это первый этаж и нет под санузлами ни жилых комнат, ни кухонь, ничего нет. Полная свобода для смелых технических решений.

ужЕ теплее ))) двигаемся дальше : при монтаже, никогда не возникает проблем с водой, всегда проблемы с канализацией - поэтому есть идея - отказаться от насоса принудительного канализования,назовём его НПК , и сделать самотёчную трассу слива со второго С/У по потолку подвала. Это будет более надёжное решение в плане долговечности и удобства повседневной эксплуатации, насосы для квартиры очень шумные и ночью придётся бегать в другой с/у . Они так же проблемные в эксплуатации, требуют постоянного наличия эл-ва, профилактических работ и трассу слива с насоса здесь придётся бросать по потолку, т.к. по полу или стенам мешает дверной проём... да и фэн-шуй не приветствует пролетание продуктов жизнедеятельности у себя же над головой :) На фото насос SFA SANIBEST с нижним расположением измельчителя

post-3123-1271631676_thumb.jpg

post-3123-1271633859_thumb.jpg

Заманчивая идея. Но вижу следующие проблемы:- придется бурить плиту перекрытия (бетон 220 мм) и сверлить чугунный стояк,- непонятно, как и с кем согласовывать прокладывание трубы в подвале,- вместо одной трассы (водопровод+канализация) придется делать 2 (в квартире - водопровод, в подвале - канализация).НПК сам не хочу очень, но другого варианта не вижу пока - не ставить же в конце концов кабинку биотуалета). Трассу от НПК можно провести по полу, т.к. пол в коридоре - доска по лагам на высоте 300 мм от перекрытия (в санузле №1 - стяжка 200 мм).А может обрезать покороче торчащий из пола чугунный тройник и идти к нему не 110 трубой, а какой-нибудь менее толстой (тогда, может, уместится она под деревянным полом в коридоре). Можно так делать?На рисунке изобразил полы и высоты.

post-28572-1271710623_thumb.gif

Чугунная 100мм трасса под лагами не пройдёт и уменьшить её диаметр нельзя (т.к. наличие WC) - надо в лагах делать отверстия для неё ,а от этого нарушится прочность всей конструкции пола. НПК со своей сливной трассой так же имеет свои особенности. Следует ОТ насоса поднимать трассу минимум на метр и потом вести с уклоном к стояку(прочтите мануал по монтажу НПК ) http://www.sfa.ru/pdf/install/SB.pdf

и как вы себе это представляете, есть варианты ? я лично их здесь не вижу, кроме как на потолок. Поэтому надо пригласить местного санту, он может и подскажет как врезаться в подвале в чугунный стояк, так же можете предложить ему сделать врезку в подвале в основной чугунный стояк тройником от безраструбной чугунины http://www.sml-pipe.ru/...embly/rapid/

(изменено)

Прочитал мануал, что-то мне совсем расхотелось ставить НПК. Проще поднять уровень деревянного пола сантиметров на 10-15. Проложить под ним трубы (безнапорные) - не проблема. Подключить планирую к той трубе, которая идет в сторону умывальника. Вот только диаметр ее вроде 50 (точнее сложно определить - ее замазали штукатуркой). 50й трубой можно сделать канализацию от унитаза? если нет, то как увеличить диаметр в том месте, которое на рисунке обведено красным?ПС. местный жековский санта - столетний проспиртованный таджик, не знает ни сантехники, ни русского языка. вызывал его как-то, в итоге выгнал и все делал сам.

post-28572-1271794894_thumb.gif

Изменено пользователем Ослик

Надо вытащить изогнутый отвод ОТ вертикального стояка и сделать переход в самой крестовине с чугуна на пластик с нужным в дальнейшем и диаметром и направлением . См. схему соединения на фото

post-3123-1271795753_thumb.gif

Т.е. придется демонтировать унитаз с бачком, разламывать перегородку между санузлом и нишей стояка, вытаскивать из стояка тройник 100/100/50, вставлять тройник 100/100/100, и все собирать в обратном порядке? (((А сколько такая работа займет по времени у опытного сантехника и во сколько денег ориентировочно обойдется (в Мск)?

Придется демонтировать унитаз с бачком, разламывать перегородку между санузлом и нишей стояка, вытаскивать из стояка тройник 100/100/50, вставлять тройник 100/100/100, и все собирать в обратном порядке . Если чугунный стык зачеканен цементом- тогда день работы,если же серой - то неизвестно,как пойдёт. Опытный за такую работу врядли возмёться,овчинка выделки не стОит...если только у себя дома делать,тогда можно

Для публикации сообщений создайте учётную запись или авторизуйтесь

Вы должны быть зарегистрированным пользователем, чтобы оставить комментарий

Создать учетную запись

Зарегистрируйтесь в нашем сообществе.

Зарегистрироваться

Войти

Уже есть аккаунт? Войти в систему.

Войти

Или войти с помощью одного из сервисов



  • Наши рекомендации

    • Люк для кошек своими руками
      Разумеется давно придуманы и продаются специальные лючки для кошек, которые можно врезать в дверь, но мы ведь не ищем легких путей . Да и по зоомагазинам я не хожу, а "гугление" показало, что такие люки для кошек стоят относительно не дешево. В то же время под рукой были два "копеечных" сантехнических пластиковых лючка для ГКЛ. Все что оставалось, так это обломать фиксаторы крышек, что бы они открывались в обе стороны, ровно выпилить отверстие в двери, да вклеить симметрично эти лючки.

      То, что получилось видно на фото. Разумеется это не для тех, у кого "дизайнерский ремонт", но для обыкновенной квартиры вполне подходит. Недостатков не замечено, животных и людей всё устраивает .


      Реакцию форумчан на этот люк можно узнать в этой теме https://homemasters.ru/...me/?p=330637

        • Ого
      • 6 ответов
    • Дома из сруба: идеальное сочетание уюта и прочности.
      Строительство собственного дома является важной вехой в жизни любого человека, поскольку оно знаменует собой важное событие. Выбор строительных материалов имеет огромное значение для создания теплого и функционального жилища. На протяжении всей древней истории древесина была распространенным материалом для строительства домов, что отразилось на различных культурах мира.

      • 0 ответов
    • Вторая жизнь дивана: искусство ремонта мягкой мебели своими руками
      В эпоху беспрерывного потребления и стремления к новизне, ремонт старой мягкой мебели своими руками приобретает не просто практическое, но и глубоко философское значение. Это действие как знак уважения к труду мастеров, которые вложили свое мастерство в создание диванов, кресел и пуфов, и как воплощение идеи устойчивого потребления. С каждым возвращенным к жизни предметом мебели, мы не только сохраняем историю и уникальность каждого изделия, но и противостоим бездумному обновлению интерьера за счет экологии и рационального использования ресурсов.

        • Нравится
      • 0 ответов
    • Кажись всё или строительный пылесос с тройной мультициклонной ступенью очистки
      Кажись всё или строительный пылесос с тройной мультициклонной ступенью очистки

        • Нравится
      • 16 ответов
    • Как построить теплый дом, не тратя лишних денег
      Строительство гостевого дома решил выделить в отдельную тему, так будет меньше путаницы.


        • Спасибо
        • Нравится
      • 256 ответов
    • Газовые котлы: эффективное, экономичное и экологичное решение для отопления вашего дома
      В современном мире, где комфорт и устойчивость стали ключевыми аспектами повседневной жизни, выбор правильного источника отопления дома становится особенно актуальным. Газовые котлы, сочетая в себе преимущества эффективности, экономичности и экологичности, представляют собой одно из наиболее популярных решений для обеспечения комфортной температуры в жилых и коммерческих помещениях.

      • 0 ответов
    • Аккумуляторные пилы  SCW и  SCM  22-A
      После того как провёл тесты, приступил к самому главному. Поменять диски местами, и проверить, как инструмент на это отреагирует, ведь они внешнее и походу внутренне практически одинаковые, пила по дереву конечно более навороченее, есть настройки угла наклона и можно на шину посадить через адаптер.

      • 4 ответа
    • Подходы к ремонту старых домов в России
      В России сотни тысяч старых домов, многие из которых являются не только свидетельством исторического наследия, но и отражением уникальной культуры и традиций страны. Эти дома, будь то деревянные избы или старинные каменные постройки, сохраняют в себе дух времени и рассказывают историю поколений.

      • 0 ответов
×
×
  • Создать...

Важная информация

Мы разместили cookie-файлы на ваше устройство, чтобы помочь сделать этот сайт лучше. Вы можете изменить свои настройки cookie-файлов, или продолжить без изменения настроек.