Перейти к содержанию
Форумы о ремонте и строительстве

Перепланировка 1-ком. Хрущёвки.

Оценить эту тему:


Рекомендуемые сообщения

lightwall

А может дверь всё таки нужна, это я к тому, что пришёл кто-то присели на кухне поболтать.

Дверь прикрыл и как бы меньше шума. А дверь планирую раздвижную. В основном она всегда будет открытой,

то есть задвинутой между двумя шкафами. А понадобилось - выдвинул и закрыл комнату.

post-65265-1304093411_thumb.png

Так яж говорю дверь в кухню обязательно нужна ,кухня стала большой,гости влезут,просто нарисовать не смог :) И кухню я расширил за счет коридора.Хотя в таком варианте разждвижная дверь не нужна ,получается 2 двери в туалет,зачем

post-50314-1304093882_thumb.jpg

Ну вот так?post-65265-1304095198_thumb.pngТак может всё таки объединять коридор с кухней, чем коридор с комнатой?

Лелька спасибо, учёл Ваши замечания и советы. Решил спать на диване,

а ребёнку выделить свою территорию. Зелёным обозначил почти 6 кв.м.

Пока хватит, а в недалеком (надеюсь) будущем планируем купить другое жилье.

post-65265-1304088787_thumb.pngpost-65265-1304088799_thumb.png

Ну и правильно :D А дверь все-таки поставьте, они хоть и спят при любом шуме, но вам спокойнее будет :)

можно по разному ,главное плошадь коридора уменьшить.И кроватку пока маленький ребенок лучше в уголок ,а не на против двери-сквозняки.Задача так же была увеличить длину стен в кухне (около холодильника) ,можно и телек повесить.Если обьединить кухну и коридор ,то запахи будут повсюду (в коридоре,на лестничной клетки),лучше сразу изолировать источник ,чем потом бороться с последствиями.Да ,диван в кухне я увеличил.

можно по разному ,главное плошадь коридора уменьшить.И кроватку пока маленький ребенок лучше в уголок ,а не на против двери-сквозняки.Задача так же была увеличить длину стен в кухне (около холодильника) ,можно и телек повесить.

Это правда, кроватку лучше в угол. Было бы неплохо еще и шкафом отгородить, но это к Алефу :)

но это к Алефу :)

вот послала так посла-а-ала ! :D У меня время свободное вообще в минус ушло,поэтому и сижу,молчу в тряпочку,ну и плана с размерами не хватает для серьёзного разговора.

вот послала так посла-а-ала ! :D У меня время свободное вообще в минус ушло,поэтому и сижу,молчу в тряпочку,ну и плана с размерами не хватает для серьёзного разговора.

А Пейсах уже закончился? :D Ну извини, когда речь о дитях заходит, я даже своей комнатой жертвую :D

закончился Песах,закончился....Дети -это конечно наше всё,тут не поспоришь...

закончился Песах,закончился....Дети -это конечно наше всё,тут не поспоришь...

А че так быстро? :unsure:

ineTpyxa, давай быстрее размеры :D

концептуально можно и без размеров,пока ,когда варианты закончатся ,тогда миллиметры начнуться. :D

ineTpyxa, давай быстрее размеры :D

Так, спокойней, тут у нас на Alef-а очередь. :D

концептуально можно и без размеров,пока ,когда варианты закончатся ,тогда миллиметры начнуться. :D

а,ну если просто поговорить...... :)

Так, спокойней, тут у нас на Alef-а очередь. :D

и ведь возразить нечего даже... :D

ребяты,"намусорили" мы в этой теме достаточно :rolleyes: кому обещано-получат в ближайшее время,больше пока никому ничего не буду обещать...

а,ну если просто поговорить...... :)

Но и порисовать ,вся перестановка была выполнена автором поста без указания размеров,да и стенки он двигал тоже :)

да и стенки он двигал тоже :)

А кстати да, ineTpyxa, стенка между кухней и комнатой из чего? Можно двигать?

вся перестановка была выполнена автором поста без указания размеров,да и стенки он двигал тоже :)

и что,автор доволен "передвижками-перестановками" ? Начало было смелое ,а дальше что?...
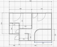
(изменено)

Вот размеры:

post-65265-1304104360_thumb.png

Без мебели:

post-65265-1304104766_thumb.png

А кстати да, ineTpyxa, стенка между кухней и комнатой из чего? Можно двигать?

Двигать можно всё, несущих стен внутри нет. Изменено пользователем ineTpyxa

Входные шкафы сделайте четь короче поширине ,а то проход маловат :) на втором чертеже почти нормально.

Для публикации сообщений создайте учётную запись или авторизуйтесь

Вы должны быть зарегистрированным пользователем, чтобы оставить комментарий

Создать учетную запись

Зарегистрируйтесь в нашем сообществе.

Зарегистрироваться

Войти

Уже есть аккаунт? Войти в систему.

Войти

Или войти с помощью одного из сервисов



  • Наши рекомендации

    • Кажись всё или строительный пылесос с тройной мультициклонной ступенью очистки
      Кажись всё или строительный пылесос с тройной мультициклонной ступенью очистки

        • Нравится
      • 16 ответов
    • Аккумуляторные пилы  SCW и  SCM  22-A
      После того как провёл тесты, приступил к самому главному. Поменять диски местами, и проверить, как инструмент на это отреагирует, ведь они внешнее и походу внутренне практически одинаковые, пила по дереву конечно более навороченее, есть настройки угла наклона и можно на шину посадить через адаптер.

      • 4 ответа
    • Люк для кошек своими руками
      Разумеется давно придуманы и продаются специальные лючки для кошек, которые можно врезать в дверь, но мы ведь не ищем легких путей . Да и по зоомагазинам я не хожу, а "гугление" показало, что такие люки для кошек стоят относительно не дешево. В то же время под рукой были два "копеечных" сантехнических пластиковых лючка для ГКЛ. Все что оставалось, так это обломать фиксаторы крышек, что бы они открывались в обе стороны, ровно выпилить отверстие в двери, да вклеить симметрично эти лючки.

      То, что получилось видно на фото. Разумеется это не для тех, у кого "дизайнерский ремонт", но для обыкновенной квартиры вполне подходит. Недостатков не замечено, животных и людей всё устраивает .


      Реакцию форумчан на этот люк можно узнать в этой теме https://homemasters.ru/...me/?p=330637

        • Ого
      • 6 ответов
    • Как построить теплый дом, не тратя лишних денег
      Строительство гостевого дома решил выделить в отдельную тему, так будет меньше путаницы.


        • Спасибо
        • Нравится
      • 259 ответов
    • Подходы к ремонту старых домов в России
      В России сотни тысяч старых домов, многие из которых являются не только свидетельством исторического наследия, но и отражением уникальной культуры и традиций страны. Эти дома, будь то деревянные избы или старинные каменные постройки, сохраняют в себе дух времени и рассказывают историю поколений.

      • 0 ответов
    • Дома из сруба: идеальное сочетание уюта и прочности.
      Строительство собственного дома является важной вехой в жизни любого человека, поскольку оно знаменует собой важное событие. Выбор строительных материалов имеет огромное значение для создания теплого и функционального жилища. На протяжении всей древней истории древесина была распространенным материалом для строительства домов, что отразилось на различных культурах мира.

      • 0 ответов
    • Вторая жизнь дивана: искусство ремонта мягкой мебели своими руками
      В эпоху беспрерывного потребления и стремления к новизне, ремонт старой мягкой мебели своими руками приобретает не просто практическое, но и глубоко философское значение. Это действие как знак уважения к труду мастеров, которые вложили свое мастерство в создание диванов, кресел и пуфов, и как воплощение идеи устойчивого потребления. С каждым возвращенным к жизни предметом мебели, мы не только сохраняем историю и уникальность каждого изделия, но и противостоим бездумному обновлению интерьера за счет экологии и рационального использования ресурсов.

        • Нравится
      • 0 ответов
    • Газовые котлы: эффективное, экономичное и экологичное решение для отопления вашего дома
      В современном мире, где комфорт и устойчивость стали ключевыми аспектами повседневной жизни, выбор правильного источника отопления дома становится особенно актуальным. Газовые котлы, сочетая в себе преимущества эффективности, экономичности и экологичности, представляют собой одно из наиболее популярных решений для обеспечения комфортной температуры в жилых и коммерческих помещениях.

      • 0 ответов
×
×
  • Создать...

Важная информация

Мы разместили cookie-файлы на ваше устройство, чтобы помочь сделать этот сайт лучше. Вы можете изменить свои настройки cookie-файлов, или продолжить без изменения настроек.