Перейти к содержанию
Форумы о ремонте и строительстве

Цветовое решение для кухни-гостиной

Оценить эту тему:


Рекомендуемые сообщения

Опубликовано

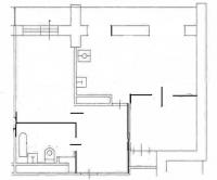
Друзья, добрый вечер!Обращаюсь за помощью. Нужно определиться с цветовым решением стен и пола для кухни - гостиной (объединили кухню и часть комнаты + лоджия) Высота 265. img_411203732.pdfВ наличии уже выложенный фартук post-81655-1334152612_thumb.jpgЧасть пола на балконе будет плитка (вынужденный момент, не хотим теплый пол под паркет, поэтому решили плитку как в коридоре) azulev_ceramica/cuenca/И главное, хотим полосатые обои. Типа таких. Или любые но с красной полоской post-81655-1334153165_thumb.jpgМебель будет белая с оттенком. Кухня икеевская Лидинго. post-81655-1334153203_thumb.jpg. У противоположной стены два шкафа из икеи такого же цвета.Вопрос: не будет ли очень много полоски, может быть разбавить однотонными обоями, или из-за того что широких стен нет будет ок?! И какого цвета лучше сделать паркетную доску?Надеюсь. доступно всё описала и заранее спасибо! :)

очень интересная задумка.А как с остальными деталями? Окна,двери,мягкая мебель,стол,шторы? Вы же понимаете что случайный набор мебели может испортить такую замечательную идею ...По стенам - действительно ,много проёмов,вполне можно и всю комнату в полоску. Пол скорее светлый натуральных оттенков дерева или может даже выбеленный...

(изменено)

Alef, спасибо за отклик!:)

Специально зашла, сделала пару фотографий, чтобы в 3D, так сказать, показать. Сорри за качество, телефон.

post-81655-1334165315_thumb.gif, post-81655-1334165425_thumb.gif

Мебель думаю подбирать после решения с обоями. Но либо белые стулья из той же Икеи, массив. Плюс стол овальный раздвигающийся. Либо вся столовая группа цвета, который будет гармонировать со столешницей кухни (предположительно дуб светлый) и полом. Кстати, фотка плитки которая будет граничить с паркетной доской. post-81655-1334165762_thumb.jpg

Изначально планировали единый пол -хотелось темный, дуб грей, например, причем не сплошной, а с "окантовочкой" каждой доски. Из-за плитки концепция меняется .

И фальшкамин со свечами под телевизор - начиталась, что плохо в одном месте - заменяем на полку. :)

Диван также родом из Икеи - подходит по размеру, будет стоять вдоль стены которая 150 см (посередине комнаты). Цвет можно выбрать. post-81655-1334165944_thumb.jpg

Окна - стеклопакеты, уже стоят. Деревянные оч дорого получалось, поэтому - пластиковые. На окнах, скорее всего, только легкий тюль, поскольку около 6 метров и края скрыты стенами.

Двери будут только в соседнюю комнату - раздвижные стеклянные (отделили комнату, она без окон). Вход из коридора - арка.

Вот пока такие мысли! Может, есть идеи интересные?! :))

Изменено пользователем Poloska

простите, а можно посмотреть проект вашей перепланировки - что было и что стало? сдается изначально планировка очень уж на мою похожа

:up: все таки не такая, у меня одна комната и в таких как моя обычно тоже так вот спальню без окон отгораживают

Для публикации сообщений создайте учётную запись или авторизуйтесь

Вы должны быть зарегистрированным пользователем, чтобы оставить комментарий

Создать учетную запись

Зарегистрируйтесь в нашем сообществе.

Зарегистрироваться

Войти

Уже есть аккаунт? Войти в систему.

Войти

Или войти с помощью одного из сервисов



  • Наши рекомендации

    • Вторая жизнь дивана: искусство ремонта мягкой мебели своими руками
      В эпоху беспрерывного потребления и стремления к новизне, ремонт старой мягкой мебели своими руками приобретает не просто практическое, но и глубоко философское значение. Это действие как знак уважения к труду мастеров, которые вложили свое мастерство в создание диванов, кресел и пуфов, и как воплощение идеи устойчивого потребления. С каждым возвращенным к жизни предметом мебели, мы не только сохраняем историю и уникальность каждого изделия, но и противостоим бездумному обновлению интерьера за счет экологии и рационального использования ресурсов.

        • Нравится
      • 0 ответов
    • Как построить теплый дом, не тратя лишних денег
      Строительство гостевого дома решил выделить в отдельную тему, так будет меньше путаницы.


        • Спасибо
        • Нравится
      • 239 ответов
    • Аккумуляторные пилы  SCW и  SCM  22-A
      После того как провёл тесты, приступил к самому главному. Поменять диски местами, и проверить, как инструмент на это отреагирует, ведь они внешнее и походу внутренне практически одинаковые, пила по дереву конечно более навороченее, есть настройки угла наклона и можно на шину посадить через адаптер.

      • 4 ответа
    • Газовые котлы: эффективное, экономичное и экологичное решение для отопления вашего дома
      В современном мире, где комфорт и устойчивость стали ключевыми аспектами повседневной жизни, выбор правильного источника отопления дома становится особенно актуальным. Газовые котлы, сочетая в себе преимущества эффективности, экономичности и экологичности, представляют собой одно из наиболее популярных решений для обеспечения комфортной температуры в жилых и коммерческих помещениях.

      • 0 ответов
    • Люк для кошек своими руками
      Разумеется давно придуманы и продаются специальные лючки для кошек, которые можно врезать в дверь, но мы ведь не ищем легких путей . Да и по зоомагазинам я не хожу, а "гугление" показало, что такие люки для кошек стоят относительно не дешево. В то же время под рукой были два "копеечных" сантехнических пластиковых лючка для ГКЛ. Все что оставалось, так это обломать фиксаторы крышек, что бы они открывались в обе стороны, ровно выпилить отверстие в двери, да вклеить симметрично эти лючки.

      То, что получилось видно на фото. Разумеется это не для тех, у кого "дизайнерский ремонт", но для обыкновенной квартиры вполне подходит. Недостатков не замечено, животных и людей всё устраивает .


      Реакцию форумчан на этот люк можно узнать в этой теме https://homemasters.ru/...me/?p=330637

        • Ого
      • 6 ответов
    • Подходы к ремонту старых домов в России
      В России сотни тысяч старых домов, многие из которых являются не только свидетельством исторического наследия, но и отражением уникальной культуры и традиций страны. Эти дома, будь то деревянные избы или старинные каменные постройки, сохраняют в себе дух времени и рассказывают историю поколений.

      • 0 ответов
    • Дома из сруба: идеальное сочетание уюта и прочности.
      Строительство собственного дома является важной вехой в жизни любого человека, поскольку оно знаменует собой важное событие. Выбор строительных материалов имеет огромное значение для создания теплого и функционального жилища. На протяжении всей древней истории древесина была распространенным материалом для строительства домов, что отразилось на различных культурах мира.

      • 0 ответов
    • Кажись всё или строительный пылесос с тройной мультициклонной ступенью очистки
      Кажись всё или строительный пылесос с тройной мультициклонной ступенью очистки

        • Нравится
      • 16 ответов
×
×
  • Создать...

Важная информация

Мы разместили cookie-файлы на ваше устройство, чтобы помочь сделать этот сайт лучше. Вы можете изменить свои настройки cookie-файлов, или продолжить без изменения настроек.