Перейти к содержанию
Форумы о ремонте и строительстве

Коллеги помогите оценить работу по монтажу направляющих

Оценить эту тему:


slavrent

Рекомендуемые сообщения

Опубликовано

Помогите разобраться не халтура ли это?Заказал выровнять потолок с помощью ГКЛ. Работяги заявили что имеют 15 летний опыт работы с гипроком. Прокинули 4 направляющих через 60 см и одну через 30 (типа там будет обрезок гипрока - 75 см). Я завел разговор о поперечных направляющих которые крепятся к основным на "крабы", они сказали что их нужно делать только в местах стыков листов. Везде в технических описаниях от производителей реккомендовано по всей площади. Так же смутил несколько небрежный монтаж, прямые подвесы кое где не под углом 90% (они их выгнули и сказали что на качестве потолка не скажется и висеть все будет нормально и ровно?!), направляющие прикреплены к подвесам только одним саморезом с каждой стороны, иногда тоже криво, повесы к потолку нейлоновыми дюбелями вместо анкер-клиньев. Фото приложены.

post-4073-1173962192.jpgpost-4073-1173962206.jpg

Просьба проккоментировать. С уважением,Сергей

Судя по фото, у Вас длина комнаты больше 3-х метров, значит поперечные стыки ГКЛ будут. В местах стыков ОБЯЗАТЕЛЬНО должен быть профиль. По всей площади делать поперечные направляющие - не обязательно (я обычно не делаю), здесь с работягами согласен.Если у Вас ГКЛ 9,5 мм - то направляющие обязательно делайте через 40 см, иначе со временем прогнется потолок. ГКЛ 12,5мм можно крепить и через 60 см.Направляющие к прямым подвесам крепить одним саморезом с каждой стороны это норма. Крепить сам подвес надо все таки тремя саморезами (один посередине, два в ушки), тогда они сидят намертво. Двумя саморезами (в уши) тоже делал раньше. Но при этом всегда на подвес после закрепления давал нагрузку (сильно тянул вниз, чтобы в дальнейшем он не провисал под тяжестью ГКЛ). Здесь кстати об этом неоднократно писали.Про нейлоновые дюбели: сам делаю ими, но знаю, что по СНИПам нужны анкера. Никогда в моей жизни потолок не падал из за того что дюбель с закрученным саморезом выскочил из бетона. Анкера - это скорее для пожаробезопасности, чтобы не поплавились и не вытекли, когда, не дай бог, квартира будет полыхать. Но тогда Вам будет пофиг, подвесной потолок все равно не выдержит пожара. Но нейлоновые дюбели хорошо держат в хорошем бетоне, а у Вас на фотке непонятно их чего потолок, может дранка оштукатуренная. Тогда только спец. дюбеля.

Колхозник

Поймите, мастеров куча и каждый делает по-своему.Взять на выбор двух любых мастеров у них окажется своя технология. Я делаю решетку. :P Что касается регламентов. Тут конечно есть нарушения.Такая конструкция потолка возможна, с доп.профилями на стыках листов. 1) Но есть одно но, при таком раскладе во всех регламентах для однослойной обшивки расстояние между профилями не 600 мм, а 400 мм.Это раз.2)Такая конструкция (не решетка, а просто из параллельных профилей, как у Вас) используется только для небольших помещений (до 4 м). У Вас они уложены вдоль комнаты. А там никак не 4 м, а больше (на мой взгляд). Но по сути дела это не так важно, но если дое....ся - то это нарушение :P Т.е. если бы поперек комнаты профили пустить - никаких нареканий. Но тогда наверное резки ГКЛ больше поэтому так и сделали.3) Нет ПП вдоль стен. Т.е. края ГКЛ будут крепиться к ПН. Вот только на эту тему давайте спорить не будем (кто как крепит и т.д.) Многие крепят к ПН и ничего ни трескается. Но это тоже нарушение регламента. :P 4) Ну и косорукость сборки.То что подвес к ПП одним шурупом с каждой стороны. Я креплю двумя, но по регламенту можно и одим.PS Проверьте еще расстояние между подвесамиСмотрите чтобы листы монтировали в разбежку. И саморезов не жалели :lol:

Уф влезу и я, хотя наверное поднадоел уже многим :rolleyes: то Колхозник1 40см или 50см, зависит от расположения листа, далее уже через 120см2 ну да, если сильно дое...ся3 конечно не будем спорить, только это не нарушение регламента (регламенты разные бывают) ;) 4 это и есть главная проблема,от этого и начинаются разговоры типа потолки в трещинах и перегородки прогибаютсядвумя то клопами зачем, чтоб один то сломать нужна нехилая нагрузка :) то ousзачем тремя саморезами подвес крепить, имхо перестраховка, да и натяжку не сделать чтоб на -ушах- провис,а если предположить(так пофантазировать ;) ) если центральный вывалится то на крайних и провиснетто slavrentтут так то всё сказали, вот только это -(они их выгнули и сказали что на качестве потолка не скажется)- смущает что они там выгнулида если смущает насчёт поперечных профилей то попросите чтоб сделали по всей площади, если они 15лет занимаются то даже спорить на эту тему не будут

Подписываемся на тему День за днём, моя работа https://homemasters.ru/...esta-raboty/ и на мой инстарам https://www.instagram.c...gda35remont/

Принимаю заказы на мебель из слэбов

 

Колхозник

to Sano

1 40см или 50см, зависит от расположения листа, далее уже через 120см

Не ну это конечно. Просто у человека явно листы будут укладываться вдоль профилей.Меня смущает, зачем пускать профили вдоль комнаты если можно поперек через 500 мм. А листы тогда также вдоль комнаты, но уже поперек профилей, если уж так резать меньше. Было бы явно прочнее.

двумя то клопами зачем, чтоб один то сломать нужна нехилая нагрузка

Да просто я знатный перестраховщик.

Спасибо всем за ответы.To KGBПрофиль 60х27To КолхозникЯ их тоже спросил почему направляющие было не пустить поперек комнаты на что мне ответили что комната 315 и наращивать их все равно нужно, поэтому и пустили вдоль. В остальных комнатах будет еще второй уровень и на кухне, поэтому убедил их пустить поперек через 50 см благо там меньше 3-х метров. Подвесы тоже через 50см пускать?Последний вопрос что сделать что бы усилить эту конструкцию с направляющими вдоль комнаты. Может местами пустить направяющие поперек и их так же закрепить на подвесы?Спасибо.

(изменено)

У гипрока положенного поперек окна, в случае не очень качественной шпатлевки, видны швы. Поэтому вдоль пускать предпочтительнее, мое мнение. Чтобы усилить эту конструкцию, надо добавить подвесов (в идеале они должны быть через 60 см, на фото не понятно между ними расстояние). Ну и поперечные профили на стыке ГКЛ тоже на подвесах.

Изменено пользователем ous
Колхозник

to ous

Цитата

У гипрока положенного поперек окна, в случае не очень качественной шпатлевки, видны швы. Поэтому вдоль пускать предпочтительнее, мое мнение.

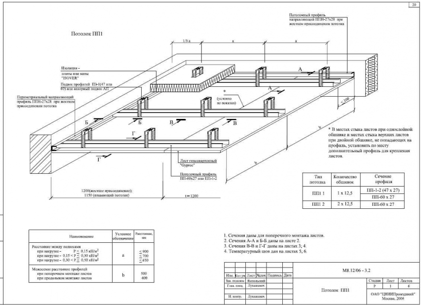
Я предлагал пустить сами профили поперек комнаты. А листы как угодно располагать. Пустить профили через 500 мм поперек комнаты, а листы вдоль комнаты... Ну, да ладно все равно уже каркас ведь сделан :) to slavrentКак ous сказал увеличение числа подвесов увеличит прочность каркаса. Сделайте дополнительно...На всякий случай вот конструкция потолка, который делают у Вас (от "Гипрока"). Вдруг еще вопросы будут.

image.png

  • 2 месяца спустя...

Двумя саморезами (в уши) тоже делал раньше. Но при этом всегда на подвес после закрепления давал нагрузку (сильно тянул вниз, чтобы в дальнейшем он не провисал под тяжестью ГКЛ). Здесь кстати об этом неоднократно писали.Про нейлоновые дюбели: сам делаю ими, но знаю, что по СНИПам нужны анкера.

Подскажите пожалуйста а крепить прямой подвес на один анкер 8х60 по середине это допустимо или лучше двумя дюпелями по краям.

один по середине - это большой плюс к браку :)

Спасибо с этим разобрались. Вопрос в догонку. Делаю двухуровневый потолок, при монтаже второго уровня (считаю от потолка) от стены до перехода на первый уровень 500 мм + 60 мм выступ для скрытой подсветки. Лист ГКЛ будет крепиться к профилю ПП, который соответственно крепиться к ПН (на растояние от стены 500 мм) и возле стены к поперечному ПП, к настенному ПН он не крепится. Так вод нужно ли усиливать конструкцию прямыми подвесами или и так будет нормально? Да чуть не забыл ПП идет с шагом 400 мм.

лучше усилить, конечно каждый профиль это перебор, но на профиля где будут стыки листов лучше -навесить- подвесыа также если есть необходимость то сделайте распорки от борта к плите перекрытия, так борт не будет болтатся при монтаже заодно вертикаль и прямую линию ему задатитев обычной схеме борт как раз держат ПП один конец которых крепиться к борту а второй к ПН (на стене)

Подписываемся на тему День за днём, моя работа https://homemasters.ru/...esta-raboty/ и на мой инстарам https://www.instagram.c...gda35remont/

Принимаю заказы на мебель из слэбов

 

Для публикации сообщений создайте учётную запись или авторизуйтесь

Вы должны быть зарегистрированным пользователем, чтобы оставить комментарий

Создать учетную запись

Зарегистрируйтесь в нашем сообществе.

Зарегистрироваться

Войти

Уже есть аккаунт? Войти в систему.

Войти

Или войти с помощью одного из сервисов



  • Наши рекомендации

    • Люк для кошек своими руками
      Разумеется давно придуманы и продаются специальные лючки для кошек, которые можно врезать в дверь, но мы ведь не ищем легких путей . Да и по зоомагазинам я не хожу, а "гугление" показало, что такие люки для кошек стоят относительно не дешево. В то же время под рукой были два "копеечных" сантехнических пластиковых лючка для ГКЛ. Все что оставалось, так это обломать фиксаторы крышек, что бы они открывались в обе стороны, ровно выпилить отверстие в двери, да вклеить симметрично эти лючки.

      То, что получилось видно на фото. Разумеется это не для тех, у кого "дизайнерский ремонт", но для обыкновенной квартиры вполне подходит. Недостатков не замечено, животных и людей всё устраивает .


      Реакцию форумчан на этот люк можно узнать в этой теме https://homemasters.ru/...me/?p=330637

        • Ого
      • 6 ответов
    • Подходы к ремонту старых домов в России
      В России сотни тысяч старых домов, многие из которых являются не только свидетельством исторического наследия, но и отражением уникальной культуры и традиций страны. Эти дома, будь то деревянные избы или старинные каменные постройки, сохраняют в себе дух времени и рассказывают историю поколений.

      • 0 ответов
    • Аккумуляторные пилы  SCW и  SCM  22-A
      После того как провёл тесты, приступил к самому главному. Поменять диски местами, и проверить, как инструмент на это отреагирует, ведь они внешнее и походу внутренне практически одинаковые, пила по дереву конечно более навороченее, есть настройки угла наклона и можно на шину посадить через адаптер.

      • 4 ответа
    • Дома из сруба: идеальное сочетание уюта и прочности.
      Строительство собственного дома является важной вехой в жизни любого человека, поскольку оно знаменует собой важное событие. Выбор строительных материалов имеет огромное значение для создания теплого и функционального жилища. На протяжении всей древней истории древесина была распространенным материалом для строительства домов, что отразилось на различных культурах мира.

      • 0 ответов
    • Вторая жизнь дивана: искусство ремонта мягкой мебели своими руками
      В эпоху беспрерывного потребления и стремления к новизне, ремонт старой мягкой мебели своими руками приобретает не просто практическое, но и глубоко философское значение. Это действие как знак уважения к труду мастеров, которые вложили свое мастерство в создание диванов, кресел и пуфов, и как воплощение идеи устойчивого потребления. С каждым возвращенным к жизни предметом мебели, мы не только сохраняем историю и уникальность каждого изделия, но и противостоим бездумному обновлению интерьера за счет экологии и рационального использования ресурсов.

        • Нравится
      • 0 ответов
    • Кажись всё или строительный пылесос с тройной мультициклонной ступенью очистки
      Кажись всё или строительный пылесос с тройной мультициклонной ступенью очистки

        • Нравится
      • 16 ответов
    • Газовые котлы: эффективное, экономичное и экологичное решение для отопления вашего дома
      В современном мире, где комфорт и устойчивость стали ключевыми аспектами повседневной жизни, выбор правильного источника отопления дома становится особенно актуальным. Газовые котлы, сочетая в себе преимущества эффективности, экономичности и экологичности, представляют собой одно из наиболее популярных решений для обеспечения комфортной температуры в жилых и коммерческих помещениях.

      • 0 ответов
    • Как построить теплый дом, не тратя лишних денег
      Строительство гостевого дома решил выделить в отдельную тему, так будет меньше путаницы.


        • Спасибо
        • Нравится
      • 255 ответов
×
×
  • Создать...

Важная информация

Мы разместили cookie-файлы на ваше устройство, чтобы помочь сделать этот сайт лучше. Вы можете изменить свои настройки cookie-файлов, или продолжить без изменения настроек.