Перейти к содержанию
Форумы о ремонте и строительстве

Попинайте пожалуйста проект

Оценить эту тему:


Yuri101

Рекомендуемые сообщения

Опубликовано (изменено)

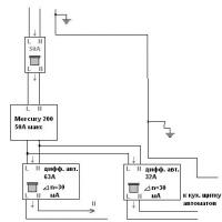
post-5019-1182883669_thumb.jpg

Делаю у себя (дом -новостройка) и для себя. Разводка в щитках, а также сама проводка уже сделаны. Сталкиваюсь первый раз, поэтому немного перемудрил, как то: оставил часть электрооборудования на лестничном щитке(красная рамка) и поставил "последовательно" дополнительный щиток на кухне(синия рамка).

Конечно, если бы делал с начала, то удалил бы всю проводку, которая была (ну или ее часть по необходимости). Щиток был бы один- на кухне. В холле(лестница) был бы АЗС на входе + счетчик Mercury200+ Дифавтомат.

Сейчас АЗСы лестничного щитка(красная рамка) оставлены без изменений, проводка практически тоже, только входная цепь (АЗС на входе + счетчик Mercury200+ Дифавтомат.) модифицирована, то есть сделана как на рисунке.

Добавлены 2 АЗС на стиралку и блок розеток(счетверенный над столешницей стенки)

На кухне щиток(синяя рамка) добавлен, потому что ну никак совесть не позволяла вешать мощные потребители на одну и ту же линию, поэтому включены через АЗС-ы.

Вот теперь сижу и гадаю. Как отработает автоматная схема в процессе эксплуатации. Жду мнений от опытных электриков.

Автомат 50 А на входе посоветовали поставить в магазине. Он 2-х полюсный, такие есть Merlin Gerlin - кстати как они в эксплуатации?

Изменено пользователем KGB

что бы пинать не хватает данных что куда (к примеру зимний сад??? - освещение, отопление, подогрев???) какая разрешённая мощность по вводу?а по замечаниям :1 два узо с одинаковым током срабатывания (30 мА) стоят друг за другом - неселективное включение, тоесть при появлении утечки сработает - любой из них, либо оба - отключив всё!!!) 2 приобретая дифавтомат на 63А - вы заранее выбрасываете на ветер деньги, функция автомата у него работать никогда не будет(по вашей схеме)3 на варочную панель 7кВт как вы указываете (это 28А) стоит автомат 25 Аоб остальном если чего чуть позже :)4 вводной автомат стоит по номиналу равным максимальному току счетчика - но ваш автомат при токе в 55А отключится часов этак через 6-8 что будет с счетчиком лотырея есть конечно шансы на выживание но они 50 на 50 и надо ли это? и проэкты лучше рисовать ещё одним рисунком по плану квартирывот где расположена стиральная машина?, на посудомойку - желательно УЗО на 10 мА5 для чего надо уиспользовать чисто осветительный провод ПУНП на варочную плиту??? почему не ВВГ

Зимний сад - отдельная линия на лоджию. Предполагается только периодическое включение переносного обогревателя 1.2 кВт+ лампы металлогалогеновые ДРИ-3 одна или две штуки по 250 Вт каждая.По ответам пояснения:1 и 2. Догадывался что так не сработает, продавцы насоветовали мать их. :( Девайсы уже куплены :(3.

на варочную панель 7кВт как вы указываете (это 28А) стоит автомат 25 А

С ней пока неопределился, но как вы заметили что 50 А АЗС держать ток может чуть больше. Следовательно я расчитывал то же самое и с этим автоматом4. По первоначальному проекту 40А дифавтомат сразу после счетчика. Перед счетчиком ничего нет. Пока не купил 50А АЗС.Что посоветуете? Надо взять максимум(50А) от стояка4.б Стиралка на другом конце квартиры - отдельный кабель 3х2.55. Там не ПУНП - сорри. Используется и оставлен кабель, который проложили строители под эл плиту. Похож на ПУНП - но более толстая изоляция.Получилось так, что его пришлось укоротить(не помню почему). Наращивал через клеммник 40А проводом ПВС 3х4 2 метра

1и2 включай обе линии после счетчика (не одно через одно как есть)4 я бы поставил на 40А зачем проблемы, а согласование уже было? или переделать в проектевот на лоджию я бы поставил дополнительно узо 10 мА (на любой ток отключения - что дешевле и больше10А) там сыро не помешает а вам спокойнее, если что то есть в ванной (розетки потребители) запитал от него же

А "ничего перед счетчиком" - это нарушение сразу нескольких пунктов по использованию счетчика, правил электроустановок и ПТБ.

вот если можно поподробнее - лень перелистывать и ПУЭ и ПТБ :D не вижу ничего запретного, даже несколько раз ставили в разрез ввода (не в квартирах а оффисных помещениях) что бы не заказывать отключение при монтаже, единственное требование учёта этот автомат поставить в коробочку отдельную которая имеет отверстия под пломбировку
(изменено)

1и2 включай обе линии после счетчика (не одно через одно как есть)

Понял.

С ней пока неопределился, но как вы заметили что 50 А АЗС держать ток может чуть больше. Следовательно я расчитывал то же самое и с этим автоматом

Ничего не понял...
Я имел ввиду, что автомат(Автомат Защиты Сети) на 50А включенный между стояком и счетчиком будет предохранять счетчик, который расчитан на 50А сквозной ток

Потом dimp сказал, что этот автомат может сработать через 5-6 часов при токе 55А. Следовательно велик шанс сгорания счетчика

Конкретно о непонятном: Варочная панель на ~7кВт(пока с ней не определился - х.з. на какую мощность она будет) включена через автомат на 25 А. dimp сказал что ток будет 28 А. Значит автомат должен выдержать

(идею смотри выше "50А авт. против 55А нагрузки")

А 63 на 30 - это действительно дифф или просто узо?

Тоже самое про 32-30 - это дифф или узо?

Приведите полную маркировку с этих устройств.

Сейчас нет данных. Посмотрю завтра

А вообще, чтобы снять нервную дрож - найдите прибор для проверки параметров узо, либо проверьте сами, если знания позволяют и имеется мультиметр.

Просто 30мА - это номинал узо, а на самом деле прибор срабатывает по его уставке, т.е. реальному току утечки для конкретного экземпляра изделия, при превышении которого узо сработает. Узо считается исправным, при уставке равной 0.5-1 номинала, т.е. уставки ваших приборов могут быть в диапазоне от 15мА до 30мА.

Знания есть. Мультиметр и набор резисторов прилагается.

Все таки оставить автомат 50А на входе или нет? Счетчик не сгорит?

Кстати, дайте ссылки если есть на примеры. На всякий случай

Изменено пользователем Yuri101

Гмм... Дык я и говорю про то, что перед счетчиком должен быть автомат или какой другой коммутационный прибор, при помощи которого можно полностью отключить электроустановку от источника.Где ты увидел расходжение?Тебе просто по-подробнее или пунктики? :))) А мне, типа не лень... Ну ладно:

Извиняюсь это я тормознул - кавычек как то не приметил :) и за такую огромную работу тоже (хватилобы и пунктиков) - хоть и говорили об одном и том же :D а со счетчиком по максимуму - соснительно это, они габариты счетчиков ужали последнее время до минимальных размеров, и шунт стоящий в нем будет париться :) - тоже наверное впритык сделали экономят то на всём
(изменено)

Если у тебя потребление будет часто зашкаливать за 50А, то это значит что элементы схемы выбраны неправильно.

Мне казалось, что просто включено больше потребителей, вне зависимости правильности выбора.Кстати, был вопрос по поводу маркировок УЗО. Привожу:1) который на 63А:63А Merlin Gerin11455выключатель дифферинциального токаДОМОВОЙВД63 2П 63А 30мА2) который у меня на 32 А:ЭКФУЗО2-32/30In 32АIдельта n 30мА240/415ВГОСТ Р51326.1-993) тот, что устанавливают строители:ДИФАВТОМАТАД12_УХЛ4~230В 50Гц N14In=40А Iдельта n = 30 мАесть кнопка ТЕСТ и ВОЗВРАТ. А это зачем?Кстати по п. 7.1.64:

Отключающие аппараты для снятия напряжения с расчетных счетчиков, расположенных в квартирах, должны размещаться за пределами квартиры."

Я так понимаю, это чтоб не воровали?Тогда я думаю так оставить...post-5019-1183203231_thumb.jpgТо есть УЗО перекочует в лестничный щиток.Или все таки сделать так - лучше для меня, т.к. могу оставить узо в кухонном щитке(не украдут)post-5019-1183203859_thumb.jpg

На что тебе ссылки и примеры? Типа типовые схемы что ли? Их, вообще-то по интернету не разбрасывают..

Кстати, почему-то действительно не найти. Или это хлеб электриков? :) Изменено пользователем Yuri101
(изменено)

Данная схема работать не будет потому что:1. Применение только одного вводного диф. автомата на 63 А с номинальным отключающим дифференциальным током In = 30 мА (в красной рамке) может привести к его ложным срабатываниям, вызываемым большими токами утечки на вводе в электроустановку квартиры. 2. Диф автомат. установленный в синей рамке на In = 10 мА так же будет ложно срабатывать.Так как посудомойка и духовка относятся к электроприборам с большими токами утечки (до 10мА). По этой причине подключение этих приборов под общее УЗО с номинальным отключающим дифференциальным током 10мА является ошибочным. Кроме того, надо иметь в виду, что значение тока утечки до 10мА относится к новым изделиям, эксплуатируемым в течение гарантируемого срока службы. Со сроком службы, эта величина может быть значительно выше.3. Нет смысла ставить диф. на 32 А с In = 30 мА в красную рамку (что он защищает провода только?) лишние затраты.

Изменено пользователем NoR

Тогда я думаю так оставить...То есть УЗО перекочует в лестничный щиток.

ты вводной автомат и счетчик оставляй на улице :) а узо дома под надзором по первому рисунку(твоему)

Данная схема работать не будет потому что:1. Применение только одного вводного диф. автомата на 63 А с номинальным отключающим дифференциальным током In = 30 мА (в красной рамке) может привести к его ложным срабатываниям, вызываемым большими токами утечки на вводе в электроустановку квартиры. 2. Диф автомат. установленный в синей рамке на In = 10 мА так же будет ложно срабатывать.Так как посудомойка и духовка относятся к электроприборам с большими токами утечки (до 10мА). По этой причине подключение этих приборов под общее УЗО с номинальным отключающим дифференциальным током 10мА является ошибочным. Кроме того, надо иметь в виду, что значение тока утечки до 10мА относится к новым изделиям, эксплуатируемым в течение гарантируемого срока службы. Со сроком службы, эта величина может быть значительно выше.3. Нет смысла ставить диф. на 32 А с In = 30 мА в красную рамку (что он защищает провода только?) лишние затраты.

вот как категорично не будет и усё :) - так ложное срабатывание всегда имеет причину которую очень желательно найти и устранить (если оно не единично ), правильно нет смысла поставить одно узо по входу и каждый раз как оно сработает (ложно или по делу) в потёмках бегать включать :D но люди стараясь экономить сами себя в такое положение вгоняюта по поводу срока службы - да изоляция такая штука (только про год ты загнул) и по 30 лет кабеля и провода стоят (сам крутил их изоляцию) и если она как ты пишешь снизилась до такой степени что ток утечки около 10mA МЕНЯЙ ЕЁ СКОРЕЕ - нормальная изоляция от и больше мегаомма а далее закон ома посчитай ток утечки2 Yuri101а по поводу нерационального использования УЗО которые друг за другом - ты раздели , 32А 30мА повесь отдельно на плиту и по мощности тогда всё проходит

dimpа по поводу срока службы - да изоляция такая штука (только про год ты загнул) и по 30 лет кабеля и провода стоят (сам крутил их изоляцию) и если она как ты пишешь снизилась до такой степени что ток утечки около 10mA МЕНЯЙ ЕЁ СКОРЕЕ - нормальная изоляция от и больше мегаомма а далее закон ома посчитай ток утечки

Изоляция тут не причем. УЗО не контролирует целосность изоляции. Давайте определимся с определениями и как работает УЗО.1. Определения: ток утечки и дифференциальный ток - это ток который протекает во вторичных обмокках дифференциального трансформатора установленным в самом УЗО.2. Суть в следующем: УЗО следит, сколько тока с "фазы" ушло, столько на "ноль" вернуться и должно, если разница между ними более 30мА - дифференциальный или ток утечки - УЗО срабатывает.3. ток в нуле всегда будет меньше. уходит на разные потери. все зависет от электроприбора времени эксплотации, температуры влажности и т.д.4. сложите ток утечки посудомойки и духовки явно будет больне будет больше 10 mA5. Диф. автомат. на 63 А отключится сразу как только включится ком-р в розеточной сети. Проверенно. В соответствии с действующими стандартами применение УЗО обязательно: А) для групповых линий, питающих электроприемники наружной установки (ГОСТ Р 50571.8-94); Б) для мобильных (инвентарных зданий из металла или с металлическим каркасом) (ГОСТ Р 50669-94); В) для защиты штепсельных розеток ванных и душевых помещений (ГОСТ Р 50571.11-96); Г) для защиты штепсельных розеток строительных площадок (ГОСТ Р 50571.23-2000); Д) для защиты от пожара (ГОСТ Р 50571.17-2000).

3. ток в нуле всегда будет меньше. уходит на разные потери. все зависет от электроприбора времени эксплотации, температуры влажности и т.д.4. сложите ток утечки посудомойки и духовки явно будет больне будет больше 10 mA5. Диф. автомат. на 63 А отключится сразу как только включится ком-р в розеточной сети. Проверенно.

какие потери??? - если у тебя изоляция проводов и потребителя нормальная то от эксплуатации нихрена не зависит, от температуры - только изоляция, влажность - ну единственно с чем соглашусь и то открытых участков проводников очень мало поэтому твоя утечка минимальна, а вот при нарушении изоляции (а это может быть и любое механическое повреждение ) при касании в этом месте проводника с чем либо - имеющее какое либо сопротивление вот тогда и появляется утечкаа для твоего ком-ра заимей себе узо типа А и бутет тебе хорошо, только нахрена на твой ком-р узо на 63А, даже если оно (узо) будет на 100А всё равно оно от утечек срабатывает (если твой ком-р заземлен то там на землю конденсаторы стоят которые со временем текут вот у тебя и срабатывает)2 DMCНормальная изоляция начинается от 500кОм.сейчас спорить не буду - надо лезть в букварь, но звоня изоляцию всегда для протокола было деление до мегоома хреново выше всё пучком :)

В протокол заносится точное сопротивление линии на конкретное число.Чего вы там измеряете "на глазок" никого не интересует... Это т.с. можно в кругу семьи такими замерами заниматься... А для отчетности всегда использовались конкретные значения.

да а вот тут ты не прав, да надо составлять протокол испытаний - а вот тут тот кто рулит ручкой мегометра царь и бог, кто тебе будет точное значение проставлять, не работал ты с этим никогда - крутанул записал, кто тебе будет крутить определённое время, точно смотреть 20 или 30 мегоом он показывает, это изоляция если чего она сегодня хорошая а завтра вода попала - вот так у нас и работают

Это просто показывает отношение к работе. У нас всегда смотрят точное значение на день измерения.Между собой - да, только входит в рамки или не входит, но в наряде всегда проставляется реальная цифра.

да нет не отношение - сколько не проверяли, изоляшия или есть или нет, обращаешь внимание на резкое изменение с 200 МОм до 1 тогда задаёшься вопросом почему и как а 40 или 50 это никогда особо не парило
(изменено)

Хотелось бы подытожить ценные советы старших собратьев электриков :)Просьба внимательно почитать мой пост.Сейчас скорее действительна такая схемаpost-5019-1183559966_thumb.jpgПравильно я понял вас DMC и dimp?Проблема в ограниченности вносимых изменений. Кух. щиток(синяя рамка) уже собран, вмурован в стену. Места для доп. УЗО нет :(Сил размуровывать, расширять проем тоже нет(так как делаю сам)...ПВС кабель до кух. щитка уже уложен, менять - а это в первую очередь опять ловить в верхних камерах стояка лестничного щитка, не хочу.Почему ПВС? Просто ВВГ жесткий, это была попытка уйти от его жесткости... Есть возможность маневра только в красной рамке. Потому как дом еще не сдан госкомиссии. Кроме обычных автоматов нет ничего (дифавтомат строители еще не поставили). Счетчик уже опломбирован, подводящие провода с него не снять так как он опломбирован.К стиралке кабель уже брошен, доступ к нему естьЕсть мысль на свет поставить свое УЗО, но это значит размещать его придется в красной рамке. Боюсь как бы не украли... Или все таки поискать участки ввода по квартире - назревает мысль типа "коридорного щитка", где поставить два УЗО+2авт на свет(потому что линия света где-то расщепляется после лестничного щитка) и заодно разместить УЗО+авт на стиралку(с током утечки 30 мА )Зацените пожалуйста последнюю мысль!!!

Изменено пользователем Yuri101

как итог:когда начинаешь делать 7 раз отмерь один отреж :D это наставление не упрёкпвс лучше замени на ввг - срок службы пвс 6 лет, ввг - 30 лет, выбирай когда менять - либо сейчас либо... , проблем замены не вижу конец пвс приматываешь к одному концу ввг 5-6см., остальные отрезаешь и заматываешь изолентой если нужна картинка могу покапаться найти какпо поводу снимут не снимут - поставишь испорти товарный вид :) краской , процентов на 60 риск сократитьсядва узо на свет это наверное перестраховка но если хочешь лишним не будетпо поводу того что узо от компа (для DMC - компьютера или ноутбука :) ) отключается бред полный в январе себе в офисе делали разводку 9компов висят на одной узошке (30 мА АВВ) - пол года полёт нормальный :Dну у меня наверное основное усё :) удачи в эксплуатации

(изменено)

Смею заменить, что ПВС похож на NYM кабель по изоляции.Бытует мнение, что NYM круче ВВГ, тем более чем ПВС.Разьясните непонятливому! Или я в корне неправ.По поводу замены ПВС на ВВГ - я вас так понимаю dimp, нужно оставить ПВС, в паралель ему влючить ВВГ, концы ПВС отрезать, так? У меня у ПВСа большой участок замурован в стену

Изменено пользователем Yuri101

Бытует мнение, что NYM круче ВВГ, тем более чем ПВС.По поводу замены ПВС на ВВГ - я вас так понимаю dimp, нужно оставить ПВС, в паралель ему влючить ВВГ, концы ПВС отрезать, так? У меня у ПВСа большой участок замурован в стену

да nym имеет тройную изоляцию если есть возможность то ставьте его - просто если идти по крутости то есть ряд импортных силовых(всё дело в вашей возможности - финансовой)я просто не предполагал что вы (ПВС :huh: ) замуровали ВСЕМ КТО БУДЕТ СМОТРЕТЬ - НЕ забывайте что провода не вечны рано или позно их придётся менять - прокладывайте провода в гофро или иных каналах!!!!!нет просто думал что ПВС идет в трубе - и тогда заменить его проблемы не было а паралелить его не стоит ни в коем разе вы его изоляцию повесите на нормальный ВВГ и когда ему придёт конец.......

Для публикации сообщений создайте учётную запись или авторизуйтесь

Вы должны быть зарегистрированным пользователем, чтобы оставить комментарий

Создать учетную запись

Зарегистрируйтесь в нашем сообществе.

Зарегистрироваться

Войти

Уже есть аккаунт? Войти в систему.

Войти

Или войти с помощью одного из сервисов



  • Наши рекомендации

    • Люк для кошек своими руками
      Разумеется давно придуманы и продаются специальные лючки для кошек, которые можно врезать в дверь, но мы ведь не ищем легких путей . Да и по зоомагазинам я не хожу, а "гугление" показало, что такие люки для кошек стоят относительно не дешево. В то же время под рукой были два "копеечных" сантехнических пластиковых лючка для ГКЛ. Все что оставалось, так это обломать фиксаторы крышек, что бы они открывались в обе стороны, ровно выпилить отверстие в двери, да вклеить симметрично эти лючки.

      То, что получилось видно на фото. Разумеется это не для тех, у кого "дизайнерский ремонт", но для обыкновенной квартиры вполне подходит. Недостатков не замечено, животных и людей всё устраивает .


      Реакцию форумчан на этот люк можно узнать в этой теме https://homemasters.ru/...me/?p=330637

        • Ого
      • 6 ответов
    • Дома из сруба: идеальное сочетание уюта и прочности.
      Строительство собственного дома является важной вехой в жизни любого человека, поскольку оно знаменует собой важное событие. Выбор строительных материалов имеет огромное значение для создания теплого и функционального жилища. На протяжении всей древней истории древесина была распространенным материалом для строительства домов, что отразилось на различных культурах мира.

      • 0 ответов
    • Подходы к ремонту старых домов в России
      В России сотни тысяч старых домов, многие из которых являются не только свидетельством исторического наследия, но и отражением уникальной культуры и традиций страны. Эти дома, будь то деревянные избы или старинные каменные постройки, сохраняют в себе дух времени и рассказывают историю поколений.

      • 0 ответов
    • Аккумуляторные пилы  SCW и  SCM  22-A
      После того как провёл тесты, приступил к самому главному. Поменять диски местами, и проверить, как инструмент на это отреагирует, ведь они внешнее и походу внутренне практически одинаковые, пила по дереву конечно более навороченее, есть настройки угла наклона и можно на шину посадить через адаптер.

      • 4 ответа
    • Как построить теплый дом, не тратя лишних денег
      Строительство гостевого дома решил выделить в отдельную тему, так будет меньше путаницы.


        • Спасибо
        • Нравится
      • 256 ответов
    • Кажись всё или строительный пылесос с тройной мультициклонной ступенью очистки
      Кажись всё или строительный пылесос с тройной мультициклонной ступенью очистки

        • Нравится
      • 16 ответов
    • Вторая жизнь дивана: искусство ремонта мягкой мебели своими руками
      В эпоху беспрерывного потребления и стремления к новизне, ремонт старой мягкой мебели своими руками приобретает не просто практическое, но и глубоко философское значение. Это действие как знак уважения к труду мастеров, которые вложили свое мастерство в создание диванов, кресел и пуфов, и как воплощение идеи устойчивого потребления. С каждым возвращенным к жизни предметом мебели, мы не только сохраняем историю и уникальность каждого изделия, но и противостоим бездумному обновлению интерьера за счет экологии и рационального использования ресурсов.

        • Нравится
      • 0 ответов
    • Газовые котлы: эффективное, экономичное и экологичное решение для отопления вашего дома
      В современном мире, где комфорт и устойчивость стали ключевыми аспектами повседневной жизни, выбор правильного источника отопления дома становится особенно актуальным. Газовые котлы, сочетая в себе преимущества эффективности, экономичности и экологичности, представляют собой одно из наиболее популярных решений для обеспечения комфортной температуры в жилых и коммерческих помещениях.

      • 0 ответов
×
×
  • Создать...

Важная информация

Мы разместили cookie-файлы на ваше устройство, чтобы помочь сделать этот сайт лучше. Вы можете изменить свои настройки cookie-файлов, или продолжить без изменения настроек.