Перейти к содержанию
Форумы о ремонте и строительстве

Как обустроить гостинную-столовую 35 кв.м.?

Оценить эту тему:


Ane444ka

Рекомендуемые сообщения

Опубликовано (изменено)

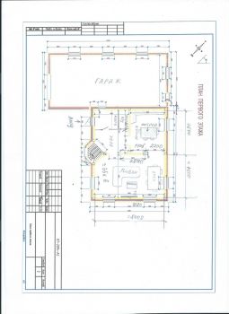
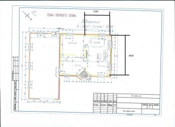
Помогите распланировать расстановку мебели в гостинной 35 кв.м. в частном доме, где будет проживать семья из 4-х человек (родители и 2-е детей: мальчик 9 лет, девочка 1,5 года). Сейчас находимся на этапе проводки электрики, а для этого нужно уже определиться с примерной расстановкой мебели и так хочется сразу учесть все нюансы, чтобы потом не было лишних проводов и чтобы уже после штукатурки стены не штробить заново. Пока в голове крутятся только эти два варианта расстановки мебели, хотелось бы большой стол при выходе из кухни, так как на кухне планируем просто остров вместо стола. Также хочется большой угловой диван, но это не принципиально. Необходим свежий взгляд со стороны!

post-98960-0-97506100-1424767301_thumb.jpg

post-98960-0-97553700-1424767388_thumb.jpg

Изменено пользователем Ane444ka

Первый вариант смущает с тем, что к дивану не подступиться, получается 2 неиспотзуемых коридора между задними частями дивана и стенами комнаты. Не думали о размещении 2 диванов друг напротив друга? 

Hamasadge-ЛОХ

Ух ты, размеры то внушительные )

oleks11-ЛОХ

 Вот надумали делать ремонт ищем подходящую мебель, не знаем к кому обратиться, на даный момент ищем зеркало Christopher Guy вот нашли лошарский сайт где christopher guy зеркало в налич ии  кто нибудь тут заказывал, или посоветует мне ЛОХу еще варианты?

Спасибо, очень интересно! Хотелось бы еще интересных идей :) 

Да, вроде места не мало, но всё равно с расстановкой мебели  сплошные заморочки... 

  • 2 недели спустя...
Данияр

мне второй вариант кажется удачней

Для публикации сообщений создайте учётную запись или авторизуйтесь

Вы должны быть зарегистрированным пользователем, чтобы оставить комментарий

Создать учетную запись

Зарегистрируйтесь в нашем сообществе.

Зарегистрироваться

Войти

Уже есть аккаунт? Войти в систему.

Войти

Или войти с помощью одного из сервисов



  • Наши рекомендации

    • Подходы к ремонту старых домов в России
      В России сотни тысяч старых домов, многие из которых являются не только свидетельством исторического наследия, но и отражением уникальной культуры и традиций страны. Эти дома, будь то деревянные избы или старинные каменные постройки, сохраняют в себе дух времени и рассказывают историю поколений.

      • 0 ответов
    • Как построить теплый дом, не тратя лишних денег
      Строительство гостевого дома решил выделить в отдельную тему, так будет меньше путаницы.


        • Спасибо
        • Нравится
      • 239 ответов
    • Люк для кошек своими руками
      Разумеется давно придуманы и продаются специальные лючки для кошек, которые можно врезать в дверь, но мы ведь не ищем легких путей . Да и по зоомагазинам я не хожу, а "гугление" показало, что такие люки для кошек стоят относительно не дешево. В то же время под рукой были два "копеечных" сантехнических пластиковых лючка для ГКЛ. Все что оставалось, так это обломать фиксаторы крышек, что бы они открывались в обе стороны, ровно выпилить отверстие в двери, да вклеить симметрично эти лючки.

      То, что получилось видно на фото. Разумеется это не для тех, у кого "дизайнерский ремонт", но для обыкновенной квартиры вполне подходит. Недостатков не замечено, животных и людей всё устраивает .


      Реакцию форумчан на этот люк можно узнать в этой теме https://homemasters.ru/...me/?p=330637

        • Ого
      • 6 ответов
    • Кажись всё или строительный пылесос с тройной мультициклонной ступенью очистки
      Кажись всё или строительный пылесос с тройной мультициклонной ступенью очистки

        • Нравится
      • 16 ответов
    • Газовые котлы: эффективное, экономичное и экологичное решение для отопления вашего дома
      В современном мире, где комфорт и устойчивость стали ключевыми аспектами повседневной жизни, выбор правильного источника отопления дома становится особенно актуальным. Газовые котлы, сочетая в себе преимущества эффективности, экономичности и экологичности, представляют собой одно из наиболее популярных решений для обеспечения комфортной температуры в жилых и коммерческих помещениях.

      • 0 ответов
    • Аккумуляторные пилы  SCW и  SCM  22-A
      После того как провёл тесты, приступил к самому главному. Поменять диски местами, и проверить, как инструмент на это отреагирует, ведь они внешнее и походу внутренне практически одинаковые, пила по дереву конечно более навороченее, есть настройки угла наклона и можно на шину посадить через адаптер.

      • 4 ответа
    • Вторая жизнь дивана: искусство ремонта мягкой мебели своими руками
      В эпоху беспрерывного потребления и стремления к новизне, ремонт старой мягкой мебели своими руками приобретает не просто практическое, но и глубоко философское значение. Это действие как знак уважения к труду мастеров, которые вложили свое мастерство в создание диванов, кресел и пуфов, и как воплощение идеи устойчивого потребления. С каждым возвращенным к жизни предметом мебели, мы не только сохраняем историю и уникальность каждого изделия, но и противостоим бездумному обновлению интерьера за счет экологии и рационального использования ресурсов.

        • Нравится
      • 0 ответов
    • Дома из сруба: идеальное сочетание уюта и прочности.
      Строительство собственного дома является важной вехой в жизни любого человека, поскольку оно знаменует собой важное событие. Выбор строительных материалов имеет огромное значение для создания теплого и функционального жилища. На протяжении всей древней истории древесина была распространенным материалом для строительства домов, что отразилось на различных культурах мира.

      • 0 ответов
×
×
  • Создать...

Важная информация

Мы разместили cookie-файлы на ваше устройство, чтобы помочь сделать этот сайт лучше. Вы можете изменить свои настройки cookie-файлов, или продолжить без изменения настроек.