Перейти к содержанию
Форумы о ремонте и строительстве

Вентиляция в глухой спальне

Оценить эту тему:


Рекомендуемые сообщения

Опубликовано

Добрый день!

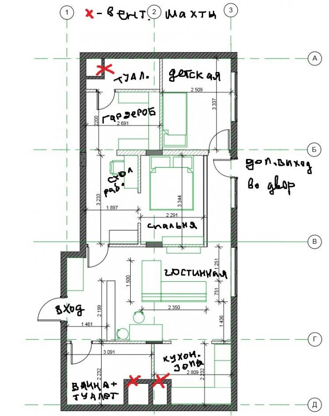
Есть квартира "в бетоне" на первом этаже трехэтажного дома, и дизайн-проект который устраивает семью.

По проекту спальня находится внутри квартиры - "глухая". Соответственно нужно будет что-то решать с вентиляцией. Делать ли принудительную вентиляцию, или ограничиться решетками в стене для естессвенного воздухообмена. Беспопокит вопрос шумовых и стоимостных характеристик системы. В общем хочется всего и бесплатно :)
На плане - правая перегородка спальни (которая смотрит на окно и дверь во двор) планируется стеклянной/прозрачной для поступления света, возможно не глухая, с оставленным пространством между потолком.

Посоветуйте как лучше сделать?

plan.jpg

32 минуты назад, maxim1 сказал:

По проекту спальня находится внутри квартиры - "глухая".

Это что за проект такой? Кто его утвердил и разрешил? Жилой комнаты без окон согласно СНИП быть не должно!!! Должно быть естественное освещение.

Цитата

1.3*. Естественное освещение должны иметь жилые комнаты, кухни, неканализованные уборные, входные тамбуры (кроме ведущих непосредственно в квартиры), лестничные клетки, общие коридоры в жилых зданиях коридорного типа, а также помещения общественного назначения в общежитиях и жилых домах для престарелых и семей с инвалидами. Естественное освещение следует принимать согласно требованиям СНиП II-4-79

Цитата

9.12 Естественное освещение должны иметь жилые комнаты и кухни (кроме кухонь- ниш), помещения общественного назначения, встроенные в жилые здания, кроме помещений, размещение которых допускается в подвальных этажах согласно СНиП 31-06.

Не забываем установить аватар, заполнить профиль, и создать свой блог

https://homemasters.ru/

10 minutes ago, KGB said:
41 minutes ago, maxim1 said:

По проекту спальня находится внутри квартиры - "глухая".

Это что за проект такой? Кто его утвердил и разрешил? Жилой комнаты без окон согласно СНИП быть не должно!!! Должно быть естественное освещение.

То что стеклянная стена напротив окна - не имеет значения?

Вариант сдать спальню как нежилое помещение - сильно плох?

"Разрешил" проект пока только знакомый дизайнер. Застройщик сдал коробку только с несущими колоннами, на плане их три, выделены серым цветом.

37 минут назад, maxim1 сказал:

То что стеклянная стена напротив окна - не имеет значения?

Ну снипы требуют наличия естественного освещения, а уж как там попадает "небесный свет" ( не обязательно солнце, именно естественный свет, причем есть конкретные нормы освещенности еще в санитарных нормах, но я их не помню ) через стеклянную крышу или через стеклянную стену - не важно. Другое дело, что возможно придется доказывать тому, кто проект будет утверждать.

37 минут назад, maxim1 сказал:

"Разрешил" проект пока только знакомый дизайнер.

А он про вентиляцию ничего не рассказал? Вообще то дизайнер обязан знать и про снипы и про санпины и про все остальное, а не рисовать от балды, иначе это не дизайнер а художник от слова "худо". А то нарисовать можно что угодно. По любому  нужно делать естественную вентиляцию, потому что любая принудительная, какой бы она тихой не была, ночью весь мозг выест. Как делать? По одному плану не решить, надо на месте разбираться. Возможно расчеты делать. Например у меня есть вентканал, в который газета как ракета улетает, такая вот тяга. Но 5 метров горизонтальной трубы с двумя изгибами эту тягу превращает в ничто. Возможно есть возможность на улицу сделать. А может достаточно "форточки" в стеrлянной стене

37 минут назад, maxim1 сказал:

Вариант сдать спальню как нежилое помещение - сильно плох?

Ну там же людям жить

Не забываем установить аватар, заполнить профиль, и создать свой блог

https://homemasters.ru/

  • 2 недели спустя...

А если установить перекрываемый приточный клапан с улицы, а для движения воздуха- вне этого помещения (санузел или кладовка) ближе к вытяжному каналу установить принудительную вытяжку. С хорошей звукоизоляцией.

При этом условии будет создаваться недостаток в давлении воздуха, и происходит естественный забор воздуха с улицы.

Спасибо.

Пока склоняюсь к тому чтобу поменять нижнее окно (кухонное), на окно с вентилируемыми проемами. с активным поддувом или без него.

в центр на правой стене над вторым выходом повесить кондер, чтобы воздух гонял.

и в правой стеклянной перегородке спальни сделать двустворчатые раздвижные двери, которые можно было бы оставлять открытыми.

дальше, ставить дополнительно принудительную вентиляцию или нет - смотреть по обстоятельствам на месте, после въезда в отделаную квартиру.

58 минут назад, maxim1 сказал:

Пока склоняюсь к тому чтобу поменять нижнее окно (кухонное), на окно с вентилируемыми проемами. с активным поддувом или без него.

Про эти окна ничего сказать не могу- не сталкивался. А вот база "Петрович", в последнее время рекламирует приточные клапана устанавливаемые под подоконник. То-есть они маленькие. Можно вывести за потолок и разместить в нескольких разных местах.

что-то не нашел их. в нашем доме не разрешают изменять или выпиливать каким либо образом фасад.

не знаю разрешено ли ссылки вставлять. такие штуки впиливаются прямо в раму, даже менять не придется, при условии что сами окна приличные.

Только что, maxim1 сказал:

не знаю разрешено ли ссылки вставлять

А правила почитать не судьба? Или так и по жизни, живем без правил?

Не забываем установить аватар, заполнить профиль, и создать свой блог

https://homemasters.ru/

Для публикации сообщений создайте учётную запись или авторизуйтесь

Вы должны быть зарегистрированным пользователем, чтобы оставить комментарий

Создать учетную запись

Зарегистрируйтесь в нашем сообществе.

Зарегистрироваться

Войти

Уже есть аккаунт? Войти в систему.

Войти

Или войти с помощью одного из сервисов



  • Наши рекомендации

    • Люк для кошек своими руками
      Разумеется давно придуманы и продаются специальные лючки для кошек, которые можно врезать в дверь, но мы ведь не ищем легких путей . Да и по зоомагазинам я не хожу, а "гугление" показало, что такие люки для кошек стоят относительно не дешево. В то же время под рукой были два "копеечных" сантехнических пластиковых лючка для ГКЛ. Все что оставалось, так это обломать фиксаторы крышек, что бы они открывались в обе стороны, ровно выпилить отверстие в двери, да вклеить симметрично эти лючки.

      То, что получилось видно на фото. Разумеется это не для тех, у кого "дизайнерский ремонт", но для обыкновенной квартиры вполне подходит. Недостатков не замечено, животных и людей всё устраивает .


      Реакцию форумчан на этот люк можно узнать в этой теме https://homemasters.ru/...me/?p=330637

        • Ого
      • 6 ответов
    • Как построить теплый дом, не тратя лишних денег
      Строительство гостевого дома решил выделить в отдельную тему, так будет меньше путаницы.


        • Спасибо
        • Нравится
      • 256 ответов
    • Аккумуляторные пилы  SCW и  SCM  22-A
      После того как провёл тесты, приступил к самому главному. Поменять диски местами, и проверить, как инструмент на это отреагирует, ведь они внешнее и походу внутренне практически одинаковые, пила по дереву конечно более навороченее, есть настройки угла наклона и можно на шину посадить через адаптер.

      • 4 ответа
    • Вторая жизнь дивана: искусство ремонта мягкой мебели своими руками
      В эпоху беспрерывного потребления и стремления к новизне, ремонт старой мягкой мебели своими руками приобретает не просто практическое, но и глубоко философское значение. Это действие как знак уважения к труду мастеров, которые вложили свое мастерство в создание диванов, кресел и пуфов, и как воплощение идеи устойчивого потребления. С каждым возвращенным к жизни предметом мебели, мы не только сохраняем историю и уникальность каждого изделия, но и противостоим бездумному обновлению интерьера за счет экологии и рационального использования ресурсов.

        • Нравится
      • 0 ответов
    • Подходы к ремонту старых домов в России
      В России сотни тысяч старых домов, многие из которых являются не только свидетельством исторического наследия, но и отражением уникальной культуры и традиций страны. Эти дома, будь то деревянные избы или старинные каменные постройки, сохраняют в себе дух времени и рассказывают историю поколений.

      • 0 ответов
    • Кажись всё или строительный пылесос с тройной мультициклонной ступенью очистки
      Кажись всё или строительный пылесос с тройной мультициклонной ступенью очистки

        • Нравится
      • 16 ответов
    • Газовые котлы: эффективное, экономичное и экологичное решение для отопления вашего дома
      В современном мире, где комфорт и устойчивость стали ключевыми аспектами повседневной жизни, выбор правильного источника отопления дома становится особенно актуальным. Газовые котлы, сочетая в себе преимущества эффективности, экономичности и экологичности, представляют собой одно из наиболее популярных решений для обеспечения комфортной температуры в жилых и коммерческих помещениях.

      • 0 ответов
    • Дома из сруба: идеальное сочетание уюта и прочности.
      Строительство собственного дома является важной вехой в жизни любого человека, поскольку оно знаменует собой важное событие. Выбор строительных материалов имеет огромное значение для создания теплого и функционального жилища. На протяжении всей древней истории древесина была распространенным материалом для строительства домов, что отразилось на различных культурах мира.

      • 0 ответов
×
×
  • Создать...

Важная информация

Мы разместили cookie-файлы на ваше устройство, чтобы помочь сделать этот сайт лучше. Вы можете изменить свои настройки cookie-файлов, или продолжить без изменения настроек.