Перейти к содержанию
Форумы о ремонте и строительстве

Требуется помощь со щитком!

Оценить эту тему:


verzunov76

Рекомендуемые сообщения

а в щитке третью жилу к чему присоединять?

К корпусу щитка. Корпус должен быть заземлен или его заземлят со временем (трудно назвать правильным монтаж щитка, если его корпус не соединен с землей).

К корпусу щитка. Корпус должен быть заземлен

а если корпус все-таки не заземлен - в квартиру входят два провода и все...

а в щитке третью жилу к чему присоединять?

не торопитесь - пока пусть висит

трудно назвать правильным монтаж щитка, если его корпус не соединен с землей.

тут вы не правы - очень много примеров только занулений корпусов щитков, а со временем и нули пропадают

не торопитесь - пока пусть виситтут вы не правы - очень много примеров только занулений корпусов щитков, а со временем и нули пропадают

согласен

А как насчет автоматов на 25А - все-таки они идут на розетки или это много?

если розетки у вас на 25А (на ней написано) то ставьте 25, если 16 ставьте 16, для 10А автомат на 10

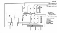
Караул, счас риовал схему соединений - в одной из коробок получилось 15 трехжильных проводов:) Попробую разнести на две коробки...А соединение РЕ проводников (желто-зеленых) можно делать на шине? Т.Е. фаза и ноль в Wago а третий - шина, изолировать ее нужно?

про какие коробки речь??

про распаячные - ну, те в которых соединяются провода. Вчера сел нарисовал большущую схему на А2:) получилось лучше - больше коробок и меньше соединений. Схему в студию попробую - в фотошопе долго рисовать, в архикаде что-то модуль электрики не работает..

вот нарисовал в фотошопе, самому страшно что получилось:)

post-15501-1218634618_thumb.jpg

ошибки есть в рисовании.пропущен ввод в среднию комнату,провода висят в воздухе.если стоит задача разделить все линии в каждом помещении на световую и розеточную группу.советаю рисовать по комнатно.выход из комнаты будет идти напрямую к щитку.меньше рисования и есть возможность дитально проработать все схемы.

задача разделить все линии в каждом помещении на световую и розеточную группу.

А какой смысл в этом разделении?При нынешних ценах на эл.провода - единственное удобство при этом - ремонтировать розетку при ярком свете... :rolleyes:

пропущен ввод в среднию комнату,провода висят в воздухе.

да ввод пропущен - поздно было:) он идет от коробки №5 до №7 (новый рисунок вставить не получется - сервак глючит:) наверное)провода не в воздухе будут висеть - это я так рисовал чтобы видно было лучше что куда идет. Все провода будут в штробах или в гофре под ГКЛ.

А какой смысл в этом разделении?При нынешних ценах на эл.провода - единственное удобство при этом - ремонтировать розетку при ярком свете... :rolleyes:

да ремонтировать можно и при свече - если очень экономить :blink: смысл разделения - поделить всю проводку на зоны, что бы при перегрузке на кухне - не остаться в полной темноте, не не насиловать приборы в других комнатах (да и лампы тоже) помните что скупой платит дважды :D

советаю рисовать по комнатно.выход из комнаты будет идти напрямую к щитку.меньше рисования и есть возможность дитально проработать все схемы.

да нет уж рисовать так рисовать :) надо делить на лист1 - розеткилист2 - освещениелист3 - щитокпроще поставить 3 маленьких раздатки чем одну большую

вот, попробовал разбить на три листалист 2рисовал часть в Визио часть в фотошопе - символы электрообрудования из Визио

post-15501-1218712312_thumb.jpg

post-15501-1218712433_thumb.jpg

post-15501-1218712549_thumb.jpg

лучшее - враг хорошего, в цвете и с квадратиками (розетки, выключатели, распредки) смотрелось лучше

лучшее - враг хорошего, в цвете и с квадратиками (розетки, выключатели, распредки) смотрелось лучше

ну вот, хотел как лучше.... :)а по существу вопроса - все таки нормально или нет?

нормально или нет,каждый мастер решает для себя лично.у вас нет принципиальный схем,только предположительные места установки.иногда распред коробку можно сместить или вести провода не по прямой линии,а в обход.смотря какие стены в наличии.иногда лучше потратить дав три лишних метра проводки,чем долбиться в бетоне.для сообствкнной проверки.в рапредкоробку входят всегда три провода.на лампочку из нее идет,как минимум три.в выключатель,как минимум два.(для сетей с заземляющем проводом)

Скажите а в щитке каким проводом монтаж вести? 2,5; 4; 6 квадратов

Скажите а в щитке каким проводом монтаж вести? 2,5; 4; 6 квадратов

провод всегда от тока зависит - если вводной до 32 А то 4 если больше то 6

Для публикации сообщений создайте учётную запись или авторизуйтесь

Вы должны быть зарегистрированным пользователем, чтобы оставить комментарий

Создать учетную запись

Зарегистрируйтесь в нашем сообществе.

Зарегистрироваться

Войти

Уже есть аккаунт? Войти в систему.

Войти

Или войти с помощью одного из сервисов



  • Наши рекомендации

    • Дома из сруба: идеальное сочетание уюта и прочности.
      Строительство собственного дома является важной вехой в жизни любого человека, поскольку оно знаменует собой важное событие. Выбор строительных материалов имеет огромное значение для создания теплого и функционального жилища. На протяжении всей древней истории древесина была распространенным материалом для строительства домов, что отразилось на различных культурах мира.

      • 0 ответов
    • Подходы к ремонту старых домов в России
      В России сотни тысяч старых домов, многие из которых являются не только свидетельством исторического наследия, но и отражением уникальной культуры и традиций страны. Эти дома, будь то деревянные избы или старинные каменные постройки, сохраняют в себе дух времени и рассказывают историю поколений.

      • 0 ответов
    • Кажись всё или строительный пылесос с тройной мультициклонной ступенью очистки
      Кажись всё или строительный пылесос с тройной мультициклонной ступенью очистки

        • Нравится
      • 16 ответов
    • Вторая жизнь дивана: искусство ремонта мягкой мебели своими руками
      В эпоху беспрерывного потребления и стремления к новизне, ремонт старой мягкой мебели своими руками приобретает не просто практическое, но и глубоко философское значение. Это действие как знак уважения к труду мастеров, которые вложили свое мастерство в создание диванов, кресел и пуфов, и как воплощение идеи устойчивого потребления. С каждым возвращенным к жизни предметом мебели, мы не только сохраняем историю и уникальность каждого изделия, но и противостоим бездумному обновлению интерьера за счет экологии и рационального использования ресурсов.

        • Нравится
      • 0 ответов
    • Люк для кошек своими руками
      Разумеется давно придуманы и продаются специальные лючки для кошек, которые можно врезать в дверь, но мы ведь не ищем легких путей . Да и по зоомагазинам я не хожу, а "гугление" показало, что такие люки для кошек стоят относительно не дешево. В то же время под рукой были два "копеечных" сантехнических пластиковых лючка для ГКЛ. Все что оставалось, так это обломать фиксаторы крышек, что бы они открывались в обе стороны, ровно выпилить отверстие в двери, да вклеить симметрично эти лючки.

      То, что получилось видно на фото. Разумеется это не для тех, у кого "дизайнерский ремонт", но для обыкновенной квартиры вполне подходит. Недостатков не замечено, животных и людей всё устраивает .


      Реакцию форумчан на этот люк можно узнать в этой теме https://homemasters.ru/...me/?p=330637

        • Ого
      • 6 ответов
    • Как построить теплый дом, не тратя лишних денег
      Строительство гостевого дома решил выделить в отдельную тему, так будет меньше путаницы.


        • Спасибо
        • Нравится
      • 245 ответов
    • Газовые котлы: эффективное, экономичное и экологичное решение для отопления вашего дома
      В современном мире, где комфорт и устойчивость стали ключевыми аспектами повседневной жизни, выбор правильного источника отопления дома становится особенно актуальным. Газовые котлы, сочетая в себе преимущества эффективности, экономичности и экологичности, представляют собой одно из наиболее популярных решений для обеспечения комфортной температуры в жилых и коммерческих помещениях.

      • 0 ответов
    • Аккумуляторные пилы  SCW и  SCM  22-A
      После того как провёл тесты, приступил к самому главному. Поменять диски местами, и проверить, как инструмент на это отреагирует, ведь они внешнее и походу внутренне практически одинаковые, пила по дереву конечно более навороченее, есть настройки угла наклона и можно на шину посадить через адаптер.

      • 4 ответа
×
×
  • Создать...

Важная информация

Мы разместили cookie-файлы на ваше устройство, чтобы помочь сделать этот сайт лучше. Вы можете изменить свои настройки cookie-файлов, или продолжить без изменения настроек.