Перейти к содержанию
Форумы о ремонте и строительстве

Выравниание стен с помощью ГВЛ в ванной

Оценить эту тему:


Vladimir180379

Рекомендуемые сообщения

Опубликовано

Здравствуйте форумчане.Я новенький на этом форуме, помогите советом пожалуйста.Затеял ремонт в ванной комнате, хочу выложить стены плиткой. Но сталкнулся с такой проблемой стены кривые, не то чтобы сама стена была кривой просто дом панельный и перегородки установлены криво, тоесть под углом и размеры по ширене получаются с разницой в 5 см. Как правильно выровнять стены, думаю использовать ГВЛ и металический профиль, только не знаю какой профиль использовать и как его крепить. С одной стороны получается,что лист будет крепится к стене. Жду советов, заранее спасибо. :unsure:

Vladimir180379

На указанной ссылке не чего не нашел, понял только одно , что надо сооружать конструкцию. Но это украдет много места. Как быть? Можно прикрепить одну сторону листа к стене, а другую к профилю и как это правильно сдела

На указанной ссылке не чего не нашел, понял только одно , что надо сооружать конструкцию. Но это украдет много места. Как быть? Можно прикрепить одну сторону листа к стене, а другую к профилю и как это правильно сдела

Технически возможно. Но нужен опыт.А его, я как понял, нет.Может тебе про перфикс мастера подскажут?В твоём случае это хороший выход.
Vladimir180379

что такое перфикс?

что такое перфикс?

Ронин опечатался. Смесь называется "Перлфикс"(Perlfix) - это монтажный клей от KNAUF."Клей монтажный Перлфикс применяется для приклеивания гипсовых панелей, изоляционного материала (пенополистирол, минеральная вата), комбинированных гипсовых панелей и т.п. на обычные основания с гигроскопичной поверхностью.Предназначен для внутренних работ".Для приклеивания ГВЛ есть его спец. разновидность "КНАУФ-Перлфикс ГВ".Вот это взято с оф. сайта KNAUF: Perlfix.pdfА вот тут Вы найдёте очень много бесценной и подробной информации об этом способе отделки: Монтаж гипсокартона на ПерлфиксВ Вашем случае возможен комбинированный подход:Часть стены на Перлфикс, часть на каркасе. Или: Часть на Перлфикс, остальное штукатурить-шпаклевать. Хотя начинающему совместить разные способы выравнивания на одной стене, наверное, будет слишком сложно.Перекосы стен до 5см вполне можно устранить штукатуркой.

Я это написал, как слышал. Ошибся, конеш.Я с перлфиксом не работаю. С каркасами по старинке. :)Просто в данном случае это самый приемлемый вариант.

Я с перлфиксом не работаю. С каркасами по старинке. smile.png

попробуй, понравится :)

Подписываемся на тему День за днём, моя работа https://homemasters.ru/...esta-raboty/ и на мой инстарам https://www.instagram.c...gda35remont/

Принимаю заказы на мебель из слэбов

 

попробуй, понравится :)

Не доверяю я ему.
Vladimir180379

Всем большое спасибо. Отчитаюсь после работы.

Не доверяю я ему.

Ты же не деньги ему на хранение оставляешь :D Хороший клей, отличный результат. Забодаешься лист отдирать - клеит намертво.

Ты же не деньги ему на хранение оставляешь :D Хороший клей, отличный результат. Забодаешься лист отдирать - клеит намертво.

Вот это меня и не устраивает. Я после зашивки каркаса проверяю проводку, идеи посещают. Мне нужен управляемый процесс. А теперь представь тебе мешок брака впарят. Всё гикнется, а ты крайний. Не, я как нить по старинке.;-)

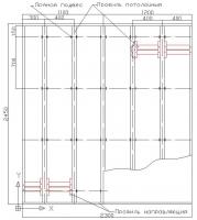
Дабы не плодить темы отпишусь тут.В ванной одну стену делаю ГП на профиля. Эскиз прилагаю :)Красным показаны профиля которые планирую сделать для того чтоб навесить туда в 1. случат шкафчик, во 2. скобы удерживающие поддон душа от горизонтального смещения. Еще можно попробовать сделать также для раковины, при условии что это мойдодыр и держаться будет на тумбе.Вопрос в том, а можно так делать?Кроме того, кнауф рекомендует устанавливать примые подвесы на расстояние 1,5м друг от друга, а если сделать чаще разве не будет прочнее. И еще что дает общивка ГК стены в 2 слоя, в отличии от 1го?Оцените незатейливый каркас, просто делаю первый раз, прочитал много а что будет на практике.....п.с. оффтоп, не забывайте про технику безопасности, а то я так сильно палец об профиль порезал что ппц! :)

post-16916-1237372788_thumb.jpg

Вопрос в том, а можно так делать?Кроме того, кнауф рекомендует устанавливать примые подвесы на расстояние 1,5м друг от друга, а если сделать чаще разве не будет прочнее. И еще что дает общивка ГК стены в 2 слоя, в отличии от 1го?п.с. оффтоп, не забывайте про технику безопасности, а то я так сильно палец об профиль порезал что ппц! :)

Конечно можно и нужно, а ещё, как вариант, делать закладные элементы из деревянных брусков, кусков толстой фанеры и т.п.А если сделать чаще, то прочнее будет! А если вместо прямых подвесов использовать кривые "сапоги", то будет ещё прочнее! Рекомендации KNAUF разработаны давно и подразумевают применение профиля и подвесов из металла некоторой отличной от 0 толщины, а сейчас у нас повсюду в продаже и профили и подвесы из такой тонкой жести, что это просто "жесть"! :D Обшивка в 2 слоя даёт более крепкую и жёсткую поверхность (под облицовку керамикой особенно актуально) с меньшим "барабанным эффектом". Стыки листов в слоях при двухслойной обшивке необходимо смещать. Первый слой можно набрать из кусков-обрезков.Кстати, а что за материал ГП, который Вы хотите применить?Берегите пальцы!
(изменено)

МАН спасибо за ответ.

ГП это ГипсоКарктон, опечатка (вот они где кривые пальчики-то)

Гдето в мыслях я все это представляю, и думаю не ошибаюсь благо кое что уже понимаю в ремонте, но НО боюсь нарватся именно на то, что не понимаю и когда дорогая плитка начнет отскакивать от стены... ужас вобщем

еще пугают мол стены, потолок, пол имеют некую величину относительного смещения, с чем в принципе согласен, и если конструкция будет черезчур жесткой (например если крепить Профиль потолочный к ПН саморезами), то эта сама конструкция может "извиваться" и как следствие ГК лист может трескаться.

как с эти обстоят дела? вопрос к людям которые много повидали на своем веку :) т.е. не к теоретикам

Изменено пользователем ZoOLoN
(изменено)

Это по поводу закладных. Вот вчера делал в прихожей, чтоб вешалку потом подвесить. Вроде тоже самое что на вашей схеме.Внутри ПП-профиля заложил деревянные бруски (видите шляпки черных саморезов?).И сами профиля горизонтальные будут еще жестче, если их закрепить не на подвесах, а на т.н. "сапогах".Один, кстати, видно на крайнем правом профиле ПП.

post-17584-1237795199_thumb.jpg

Изменено пользователем Муф

Прямые подвесы уже установил на стену, так что "сапоги" думаю устанавливать не буду. Получилось 5 подвесов на П-профиль (через 0,5м).Деревяшки в ПП круто придумано (хотя и сам про это прочитал, но...).Думаю еще можно горизонтальный ПП (который для вешалки, и д.р. нагрузки) прикрепить этими сапогами.Кстати, выложите пожалуйсто картинку этого изделия. Представляю, что это изогнутый ПП, но вот как именно?

(изменено)

Думаю еще можно горизонтальный ПП (который для вешалки, и д.р. нагрузки) прикрепить этими сапогами.Кстати, выложите пожалуйсто картинку этого изделия. Представляю, что это изогнутый ПП, но вот как именно?

в данном случае нет смысла дополнительно укреплять и сами закладные. я пробовал на них даже повиснуть почти всем весом - ноль эмоций.а уж пара-тройка курток точно не своротят эту конструкцию. вот если бы шкаф какой посудный вешать надо было бы...про картинку не понял. нужно фото сапога? или что? в нём используется ПН-профиль. скручивается буквой Г двумя клопами. Изменено пользователем Муф

Для публикации сообщений создайте учётную запись или авторизуйтесь

Вы должны быть зарегистрированным пользователем, чтобы оставить комментарий

Создать учетную запись

Зарегистрируйтесь в нашем сообществе.

Зарегистрироваться

Войти

Уже есть аккаунт? Войти в систему.

Войти

Или войти с помощью одного из сервисов



  • Наши рекомендации

    • Подходы к ремонту старых домов в России
      В России сотни тысяч старых домов, многие из которых являются не только свидетельством исторического наследия, но и отражением уникальной культуры и традиций страны. Эти дома, будь то деревянные избы или старинные каменные постройки, сохраняют в себе дух времени и рассказывают историю поколений.

      • 0 ответов
    • Кажись всё или строительный пылесос с тройной мультициклонной ступенью очистки
      Кажись всё или строительный пылесос с тройной мультициклонной ступенью очистки

        • Нравится
      • 16 ответов
    • Люк для кошек своими руками
      Разумеется давно придуманы и продаются специальные лючки для кошек, которые можно врезать в дверь, но мы ведь не ищем легких путей . Да и по зоомагазинам я не хожу, а "гугление" показало, что такие люки для кошек стоят относительно не дешево. В то же время под рукой были два "копеечных" сантехнических пластиковых лючка для ГКЛ. Все что оставалось, так это обломать фиксаторы крышек, что бы они открывались в обе стороны, ровно выпилить отверстие в двери, да вклеить симметрично эти лючки.

      То, что получилось видно на фото. Разумеется это не для тех, у кого "дизайнерский ремонт", но для обыкновенной квартиры вполне подходит. Недостатков не замечено, животных и людей всё устраивает .


      Реакцию форумчан на этот люк можно узнать в этой теме https://homemasters.ru/...me/?p=330637

        • Ого
      • 6 ответов
    • Дома из сруба: идеальное сочетание уюта и прочности.
      Строительство собственного дома является важной вехой в жизни любого человека, поскольку оно знаменует собой важное событие. Выбор строительных материалов имеет огромное значение для создания теплого и функционального жилища. На протяжении всей древней истории древесина была распространенным материалом для строительства домов, что отразилось на различных культурах мира.

      • 0 ответов
    • Аккумуляторные пилы  SCW и  SCM  22-A
      После того как провёл тесты, приступил к самому главному. Поменять диски местами, и проверить, как инструмент на это отреагирует, ведь они внешнее и походу внутренне практически одинаковые, пила по дереву конечно более навороченее, есть настройки угла наклона и можно на шину посадить через адаптер.

      • 4 ответа
    • Как построить теплый дом, не тратя лишних денег
      Строительство гостевого дома решил выделить в отдельную тему, так будет меньше путаницы.


        • Спасибо
        • Нравится
      • 259 ответов
    • Газовые котлы: эффективное, экономичное и экологичное решение для отопления вашего дома
      В современном мире, где комфорт и устойчивость стали ключевыми аспектами повседневной жизни, выбор правильного источника отопления дома становится особенно актуальным. Газовые котлы, сочетая в себе преимущества эффективности, экономичности и экологичности, представляют собой одно из наиболее популярных решений для обеспечения комфортной температуры в жилых и коммерческих помещениях.

      • 0 ответов
    • Вторая жизнь дивана: искусство ремонта мягкой мебели своими руками
      В эпоху беспрерывного потребления и стремления к новизне, ремонт старой мягкой мебели своими руками приобретает не просто практическое, но и глубоко философское значение. Это действие как знак уважения к труду мастеров, которые вложили свое мастерство в создание диванов, кресел и пуфов, и как воплощение идеи устойчивого потребления. С каждым возвращенным к жизни предметом мебели, мы не только сохраняем историю и уникальность каждого изделия, но и противостоим бездумному обновлению интерьера за счет экологии и рационального использования ресурсов.

        • Нравится
      • 0 ответов
×
×
  • Создать...

Важная информация

Мы разместили cookie-файлы на ваше устройство, чтобы помочь сделать этот сайт лучше. Вы можете изменить свои настройки cookie-файлов, или продолжить без изменения настроек.