Перейти к содержанию
Форумы о ремонте и строительстве

Застряла в нише

Оценить эту тему:


Рекомендуемые сообщения

Опубликовано

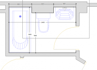
Совмещённый с/у такой формы:post-36125-1269119241_thumb.pngВозникла проблемка в раскладке плитки в нишах в самых видимых её углах: сдвиги вправо или влево приводят к маленьким ужасным подрезкам - либо в левом углу (если смотреть от входа), либо в пправом в самой нише . Плитка 20х40, горизонт.укладка,по остальным плоскостям ложится практически без подрезки. Может есть какой ещё вариант кроме этого?post-36125-1269119320_thumb.pngpost-36125-1269119403_thumb.png

ribakow.fthj2010

Попробуйте ниши сделать вертикально,но подрезать все равно придется.Думаю есть еще вариант:взять общий размер ниши и поделить на равные части,частей будет столько-сколько ,какой размер плитки вас устраевает,можно горизонтально можно вертикально-дело вкуса.Затем этим размером нарезать плитку в нужном колличестве.В нише тогда вся плитка будет ровная.Можно по центру ниши прогнать нерезанную-вариантов много,опять-же повторюсь=дело вкуса.

Наверное, неправильно описАла проблему. Попробую ещё: в центральной части ниши всё норм., ниша в ширину 800см. высота 190 - плитка 200х40 ,выкладывается по две шт. в ширину. "Потолочек" ниши сопрягается со стеной без выступа. Если стартовать целой плиткой с "простреливаемого" левого угла стены, то к нише приходит "огрызок " 20 и 10см., если начинать справа - то к левой стене "огрызок " 10см. Какой из двух предпочтительнее, а может есть ещё третий? :( В первом рисунке-плане неверные размеры.post-36125-1269164661_thumb.pngpost-36125-1269164695_thumb.pngpost-36125-1269164720_thumb.png

Может стену с нишей оформить вообще не этой плиткой,а например мозаикой.

Рассматривала этот вариант, но нет, получается перегрузка - по перимету идёт ещё две линии декоративн. полоски. Тогда уж лучше может совсем не обкладывать?post-36125-1269169644_thumb.png :blink:

Тогда уж лучше может совсем не обкладывать?

Тогда задекорировать ниши, изобразив на них то же самое,что и на бордюре только большего размера.

Верх да. Бочина - нет. Вы зря пытаетесь их связать. Главная ошибка - некорретный размер вылета короба. Надо было строить по плитке. Если плитка нефактурная, резаный край будет невиден на стыке. Разумеется, в этом случае я повернул бы два опилка опилышами друг к дружке ,а фабирику направил бы одну на подпилку, а второй во внутренний угол. Если смущает стык, поставьте туда рельсу и натыкайте на нее маленьких прожекторов для декоративной подсветки вашего чуда-сортира.Если надумаете рельсу, тогда шов сдвигайте вперед к внешнему углу на треть полки.

Главная ошибка - некорретный размер вылета короба. Надо было строить по плитке.

Строили по плитке, другой ... теперь парюсь над этой!Отдельное спасибо за чудо-сортир! (Именно так его и именуем). :xixi:

А, ну это многое объясняет. Я так думаю, - было бы логично, - на полу 40х40 лежит плитка. Приложите ее на потолок в нише. Типа рифмой будет работать, подчеркивая букву Т.

Buka, я Ваша навеки, целую Ваш аватар!

Я еще и ваш первый мужчина на этом форуме. B) Идея с напольной плиткой, надо думать, подошла. Был рад помочь.

Любовь Гарина

только учтите буку уже 348 раз полюбили:)

Подписываемся на тему День за днём, моя работа https://homemasters.ru/...esta-raboty/ и на мой инстарам https://www.instagram.c...gda35remont/

Принимаю заказы на мебель из слэбов

 

Для публикации сообщений создайте учётную запись или авторизуйтесь

Вы должны быть зарегистрированным пользователем, чтобы оставить комментарий

Создать учетную запись

Зарегистрируйтесь в нашем сообществе.

Зарегистрироваться

Войти

Уже есть аккаунт? Войти в систему.

Войти

Или войти с помощью одного из сервисов



  • Наши рекомендации

    • Подходы к ремонту старых домов в России
      В России сотни тысяч старых домов, многие из которых являются не только свидетельством исторического наследия, но и отражением уникальной культуры и традиций страны. Эти дома, будь то деревянные избы или старинные каменные постройки, сохраняют в себе дух времени и рассказывают историю поколений.

      • 0 ответов
    • Аккумуляторные пилы  SCW и  SCM  22-A
      После того как провёл тесты, приступил к самому главному. Поменять диски местами, и проверить, как инструмент на это отреагирует, ведь они внешнее и походу внутренне практически одинаковые, пила по дереву конечно более навороченее, есть настройки угла наклона и можно на шину посадить через адаптер.

      • 4 ответа
    • Кажись всё или строительный пылесос с тройной мультициклонной ступенью очистки
      Кажись всё или строительный пылесос с тройной мультициклонной ступенью очистки

        • Нравится
      • 16 ответов
    • Вторая жизнь дивана: искусство ремонта мягкой мебели своими руками
      В эпоху беспрерывного потребления и стремления к новизне, ремонт старой мягкой мебели своими руками приобретает не просто практическое, но и глубоко философское значение. Это действие как знак уважения к труду мастеров, которые вложили свое мастерство в создание диванов, кресел и пуфов, и как воплощение идеи устойчивого потребления. С каждым возвращенным к жизни предметом мебели, мы не только сохраняем историю и уникальность каждого изделия, но и противостоим бездумному обновлению интерьера за счет экологии и рационального использования ресурсов.

        • Нравится
      • 0 ответов
    • Как построить теплый дом, не тратя лишних денег
      Строительство гостевого дома решил выделить в отдельную тему, так будет меньше путаницы.


        • Спасибо
        • Нравится
      • 256 ответов
    • Дома из сруба: идеальное сочетание уюта и прочности.
      Строительство собственного дома является важной вехой в жизни любого человека, поскольку оно знаменует собой важное событие. Выбор строительных материалов имеет огромное значение для создания теплого и функционального жилища. На протяжении всей древней истории древесина была распространенным материалом для строительства домов, что отразилось на различных культурах мира.

      • 0 ответов
    • Люк для кошек своими руками
      Разумеется давно придуманы и продаются специальные лючки для кошек, которые можно врезать в дверь, но мы ведь не ищем легких путей . Да и по зоомагазинам я не хожу, а "гугление" показало, что такие люки для кошек стоят относительно не дешево. В то же время под рукой были два "копеечных" сантехнических пластиковых лючка для ГКЛ. Все что оставалось, так это обломать фиксаторы крышек, что бы они открывались в обе стороны, ровно выпилить отверстие в двери, да вклеить симметрично эти лючки.

      То, что получилось видно на фото. Разумеется это не для тех, у кого "дизайнерский ремонт", но для обыкновенной квартиры вполне подходит. Недостатков не замечено, животных и людей всё устраивает .


      Реакцию форумчан на этот люк можно узнать в этой теме https://homemasters.ru/...me/?p=330637

        • Ого
      • 6 ответов
    • Газовые котлы: эффективное, экономичное и экологичное решение для отопления вашего дома
      В современном мире, где комфорт и устойчивость стали ключевыми аспектами повседневной жизни, выбор правильного источника отопления дома становится особенно актуальным. Газовые котлы, сочетая в себе преимущества эффективности, экономичности и экологичности, представляют собой одно из наиболее популярных решений для обеспечения комфортной температуры в жилых и коммерческих помещениях.

      • 0 ответов
×
×
  • Создать...

Важная информация

Мы разместили cookie-файлы на ваше устройство, чтобы помочь сделать этот сайт лучше. Вы можете изменить свои настройки cookie-файлов, или продолжить без изменения настроек.