Перейти к содержанию
Форумы о ремонте и строительстве

Подключение вентилятора и нагревателя воздуха

Оценить эту тему:


Ослик

Рекомендуемые сообщения

Опубликовано

Собираю вентиляцию:- приточный и вытяжной вертиляторы с одним регулятором скорости,- нагреватель воздуха с регулятором температуры (нагреватель должен работать когда работают вентиляторы)Есть схемы (см. рисунки), но т.к. в электрике я полный чайник, то прошу совета, как это все собрать в цепь.Спасибо.

post-28572-1270052962_thumb.gif

post-28572-1270053002_thumb.gif

(изменено)

для приточных систем существуют уже готовые шкафы управления, где заложено включение вентилятора и регулировка его скорости, температура нагрева в эл. нагревателе и задержка в остановке вентилятора, чтобы ТЭНы не перегревались.

Изменено пользователем mul`tya6ka
Ослик

2dimpпроблема пририсовать автоматы, а также линии (черные, синие, желтополосатые) от автоматов к контактам инвайсов и линии между контактами инвайсов. 2mul`tya6kaвсе уже купленно - россыпью

фото с регулятором и нагревателем - один автомат под буквой s , рядом с вторым надпись (питание 230/400VAC) ,там где на регуляторе температуры нагревательный элемент (выход 9-10) вешаете катушку контактора на L и N(выкинув контакт Т) выключатель J можно оставить - это автомат на 1 или 2 А (хотя они дорогие поставьте на 6А)

Аникей Сковородкин

После рассметривания инструкций в инете (сам я с такими штуками в реале не сталкивался).Пока, я так понял, контактора К у вас нет, или он внутри нагревателя?Если он есть, то катушку подключаем, как правильно сказал Димп, к выходам 9-10 регулятора (контакты Т и J) исключаем.Если есть выход с терморегулятора (у нагревателя) В (т.е. те контакты, обозначенные в схеме как Т), то садим их на клеммы 1-2 регулятора.Питание регулятора 11-12 автоматик (поскольку макс нагрузка 16А) то и можно поставить 16А (хотя, если нагрузка - контактор, то... можно меньше), фаза-ноль тут по барабану к какой клемме будет подключена.питание на нагреватель подается по своей линии через автоматик S - красный проводок (фаза) на автоматик, синий (ноль) на N, желто-зеленый на РЕ (всегда). В случае, если нагреватель мощностью до 3,6кВт, можно обойтись без контактора, тогда соединяем клеммы нагревателя L1 и N к выходам 9-10 регулятора, желто-зеленый на РЕ :)Больше всего интересует вопрос синхронной работы вентиляторов и нагревателя. Пока не придумал, как входящую напругу регулировать (рис первый, клеммы 1), остается только посадить фазу на клемму 4 (нерегулируемый вход), запитываясь параллельно питанию нагревателя (а лучше через контакт контактора).Но это только приведет к включению вентиляторов с одной постоянной скоростью во время включения нагревателя, что не совсем интеллектуально. Как вариант, пустить вход питания 1 через диммер, тогда: включил диммер - вентиляторы закрутились с выставленной диммером скоростью - охладили термостат нагревателя - включился нагреватель - все счастливы. Отключил диммер - вся система выключилась.Как-то так. Может кто поправит меня.

dimp, спасибо. всю ночь морщил лоб, вроде понял и нарисовал (Схема1.GIF).Аникей Сковородкин, спасибо, вроде про то, что мне нужно). сегодня вечером подробно почитаю, сейчас уже сил не осталось).

post-28572-1270091460_thumb.gif

всю ночь морщил лоб

не даром морщил :D ну да так оно и есть, только с 9 контакта терморегулятора лучше не автомат поставить а какой нибуть выключатель, он и будет основным включателем (автоматы не очень под это подходят)

>>контактора К у вас нет, или он внутри нагревателя?>>В случае, если нагреватель мощностью до 3,6кВт, можно обойтись без контактора, тогда соединяем клеммы нагревателя L1 и N к выходам 9-10 регулятора, желто-зеленый на РЕ Контактора нету (ни внутри, ни вообще), нагреватель мощностью 0,6кВт. Правда чтоли можно вообще без контактора?!Вот, нарисовал, выкинув все "лишнее" (Схема2.GIF). Покритикуйте, пожалуйста.

post-28572-1270157400_thumb.gif

Аникей Сковородкин

Покритикуйте, пожалуйста

Вентиляторы как запускаются, от автоматика что ли?

Правда чтоли можно вообще без контактора

Так в интсрукции по установке написано, регулятор макс может выдать 3,6кВт

Вот, нарисовал, выкинув все "лишнее" (Схема2.GIF)

перехвалил я тебя :) с нагревателями нормально проходит, а вот чё ты сотворил с регулятором??? там же нарисовано - подай фазу и ноль (L1 и N) а с U1 и U2 снимай на вентилятор (ы)учитывая это

- нагреватель воздуха с регулятором температуры (нагреватель должен работать когда работают вентиляторы)

то фазу и ноль (вентиляторов) снимай параллельно нагревателю

>>Вентиляторы как запускаются, от автоматика что ли?Если вращать ручку регулировки на регуляторе скорости, то в одном из двух крайних положений она "защелкивается" (я думаю, что это и есть "выкл", правда, не уверен - т.к. судя по рисунку на ручке щелкает она при достижении максимума, а не минимума)>>с нагревателями нормально проходитЗря я, наверное, выключатель выкинул с нуля на нагревателе. Верну его, пожалуй. Только не пойму, зачем он на схеме был именно на нуле и на нагревателе, а не на фазе перед регулятором - вроде так логичней?>>там же нарисовано - подай фазу и ноль (L1 и N) а с U1 и U2 снимай на вентилятор (ы)Дело в том, что схема, нарисованная в инструкции (и, соответственно, на моем рисунке) не похожа на схему контактов, нарисованную на самом регуляторе. На регуляторе обозначено 5 контактов: L (вход), L (выход), N, N, стрелка с волной. Я больше склонен доверять рисунку на приборе)), поэтому и пририсовал фазу к пятому контакту (можно исрправить и пририсовать к квадратику со стрелочкой и волной, суть та же)). Ноль можно сразу на вентиляторы, регулятору он не нужен, наверное.>>то фазу и ноль (вентиляторов) снимай параллельно нагревателюВ смысле - с регулятора скорости вести фазу на регулятор температуры? А можно?И вот такой вопрос: может заменить два автомата (отдельный для вентилятора, отдельный для нагревателя) на один для всех? тогда если вентилятор выбъет автомат, то нагреватель тоже отключиться.

>>с регулятора скорости вести фазу на регулятор температуры?регулятор скорости меняет на выходе напряжение, а на входе регулятора температуры должно быть 230

>>охладили термостат нагревателяДатчика температуры нет. (Насколько я разобрался в регуляторе температуры - он может эксплуатироваться без датчика и без таймера, в режиме только ручной регулировки)

Аникей Сковородкин

Ослик, извини, я уже запутался в твоих вопросах, сформулируй покороче и поточнее. :)

лучше вставляй цитатами - тяжело разбираться в вопросах, слева внизу любого ответа (вопроса) выделяешь что хочешь цитировать и нажимаешь - цитата, она появляется внизу в быстром ответе

может заменить два автомата (отдельный для вентилятора, отдельный для нагревателя) на один для всех? тогда если вентилятор выбъет автомат, то нагреватель тоже отключиться.

если перестанут работать вентиляторы - у тебя на нагревателе есть ещё 2 аварийных датчика которые выключат нагреватели

Дело в том, что схема, нарисованная в инструкции (и, соответственно, на моем рисунке) не похожа на схему контактов, нарисованную на самом регуляторе

так не издевайся дай фотку

Ослик, извини, я уже запутался в твоих вопросах, сформулируй покороче и поточнее.

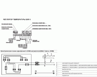
Вопрос короче:1)Есть ошибки в схеме (схема3.GIF)?Вопросы точнее:2)Можно повесить нагреватель и вентилятор на один автомат? или каждому нужен свой автомат? или без разницы?3)Можно повесить выключатель нагревателя на фазный провод, идущий на регулятор температуры? или нужно повесить его на нулевой провод идущий на нагреватель? или без разницы?

post-28572-1270327217_thumb.gif

Аникей Сковородкин

Схема выглядит нормальной.

Для публикации сообщений создайте учётную запись или авторизуйтесь

Вы должны быть зарегистрированным пользователем, чтобы оставить комментарий

Создать учетную запись

Зарегистрируйтесь в нашем сообществе.

Зарегистрироваться

Войти

Уже есть аккаунт? Войти в систему.

Войти

Или войти с помощью одного из сервисов



  • Наши рекомендации

    • Люк для кошек своими руками
      Разумеется давно придуманы и продаются специальные лючки для кошек, которые можно врезать в дверь, но мы ведь не ищем легких путей . Да и по зоомагазинам я не хожу, а "гугление" показало, что такие люки для кошек стоят относительно не дешево. В то же время под рукой были два "копеечных" сантехнических пластиковых лючка для ГКЛ. Все что оставалось, так это обломать фиксаторы крышек, что бы они открывались в обе стороны, ровно выпилить отверстие в двери, да вклеить симметрично эти лючки.

      То, что получилось видно на фото. Разумеется это не для тех, у кого "дизайнерский ремонт", но для обыкновенной квартиры вполне подходит. Недостатков не замечено, животных и людей всё устраивает .


      Реакцию форумчан на этот люк можно узнать в этой теме https://homemasters.ru/...me/?p=330637

        • Ого
      • 6 ответов
    • Кажись всё или строительный пылесос с тройной мультициклонной ступенью очистки
      Кажись всё или строительный пылесос с тройной мультициклонной ступенью очистки

        • Нравится
      • 16 ответов
    • Подходы к ремонту старых домов в России
      В России сотни тысяч старых домов, многие из которых являются не только свидетельством исторического наследия, но и отражением уникальной культуры и традиций страны. Эти дома, будь то деревянные избы или старинные каменные постройки, сохраняют в себе дух времени и рассказывают историю поколений.

      • 0 ответов
    • Газовые котлы: эффективное, экономичное и экологичное решение для отопления вашего дома
      В современном мире, где комфорт и устойчивость стали ключевыми аспектами повседневной жизни, выбор правильного источника отопления дома становится особенно актуальным. Газовые котлы, сочетая в себе преимущества эффективности, экономичности и экологичности, представляют собой одно из наиболее популярных решений для обеспечения комфортной температуры в жилых и коммерческих помещениях.

      • 0 ответов
    • Вторая жизнь дивана: искусство ремонта мягкой мебели своими руками
      В эпоху беспрерывного потребления и стремления к новизне, ремонт старой мягкой мебели своими руками приобретает не просто практическое, но и глубоко философское значение. Это действие как знак уважения к труду мастеров, которые вложили свое мастерство в создание диванов, кресел и пуфов, и как воплощение идеи устойчивого потребления. С каждым возвращенным к жизни предметом мебели, мы не только сохраняем историю и уникальность каждого изделия, но и противостоим бездумному обновлению интерьера за счет экологии и рационального использования ресурсов.

        • Нравится
      • 0 ответов
    • Аккумуляторные пилы  SCW и  SCM  22-A
      После того как провёл тесты, приступил к самому главному. Поменять диски местами, и проверить, как инструмент на это отреагирует, ведь они внешнее и походу внутренне практически одинаковые, пила по дереву конечно более навороченее, есть настройки угла наклона и можно на шину посадить через адаптер.

      • 4 ответа
    • Дома из сруба: идеальное сочетание уюта и прочности.
      Строительство собственного дома является важной вехой в жизни любого человека, поскольку оно знаменует собой важное событие. Выбор строительных материалов имеет огромное значение для создания теплого и функционального жилища. На протяжении всей древней истории древесина была распространенным материалом для строительства домов, что отразилось на различных культурах мира.

      • 0 ответов
    • Как построить теплый дом, не тратя лишних денег
      Строительство гостевого дома решил выделить в отдельную тему, так будет меньше путаницы.


        • Спасибо
        • Нравится
      • 259 ответов
×
×
  • Создать...

Важная информация

Мы разместили cookie-файлы на ваше устройство, чтобы помочь сделать этот сайт лучше. Вы можете изменить свои настройки cookie-файлов, или продолжить без изменения настроек.