Перейти к содержанию
Форумы о ремонте и строительстве

Хрущевка, Хитрая двушка, Варианты перепланировки

Оценить эту тему:


Рекомендуемые сообщения

Опубликовано

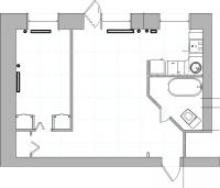
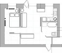
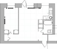
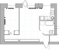
Здравствуйте!Что имеем на входе: двушка, хрущевка, ремонт так себе, нежелание мириться с существующим положением дел.Что хочется на выходе: двушка "заточеная" под себя и супругу, наиболее эргономичная в использовании, и чтобы не стыдно было в ней появиться на свет нашим будующим детям через полтора года.Вот такие наполеоновские планы.Лирика жизни: фото номер раз. План квартиры. Делал в визио, потом сохранил в формате JPG, так что не судите строго. Что страшит? Входная дверь металлическая времен царя-гороха открывается наружу, но вторая дверь - деревянная (со времен постройки, по-моему), открывается вовнутрь. Как видите ну нету тут прихожей. Еще минусы: Вход в ванну через кухню. Это что-то с чем-то. Мы шутим, что как настоящие аристократы можем после ванной принимать шампанское "не отходя от кассы". Но ведь поставить холодильник некуда. Ээээх...Фото номер два. Вариант "малой кровью". Думаю, что все понятно из картинки.Фото номер два. Вариант "ни у кого так нет, а у нас будет!". Жене нравится. Сегодян поковырял стенку в ванно (перегородку с залом, где планируется вставить дверь) - там кирпич + штукатурка. Остальные стены, как я понял - дранка + штукатурка.Ваши мнения. Слушаю, дискутирую, парирую.//пытаюсь разобраться с галереей. в дальнейшем планирую в форум вставлять ссылки с галерее.

post-50361-1289654672_thumb.jpg

post-50361-1289654683_thumb.jpg

post-50361-1289654691_thumb.jpg

Из всех вариантов боле-менее приемлем последнее фото. В противном случае будее ходить в туалет и ванную через прихожку, натыкаясь ночью на грязную обувь, коляски, зонты и т.п. + ко всему еще грязь разносить затем по всей квартире. Вообще все ходки по квартире по своим нуждам нужно проектировать чтобы не перескать прихожку. Хотя, судя по отечественным стандартным планировкам это задача порою просто невыполнимая.P.S.

и чтобы не стыдно было в ней появиться на свет нашим будующим детям через полтора года.

Я понял бы такую уверенность, если было бы через 7-8, ну 9 месяцев. А тут не один и через 1.5 года. Или какие-то новые технологии появились?

Много видел. Такой не видел.Брат Тото, выложь план, который жена больше всех одобрила. И размеры в студию.

Гы. Я в почти такой-же планировке 10 лет прожил на севере. Только санузел был совмещенный, вход со стороны прихожей.Батя затем немного модернизировал планировку, объединил кладовку с маленькой комнатой, немного увеличил прихожку.А балкона у нас небыло. Зато был колымский холодильник под окном кухни и деревянные ставни на окнах. :)

Из всех вариантов боле-менее приемлем последнее фото. В противном случае будее ходить в туалет и ванную через прихожку, натыкаясь ночью на грязную обувь, коляски, зонты и т.п. + ко всему еще грязь разносить затем по всей квартире. Вообще все ходки по квартире по своим нуждам нужно проектировать чтобы не перескать прихожку. Хотя, судя по отечественным стандартным планировкам это задача порою просто невыполнимая.

Это Вы не прихожу описали, а сарай какой то. Интересно как вообще Вы представляете, чтобы прихожая была отдельным помещением, в котором может быть только грязь. Типа зашли в некий сарайчик, бросили обувь грязную и вышли в горницу.Так что ли? Прихожая все равно соединяет разные комнаты и без этого никуда.

Это Вы не прихожу описали, а сарай какой то. Интересно как вообще Вы представляете, чтобы прихожая была отдельным помещением, в котором может быть только грязь. Типа зашли в некий сарайчик, бросили обувь грязную и вышли в горницу.Так что ли?

У вас воображение разыгралось, это не ко мне :)

Прихожая все равно соединяет разные комнаты и без этого никуда.

Не все равно и далеко не факт. Есть нормальные прихожки, в некоторых случаях может выручить "зонирование" пространства, ну а в самых запущенных никуда уж не деться.

Спасибо всем, кто откликнулся.Я же гвоорю - с планировкой мне очень "повезло". Подсказка о том, что в прихожке может находиться каляска - на вес золота. Опыт наличия детей у нас равен нулю. От сюда, кстати, появился вытекающий вопрос: в появившуюся прихожку хотели поставить угловой шкаф. Будем думать.Что касается размеров квартиры: выкладываю план БТИ. На моем плане в визио есть голубые квадраты. при распечатке они сильно выделяются, но делят план по 1 квадратному метру. В принципе так и занимаемся планированием: распечатываем и рисуем от руки.Спасибо и за подсказку о том, что вдоль стены можно воткнуть шкаф, как я понимаю из ГВЛ-а.

Я понял бы такую уверенность, если было бы через 7-8, ну 9 месяцев. А тут не один и через 1.5 года. Или какие-то новые технологии появились?

А я этот...как его...слон! ))

Не все равно и далеко не факт. Есть нормальные прихожки, в некоторых случаях может выручить "зонирование" пространства, ну а в самых запущенных никуда уж не деться.

Покажите хоть один пример, где прихожая как отдельная комната и в ней не пересекаются проходы из разных комнат.

Ещё вариант, с поправкой на масштаб.Сам прожил в такой квартире с раннего детства до института. Дико неудобно, когда вход в спальную комнату возле окна. Зал пересекается по диагонали и ничего путём не расставить. Поэтому предлагаю дверь переместить по стене влево, думаю так удобнее.

post-40814-1289782468_thumb.jpg

2VG :

post-19386-1289750621_thumb.jpg

И где тут прихожая как отдельная комната, что в ней не пересекаются проходы из других комнат?

Только на одном плане увидел, что остальные входы выходы просто в стороне от уличного

Покажите хоть один пример, где прихожая как отдельная комната и в ней не пересекаются проходы из разных комнат.

vg_ ну вот например у меня, мимо входной двери ну никак даже в саму прихожую(холл) идя в ванну или туалет заходить не надо

post-33280-1289758257_thumb.jpgмоя синенькая :) кстати и соседняя однушка так же имеет такую прихожку ( и даже более отделённую :)

И где тут прихожая как отдельная комната, что в ней не пересекаются проходы из других комнат?

Только на одном плане увидел, что остальные входы выходы просто в стороне от уличного

Слушай, дорогой, я сказал только то, что сказал и в подтверждение своих слов привел кучу планировок. Другое дело - это то, что нарисовалось у тебя в воображении, но с этим, как я уже заметил, не ко мне.

моя синенькая кстати и соседняя однушка так же имеет такую прихожку ( и даже более отделённую

Было бы классно тебе эту однушку прикупить и снести перегородку между вами и одну из входных дверей просто замонолитить.

Было бы классно тебе эту однушку прикупить и снести перегородку между вами и одну из входных дверей просто замонолитить.

olejonok и не говори блин было бы здорово но... цена вопроса при покупки (если успел бы) около 3 лимонов блин :(

но на верхних этажах двух ярусные квартирки

post-33280-1289761630_thumb.jpg

post-33280-1289761638_thumb.jpg

post-33280-1289761648_thumb.jpg

post-33280-1289761657_thumb.jpg

вот там уж есть где разгулятся :) но бабла не хватило :(

Извините ,что увёл тему в сторону каюсь :unsure:

olejonok и не говори блин было бы здорово но... цена вопроса при покупки (если успел бы) около 3 лимонов блин

Да ладно тогда, у тебя и так двушка огромная с большим почти квадратным залом.Кстати, вот сюда шкаф-купе с раздвижными дверями просится (типа гардеробная) :post-19386-1289762776_thumb.jpg

Для публикации сообщений создайте учётную запись или авторизуйтесь

Вы должны быть зарегистрированным пользователем, чтобы оставить комментарий

Создать учетную запись

Зарегистрируйтесь в нашем сообществе.

Зарегистрироваться

Войти

Уже есть аккаунт? Войти в систему.

Войти

Или войти с помощью одного из сервисов



  • Наши рекомендации

    • Подходы к ремонту старых домов в России
      В России сотни тысяч старых домов, многие из которых являются не только свидетельством исторического наследия, но и отражением уникальной культуры и традиций страны. Эти дома, будь то деревянные избы или старинные каменные постройки, сохраняют в себе дух времени и рассказывают историю поколений.

      • 0 ответов
    • Кажись всё или строительный пылесос с тройной мультициклонной ступенью очистки
      Кажись всё или строительный пылесос с тройной мультициклонной ступенью очистки

        • Нравится
      • 16 ответов
    • Аккумуляторные пилы  SCW и  SCM  22-A
      После того как провёл тесты, приступил к самому главному. Поменять диски местами, и проверить, как инструмент на это отреагирует, ведь они внешнее и походу внутренне практически одинаковые, пила по дереву конечно более навороченее, есть настройки угла наклона и можно на шину посадить через адаптер.

      • 4 ответа
    • Газовые котлы: эффективное, экономичное и экологичное решение для отопления вашего дома
      В современном мире, где комфорт и устойчивость стали ключевыми аспектами повседневной жизни, выбор правильного источника отопления дома становится особенно актуальным. Газовые котлы, сочетая в себе преимущества эффективности, экономичности и экологичности, представляют собой одно из наиболее популярных решений для обеспечения комфортной температуры в жилых и коммерческих помещениях.

      • 0 ответов
    • Дома из сруба: идеальное сочетание уюта и прочности.
      Строительство собственного дома является важной вехой в жизни любого человека, поскольку оно знаменует собой важное событие. Выбор строительных материалов имеет огромное значение для создания теплого и функционального жилища. На протяжении всей древней истории древесина была распространенным материалом для строительства домов, что отразилось на различных культурах мира.

      • 0 ответов
    • Вторая жизнь дивана: искусство ремонта мягкой мебели своими руками
      В эпоху беспрерывного потребления и стремления к новизне, ремонт старой мягкой мебели своими руками приобретает не просто практическое, но и глубоко философское значение. Это действие как знак уважения к труду мастеров, которые вложили свое мастерство в создание диванов, кресел и пуфов, и как воплощение идеи устойчивого потребления. С каждым возвращенным к жизни предметом мебели, мы не только сохраняем историю и уникальность каждого изделия, но и противостоим бездумному обновлению интерьера за счет экологии и рационального использования ресурсов.

        • Нравится
      • 0 ответов
    • Люк для кошек своими руками
      Разумеется давно придуманы и продаются специальные лючки для кошек, которые можно врезать в дверь, но мы ведь не ищем легких путей . Да и по зоомагазинам я не хожу, а "гугление" показало, что такие люки для кошек стоят относительно не дешево. В то же время под рукой были два "копеечных" сантехнических пластиковых лючка для ГКЛ. Все что оставалось, так это обломать фиксаторы крышек, что бы они открывались в обе стороны, ровно выпилить отверстие в двери, да вклеить симметрично эти лючки.

      То, что получилось видно на фото. Разумеется это не для тех, у кого "дизайнерский ремонт", но для обыкновенной квартиры вполне подходит. Недостатков не замечено, животных и людей всё устраивает .


      Реакцию форумчан на этот люк можно узнать в этой теме https://homemasters.ru/...me/?p=330637

        • Ого
      • 6 ответов
    • Как построить теплый дом, не тратя лишних денег
      Строительство гостевого дома решил выделить в отдельную тему, так будет меньше путаницы.


        • Спасибо
        • Нравится
      • 259 ответов
×
×
  • Создать...

Важная информация

Мы разместили cookie-файлы на ваше устройство, чтобы помочь сделать этот сайт лучше. Вы можете изменить свои настройки cookie-файлов, или продолжить без изменения настроек.