Перейти к содержанию
Форумы о ремонте и строительстве

Хрущевка, Хитрая двушка, Варианты перепланировки

Оценить эту тему:


Рекомендуемые сообщения

shatl, ты ещё подумай сколько сил, времени и денег потратил бы на ремонт присоединенной квартиры ;) А так уже поди живешь и радуешься :) Пивко вон с olejonok-ом попиваешь :)

Пивко вон с olejonok-ом попиваешь

Я то как раз еще ремонтируюсь. "Пивко" так сказать у меня в планах на весну-лето :)

да мужики, живу ,но ещё во всю ремонт (Элис видел) про пивко даж не заикаюсь :) непонятны сроки окончания ,задумок много - денег мало,вот и тяну потихоньку

Во-во, у меня так же. Конца ещё даже и не видно. Какое уж там на весну-лето Эх-хе-хе :) Ну ничего, на пенсии отдохнем ;)

Хе, да мы все оказывается в запарках и задумках потихоньку ремонтируем свои берложки :) чтобы потом уж как-следует и с комфортом отдыхать :)

А я пивко счас потягиваю, так как забил на это дело, ремонт перерос в нечто непонятное, во первых сроки уже давно пересекли все желания, как и средства, которые перевалили первоначальные расчёты уже в три раза как минимум, короче ремонт это нечто, чтоб так я ещё, да не в жизнь...

(изменено)

Ещё вариант, с поправкой на масштаб.Сам прожил в такой квартире с раннего детства до института. Дико неудобно, когда вход в спальную комнату возле окна. Зал пересекается по диагонали и ничего путём не расставить.

Fomins, спасибо!Дествительно зал, пересекаемый по диаганали - жудко неудобный.Твой вариант интересен, но с одним условием: если нет маленьких детей. А они ожидаются. Так что сделать вторую комнату спальней, а не детскй в планы не входит. Твой вариант очень удобен для семьи из 2 человек.

А так?

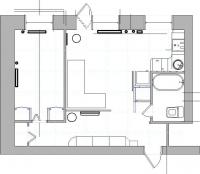
Bagis, Спасибо за труды. Но твой вариант скорее нам не подходит. Мы решили, что выделять целый "коридор" для каляски - это сильно "жирно". Ведь каляска - это временно. Но в твоей планировке есть несомненный плюс - есть куда воткнуть диван угловой.Вот небольшие переделки в моем плане, опираясь на ваши советы.Слева от входной двери строение из ГВЛ-а (синим на плане обозначил все постройки из ГВЛ-а). Во первых оно необходимо, чтобы прикрыть счетчик элекрический. Во вторых по задумке (эээх, чтож я не как бытя инженер технолог и чертить красиво и понятно не умею...) это строение будет иметь нишу, на которую можно будет оставлять ключи от дома, телефон, мелочи.Затем левее на плане - это будет стоять шкаф глубиной 40-42 см, шитиной 3*80 см. Внизу будут ящики, как в комоде, что будет выше - еще не знаем. Ванная. Почему именно так? Да потому что хаболеть клаустрофобией от маленькой ванны мы не боимся. туда в аккурат влазиют унитаз, ванна на 150 и машинка 60*40см.Строения из ГВЛ-а в районе кухни. Ниша для холодильника. Возможно она будет ближе к окну. Но ставить холодильник в одну линию с кухонным гарнитуром желания нет. Уж сильно маленькая кухня. по обратную сторону ниши холодильника - встроенный шкаф. Там так же будут выдвигающиеся ящики и открывающиеся дверки. ЗАтем есть продолжение стены из ГВЛ-а. Оно необходимо, чтобы человек, сидящий на унитазе при случайно открытой двери санузла не был выставлен на всеобщее обозрение.На получившейся перегородке будет повешан телевизор.Что касается детской. Там будет 2 шкафа - наваяю из ГВЛ-а. Дверки из ДСП.Шкафчик, оставшейся от "гардеробной" необходим, т.к. вещи надо будет куданить складывать, а места мало.Пожалуй все. Но остается определенное НО во всем этом. Хочется угловой диван - его не куда ставить. И трюмо с зеркалом жене, чтобы приводить себя в порядок, тоже не куда поставить.

post-50361-1289784238_thumb.jpg

Изменено пользователем to-to

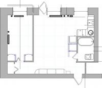
Нужна дополнительная перегородка, лучше "прозрачная", в виде всевозможных полочек, можно и не до потолка:

post-40814-1289852188_thumb.jpg

Строения из ГВЛ-а в районе кухни. Ниша для холодильника. Возможно она будет ближе к окну. Но ставить холодильник в одну линию с кухонным гарнитуром желания нет. Уж сильно маленькая кухня. по обратную сторону ниши холодильника - встроенный шкаф. Там так же будут выдвигающиеся ящики и открывающиеся дверки. ЗАтем есть продолжение стены из ГВЛ-а. Оно необходимо, чтобы человек, сидящий на унитазе при случайно открытой двери санузла не был выставлен на всеобщее обозрение.

На получившейся перегородке будет повешан телевизор.

olejonok, дейстительно телевизор планируется (как я и писал) повешать на стенку напротив дивана.fomins, спасибо. Это идея. покажу супруге. Думаю, что ей должен понравиться такой вариант. Для всевозможных поделок, безделушек, которые делают дом теплее (по мнению женщин). придумаю какой-нибудь стелаж из ДСП.полу_офф: Кстати, старожилы, подскажите такую вещь. Моя любимая гвоорит, что желает, чтобы я в стенку из ГВЛ "вмонтировал" Стакло, которая она сама хочет задерировать. Для декаорации, точнее матирования стекла планирует использовать пасту одного производителя. Не буду здесь размещать название, дабы не пиарить кого-либо. Но есть НО - 200 грамм этой чудо-пасты стоит почти тысячу. Может подскажите в личку более "простой" и доступный способ матирования стекла?

post-50361-1289732498_thumb.jpg

Для публикации сообщений создайте учётную запись или авторизуйтесь

Вы должны быть зарегистрированным пользователем, чтобы оставить комментарий

Создать учетную запись

Зарегистрируйтесь в нашем сообществе.

Зарегистрироваться

Войти

Уже есть аккаунт? Войти в систему.

Войти

Или войти с помощью одного из сервисов



  • Наши рекомендации

    • Дома из сруба: идеальное сочетание уюта и прочности.
      Строительство собственного дома является важной вехой в жизни любого человека, поскольку оно знаменует собой важное событие. Выбор строительных материалов имеет огромное значение для создания теплого и функционального жилища. На протяжении всей древней истории древесина была распространенным материалом для строительства домов, что отразилось на различных культурах мира.

      • 0 ответов
    • Вторая жизнь дивана: искусство ремонта мягкой мебели своими руками
      В эпоху беспрерывного потребления и стремления к новизне, ремонт старой мягкой мебели своими руками приобретает не просто практическое, но и глубоко философское значение. Это действие как знак уважения к труду мастеров, которые вложили свое мастерство в создание диванов, кресел и пуфов, и как воплощение идеи устойчивого потребления. С каждым возвращенным к жизни предметом мебели, мы не только сохраняем историю и уникальность каждого изделия, но и противостоим бездумному обновлению интерьера за счет экологии и рационального использования ресурсов.

        • Нравится
      • 0 ответов
    • Аккумуляторные пилы  SCW и  SCM  22-A
      После того как провёл тесты, приступил к самому главному. Поменять диски местами, и проверить, как инструмент на это отреагирует, ведь они внешнее и походу внутренне практически одинаковые, пила по дереву конечно более навороченее, есть настройки угла наклона и можно на шину посадить через адаптер.

      • 4 ответа
    • Люк для кошек своими руками
      Разумеется давно придуманы и продаются специальные лючки для кошек, которые можно врезать в дверь, но мы ведь не ищем легких путей . Да и по зоомагазинам я не хожу, а "гугление" показало, что такие люки для кошек стоят относительно не дешево. В то же время под рукой были два "копеечных" сантехнических пластиковых лючка для ГКЛ. Все что оставалось, так это обломать фиксаторы крышек, что бы они открывались в обе стороны, ровно выпилить отверстие в двери, да вклеить симметрично эти лючки.

      То, что получилось видно на фото. Разумеется это не для тех, у кого "дизайнерский ремонт", но для обыкновенной квартиры вполне подходит. Недостатков не замечено, животных и людей всё устраивает .


      Реакцию форумчан на этот люк можно узнать в этой теме https://homemasters.ru/...me/?p=330637

        • Ого
      • 6 ответов
    • Как построить теплый дом, не тратя лишних денег
      Строительство гостевого дома решил выделить в отдельную тему, так будет меньше путаницы.


        • Спасибо
        • Нравится
      • 259 ответов
    • Газовые котлы: эффективное, экономичное и экологичное решение для отопления вашего дома
      В современном мире, где комфорт и устойчивость стали ключевыми аспектами повседневной жизни, выбор правильного источника отопления дома становится особенно актуальным. Газовые котлы, сочетая в себе преимущества эффективности, экономичности и экологичности, представляют собой одно из наиболее популярных решений для обеспечения комфортной температуры в жилых и коммерческих помещениях.

      • 0 ответов
    • Подходы к ремонту старых домов в России
      В России сотни тысяч старых домов, многие из которых являются не только свидетельством исторического наследия, но и отражением уникальной культуры и традиций страны. Эти дома, будь то деревянные избы или старинные каменные постройки, сохраняют в себе дух времени и рассказывают историю поколений.

      • 0 ответов
    • Кажись всё или строительный пылесос с тройной мультициклонной ступенью очистки
      Кажись всё или строительный пылесос с тройной мультициклонной ступенью очистки

        • Нравится
      • 16 ответов
×
×
  • Создать...

Важная информация

Мы разместили cookie-файлы на ваше устройство, чтобы помочь сделать этот сайт лучше. Вы можете изменить свои настройки cookie-файлов, или продолжить без изменения настроек.