Перейти к содержанию
Форумы о ремонте и строительстве

Разобраться с электропроводкой

Оценить эту тему:


Рекомендуемые сообщения

Опубликовано (изменено)

Делаю ремонт в квартире и хочу попутно разобраться с проводкой. Есть фотография того, что в квартире подведено сейчас.Имеется сейчас:1) Кухня - варочная поверхность 7кВт, духовой шкаф 3,5кВт, посудомойка (макс. 2,5кВт), чайник 2кВт, микроволновка 1,5кВт, холодильник 0,3кВт, кофемашина 2,0кВт, вытяжка 0,3 кВт + (добавится после ремонта): тёплый пол на кухне 1,2кВт, телевизор 0,4кВт, измельчитель 0,7 кВт, мясорубка 2кВт2) Ванная - появится розетка для фена3) В отдельной комнате будет организована постирочная, где будет установлено 2 розетки: стиральная машина(0,17кВт*ч) и пылесос (2кВт)4) В большой комнате - паровая машина 2,5кВт + сплит-система (мощность в режиме охлаждения 2,5кВт, ощность в режиме обогрева 3,2кВт)

post-81137-1366649321_thumb.jpeg

Изменено пользователем ZloyZloy

стиральная машина(0,17кВт*ч)

Вряд ли так мало, но это ладно, вопрос то в чём?
(изменено)

Вопрос в том, что нужно добавить или вообще переделать в этом щите, чтобы всё то, что добавится работало как положено.

По стиралке вот ссылка с указанием потребляемой мощности http://market.yandex.ru/m....0&hid=90566

Изменено пользователем ZloyZloy

Вопрос в том, что нужно добавить или вообще переделать в этом щите

если готовы потратится, то выкинуть иэк и поставить по приличнее автоматы,

Подписываемся на тему День за днём, моя работа https://homemasters.ru/...esta-raboty/ и на мой инстарам https://www.instagram.c...gda35remont/

Принимаю заказы на мебель из слэбов

 

Выкинуть готов, есть возможность купить автоматы ABB, Legrand и т.п. по закупочной цене напрямую у дилера.

тогда надо рисовать щиток заново, и разобраться куда какие кабеля идут и какого сечениябез этих данных пальцем в небо только тыкать

Подписываемся на тему День за днём, моя работа https://homemasters.ru/...esta-raboty/ и на мой инстарам https://www.instagram.c...gda35remont/

Принимаю заказы на мебель из слэбов

 

ZloyZloy

выключай по очереди автоматы и смотри чего и где гаснет

Имеется сейчас

Какое-то у вас тут масло маслянное, и хренового качества... Уточните вводной автомат у вас какой, на этаже стоит (на сколько ампер), и видимо ещё есть где-то щиток/автомат (белый провод с правой фазы от вводного УЗО уходит сразу куда-то за щит).

Сегодня вечером все входные данные соберу и выложу в сеть. Сделаю фотографии того, что сейчас есть.

там на килограммы надо помножить

максимальная загрузка 6 кг, значит 6*0,17 получим 1,02кВт

Не, это не мощность, а энергопотребление за цикл стирки. То есть не кВт, а кВт*ч.А мощность у нее около 2 кВт.

Ну, вы в общем кучеряво живёте - имеете 3-х фазное питание. Судя по всему, дом "повышенной комфортности" :)Хотя по наличействующему наполнению электрощитов (производства Китая и Украины), об этом не скажешь...Есть PE ("заземление"), это хорошо.Для нормального электропроекта, хотя бы у себя на бумаге, нужно иметь план квартиры с желаемым геометрическим расположением точек освещения, розеток и стационарного оборудования.На базе его нарисовать однолинейную эл. схему и скомплектовать её нормальными ПКИ и материалами.Потом реализация - долбёжка, укладка/подвеска кабелей, комплектование и обвязка щитов, установка распред и установочных коробок, монтаж эл.фурнитуры и пр. оборудования.

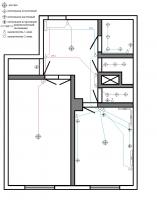
(изменено)

Накидал схематично от руки разводку в квартире.Хочу узнать, есть ли ошибки?P.S. Прошу прощения за такие чертежи. В квартире не живу, а на работе программы нет.

post-81137-1366803109_thumb.jpg

post-81137-1366803128_thumb.jpg

Изменено пользователем ZloyZloy

Прошу прощения за такие чертежи.

Нам тут конечно ничего не понятно, но раз вам понятно - это хорошо. На группы разбили - замечательно. Теперь на базе этого рисунка сделайте однолинейную схему. Что-то типа этого : https://homemasters.ru/fo...sy/?p=75751 

https://homemasters.ru/fo...ka/?p=154160

https://homemasters.ru/fo...ki/?p=210260

 Учитывайте, что питание 3-х фазное - мощность по фазам должна быть согласована чтоб не было перекосов нуля вцелом по дому. У вас очевидно предполагаются 3-х фазные потребители, при выборе техники это учитывайте.

(изменено)

На три фазы был проложен 5-ти жильный кабель и были организованы 2 розетки в цоколе кухни, куда подключалась варочная поверхность и духовой шкаф (духовка подключается обычной вилкой и расчитана на 220). Больше трёхфазных потребителей в квартире не было и предусмотрено не будет.

post-81137-1366868919_thumb.jpg

Изменено пользователем ZloyZloy

По УЗО запутался....

По узо как раз всё в пределах нормы. А вот зачем на 9 группе кабель 3х4, после 16-ти амперного автомата мне не ясно :)Дальше по плите. Если она трёхфазная, то и автомат можно меньше поставить (20А), и кабель взять 5х2.5. Хотя, конечно, запас карман не тянет и 4 квадрата круче :)
(изменено)

А если переиграть схему по УЗО и поступить так?

post-81137-1366888134_thumb.jpg

post-81137-1366888188_thumb.jpg

post-81137-1366888193_thumb.jpg

Изменено пользователем ZloyZloy

Для публикации сообщений создайте учётную запись или авторизуйтесь

Вы должны быть зарегистрированным пользователем, чтобы оставить комментарий

Создать учетную запись

Зарегистрируйтесь в нашем сообществе.

Зарегистрироваться

Войти

Уже есть аккаунт? Войти в систему.

Войти

Или войти с помощью одного из сервисов



  • Наши рекомендации

    • Кажись всё или строительный пылесос с тройной мультициклонной ступенью очистки
      Кажись всё или строительный пылесос с тройной мультициклонной ступенью очистки

        • Нравится
      • 16 ответов
    • Дома из сруба: идеальное сочетание уюта и прочности.
      Строительство собственного дома является важной вехой в жизни любого человека, поскольку оно знаменует собой важное событие. Выбор строительных материалов имеет огромное значение для создания теплого и функционального жилища. На протяжении всей древней истории древесина была распространенным материалом для строительства домов, что отразилось на различных культурах мира.

      • 0 ответов
    • Аккумуляторные пилы  SCW и  SCM  22-A
      После того как провёл тесты, приступил к самому главному. Поменять диски местами, и проверить, как инструмент на это отреагирует, ведь они внешнее и походу внутренне практически одинаковые, пила по дереву конечно более навороченее, есть настройки угла наклона и можно на шину посадить через адаптер.

      • 4 ответа
    • Газовые котлы: эффективное, экономичное и экологичное решение для отопления вашего дома
      В современном мире, где комфорт и устойчивость стали ключевыми аспектами повседневной жизни, выбор правильного источника отопления дома становится особенно актуальным. Газовые котлы, сочетая в себе преимущества эффективности, экономичности и экологичности, представляют собой одно из наиболее популярных решений для обеспечения комфортной температуры в жилых и коммерческих помещениях.

      • 0 ответов
    • Как построить теплый дом, не тратя лишних денег
      Строительство гостевого дома решил выделить в отдельную тему, так будет меньше путаницы.


        • Спасибо
        • Нравится
      • 259 ответов
    • Люк для кошек своими руками
      Разумеется давно придуманы и продаются специальные лючки для кошек, которые можно врезать в дверь, но мы ведь не ищем легких путей . Да и по зоомагазинам я не хожу, а "гугление" показало, что такие люки для кошек стоят относительно не дешево. В то же время под рукой были два "копеечных" сантехнических пластиковых лючка для ГКЛ. Все что оставалось, так это обломать фиксаторы крышек, что бы они открывались в обе стороны, ровно выпилить отверстие в двери, да вклеить симметрично эти лючки.

      То, что получилось видно на фото. Разумеется это не для тех, у кого "дизайнерский ремонт", но для обыкновенной квартиры вполне подходит. Недостатков не замечено, животных и людей всё устраивает .


      Реакцию форумчан на этот люк можно узнать в этой теме https://homemasters.ru/...me/?p=330637

        • Ого
      • 6 ответов
    • Подходы к ремонту старых домов в России
      В России сотни тысяч старых домов, многие из которых являются не только свидетельством исторического наследия, но и отражением уникальной культуры и традиций страны. Эти дома, будь то деревянные избы или старинные каменные постройки, сохраняют в себе дух времени и рассказывают историю поколений.

      • 0 ответов
    • Вторая жизнь дивана: искусство ремонта мягкой мебели своими руками
      В эпоху беспрерывного потребления и стремления к новизне, ремонт старой мягкой мебели своими руками приобретает не просто практическое, но и глубоко философское значение. Это действие как знак уважения к труду мастеров, которые вложили свое мастерство в создание диванов, кресел и пуфов, и как воплощение идеи устойчивого потребления. С каждым возвращенным к жизни предметом мебели, мы не только сохраняем историю и уникальность каждого изделия, но и противостоим бездумному обновлению интерьера за счет экологии и рационального использования ресурсов.

        • Нравится
      • 0 ответов
×
×
  • Создать...

Важная информация

Мы разместили cookie-файлы на ваше устройство, чтобы помочь сделать этот сайт лучше. Вы можете изменить свои настройки cookie-файлов, или продолжить без изменения настроек.