Перейти к содержанию
Форумы о ремонте и строительстве

Прошу оценить схему

Оценить эту тему:


Рекомендуемые сообщения

Опубликовано

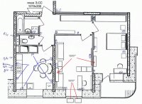
Всем доброго времени суток!Народ, помогайте. Дано: Двушка, новостройка, электрика ограничивается щитком на площадке, вход 50А, скорее всего 6мм (уточню).Плита разумеется электрическая.Читал форум, много думал.Набросал потребителей на план квартиры (пока без света), набросал схему, взяв из стандартных.Щиток планирую слева как входишь в квартиру, на 24 элемента.Экономить не собираюсь, буду ставить ABB или Legrand.Свет везде 3х1,5, розетки 3х2,5, варочная 3х6, ничего оригинального, вести под стяжкой..Холодильник пока не буду вести отдельно, пусть к общим розеткам будет...post-87286-1374233998_thumb.gifpost-87286-1374234004_thumb.jpg

Автоматы на розетки комнат откуда будут питаться? :)Не написан номинал 3 и 4 узо.Бойлер со встроенным узо? Если нет, то и его лучше через узо (или диф) пустить.П.С. Сейчас уже 19 мест. КМК, щиток на 24 позиции будет тесноват. Если место позволяет, то лучше взять попросторнее - легче будет работать.

пока не видно что

Экономить не собираюсь

:) комнаты и мокрые помещения надо делить на разные узо.

Автоматы на розетки комнат откуда будут питаться?

Пардон, не дорисовал :) В аттаче.

Не написан номинал 3 и 4 узо.

Дык вот не знаю, какие ставить...

Бойлер со встроенным узо? Если нет, то и его лучше через узо (или диф) пустить.

О! Спасибо добрый человек, теперь я знаю, что бывают бойлеры с УЗО :) Будем считать, что с УЗО.

Если место позволяет

Вот с этим проблема. Щиток-то уже куплен... :noddle: Будем ориентироваться на 24!

надо делить на разные узо.

Учитывая считок на 24 мест - думаю даже на диффы. Номинал какой рекомендуете?post-87286-1374257348_thumb.jpg

В аттаче.

Тогда совсем плохо. На 40-ка амперном узо и трёх кухонных много, а тут ещё два нарисовались :) Это узо, на 40, отдать на комнатные розетки, а на кухню поставить 50/30.

Дык вот не знаю, какие ставить...

Учитывая тесноту щитка, узо на плиту можно вообще не ставить, а на ванную поставить 25/10. Заменить автомат с 16 на 13 + на это же узо повесить бойлер, потому как встроенное узо, обычно, кака :rolleyes: , так же заменив автомат с 16 но уже на 10.

См. аттач.С УЗО-3 на автоматы розеток комнат каким сечением провод кидать? 2,5? или надо 4?Тот же вопрос про УЗО-4..У меня получается 19 мест.post-87286-1374299623_thumb.jpg

Если подключать будешь каждый автомат отдельным проводом непосредственно от узо (с 4-ым узо это совсем простой), то 2,5, если же планируются перемычки, то 4. Но чтоб отдельно ещё и 4-ку не покупать, можно взять обрезки от имеющейся 6-ки.

какое расстояние от подъездного щита до квартирного?это я к тому - нахрена ещё один автомат на 50А после узо в подъезде?узо 4 - ни у ABB ни у легранда нет 25А на 10мА, бойлер в туалете будет или в ванной? вводной самый первый автомат (на лестничном щитке) поставь двухполюсной

ни у ABB ни у легранда

Кстати да, спасибо что напомнил.Но если это не критично и можно использовать узо других марок, то такое узо есть у шнайдера, а значит и у мерин герин (тоже самое, но, возможно, дешевле) + ещё у кого-то менее брендового.
какое расстояние от подъездного щита до квартирного

10 метров

нахрена ещё один автомат на 50А после узо в подъезде

Ну как бы вводной автомат, что бы выключил и всё, не ходить за дверь... нет?

узо 4 - ни у ABB ни у легранда нет 25А на 10мА

Вот тут согласен полностью, ломаю голову.

да и УЗО2 50А30mA тоже не могу подобрать пока.

бойлер в туалете будет или в ванной?

В туалете, около стояка ХВС, ГВС, канализации.

вводной самый первый автомат (на лестничном щитке) поставь двухполюсной

Вот это будет наверное самое интересное дело...

да и УЗО2 50А30mA тоже не могу подобрать пока.

Тогда возьми 63А 30мА. Это ещё и лучше :)

при хорошем КЗ отрабатывать будут оба, и ходить придётся включать

на бойлер - можно с того же кухонного узо запитать

На ванную стиралка 2кВ + фен 2кВ, 10амперного автомата маловато будет.

Да, пожалуй. Поставлю 16. А бойлеру хватит и 10, я смотрю они в основном до 2 кВт, 1,6 или 1,8, если брать накопительный литров на 50-60.

Для публикации сообщений создайте учётную запись или авторизуйтесь

Вы должны быть зарегистрированным пользователем, чтобы оставить комментарий

Создать учетную запись

Зарегистрируйтесь в нашем сообществе.

Зарегистрироваться

Войти

Уже есть аккаунт? Войти в систему.

Войти

Или войти с помощью одного из сервисов



  • Наши рекомендации

    • Люк для кошек своими руками
      Разумеется давно придуманы и продаются специальные лючки для кошек, которые можно врезать в дверь, но мы ведь не ищем легких путей . Да и по зоомагазинам я не хожу, а "гугление" показало, что такие люки для кошек стоят относительно не дешево. В то же время под рукой были два "копеечных" сантехнических пластиковых лючка для ГКЛ. Все что оставалось, так это обломать фиксаторы крышек, что бы они открывались в обе стороны, ровно выпилить отверстие в двери, да вклеить симметрично эти лючки.

      То, что получилось видно на фото. Разумеется это не для тех, у кого "дизайнерский ремонт", но для обыкновенной квартиры вполне подходит. Недостатков не замечено, животных и людей всё устраивает .


      Реакцию форумчан на этот люк можно узнать в этой теме https://homemasters.ru/...me/?p=330637

        • Ого
      • 6 ответов
    • Аккумуляторные пилы  SCW и  SCM  22-A
      После того как провёл тесты, приступил к самому главному. Поменять диски местами, и проверить, как инструмент на это отреагирует, ведь они внешнее и походу внутренне практически одинаковые, пила по дереву конечно более навороченее, есть настройки угла наклона и можно на шину посадить через адаптер.

      • 4 ответа
    • Вторая жизнь дивана: искусство ремонта мягкой мебели своими руками
      В эпоху беспрерывного потребления и стремления к новизне, ремонт старой мягкой мебели своими руками приобретает не просто практическое, но и глубоко философское значение. Это действие как знак уважения к труду мастеров, которые вложили свое мастерство в создание диванов, кресел и пуфов, и как воплощение идеи устойчивого потребления. С каждым возвращенным к жизни предметом мебели, мы не только сохраняем историю и уникальность каждого изделия, но и противостоим бездумному обновлению интерьера за счет экологии и рационального использования ресурсов.

        • Нравится
      • 0 ответов
    • Газовые котлы: эффективное, экономичное и экологичное решение для отопления вашего дома
      В современном мире, где комфорт и устойчивость стали ключевыми аспектами повседневной жизни, выбор правильного источника отопления дома становится особенно актуальным. Газовые котлы, сочетая в себе преимущества эффективности, экономичности и экологичности, представляют собой одно из наиболее популярных решений для обеспечения комфортной температуры в жилых и коммерческих помещениях.

      • 0 ответов
    • Подходы к ремонту старых домов в России
      В России сотни тысяч старых домов, многие из которых являются не только свидетельством исторического наследия, но и отражением уникальной культуры и традиций страны. Эти дома, будь то деревянные избы или старинные каменные постройки, сохраняют в себе дух времени и рассказывают историю поколений.

      • 0 ответов
    • Дома из сруба: идеальное сочетание уюта и прочности.
      Строительство собственного дома является важной вехой в жизни любого человека, поскольку оно знаменует собой важное событие. Выбор строительных материалов имеет огромное значение для создания теплого и функционального жилища. На протяжении всей древней истории древесина была распространенным материалом для строительства домов, что отразилось на различных культурах мира.

      • 0 ответов
    • Кажись всё или строительный пылесос с тройной мультициклонной ступенью очистки
      Кажись всё или строительный пылесос с тройной мультициклонной ступенью очистки

        • Нравится
      • 16 ответов
    • Как построить теплый дом, не тратя лишних денег
      Строительство гостевого дома решил выделить в отдельную тему, так будет меньше путаницы.


        • Спасибо
        • Нравится
      • 240 ответов
×
×
  • Создать...

Важная информация

Мы разместили cookie-файлы на ваше устройство, чтобы помочь сделать этот сайт лучше. Вы можете изменить свои настройки cookie-файлов, или продолжить без изменения настроек.