Перейти к содержанию
Форумы о ремонте и строительстве

Возможна ли такая перепланировка?

Оценить эту тему:


Рекомендуемые сообщения

Опубликовано

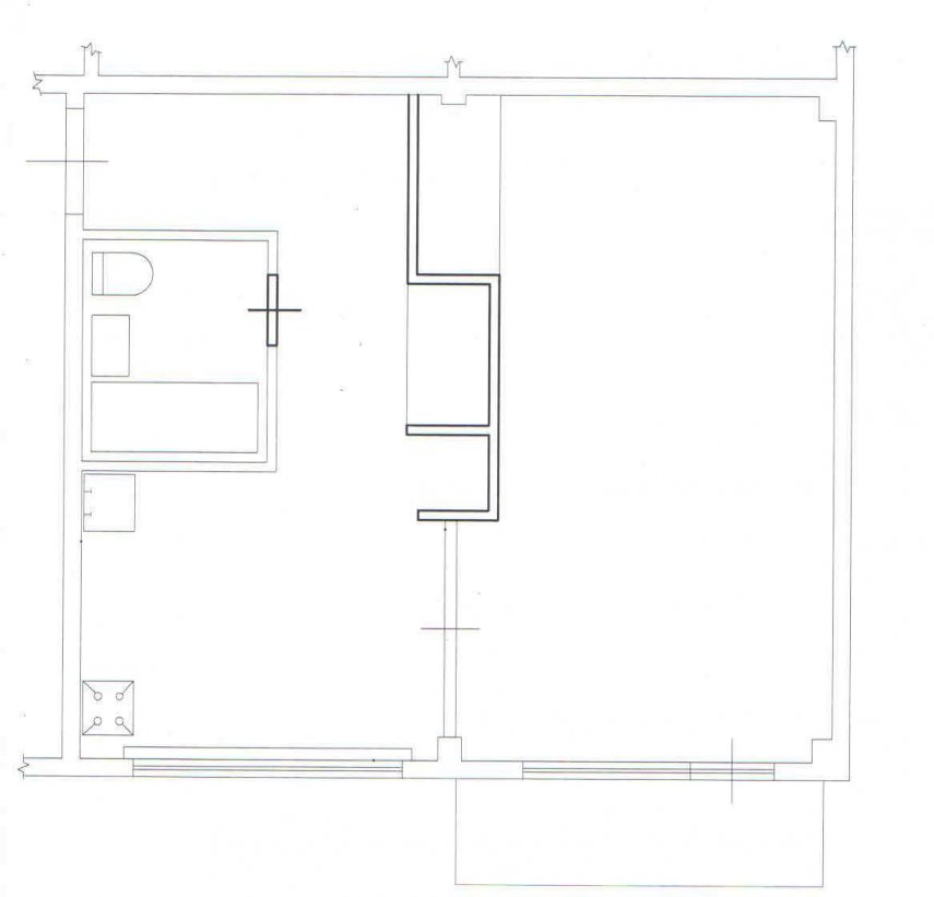
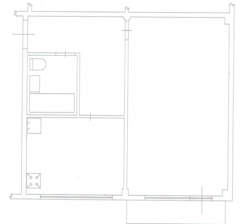
Доброго дня МАСТЕРАМ ремонтного искусства! Интересует возможность снести в "хрущёвке" НЕ несущую перегородку (гипс) и поставить вместо неё шкаф. План квартиры реальный и план с желаемой перепланировкой прилагаю ниже. И ещё вопрос: из каких материалов лучше изготовить корпус этого шкафа, из гипсокартона или из ЛДСП? А может ещё какие новые материалы появились нынче? Заранее благодарен за отклики!

План 1.jpg

План 11.jpg

8 часов назад, barseg сказал(а):

Интересует возможность снести в "хрущёвке" НЕ несущую перегородку (гипс) и поставить вместо неё шкаф

Возможно.

 

8 часов назад, barseg сказал(а):

А может ещё какие новые материалы появились нынче

Да никаких особо новых не появилось

Не забываем установить аватар, заполнить профиль, и создать свой блог

https://homemasters.ru/

1 час назад, KGB сказал(а):

Возможно.

 

Да никаких особо новых не появилось

Выясняется что нельзя. Даже холодильник в сторону комнаты углублять против правил. Получается что я кухню (мокрую зону) над жилой комнатой соседей разместить хочу. Разве не так?

Нежилое над жилым. Как бы да.

Но не капитальную стену возвести можете, фактически это шкаф который стоит у стенки жилой комнаты, но двери открываются в сторону кухни,  такой вот оригинальный шкаф. В общем вы поняли )

Подписываемся на тему День за днём, моя работа https://homemasters.ru/...esta-raboty/ и на мой инстарам https://www.instagram.c...gda35remont/

Принимаю заказы на мебель из слэбов

 

21 минуту назад, barseg сказал(а):

Выясняется что нельзя. Даже холодильник в сторону комнаты углублять против правил. Получается что я кухню (мокрую зону) над жилой комнатой соседей разместить хочу. Разве не так?

Не очень понял, если честно. Вы имеете ввиду нишу для холодильника сделать из ..ЛДСП например? 

32 минуты назад, barseg сказал(а):

Выясняется что нельзя.

Постой! Тебе вариант №2 нравится? А где там выведение мокрых зон? Сантехника на месте. Проход в другом и чуток поширше. Проблемы могут быть при продаже неузаконенной перепланировки. И то, если покупателю позарез понадобится кадастровый план. А если покупателя всё устраивает и план ему не нужен - никаких проблем. А не нравится покупателю - другому понравится. 

Другое дело -  я бы отделил комнату от кухни двух или четырёх створчатой дверью. + если покумекать, газовую плиту, например, подвинуть к мойке, в районе освободившегося угла бвстрораскладное спальное место можно устроить.

1 минуту назад, steamroller сказал(а):

Постой! Тебе вариант №2 нравится? А где там выведение мокрых зон? Сантехника на месте. Проход в другом и чуток поширше. Проблемы могут быть при продаже неузаконенной перепланировки. И то, если покупателю позарез понадобится кадастровый план. А если покупателя всё устраивает и план ему не нужен - никаких проблем. А не нравится покупателю - другому понравится. 

Другое дело -  я бы отделил комнату от кухни двух или четырёх створчатой дверью. + если покумекать, газовую плиту, например, подвинуть к мойке, в районе освободившегося угла бвстрораскладное спальное место можно устроить.

Ну вычитал вот, что кухня считается мокрой зоной и передвигать её стену в сторону жилой площади запрещается. А вот насчёт четырёхстворчатых дверей... спасибо за совет. Надо подумать.

Смотрю в интернете фото дизайна однокомнатных квартир и диву даюсь, КРОВАТЬ, ДИВАН, КРЕСЛО и СТОЛИК ЖУРНАЛЬНЫЙ. И никаких шкафов для одежды. Куда же они шмотки свои складывают? В кровать? Смешно, ей Богу!

17 минут назад, barseg сказал(а):

Куда же они шмотки свои складывают?

А я про что?

blob.thumb.png.e7b3b521bd7afff0229a0d3b9aa8c341.png

Коричневым - площадь расширения кухни в сторону комнаты. Если ты так переживаешь, сдвинь вверх горизонтальную линию на 400 мм. И кухня уже не наезжает :) 

1 час назад, barseg сказал(а):

Даже холодильник в сторону комнаты углублять против правил

А поставить холодильник в комнате Вам тоже запрещают?
 

1 час назад, barseg сказал(а):

Получается что я кухню (мокрую зону) над жилой комнатой соседей разместить хочу.

Это в каком месте? Я так понимаю нишей под холодильник? Так напишите, что это кладовка. А то, что вы потом в кладовку холодильник засунули, кого волнует.

36 минут назад, barseg сказал(а):

что кухня считается мокрой зоной

Тут вопрос неоднозначно, вся ли кухна считается мокрой зоной или только ее часть.

Не забываем установить аватар, заполнить профиль, и создать свой блог

https://homemasters.ru/

42 минуты назад, KGB сказал(а):

Так напишите, что это кладовка. А то, что вы потом в кладовку холодильник засунули, кого волнует.

Вот ясное выражение моей мысли

Подписываемся на тему День за днём, моя работа https://homemasters.ru/...esta-raboty/ и на мой инстарам https://www.instagram.c...gda35remont/

Принимаю заказы на мебель из слэбов

 

Для публикации сообщений создайте учётную запись или авторизуйтесь

Вы должны быть зарегистрированным пользователем, чтобы оставить комментарий

Создать учетную запись

Зарегистрируйтесь в нашем сообществе.

Зарегистрироваться

Войти

Уже есть аккаунт? Войти в систему.

Войти

Или войти с помощью одного из сервисов



  • Наши рекомендации

    • Подходы к ремонту старых домов в России
      В России сотни тысяч старых домов, многие из которых являются не только свидетельством исторического наследия, но и отражением уникальной культуры и традиций страны. Эти дома, будь то деревянные избы или старинные каменные постройки, сохраняют в себе дух времени и рассказывают историю поколений.

      • 0 ответов
    • Как построить теплый дом, не тратя лишних денег
      Строительство гостевого дома решил выделить в отдельную тему, так будет меньше путаницы.


        • Спасибо
        • Нравится
      • 259 ответов
    • Газовые котлы: эффективное, экономичное и экологичное решение для отопления вашего дома
      В современном мире, где комфорт и устойчивость стали ключевыми аспектами повседневной жизни, выбор правильного источника отопления дома становится особенно актуальным. Газовые котлы, сочетая в себе преимущества эффективности, экономичности и экологичности, представляют собой одно из наиболее популярных решений для обеспечения комфортной температуры в жилых и коммерческих помещениях.

      • 0 ответов
    • Люк для кошек своими руками
      Разумеется давно придуманы и продаются специальные лючки для кошек, которые можно врезать в дверь, но мы ведь не ищем легких путей . Да и по зоомагазинам я не хожу, а "гугление" показало, что такие люки для кошек стоят относительно не дешево. В то же время под рукой были два "копеечных" сантехнических пластиковых лючка для ГКЛ. Все что оставалось, так это обломать фиксаторы крышек, что бы они открывались в обе стороны, ровно выпилить отверстие в двери, да вклеить симметрично эти лючки.

      То, что получилось видно на фото. Разумеется это не для тех, у кого "дизайнерский ремонт", но для обыкновенной квартиры вполне подходит. Недостатков не замечено, животных и людей всё устраивает .


      Реакцию форумчан на этот люк можно узнать в этой теме https://homemasters.ru/...me/?p=330637

        • Ого
      • 6 ответов
    • Дома из сруба: идеальное сочетание уюта и прочности.
      Строительство собственного дома является важной вехой в жизни любого человека, поскольку оно знаменует собой важное событие. Выбор строительных материалов имеет огромное значение для создания теплого и функционального жилища. На протяжении всей древней истории древесина была распространенным материалом для строительства домов, что отразилось на различных культурах мира.

      • 0 ответов
    • Вторая жизнь дивана: искусство ремонта мягкой мебели своими руками
      В эпоху беспрерывного потребления и стремления к новизне, ремонт старой мягкой мебели своими руками приобретает не просто практическое, но и глубоко философское значение. Это действие как знак уважения к труду мастеров, которые вложили свое мастерство в создание диванов, кресел и пуфов, и как воплощение идеи устойчивого потребления. С каждым возвращенным к жизни предметом мебели, мы не только сохраняем историю и уникальность каждого изделия, но и противостоим бездумному обновлению интерьера за счет экологии и рационального использования ресурсов.

        • Нравится
      • 0 ответов
    • Кажись всё или строительный пылесос с тройной мультициклонной ступенью очистки
      Кажись всё или строительный пылесос с тройной мультициклонной ступенью очистки

        • Нравится
      • 16 ответов
    • Аккумуляторные пилы  SCW и  SCM  22-A
      После того как провёл тесты, приступил к самому главному. Поменять диски местами, и проверить, как инструмент на это отреагирует, ведь они внешнее и походу внутренне практически одинаковые, пила по дереву конечно более навороченее, есть настройки угла наклона и можно на шину посадить через адаптер.

      • 4 ответа
×
×
  • Создать...

Важная информация

Мы разместили cookie-файлы на ваше устройство, чтобы помочь сделать этот сайт лучше. Вы можете изменить свои настройки cookie-файлов, или продолжить без изменения настроек.