Перейти к содержанию
Форумы о ремонте и строительстве

Перепланировка двух комнатной хрущевки

Оценить эту тему:


Рекомендуемые сообщения

(изменено)

Доброго всем времени суток.У меня аналогичная квартира хрущевский проект. Дом панельный, этаж пятый.Я бы хотел сделать перепланировку убрав две стены между залом и кухней, а так же между коридором и залом.Сегодня пытался сверлить стены. Стены бетонные толщина 100-120 мм.У меня вопрос: Возможно ли, что стены несущие?И еще на стенах имеются розетки (отмечен синим) и выключатель в кухне и в зале (отмечен красным).

post-55908-1295806294_thumb.jpg

Изменено пользователем faust666
  • 1 месяц спустя...

день добрый, подскажите, а то сам никак не могу найти планировку хрущевки(с площадями с размерами), трёшки, кирпичный дом, пятиэтажка, 3-4 подъезда, нарисовал примерный эских как выглядит
ext_6293b352fb514887d59f3098c8b41acc.jpg

  • 5 месяцев спустя...
(изменено)

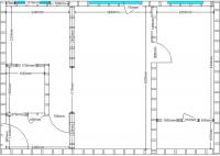
Добрый день, подскажите , что можно сделать вот с такой исходной планировкой ( 4 чел, 5-й через 6 мес)

post-72617-1312194100_thumb.jpg

Изменено пользователем FeodorMD
  • 4 месяца спустя...

Это только если кирпичная хрущевка, а если панельная, то совсем наоборот!

Нет в панельки стены не несущие.. Вот у меня в квартире делал ремонт. Снес стену между комнатой и кухней сделали большой проем см. 1. И перегородили проход с прихожки в кухню см.2 на кухне получилось место под холодильник. И проводку всю заменил.

post-74785-1322833105_thumb.jpg

;) Вот тоже ищу,как перепланировать хрущевку,2ку...Не подскажите?Жить будет 4 человека.


post-78687-1323242137_thumb.jpg


вот планировка такая же
как будет лучше сделать? Стену между кухней и комнатой однозначно думаю нужно нести будет,как быть с коридором?Хочется что бы комнаты были изолированы
Да и думаю сделать французский балкон и расширить комнату,что думаете?Ну и будет 2ярусная кровать конечно же в 1 комнате.Единственное,что газовая колонка как то не туда и не суда,не знаю,что с ней сделать...
да и в интернете наткнулся на такой дизайн проект,что скажите?Как вам?



483191327.jpg


сама планировка по-моему ничего так
в середине типо комната-шкаф? :blink:

  • 1 год спустя...
Вячеслав Украинский

Мы в хруще продлили коридор и за счет потери в площади зала сделали его раздельным. Как по мне получились две убогие комнатки, одна родной площадью 14 кв.м., вторая после перепланировки 15 кв.м. и коридор как проход в вагоне.

Для публикации сообщений создайте учётную запись или авторизуйтесь

Вы должны быть зарегистрированным пользователем, чтобы оставить комментарий

Создать учетную запись

Зарегистрируйтесь в нашем сообществе.

Зарегистрироваться

Войти

Уже есть аккаунт? Войти в систему.

Войти

Или войти с помощью одного из сервисов



  • Наши рекомендации

    • Как построить теплый дом, не тратя лишних денег
      Строительство гостевого дома решил выделить в отдельную тему, так будет меньше путаницы.


        • Спасибо
        • Нравится
      • 239 ответов
    • Дома из сруба: идеальное сочетание уюта и прочности.
      Строительство собственного дома является важной вехой в жизни любого человека, поскольку оно знаменует собой важное событие. Выбор строительных материалов имеет огромное значение для создания теплого и функционального жилища. На протяжении всей древней истории древесина была распространенным материалом для строительства домов, что отразилось на различных культурах мира.

      • 0 ответов
    • Люк для кошек своими руками
      Разумеется давно придуманы и продаются специальные лючки для кошек, которые можно врезать в дверь, но мы ведь не ищем легких путей . Да и по зоомагазинам я не хожу, а "гугление" показало, что такие люки для кошек стоят относительно не дешево. В то же время под рукой были два "копеечных" сантехнических пластиковых лючка для ГКЛ. Все что оставалось, так это обломать фиксаторы крышек, что бы они открывались в обе стороны, ровно выпилить отверстие в двери, да вклеить симметрично эти лючки.

      То, что получилось видно на фото. Разумеется это не для тех, у кого "дизайнерский ремонт", но для обыкновенной квартиры вполне подходит. Недостатков не замечено, животных и людей всё устраивает .


      Реакцию форумчан на этот люк можно узнать в этой теме https://homemasters.ru/...me/?p=330637

        • Ого
      • 6 ответов
    • Кажись всё или строительный пылесос с тройной мультициклонной ступенью очистки
      Кажись всё или строительный пылесос с тройной мультициклонной ступенью очистки

        • Нравится
      • 16 ответов
    • Вторая жизнь дивана: искусство ремонта мягкой мебели своими руками
      В эпоху беспрерывного потребления и стремления к новизне, ремонт старой мягкой мебели своими руками приобретает не просто практическое, но и глубоко философское значение. Это действие как знак уважения к труду мастеров, которые вложили свое мастерство в создание диванов, кресел и пуфов, и как воплощение идеи устойчивого потребления. С каждым возвращенным к жизни предметом мебели, мы не только сохраняем историю и уникальность каждого изделия, но и противостоим бездумному обновлению интерьера за счет экологии и рационального использования ресурсов.

        • Нравится
      • 0 ответов
    • Подходы к ремонту старых домов в России
      В России сотни тысяч старых домов, многие из которых являются не только свидетельством исторического наследия, но и отражением уникальной культуры и традиций страны. Эти дома, будь то деревянные избы или старинные каменные постройки, сохраняют в себе дух времени и рассказывают историю поколений.

      • 0 ответов
    • Аккумуляторные пилы  SCW и  SCM  22-A
      После того как провёл тесты, приступил к самому главному. Поменять диски местами, и проверить, как инструмент на это отреагирует, ведь они внешнее и походу внутренне практически одинаковые, пила по дереву конечно более навороченее, есть настройки угла наклона и можно на шину посадить через адаптер.

      • 4 ответа
    • Газовые котлы: эффективное, экономичное и экологичное решение для отопления вашего дома
      В современном мире, где комфорт и устойчивость стали ключевыми аспектами повседневной жизни, выбор правильного источника отопления дома становится особенно актуальным. Газовые котлы, сочетая в себе преимущества эффективности, экономичности и экологичности, представляют собой одно из наиболее популярных решений для обеспечения комфортной температуры в жилых и коммерческих помещениях.

      • 0 ответов
×
×
  • Создать...

Важная информация

Мы разместили cookie-файлы на ваше устройство, чтобы помочь сделать этот сайт лучше. Вы можете изменить свои настройки cookie-файлов, или продолжить без изменения настроек.