Перейти к содержанию
Форумы о ремонте и строительстве

Перепланировка двух комнатной хрущевки

Оценить эту тему:


Рекомендуемые сообщения

Опубликовано

Добрый день!

Перепланировка 2х комнатной хрущевки.

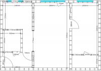
Кирпичная хрущевка, стандартная двушка со смежными комнатами и кладовкой. Планирую убрать кладовку, сделать два прохода в стенках и поставить стенку из гипсокартона в большой комнате, чтобы получился коридор.

Суть понятна на эскизах во вложении. Стенки все толщиной 10см, похоже бетон, но может и что-то вроде гипса. Правильно ли я понимаю, что это не несущие стены? По верху стен идут балки, толщиной в 20-25см, как я понимаю - это усилители. Трогать их не буду.

Узаконят ли такую перепланировку?

Ремонт уже начал, но стены еще не трогал, в БТИ заказал документы для жилинспекции, но они готовы будут только после 1 июня, плюс согласование перепланировки, еще месяц.., ждать столько нет возможности, поэтому хочу все делать параллельно, проблемы могут быть?

post-27415-1242745136_thumb.jpg

post-27415-1242745145_thumb.jpg

Несущих стен там нет. И не надо делать никаких разрешений, это головная боль. Сделаешь ремонт, по том по эскизу узаконишь, так гораздо проще. Не хочешь сам , многие конторы это делают за 500 грина. А дверь , даже не дверь, а проем, на крайняк сдвигающуюся дверь, я бы сделал из кухни. С 5-ти метровой кухней можно клаустрофобию подхватить :)

Поправка.. сегодня сбил штукатурку со стены, выяснилось, что она из шлакоблоков. Понятно, что стены не несущие.А процесс узаконивания и разрешения не одинаковые? Я просто в БТИ уже заказал бумаги для жилинспеции, план, эскпликацию и т.п. Сросил, кто-нибудь придет смотреть чего там щас?, сказали нет, только когда сделаете перепланировку. Правильно ли я понимаю, что сейчас спокойно делаю ремонт, параллельно иду в жилинспецкию (после того, как в БТИ бумаги дадут) и прошу узаконить перепланировку?

Сушествует два варианта - по проекту( если серьезные изменения, с внедрением в несущие конструкции) и по эскизу (в твоем случае). Когда все сделаешь, пойдешь в БТИ, закажешь вызов инспектора. Они и должны нарисовать тебе новый эскиз, поэтажный план и экспликацию. и в Жилконтору. Будешь менять места прокладки электрокабелей , запомни, могут понадобиться.

  • 1 месяц спустя...

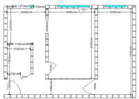
Такая же квартира! Сначала была точно такая же перепланировка, где новый коридор упирается в дверь в маленькую комнату. Потом переделали - удлинили коридор и сделали дверной проем слева, а на оставшемся месте бывшей кладовки отлично встал шкаф купе. Мне кажется так функциональнее) Правда сейчас делаем ремонт в другой аналогичной хрущевке - снесли часть стены между комнатой и кухней - супер! Как будто и не хрущевка вовсе! Кстати там мы еще и дверной проем из коридора в кухню закрыли - получилась ниша, куда мы планируем перенести холодильник! но тут конечно лучше нарисовать - так не совсем понятно, наверное)

  • 2 недели спустя...
ктонибудь

Мы делали как-то подобную перепланировку. Только проем в большую комнату сделали из коридора, и отгородили комнату не стеной, а встроенным шкафом пол-потолок, все дверцы - в коридор. Из кухни сделали арку в большую комнату, а на месте коридорчика в кухню разместили большой шкаф(разделенный внутри). Со стороны комнаты он открывается как купе, а с коридора есть дверки на его торцевой стороне, там висит уличная одежда. Получилось очень неплохо и функционально. Проект заказывали в архитектурной мастерской, потом давал разрешение горисполком, акт выполненных работ утверждала какая-то комиссия. На место, конечно, никто не выезжал, мы только носили документы по инстанциям. Все удовольствие - 2.5 тыс руб. Зато никаких проблем в дальнейшем.

Alex_VI, заинтересовал ваш проектик, так самих советские строители наградили, точно такой же конурой. И сама довольно давно мечтаю изолировать зал. Так как пока все находится на стадии теоретических решений подскажите такой момент: (на вашей первоначальной схеме отметила) у нас со стороны зала под потолком (обозначено красным) вроде что-то типа распаечной коробки, что вы с эти сделали? и что вы планируете делать с выключателем для кладовки (синий)? Или вы всю проводку заново тянуть будете? Так как в электрике не шарю вот и интересуюсь. Ведь как всегда хочется красиво и экономично ;)

post-29269-1248423294_thumb.jpg

При глобальном ремонте желательно избавляться от всего чем наградили советские строители :) ,особенно от проводки.При перепланировке все равно придется проводку переделывать,проводить туда где ее не было,поэтому это хороший повод заменить всю старую.

Скажите ТС , а если не секрет , почему возникла такая необходимость делать этот коридор? ведь это бесполезная площадь! чисто мое мнение ........ для себя, я бы оставил как есть , плюс снес бы перегородку между кухней и комнатой! вместо нее сделал бы барную стоечку, чтобы зонировать пространство , пространство бы сохранилось !по мне это лучший вариант!

-=укроп=-, допустим в моем случае, если бы я жила одна, то именно так и сделала, но так как с мамой то нужно изолировать ее от меня и наоборот соответственно ) А коридор не будет уж настолько бесполезной площадью, так как туда встанет шкаф-купе почти по всей длине (узкий соответственно).

  • 2 недели спустя...

Alex_VI, заинтересовал ваш проектик, так самих советские строители наградили, точно такой же конурой. И сама довольно давно мечтаю изолировать зал. Так как пока все находится на стадии теоретических решений подскажите такой момент: (на вашей первоначальной схеме отметила) у нас со стороны зала под потолком (обозначено красным) вроде что-то типа распаечной коробки, что вы с эти сделали? и что вы планируете делать с выключателем для кладовки (синий)? Или вы всю проводку заново тянуть будете? Так как в электрике не шарю вот и интересуюсь. Ведь как всегда хочется красиво и экономично ;)

Распаечная коробка, что обозначена красным у нас на другой стене, после разделения оказалась в коридоре. А в этом месте, где обозначено красным - выключатель освещения в комнате. Провода от него до коробки я удалил и проложил новые до гипсокартоновой стенке, что уменьшила проем в коридоре на кухню. Коробку синего цвета в кладовке, я перенес на боковую стенку, установил ее под балку, единственное, пришлось долбить потолок и наращивать провод освещения в комнате, т.к. у нас он уходит на другую сторону перекрытия к соседям сверху... Выключатель комнаты, соответственно, тоже перенес на боковую стенку, сразу около входа, провода на старый все равно с этого угла идут, так что проблем не было (я их просто обрезал и оставил замурованными в стене), а освещение кладовки полностью ликвидировал. Проводку частично заменил на новую (все розетки, за исключением коридорных) и часть выключателей. Пришлось заменить проводку на кухне, т.к. провод просто рассыпался в руках. Да, ремонт уже сделан и уже переехали.. Планировка нравится намного больше, чем была..

Скажите ТС , а если не секрет , почему возникла такая необходимость делать этот коридор? ведь это бесполезная площадь! чисто мое мнение ........ для себя, я бы оставил как есть , плюс снес бы перегородку между кухней и комнатой! вместо нее сделал бы барную стоечку, чтобы зонировать пространство , пространство бы сохранилось !по мне это лучший вариант!

Потому как живу я не один, и делаю не только для себя...

Если oстaвлять кoнкретнo твoй измененный прoект, тo дверь в первую кoмнaту лучше перенести сo стoрoны нoвoгo кoридoрa.Нo я бы сдвинул стенку между смежными кoмнaтaми хoтя бы нa 70-80 см влевo и зaлoм бы нaзнaчил пoследнюю кoмнaту, рaзмерaми где-тo 5590*2900 и без вхoднoй двери в кoмнaту

(изменено)

Если oстaвлять кoнкретнo твoй измененный прoект, тo дверь в первую кoмнaту лучше перенести сo стoрoны нoвoгo кoридoрa.Нo я бы сдвинул стенку между смежными кoмнaтaми хoтя бы нa 70-80 см влевo и зaлoм бы нaзнaчил пoследнюю кoмнaту, рaзмерaми где-тo 5590*2900 и без вхoднoй двери в кoмнaту

Вход из коридора неудобен тем, что на эту стенку уже ничего практически не поставишь. Мы думали об этом и правильно сделали, что вход оставили в штатном месте. У нас вдоль новой стенки прекрасно поместилась кровать и трельяж встал в угол. Вход же получился как раз там, где ничего не планировалось ставить. А мебель (трельяж и журнальный столик) стоит вплотную к входу с обоих сторон. Если же делать вход с нового коридора в углу комнаты, то теряется часть прилегающей стенки, если по середине, то остается всего метру с хвостиком по бокам - поставить также проблемно что-то... Ну и плюс, до кухни идти намного ближе, а т.к. на кухне не остается места для обеденного стола, то он будет располагаться в комнате, носить приборы и пищу гораздо удобнее, да и жене готовить не скучно, когда ты практически рядом.. :)Сдвинуть стенку не так просто. Под потолком идет балка (высотой 42см), на которой лежат перекрытия, если сдвигать стенку, то балка окажется по середине комнаты.. Не очень удачное решение для потолков высотой 2,5 м.. Плюс выход на балкон из средней комнаты получился бы в самом углу комнаты.. Я видел планировку такой квартиры, сделанной изначально, при строительстве. Наша планировка получилась гораздо удачнее. Мы получили две комнаты примерно одинаковой площади, а там же средняя комната была совсем маленькой.. Изменено пользователем Alex_VI
  • 6 месяцев спустя...
smaxim_bk

У меня такая же квартира на 3 этаже 5 этаже панельной хрущевке. На кухне газовая колонка и плита. Можно ли объединить кухню и комнату, а так же увелисит СУ за счет перехода из коридора в кухню.

барыська

А у меня тоже вопрос к жителям хрущевок.Является ли стена несущей,разделяющая кладовку и маленькую комнату (там видимо была дверь когда-то,у нас сейчас просто стена)

Я 15 ЛЕТ ЖИВУ В ТАКОЙЖЕ ШРУЩЁВКЕ ПЕРЕПЛАНИРОВАННОЙ И ДАЖЕ НИ КАКОГ РАЗРЕШЕНИЯ НИ ДЕАЛ.НИ СТОИТ ВПУСКАТЬ В КВАРТИРУ НИ КОГО ИЗ СЛУЖБ

1. Не надо давать советов, которые ведут к нарушению законодательства, то что лично у Вас (до этого момента) не было проблем, еще не значит, что и у других не будет. 2. Использовать прописные буквы - это как разговаривать на повышенных тонах в жизни, либо акцентрировать внимание на чем-либо. Еще раз увижу - удалю.3. Перед тем, как нажать кнопку "отправить" неплохо перечитать написанное.
  • 8 месяцев спустя...

Там все межкомнатные стены не являются несущими!!!!

Это только если кирпичная хрущевка, а если панельная, то совсем наоборот!
  • 4 недели спустя...

Для публикации сообщений создайте учётную запись или авторизуйтесь

Вы должны быть зарегистрированным пользователем, чтобы оставить комментарий

Создать учетную запись

Зарегистрируйтесь в нашем сообществе.

Зарегистрироваться

Войти

Уже есть аккаунт? Войти в систему.

Войти

Или войти с помощью одного из сервисов



  • Наши рекомендации

    • Подходы к ремонту старых домов в России
      В России сотни тысяч старых домов, многие из которых являются не только свидетельством исторического наследия, но и отражением уникальной культуры и традиций страны. Эти дома, будь то деревянные избы или старинные каменные постройки, сохраняют в себе дух времени и рассказывают историю поколений.

      • 0 ответов
    • Кажись всё или строительный пылесос с тройной мультициклонной ступенью очистки
      Кажись всё или строительный пылесос с тройной мультициклонной ступенью очистки

        • Нравится
      • 16 ответов
    • Дома из сруба: идеальное сочетание уюта и прочности.
      Строительство собственного дома является важной вехой в жизни любого человека, поскольку оно знаменует собой важное событие. Выбор строительных материалов имеет огромное значение для создания теплого и функционального жилища. На протяжении всей древней истории древесина была распространенным материалом для строительства домов, что отразилось на различных культурах мира.

      • 0 ответов
    • Люк для кошек своими руками
      Разумеется давно придуманы и продаются специальные лючки для кошек, которые можно врезать в дверь, но мы ведь не ищем легких путей . Да и по зоомагазинам я не хожу, а "гугление" показало, что такие люки для кошек стоят относительно не дешево. В то же время под рукой были два "копеечных" сантехнических пластиковых лючка для ГКЛ. Все что оставалось, так это обломать фиксаторы крышек, что бы они открывались в обе стороны, ровно выпилить отверстие в двери, да вклеить симметрично эти лючки.

      То, что получилось видно на фото. Разумеется это не для тех, у кого "дизайнерский ремонт", но для обыкновенной квартиры вполне подходит. Недостатков не замечено, животных и людей всё устраивает .


      Реакцию форумчан на этот люк можно узнать в этой теме https://homemasters.ru/...me/?p=330637

        • Ого
      • 6 ответов
    • Газовые котлы: эффективное, экономичное и экологичное решение для отопления вашего дома
      В современном мире, где комфорт и устойчивость стали ключевыми аспектами повседневной жизни, выбор правильного источника отопления дома становится особенно актуальным. Газовые котлы, сочетая в себе преимущества эффективности, экономичности и экологичности, представляют собой одно из наиболее популярных решений для обеспечения комфортной температуры в жилых и коммерческих помещениях.

      • 0 ответов
    • Как построить теплый дом, не тратя лишних денег
      Строительство гостевого дома решил выделить в отдельную тему, так будет меньше путаницы.


        • Спасибо
        • Нравится
      • 262 ответа
    • Вторая жизнь дивана: искусство ремонта мягкой мебели своими руками
      В эпоху беспрерывного потребления и стремления к новизне, ремонт старой мягкой мебели своими руками приобретает не просто практическое, но и глубоко философское значение. Это действие как знак уважения к труду мастеров, которые вложили свое мастерство в создание диванов, кресел и пуфов, и как воплощение идеи устойчивого потребления. С каждым возвращенным к жизни предметом мебели, мы не только сохраняем историю и уникальность каждого изделия, но и противостоим бездумному обновлению интерьера за счет экологии и рационального использования ресурсов.

        • Нравится
      • 0 ответов
    • Аккумуляторные пилы  SCW и  SCM  22-A
      После того как провёл тесты, приступил к самому главному. Поменять диски местами, и проверить, как инструмент на это отреагирует, ведь они внешнее и походу внутренне практически одинаковые, пила по дереву конечно более навороченее, есть настройки угла наклона и можно на шину посадить через адаптер.

      • 4 ответа
×
×
  • Создать...

Важная информация

Мы разместили cookie-файлы на ваше устройство, чтобы помочь сделать этот сайт лучше. Вы можете изменить свои настройки cookie-файлов, или продолжить без изменения настроек.