Перейти к содержанию
Форумы о ремонте и строительстве

Отопление в частном доме!

Оценить эту тему:


Рекомендуемые сообщения

Опубликовано

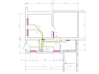
Добрый вечер всем!Пришел черед :) Вот добрался до отопления. Собственно исходные данные:1. Котел двухконтурный турбо Solly Comfort 262. Площадь дома 55м2. Стены кирпич 250мм + пенопласт 100мм. Потери двух комнат по ~1,2 кВт, которые выходят на улицу, остальная комната(кухня) и с/у со всех сторон закрыты комнатами(соседи). Планируется вентиляция с воздухообменом в кухне и с/у, посему в них тоже будет потери около 1 кВт. Итого около 4кВт общих теплопотерь.3. Планирую схему лучевую. Трубопровод до коллектора и коллектор Екопластик - 25 армированный ПП, ответвления - 20 армированный ПП. Коллектор делаю паянный из тройников 25/20, на ответвления шаровые краны, в конце воздухоотводчик, перед коллектором отсечной кран + термометр.4. Батареи стальные Korado 22 тип. Прихожая под два окна - 500х800, с/у - 500х500 + полотенцесушитель, кухня - 500х800, спальня под два окна- 500х800. На подачу - регулировочный вентиль, обратку - отсечной кран.5. Трубы с утеплителем буду заливать в полы (бетон).Собственно вопросы:1. Будет ли данная система функционировать? :)2. Что нужно или не нужно добавить в коллектор?...Что еще нужно ??? :rolleyes:

post-30239-1263834628_thumb.jpg

post-30239-1263834733_thumb.jpg

Может кто-нибудь... что-нибудь... оцените, подскажите... может по диаметрам, может расчетов каких надо. Иногда считают гидравлику... :)Вот еще вопрос каким инструментом закрутить в батарею американку от вентиля, там внутри американки есть два шипа, я так понимаю их закручивают спец приспособой или может есть инструмент подручный?

Одессит Спасибо за фотки... есть познавательные! А Вы сами делали или нанимали?

Вопросик по коллектору? там у Вас на коллекторе ветки перекрываются только на коллекторе подачи, т.е. если не дай Бог будет течь в трубе обратки перекрывать придется все ветки!

http://picasaweb.google...343738136738

Знатокам! Есть ли в таких(современных настенных двухконтурных) котлах трехходовой кран? Если все ветки будут закрыты будет ли нормально работать насос или же нужно ставить перепускной клапан?

А Вы сами делали или нанимали?

Делал не сам, причём из-за отсутствия времени не контролировал поцесс, о чём конечно жалею, но не в плане работы системы, а в плане аккуратности и некоторых комплектующих. Например через пол года пришлось поменять все прокладки где только можно, ну и так по мелочам, а в общем всё работает.

там у Вас на коллекторе ветки перекрываются только на коллекторе подачи, т.е. если не дай Бог будет течь в трубе обратки перекрывать придется все ветки!

Есть ещё краники на входе и выходе на каждом радиаторе.
(изменено)

Вы не сможете локально перекрыть одну трубу обратки, т.е. если вдруг в трубе обратки образуется течь нужно перекрывать полностью всю систему. плюс нельзя определить в какой именно ветке течь...Извиняюсь за слово "сдесь" - здесь

post-30239-1263992726_thumb.jpg

Изменено пользователем Gausho
(изменено)

4. Батареи стальные Korado 22 тип. Прихожая под два окна - 500х800, с/у - 500х500 + полотенцесушитель, кухня - 500х800, спальня под два окна- 500х800. На подачу - регулировочный вентиль, обратку - отсечной кран.

А чем батареи эти хороши? Почему Вы именно их выбрали? Изменено пользователем ARA

коллектор чудной ))) проще купить нормальный коллекторный узел с готовыми кранами подпитки и слива системы, воздухоотводчиком и термометром (при желании с расходомерами) ИМХО. полипропилен в бетон перебор 8/

А ты стоимость коллектора готового видел... на 6 отводов... ~150евро, а мой обходиться в 40$ при этом 1 резьбовое соединение. Какие отличия между ними??? что могут металлические коллекторы и чего не могут полипропиленовые???? Полипропилен в бетон нормально!!! т.е. в стены под стяжку нормально, а в пол нет???

флаг в руки, как говорится ))коллектор конечно не дешёвый, но я думал вы для себя делаете, что же касается полипропилена, то я не говорил что в стены и под стяжку - нормально.если же оставлять такой коллектор то я бы в него добавил запорную арматуру ))

если же оставлять такой коллектор то я бы в него добавил запорную арматуру ))

читайте внимательней первый постЧто-то ГУРУ заняты :)

Подскажите чем закручиваются вот такие вентили в батарею?!?!?!? И если знаете может по качеству этих кранов подскажите

post-30239-1264525974_thumb.jpg

post-30239-1264526045_thumb.jpg

mul`tya6ka

И чем плохи коллекторы из ППР? Вот примеры...

Коллекторы для теплого пола... Тоже задумался о теплом полу в санузле. Думаю если поставить вместо батареи полотенцесушитель и теплый пол должно ли хватить тепла?

post-30239-1264703312_thumb.jpg

post-30239-1264703335_thumb.jpg

А рекомендацию по замене батареи на полотенцесушитель+теплый пол??? :rolleyes:

Подскажите как посчитать сколько тепла отдает 1м2 теплого пола при температуре 45С.

Ничего себе вопросик.Должны быть таблицы, может в инете есть. А если аналитически..я попробую, если что-то внятное получится посчитаю.Помню, что есть зависимость от разницы температуры пола и температуры воздуха. На один градус вроде 11,5 Вт (точно не помню).Короче время нужно на обдумывание.А задачка интересная, наверняка есть таблицы с решениями в инете, может в курсовых каких.

Для публикации сообщений создайте учётную запись или авторизуйтесь

Вы должны быть зарегистрированным пользователем, чтобы оставить комментарий

Создать учетную запись

Зарегистрируйтесь в нашем сообществе.

Зарегистрироваться

Войти

Уже есть аккаунт? Войти в систему.

Войти

Или войти с помощью одного из сервисов



  • Наши рекомендации

    • Подходы к ремонту старых домов в России
      В России сотни тысяч старых домов, многие из которых являются не только свидетельством исторического наследия, но и отражением уникальной культуры и традиций страны. Эти дома, будь то деревянные избы или старинные каменные постройки, сохраняют в себе дух времени и рассказывают историю поколений.

      • 0 ответов
    • Люк для кошек своими руками
      Разумеется давно придуманы и продаются специальные лючки для кошек, которые можно врезать в дверь, но мы ведь не ищем легких путей . Да и по зоомагазинам я не хожу, а "гугление" показало, что такие люки для кошек стоят относительно не дешево. В то же время под рукой были два "копеечных" сантехнических пластиковых лючка для ГКЛ. Все что оставалось, так это обломать фиксаторы крышек, что бы они открывались в обе стороны, ровно выпилить отверстие в двери, да вклеить симметрично эти лючки.

      То, что получилось видно на фото. Разумеется это не для тех, у кого "дизайнерский ремонт", но для обыкновенной квартиры вполне подходит. Недостатков не замечено, животных и людей всё устраивает .


      Реакцию форумчан на этот люк можно узнать в этой теме https://homemasters.ru/...me/?p=330637

        • Ого
      • 6 ответов
    • Кажись всё или строительный пылесос с тройной мультициклонной ступенью очистки
      Кажись всё или строительный пылесос с тройной мультициклонной ступенью очистки

        • Нравится
      • 16 ответов
    • Как построить теплый дом, не тратя лишних денег
      Строительство гостевого дома решил выделить в отдельную тему, так будет меньше путаницы.


        • Спасибо
        • Нравится
      • 259 ответов
    • Газовые котлы: эффективное, экономичное и экологичное решение для отопления вашего дома
      В современном мире, где комфорт и устойчивость стали ключевыми аспектами повседневной жизни, выбор правильного источника отопления дома становится особенно актуальным. Газовые котлы, сочетая в себе преимущества эффективности, экономичности и экологичности, представляют собой одно из наиболее популярных решений для обеспечения комфортной температуры в жилых и коммерческих помещениях.

      • 0 ответов
    • Вторая жизнь дивана: искусство ремонта мягкой мебели своими руками
      В эпоху беспрерывного потребления и стремления к новизне, ремонт старой мягкой мебели своими руками приобретает не просто практическое, но и глубоко философское значение. Это действие как знак уважения к труду мастеров, которые вложили свое мастерство в создание диванов, кресел и пуфов, и как воплощение идеи устойчивого потребления. С каждым возвращенным к жизни предметом мебели, мы не только сохраняем историю и уникальность каждого изделия, но и противостоим бездумному обновлению интерьера за счет экологии и рационального использования ресурсов.

        • Нравится
      • 0 ответов
    • Дома из сруба: идеальное сочетание уюта и прочности.
      Строительство собственного дома является важной вехой в жизни любого человека, поскольку оно знаменует собой важное событие. Выбор строительных материалов имеет огромное значение для создания теплого и функционального жилища. На протяжении всей древней истории древесина была распространенным материалом для строительства домов, что отразилось на различных культурах мира.

      • 0 ответов
    • Аккумуляторные пилы  SCW и  SCM  22-A
      После того как провёл тесты, приступил к самому главному. Поменять диски местами, и проверить, как инструмент на это отреагирует, ведь они внешнее и походу внутренне практически одинаковые, пила по дереву конечно более навороченее, есть настройки угла наклона и можно на шину посадить через адаптер.

      • 4 ответа
×
×
  • Создать...

Важная информация

Мы разместили cookie-файлы на ваше устройство, чтобы помочь сделать этот сайт лучше. Вы можете изменить свои настройки cookie-файлов, или продолжить без изменения настроек.