Как создать дизайн-проект квартиры своими руками
Создать дизайн-проект своими руками проще, чем кажется. Нужно просто шаг за шагом освоить любую программу-планировщик и научиться реализовывать свои идеи. Для новичка полное создание дизайн-проекта своими руками с техническими чертежами может занять около 48-72 рабочих часов. Давайте узнаем, как это сделать!
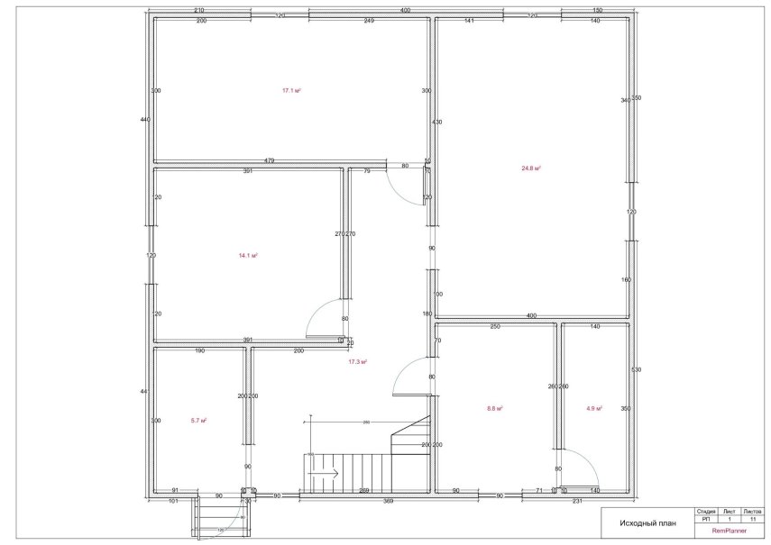
Шаг №1: заносим обмеры в план
В первую очередь нужно провести обмеры помещения. Это значит, что каждая комната, каждый уголок и выступ, должны быть нанесены на план. Лучше использовать лазерную рулетку (а не обычную), чтобы получить идеальную точность. Обмеры — очень важная часть проекта, поэтому есть смысл перепроверить все на 3, 4 или даже 5 раз, потому что от точности будет зависеть и качество реализации.
Переносим обмерные цифры на план, вместе со всеми перегородками, окнами, дверьми, вентиляционными и канализационными шахтами. Проверьте все размеры и объемы, посмотрите на план с другой стороны, чтобы перепроверить все еще раз.
Важно сразу определить несущие и ненесущие стены, чтобы понять, где и как можно реализовать различные идеи по перепланировке. Важно: балконы и лоджии также наносятся на план, вне зависимости от того, будут они присоединяться или нет.
Лайфхак: для обмеров можно вызвать специалистов, если вы не знаете, как управляться с лазером или просто не уверены в своих силах. Всего примерно за 10 000 рублей вы получаете техническую основу для вашего дизайн-проекта. Поверьте, это того стоит!
Шаг №2: создаем проект перепланировки
Лист «Обмерный (Исходный) план» показывает изначальное состояние объекта недвижимости, план «Демонтажа» — что именно нужно снести, а план «Монтажа» — новые перегородки. Еще есть итоговый план «Помещения». Таким образом для точного нанесения на технические чертежи идей перепланировки по всем правилам вам понадобится целых четыре листа. Тогда вас поймет любой строитель.
Стоит понимать, что перепланировка — это дорогостоящее удовольствие. Она легко может увеличить стоимость вашего ремонта, к примеру, на 300 тысяч рублей. Да и столь популярные сейчас стеклянные перегородки в стиле лофт тоже стоят от 150 тысяч рублей.
Шаг №3: расставляем мебель
Далее мы переходим к расстановке мебели. В коллекции 3D-объектов есть возможность выбрать различные объекты: от кофейного столика до гардероба. Помните, что чаще всего первичная расстановка будет переделана вами еще несколько раз — и это вполне нормально. Ведь по этому плану вы будете жить долгие годы. Есть смысл довести все до идеала.
Расстановка мебели — это возможность и для творчества, и для реализации продуманной эргономики всего пространства. Подумайте над установкой модных деталей: встроенной мебели, кухонного острова и других элементов.
Шаг №4: выбираем отделочные материалы
Раскрасьте ваш дизайн-проект отделочными материалами так, чтобы он заиграл красками. Выберите отделку пола и стен, которая вам нравится. Не забудьте использовать единую цветовую гамму и для материалов, и для мебели, чтобы интерьер получился гармоничным.
В планировщике RemPlanner, например, есть отдельные листы для отделки стен, пола, потолков, изоляции и гидроизоляции, штукатурки и стяжки. Весь проект ремонта создается на основе технического задания/листа для строителей, что в итоге делает реализацию простой и понятной.
Шаг №5: инженерная составляющая
Дольше всего нужно будет планировать расстановку элементов на инженерных листах. Есть отдельные листы для отопления, водоснабжения, сантехники, розеток, освещения, выключателей, электропроводки. Вам придется потратить много времени на то, чтобы нанести на карту все узлы, споты, треки, трубы и кабели. Тем не менее это и есть самая важная часть проекта, которая нужна для комфортной жизни.
Теплые полы и кондиционеры — это дополнительные листы, которые стоит заполнять при необходимости.
Шаг №6: смотрим 3D и выгружаем смету
Под конец вы сможете насладиться вашим проектом в 3D, сделать снимки и скачать весь проект со сметой в удобном для вас формате, в том числе и для печати. Дизайн-проект можно создать во множестве планировщиков, но RemPlanner отличается от продуктов других конкурентов важной составляющей: все технические чертежи здесь оформлены в полном комплекте, а также в том формате, в котором принято отдавать их бригаде отделочников в России. Поэтому вы получаете настоящий дизайн-проект, хотя можете сделать его и без дизайнера, своими руками. У других планировщиков есть свои плюсы, например, более сильное 3D.
 
	 






 
					 
								 
								 
								 
								 
								 
					 
								 
								 
								 
								 
								 
						
							 
					 
								 
								 
								 
								 
								 
						
							 
						
							 
					 
								 
								 
								 
								 
								 
					 
								 
								 
								 
								 
								 
	 
	 
	
2 Комментария
Рекомендуемые комментарии
Для публикации сообщений создайте учётную запись или авторизуйтесь
Вы должны быть зарегистрированным пользователем, чтобы оставить комментарий
Создать учетную запись
Зарегистрируйтесь в нашем сообществе.
ЗарегистрироватьсяВойти
Уже есть аккаунт? Войти в систему.
ВойтиИли войти с помощью одного из сервисов