Перейти к содержанию
Форумы о ремонте и строительстве

Перегородка из ГКЛ, как сделать

Оценить эту тему:


Рекомендуемые сообщения

Опубликовано

Здравствуйте уважаемые! Хочу сделать такую перегородку в своей однокомнатной квартирке (точно такую с таким же количеством полочек) , опыта с ГКЛ нету ))есть вопросы !!!1. подскажите пожалуйста как проще собрать такую конструкцию!! (мне бы приблизительный планчик - а с размерами определится не сложно, главное поэтапный ход действия)2. на стены буду клеить обои и вопрос как быть с перегородкой, клеить на её обои )))) чтоли, или покрасить? посоветуйте!

post-56015-1300255139_thumb.jpg

post-56015-1300255163_thumb.jpg

Какую планируете толщину внутренних полок?От этого будет зависеть ширина используемого профиля. Можно использовать 50,60,65,75 и 100мм. Прибавляете к этому 20 (25)мм и получаете толщину полки.

толщина той перегородки 12 см в чистую а то и 13, значит берем профиль CW и UW 10 см ( в магазине так и скажите). вам потребуется 4 штук CW и 2 шт. UW. UW набиваем определенного размера на пол и потолок это будут направляющие, также на стену крепим зигзагом монтаж. берем выставляем край из CW и делим на пополам то расстояния и выставляем еще стоивую (но ее надо сложить в двойне получить бутерброд) дальше из тогоже профиля вымеряем полки и скручиваем остальное (или же можно из брусов если так будет удобно). обшиваем, шпаклюем, обклеиваем обоями.

Толщину перегородки можно сделать любую, но я думаю, что нужно делать не меньше 20см. Будет более функциональней. Можно хоть что нибудь поставить на полки.

Толщину перегородки можно сделать любую, но я думаю, что нужно делать не меньше 20см. Бедет более функциональней. Можно хоть что нибудь поставить на полки.

Толщину или длину? уточняйте у нас новичок в этих делах.

Толщину или длину? уточняйте у нас новичок в этих делах.

Я что, не по русски разговариваю?Или когда вы говорите длина стены, вы подразумеваете её толщину?

Я что, не по русски разговариваю?

по русски, а не сильно толстая будет в 1 комнатной, на картинке там комната большая вот и сама перегородка толстая.

Хочу сделать такую перегородку в своей однокомнатной квартирке (точно такую с таким же количеством полочек)

а не сильно толстая будет в 1 комнатной

я думаю, что нужно делать не меньше 20см. Будет более функциональней. Можно хоть что нибудь поставить на полки.

Читайте внимательнее...

по русски, а не сильно толстая будет в 1 комнатной, на картинке там комната большая вот и сама перегородка толстая.

Человек сказал "...хочу такую.." ,а вы ему 12см :angry:

на картинке там комната большая вот и сама перегородка толстая.

а где-то сказано что у автора темы комната меньше? Если не можешь помочь-не мешай. Перегородка имеет смысл именно как декоративный ФУНКЦИОНАЛЬНЫЙ элемент.Перегородка толщиной в 20 и более см -наиболее подходящий вариант,и комнату делит,и место для книг-журналов-ваз имеется.

подождем тогда самого автора, с точными размерами

Подписываемся на тему День за днём, моя работа https://homemasters.ru/...esta-raboty/ и на мой инстарам https://www.instagram.c...gda35remont/

Принимаю заказы на мебель из слэбов

 

(изменено)

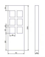
Спасибо что не оставили без внимания ))) извиняюсь что сразу размеры не выложил! вот они! помогите такую собрать ))между полками по вертикали тоже 10 см - забыл указать )

post-56015-1300420516_thumb.jpg

Изменено пользователем Pavlodarex

Я бы сделал так. Две вот такие зеркально и параллельно поставленные относительно друг друга перегородки.

post-40814-1300467446_thumb.jpg

(изменено)

А вот их (две зеркальные пергородки) между собой больше ни чем не надо связывать только ГКЛ ? А так спасибо большое, надеюсь что самый оптимальный вариант!!! )) поеду закупаться наверное )))))

Изменено пользователем Pavlodarex

А вот их (две зеркальные пергородки) между собой больше ни чем не надо связывать только ГКЛ ?

Этого будет достаточно.

А вот подскажите пожалуйста если у меня на стенах будут обои, то чем декоровать или красит перегородку? поделитесь опытом ))))))))

Спасибо создателям за сайт особенно тем кто его ведет !!! у меня ещё просьба к умельцам )) переношу дверной проем новый сделал, нужно заделать старый! хочу заделать с помощью ГКЛ и профилей! помогите набросать схему монтажа, толщина стены 11 см, высота 210 см, ширина 90, и один ньюанс там откосы косые бетонные сделанные, как я понимаю чтобы мне закрепить профиля нужно эти бетонные откосы выровнить? вообщем помогите пожалуйста составить схему монтажа заделки дверного проема!!!

post-56015-1300974017_thumb.jpg

post-56015-1300974040_thumb.jpg

ПН-ы с верху и снизу не рисовал. И так вроде понятно. ПС 50-ка. Красное - ГКЛ. Там где стык ГКЛ и кривых откосов - запенить.Пожалуйста :)post-15106-1301490451_thumb.jpg

Для публикации сообщений создайте учётную запись или авторизуйтесь

Вы должны быть зарегистрированным пользователем, чтобы оставить комментарий

Создать учетную запись

Зарегистрируйтесь в нашем сообществе.

Зарегистрироваться

Войти

Уже есть аккаунт? Войти в систему.

Войти

Или войти с помощью одного из сервисов



  • Наши рекомендации

    • Подходы к ремонту старых домов в России
      В России сотни тысяч старых домов, многие из которых являются не только свидетельством исторического наследия, но и отражением уникальной культуры и традиций страны. Эти дома, будь то деревянные избы или старинные каменные постройки, сохраняют в себе дух времени и рассказывают историю поколений.

      • 0 ответов
    • Как построить теплый дом, не тратя лишних денег
      Строительство гостевого дома решил выделить в отдельную тему, так будет меньше путаницы.


        • Спасибо
        • Нравится
      • 259 ответов
    • Вторая жизнь дивана: искусство ремонта мягкой мебели своими руками
      В эпоху беспрерывного потребления и стремления к новизне, ремонт старой мягкой мебели своими руками приобретает не просто практическое, но и глубоко философское значение. Это действие как знак уважения к труду мастеров, которые вложили свое мастерство в создание диванов, кресел и пуфов, и как воплощение идеи устойчивого потребления. С каждым возвращенным к жизни предметом мебели, мы не только сохраняем историю и уникальность каждого изделия, но и противостоим бездумному обновлению интерьера за счет экологии и рационального использования ресурсов.

        • Нравится
      • 0 ответов
    • Люк для кошек своими руками
      Разумеется давно придуманы и продаются специальные лючки для кошек, которые можно врезать в дверь, но мы ведь не ищем легких путей . Да и по зоомагазинам я не хожу, а "гугление" показало, что такие люки для кошек стоят относительно не дешево. В то же время под рукой были два "копеечных" сантехнических пластиковых лючка для ГКЛ. Все что оставалось, так это обломать фиксаторы крышек, что бы они открывались в обе стороны, ровно выпилить отверстие в двери, да вклеить симметрично эти лючки.

      То, что получилось видно на фото. Разумеется это не для тех, у кого "дизайнерский ремонт", но для обыкновенной квартиры вполне подходит. Недостатков не замечено, животных и людей всё устраивает .


      Реакцию форумчан на этот люк можно узнать в этой теме https://homemasters.ru/...me/?p=330637

        • Ого
      • 6 ответов
    • Аккумуляторные пилы  SCW и  SCM  22-A
      После того как провёл тесты, приступил к самому главному. Поменять диски местами, и проверить, как инструмент на это отреагирует, ведь они внешнее и походу внутренне практически одинаковые, пила по дереву конечно более навороченее, есть настройки угла наклона и можно на шину посадить через адаптер.

      • 4 ответа
    • Дома из сруба: идеальное сочетание уюта и прочности.
      Строительство собственного дома является важной вехой в жизни любого человека, поскольку оно знаменует собой важное событие. Выбор строительных материалов имеет огромное значение для создания теплого и функционального жилища. На протяжении всей древней истории древесина была распространенным материалом для строительства домов, что отразилось на различных культурах мира.

      • 0 ответов
    • Кажись всё или строительный пылесос с тройной мультициклонной ступенью очистки
      Кажись всё или строительный пылесос с тройной мультициклонной ступенью очистки

        • Нравится
      • 16 ответов
    • Газовые котлы: эффективное, экономичное и экологичное решение для отопления вашего дома
      В современном мире, где комфорт и устойчивость стали ключевыми аспектами повседневной жизни, выбор правильного источника отопления дома становится особенно актуальным. Газовые котлы, сочетая в себе преимущества эффективности, экономичности и экологичности, представляют собой одно из наиболее популярных решений для обеспечения комфортной температуры в жилых и коммерческих помещениях.

      • 0 ответов
×
×
  • Создать...

Важная информация

Мы разместили cookie-файлы на ваше устройство, чтобы помочь сделать этот сайт лучше. Вы можете изменить свои настройки cookie-файлов, или продолжить без изменения настроек.