Перейти к содержанию
Форумы о ремонте и строительстве

Cхема отопления частного дома

Оценить эту тему:


Рекомендуемые сообщения

на Т.П. КИНЬ ОТДЕЛЬНЫЙ КОНТУР ЧЕРЕЗ МОТОР

Что, прямо из котла в систему? А где же узлы подмеса, аварийные байпасы, расширительный бак и т. д.?Особенно радует теплый пол. Если его разогреть до 60-70 градусов, по нему можно будет только прыгать, как уж на сковородке. А помещение превратится в сауну.Шестой по порядку радиатор будет существенно холоднее, чем первый. Поэтому его мощность должна быть увеличена в 2-3 раза по сравнению с номиналом.Лучше использовать двухтрубную разводку.Циркуляционный насос обычно ставят на обратке, до котла. Теплый пол выполнить отдельным контуром со своим насосом. Сообщение с системой через узел подмеса.

что то не понял, какой отдельный контур и что такое моторВот я и прошу подсказки.Я забыл расширительный бак нарисовать, хочу поставить его на обратку после циркулирующего насосаБлагодарю за подсказки!

post-59029-1303482105_thumb.png

А, вот так вот. Направление тока воды надо показывать стрелками. Я думал, все наоборот нарисовано.Теплый пол так включать нельзя ни в коем случае. Будете прыгать как уж на сковородке. Да и радиаторы тоже будут раскаляться.Нужны узлы подмеса, то есть трехходовые термостаты, которые будут регулировать поступление воды из котла или из обратки, в зависимости от температуры в контуре. Щас попробую изобразить.

Как-то так. Соединил по-другому узлы, не перерисовывал.post-7480-1303993854_thumb.pngНо повторюсь, схема плохая, особенно потому, что она однотрубная.Лучше поискать готовые решения по контексту "смесительный узел для теплого пола".

А, да, забыл, еще в схеме нужна петля-байпас. А то вдруг оба термостата закроются. Циркуляция через котел прекратится.

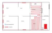
Здравствуйте!Подскажите пожалуйста будет ли нормально работать такая схема или нужно что то изменить?Заранее благодарю!

Привет! Вы с котлом отопления определились? если нет то глянте, у многих котлов и расширительный бак есть и насос, некоторые типа настенного с выходом тёплого пола и горячей воды. Вид топлива газ, дрова? уголь? солярка? электро?Коротко здесь не получится пиши в личку эта тема не на один день.
  • 2 недели спустя...

Позвольте добавить, в теплом полу надо убрать перемычку из прихожей в обратку, обратку надо делать из прачки, вода не дура, пойдет по наименьшему пути, то есть через прачку, в прихожей будет холодный пол...Так как система однотрубная, что не есть гут все таки, то предложил бы пол запитать все-таки от последнего радиатора как щас нарисовано и убрать трубу от него,которая обратка,(минус один насос) тогда он будет в пределах 15 градусов, что позволит использовать котел на его максимуме и не будет ноги жечь ))). В общем все последовательно. У радиаторов надо сделать обводную линию, чтобы можно было регулировать поток теплоносителя через радиатор, тогда можно все радиаторы ставить одинаковые и настроить через терморегулятор либо балансировочный кран типа Ballorex..И подумайте насчет автоматики типа ECL от Данфосса ..

Для публикации сообщений создайте учётную запись или авторизуйтесь

Вы должны быть зарегистрированным пользователем, чтобы оставить комментарий

Создать учетную запись

Зарегистрируйтесь в нашем сообществе.

Зарегистрироваться

Войти

Уже есть аккаунт? Войти в систему.

Войти

Или войти с помощью одного из сервисов



  • Наши рекомендации

    • Подходы к ремонту старых домов в России
      В России сотни тысяч старых домов, многие из которых являются не только свидетельством исторического наследия, но и отражением уникальной культуры и традиций страны. Эти дома, будь то деревянные избы или старинные каменные постройки, сохраняют в себе дух времени и рассказывают историю поколений.

      • 0 ответов
    • Люк для кошек своими руками
      Разумеется давно придуманы и продаются специальные лючки для кошек, которые можно врезать в дверь, но мы ведь не ищем легких путей . Да и по зоомагазинам я не хожу, а "гугление" показало, что такие люки для кошек стоят относительно не дешево. В то же время под рукой были два "копеечных" сантехнических пластиковых лючка для ГКЛ. Все что оставалось, так это обломать фиксаторы крышек, что бы они открывались в обе стороны, ровно выпилить отверстие в двери, да вклеить симметрично эти лючки.

      То, что получилось видно на фото. Разумеется это не для тех, у кого "дизайнерский ремонт", но для обыкновенной квартиры вполне подходит. Недостатков не замечено, животных и людей всё устраивает .


      Реакцию форумчан на этот люк можно узнать в этой теме https://homemasters.ru/...me/?p=330637

        • Ого
      • 6 ответов
    • Дома из сруба: идеальное сочетание уюта и прочности.
      Строительство собственного дома является важной вехой в жизни любого человека, поскольку оно знаменует собой важное событие. Выбор строительных материалов имеет огромное значение для создания теплого и функционального жилища. На протяжении всей древней истории древесина была распространенным материалом для строительства домов, что отразилось на различных культурах мира.

      • 0 ответов
    • Кажись всё или строительный пылесос с тройной мультициклонной ступенью очистки
      Кажись всё или строительный пылесос с тройной мультициклонной ступенью очистки

        • Нравится
      • 16 ответов
    • Газовые котлы: эффективное, экономичное и экологичное решение для отопления вашего дома
      В современном мире, где комфорт и устойчивость стали ключевыми аспектами повседневной жизни, выбор правильного источника отопления дома становится особенно актуальным. Газовые котлы, сочетая в себе преимущества эффективности, экономичности и экологичности, представляют собой одно из наиболее популярных решений для обеспечения комфортной температуры в жилых и коммерческих помещениях.

      • 0 ответов
    • Как построить теплый дом, не тратя лишних денег
      Строительство гостевого дома решил выделить в отдельную тему, так будет меньше путаницы.


        • Спасибо
        • Нравится
      • 257 ответов
    • Аккумуляторные пилы  SCW и  SCM  22-A
      После того как провёл тесты, приступил к самому главному. Поменять диски местами, и проверить, как инструмент на это отреагирует, ведь они внешнее и походу внутренне практически одинаковые, пила по дереву конечно более навороченее, есть настройки угла наклона и можно на шину посадить через адаптер.

      • 4 ответа
    • Вторая жизнь дивана: искусство ремонта мягкой мебели своими руками
      В эпоху беспрерывного потребления и стремления к новизне, ремонт старой мягкой мебели своими руками приобретает не просто практическое, но и глубоко философское значение. Это действие как знак уважения к труду мастеров, которые вложили свое мастерство в создание диванов, кресел и пуфов, и как воплощение идеи устойчивого потребления. С каждым возвращенным к жизни предметом мебели, мы не только сохраняем историю и уникальность каждого изделия, но и противостоим бездумному обновлению интерьера за счет экологии и рационального использования ресурсов.

        • Нравится
      • 0 ответов
×
×
  • Создать...

Важная информация

Мы разместили cookie-файлы на ваше устройство, чтобы помочь сделать этот сайт лучше. Вы можете изменить свои настройки cookie-файлов, или продолжить без изменения настроек.