Перейти к содержанию
Форумы о ремонте и строительстве

Посоветуйте, пожалуйста, материалы для теплоизоляции лоджии, НЕ объединяемой с комнатой, но С тёплым полом

Оценить эту тему:


Рекомендуемые сообщения

Опубликовано

Квартира в новом доме, хочу утеплить лоджию. Стену сносить и окно убирать не планирую, но тем не менее хотелось бы положить кабельный тёплый пол.Посоветуйте, пожалуйста, какие материалы использовать для теплоизоляции лоджии.

(изменено)

Абсолютно тот же вопрос! Планируем делать там детскую...

Дом серии И-209а, 1-комнатная квартира на 14-м этаже (слева от лестниц, если смотреть на них лицом и спиной к лифту)

Вот ссылка на схему http://tipdoma.com/2009/1...eriya-i209a/

Т.е. лоджия на 2 окна.

Что скажете про ISOTEX на обрешетку? Насколько теплоизолировано / экологично?

И как быть с теплым полом - что на него класть? Плитка неприемлема т.к. слишком жесткая. В идеале пробка, но, судя по всему, с теплым полом она не имеет смысла либо испортится.

Так что - ламинат?

Что скажете?

Спасибо!

Изменено пользователем Slava2010

palych70

Не знаю где Вы живёте? По Москве могу сказать, что смысла нет.

Slava2010

Детскую не советую.

Забыл сказать. Обратите внимание на площадь стекления. Эффективно утеплить стекло не получиться, даже если применить тройное стекление с газом. При температуре на улице -10, на стекле будет градусов 5. Значит разница с комнатой будет градусов 15. Получаем сквозняк. ИМХО

palych70

Не знаю где Вы живёте? По Москве могу сказать, что смысла нет.

В Москве.

Так я и остекление буду меня на двухкамерный стеклопакет.

Здраствуйте! Вот с этого надо и начинать, я буду менять стеклопакет. А то люди смотрят на Ваши фото и не знают как Вам помочь. Для утепления сверху места нет, по бокам тоже. И что Вам посоветовать? У Вас балкон с кирпича , я себе сделал тоже с кирпича, и утеплил. Я земую второй год, доволен. П...П...П... Место жительства Украина Киев. Ни о каком конденсате на окнах не думаю, даже после того как повесил на окна жалюзи. На форуме есть моя тема. Наши работы. Материал утепления у меня не стандартный , но это мой выбор и по истечению двух лет я не жалею, а там время покажет. На балконе правда тепло, но чуствуется небольшая прохлада со стороны стеклопакета, я думал он будет лучше работать хоть и двухкамерный.

Планируем делать там детскую...

...квартира на 14-м этаже

Slava2010 Вы хорошо подумали? Подумайте еще.
  • 2 недели спустя...

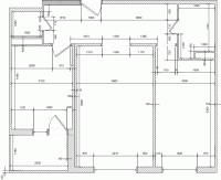
Хорошо бы фото или чертеж

Сделал чертёж. Надеюсь услышать дельные советы.

post-76885-1327508779_thumb.gif

Для публикации сообщений создайте учётную запись или авторизуйтесь

Вы должны быть зарегистрированным пользователем, чтобы оставить комментарий

Создать учетную запись

Зарегистрируйтесь в нашем сообществе.

Зарегистрироваться

Войти

Уже есть аккаунт? Войти в систему.

Войти

Или войти с помощью одного из сервисов



  • Наши рекомендации

    • Подходы к ремонту старых домов в России
      В России сотни тысяч старых домов, многие из которых являются не только свидетельством исторического наследия, но и отражением уникальной культуры и традиций страны. Эти дома, будь то деревянные избы или старинные каменные постройки, сохраняют в себе дух времени и рассказывают историю поколений.

      • 0 ответов
    • Дома из сруба: идеальное сочетание уюта и прочности.
      Строительство собственного дома является важной вехой в жизни любого человека, поскольку оно знаменует собой важное событие. Выбор строительных материалов имеет огромное значение для создания теплого и функционального жилища. На протяжении всей древней истории древесина была распространенным материалом для строительства домов, что отразилось на различных культурах мира.

      • 0 ответов
    • Кажись всё или строительный пылесос с тройной мультициклонной ступенью очистки
      Кажись всё или строительный пылесос с тройной мультициклонной ступенью очистки

        • Нравится
      • 16 ответов
    • Аккумуляторные пилы  SCW и  SCM  22-A
      После того как провёл тесты, приступил к самому главному. Поменять диски местами, и проверить, как инструмент на это отреагирует, ведь они внешнее и походу внутренне практически одинаковые, пила по дереву конечно более навороченее, есть настройки угла наклона и можно на шину посадить через адаптер.

      • 4 ответа
    • Газовые котлы: эффективное, экономичное и экологичное решение для отопления вашего дома
      В современном мире, где комфорт и устойчивость стали ключевыми аспектами повседневной жизни, выбор правильного источника отопления дома становится особенно актуальным. Газовые котлы, сочетая в себе преимущества эффективности, экономичности и экологичности, представляют собой одно из наиболее популярных решений для обеспечения комфортной температуры в жилых и коммерческих помещениях.

      • 0 ответов
    • Люк для кошек своими руками
      Разумеется давно придуманы и продаются специальные лючки для кошек, которые можно врезать в дверь, но мы ведь не ищем легких путей . Да и по зоомагазинам я не хожу, а "гугление" показало, что такие люки для кошек стоят относительно не дешево. В то же время под рукой были два "копеечных" сантехнических пластиковых лючка для ГКЛ. Все что оставалось, так это обломать фиксаторы крышек, что бы они открывались в обе стороны, ровно выпилить отверстие в двери, да вклеить симметрично эти лючки.

      То, что получилось видно на фото. Разумеется это не для тех, у кого "дизайнерский ремонт", но для обыкновенной квартиры вполне подходит. Недостатков не замечено, животных и людей всё устраивает .


      Реакцию форумчан на этот люк можно узнать в этой теме https://homemasters.ru/...me/?p=330637

        • Ого
      • 6 ответов
    • Как построить теплый дом, не тратя лишних денег
      Строительство гостевого дома решил выделить в отдельную тему, так будет меньше путаницы.


        • Спасибо
        • Нравится
      • 256 ответов
    • Вторая жизнь дивана: искусство ремонта мягкой мебели своими руками
      В эпоху беспрерывного потребления и стремления к новизне, ремонт старой мягкой мебели своими руками приобретает не просто практическое, но и глубоко философское значение. Это действие как знак уважения к труду мастеров, которые вложили свое мастерство в создание диванов, кресел и пуфов, и как воплощение идеи устойчивого потребления. С каждым возвращенным к жизни предметом мебели, мы не только сохраняем историю и уникальность каждого изделия, но и противостоим бездумному обновлению интерьера за счет экологии и рационального использования ресурсов.

        • Нравится
      • 0 ответов
×
×
  • Создать...

Важная информация

Мы разместили cookie-файлы на ваше устройство, чтобы помочь сделать этот сайт лучше. Вы можете изменить свои настройки cookie-файлов, или продолжить без изменения настроек.