Перейти к содержанию
Форумы о ремонте и строительстве

Как обустроить однушку

Оценить эту тему:


Sestra Anna

Рекомендуемые сообщения

Ну как всегда, пришёл Alef со своими чудо-картинками и теперь вряд ли кто-то осмелится что-то лучшее предложить :) Да и вряд ли, у этого кого-то,получится :)
fomins, а как Вы и Ваша сестра относитесь к дверям такого типа? Про них тут разговор, опять же, с подачи Alef-а пошёл.

Alef, спасибо за картинки.

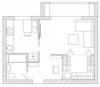
Вопросы на вскидку. Где холодильник и где стиралка?

Что за стенка открывающаяся в прихожке. Короче нужны пояснения.

Bagis, про двери речь пока не идёт, поэтому ничего конкретно сказать не могу кроме пожалуй "прикольно"

...теперь вряд ли кто-то осмелится что-то лучшее предложить :) Да и вряд ли, у этого кого-то,получится :)

Отступать? Bagis, вы наверное шутите? Отступление - не мой конек:)Вот моя идея:post-70849-1326688513_thumb.jpg

Где холодильник и где стиралка?Что за стенка открывающаяся в прихожке. Короче нужны пояснения.

Холодильник в середине кухни в нише ,стиралка в углу возле мойки встроена.У окна небольшой столик на двоих(не показан)или же консоль,перемещающаяся вдоль рабочей зоны-в режиме "большая готовка" это рабочая поверхность,в режиме "посиделки" соответственно, стол.Стенка в коридоре -две двери шириной 900-950 мм,одна открывается наружу,на ней с внутренней стороны зеркало,другая внутрь соответственно.В закрытом положении это "парковка" для кресла и всех парикмахерских дел.Весь тот уголок может быть оформлен "для антуражу" как в стильном салоне,там же вешалка для одежды клиента.Кресло и тумбочка на колёсах. Всё для того,чтобы у клиента не было ощущения что его стригут в коридоре жилой квартиры(да,конечно ,возможны нюансы в виде аппетитного аромата котлеток с кухни,но это уже частности :) ).

Troy, я и сам примерно в эту сторону думал.

Диван угловой вписали, есть ещё к нему кресло. Куда бы его засунуть. Я так понимаю, что кроме как на бывшую лоджию некуда.

Alef, Что подразумевалось там где красным обведено?

post-40814-1326703651_thumb.jpg

post-40814-1326703665_thumb.jpg

post-40814-1326703673_thumb.jpg

шкафы-в комнате полноразмерная секция,в кухне срезанный углом .

Ну как всегда, пришёл Alef....

...и перевернул всё "с ног на голову" :) У нас тут "на дому" и парикмахерские и стоматологические-косметологические-массажные кабинеты есть,под это дело квартиры переделываются ТАК,что на входе и не поймёшь что "где-то там " ещё и просто жилые помещения. Площади конечно посерьёзнее,но основная идея именно такая-пришёл в ПАРИКМАХЕРСКУЮ,а не домой к мастеру.

Думаю лучше у шкафа, тот что к окну. глубину поделить пополам и сделать его рабочим как в сторону кухни (посуда), так и в сторону гостиной (книжки и декор).

Тогда можно в принципе отказаться от навесных шкафов, над рабочей поверхностью столов, оставить только под дежурную посуду. возле мойки.

Идея сама по себе не плоха, надо только как то всё просчитать. Немного напрягают массивные раскрывающиеся стенки, да и отсекается ими достаточное пространство, нерабочее в обычной жизни. Но это дело наверное поправимо, смещением этой самой стены нЕсколько в глубь.

Сегодня вечером сестра придёт, покажу. У Troy и у меня конечно всё попроще, с минимумом переделок от настоящего, но здесь хоть всё и гораздо сложнее, зато как то необычно и нестандартно.

есть у сестры ещё одна хотелка. Хочется ей мойку напротив окна. не знаю что из этого может получиться. Там подоконник ниже уровня рабочей поверхности, а если под неё ещё и стиралку засунуть, то придёться её ещё выше поднимать. Как вариант сделать в разных уровнях, правда я не знаю насколько ей это будет удобно.

да над рабочей зоной я просто забыл "повесить" шкафы :unsure: ,в таком маленьком помещении не до изысков вроде отказа от верхних шкафов....а стенки можно разделить и сделать каждую из створок сочленённых(хотя я не вижу в этом смысла -по ширине каждая из них не намного больше обычной двери) а общая концепция складывалась именно исходя из заявки (цитирую) "Хотелось бы их обслуживать в более солидной обстановке..." А пространства отсекается (хотя совсем не в пустую-там скрыто от глаз всё что как раз "в обычной жизни" не нужно на виду) не так уж много.И габариты этой зоны можно скорректировать под конкретные размеры кресла,элементов мебели и прочего.

есть ещё к нему кресло. Куда бы его засунуть

Я бы выкинул. Серьезно. Я сейчас обхожусь диваном-уголком и стулом у компьютерного стола. Лоджия широкая? Там стол компьютерный и стул не войдут?

в таком маленьком помещении не до изысков вроде отказа от верхних шкафов.

Поддерживаю. Я в своем проекте отказался, только организовав большую зону хранения напротив. Шкафы вешать.

Я бы выкинул.

Лучше уж себе возьму.

Лоджия широкая. Там стол компьютерный и стул не войдут?

Как таковой компьютерный стол не нужен. У сестры ноут, так что достаточно журнального столика и дивана.А на счёт навесных шкафов посмотрим. если всё что нужно в два напольных шкафа уместиться, то и нафиг они тогда нужны, только пространство заграмождают, которого и так нет.Много ли ей на одну надо?

кстати,да,очень важные моменты - если действительно живёт один человек,то можно и отойти от стандартов и сделать очень стильно ,легко и уютно.Про холодильник кстати хотел бы уточнить габариты .На эскизе взял "с размахом" коробку 70x70 см.

Холодильник будет новый покупаться, ещё не известно какой и поэтому чтобы не влететь, думаю так и надо оставить, чтобы не впритык был, а с отводом воздуха, как и положено. 70х70 это значит дверь его вровень с передней стенкой шкафов получится - то что надо.

fomins,про мойку у окна.Есть варианты,надо только знать как открывается окно,какие створки,как глубоко в стене оно находится(или даже так-насколько открытая створка выступает за линию стены).Если ,при удачном стечении всех вышеперечисленных моментов, открытая створка выступает на 15-20 см от стены,то можно сделать интересный вариант.При этом мойка будет в один уровень с остальной рабочей зоной.

Даже не знаю. Вариант на сколько интересный?Или настолько интересный, что можно под него окно поменять? Окно то стандартное или тоже спец заказ?Стены толстые 650мм. Проём стандартный 1300мм, то есть вполне может быть и уместимся в 200мм выступа.

Лучше уж себе возьму

fomins, я же образно сказал :) Мебель б/у можно неплохо продать, хорошо берут через сайты бесплатных объявлений и соц.сети.Насчет шкафов-у меня сейчас кухня такой же длины. Отказаться от верха никак невозможно :) Как же коллекция кострюлек, приправ сотня пакетиков, внизу под мойкой как всегда мусорное ведро, под плитой духовка.

окно трогать смысла нет.Вот так.post-11625-1326733345_thumb.jpgЧасть с мойкой я бы сделал "от души деревянной". Во-первых,заложить запас прочности чтобы хозяйка могла без проблем при необходимости встать на это всё дело ногами (окно помыть),причем на все,включая весь подоконник. Во-вторых,если уж стыковать,то разные по отделке элементы ,да и просто красиво ,даже если остальная часть столешницы будет из дсп с какой-нибудь однотонной отделкой.Кстати,там же наверное ещё радиатор есть-решетку предусмотреть надо .Ну и цветочки там поставить можно стильно-миленькие какие-нибудь.Стиралка справа от окна.Холодильник ушёл в угол .Дверь перевесил,возле нее узкая открытая секция с полочками для "красот-полезностей".В этом варианте возникло некоторое желание вовсе "открыть" кухню в комнату,но...но :) . На окно в таком случае, в качестве занавесей, жалюзи(на каждую створку).На вопрос "как дотянуться до окна чтобы просто открыть-закрыть" отвечу-сделать простое приспособление-"удлинитель руки" :) .Электропривод для открывания -роскошь :) ,можно сделать простую механическую "хваталку-ручкоповорачивалку" :) а это просто как иллюстрация как эффектно может выглядеть сочетание разных по отделке элементовpost-11625-1326733436_thumb.jpg

Alef, мне первый вариант планировки кухни больше понравился, нежели тот где мойка у окна.

Это от себя.

Теперь по поручению сестры:

"Алеф, спасибо!!!

Это восторг, такого я даже не могла вообразить. В нашем Липецке этого не было и нет, но надеюсь будет у меня.

Кухня мне очень понравилась, я даже отказалась от хотелки, на счёт мойки у окна, так мне понравился первый вариант.

На счёт парикмахерской ва-аще супер, очень здорово придумано, ну а с размерами, я думаю брат мне поможет.

Алеф, ещё вопрос. Я хочу стены в зале синие, а брат говорит, что это очень темно, так как потолки всего 2,5м и нельзя сделать двухуровневые с различной подсветкой.

Что Вы думаете на этот счёт?"

П.С. Всё что здесь написано про меня и про то что я говорил, правда наполовину. Просто я тупо переписываю, что сестра написала на бумажке.

Стену за диваном можно сделать синей,всю комнату-перебор конечно.Насчёт уровней на потолке-надеюсь, их не будет вообще...

Мойка у окна получилась просто отличной, действительно эксклюзив будет. А где обеденный стол поставите? Придется объединять кухню и гостиную?

Мойка у окна получилась просто отличной, действительно эксклюзив будет. А где обеденный стол поставите? Придется объединять кухню и гостиную?

эксклюзив будет у кого-то другого видимо :) А так-да,логичным развитием было бы "переиграть" и объединить комнату с кухней.Вот об этом и было "но".Просто чёткой позиции "хотим раздельные помещения" или "кухня открытая в комнату -хороший вариант" я не увидел,а просто сеять зерно сомнений и терзаний не захотел :) .Лично меня совсем не напрягает вариант объединения помещений.

Для публикации сообщений создайте учётную запись или авторизуйтесь

Вы должны быть зарегистрированным пользователем, чтобы оставить комментарий

Создать учетную запись

Зарегистрируйтесь в нашем сообществе.

Зарегистрироваться

Войти

Уже есть аккаунт? Войти в систему.

Войти

Или войти с помощью одного из сервисов



  • Наши рекомендации

    • Люк для кошек своими руками
      Разумеется давно придуманы и продаются специальные лючки для кошек, которые можно врезать в дверь, но мы ведь не ищем легких путей . Да и по зоомагазинам я не хожу, а "гугление" показало, что такие люки для кошек стоят относительно не дешево. В то же время под рукой были два "копеечных" сантехнических пластиковых лючка для ГКЛ. Все что оставалось, так это обломать фиксаторы крышек, что бы они открывались в обе стороны, ровно выпилить отверстие в двери, да вклеить симметрично эти лючки.

      То, что получилось видно на фото. Разумеется это не для тех, у кого "дизайнерский ремонт", но для обыкновенной квартиры вполне подходит. Недостатков не замечено, животных и людей всё устраивает .


      Реакцию форумчан на этот люк можно узнать в этой теме https://homemasters.ru/...me/?p=330637

        • Ого
      • 6 ответов
    • Подходы к ремонту старых домов в России
      В России сотни тысяч старых домов, многие из которых являются не только свидетельством исторического наследия, но и отражением уникальной культуры и традиций страны. Эти дома, будь то деревянные избы или старинные каменные постройки, сохраняют в себе дух времени и рассказывают историю поколений.

      • 0 ответов
    • Вторая жизнь дивана: искусство ремонта мягкой мебели своими руками
      В эпоху беспрерывного потребления и стремления к новизне, ремонт старой мягкой мебели своими руками приобретает не просто практическое, но и глубоко философское значение. Это действие как знак уважения к труду мастеров, которые вложили свое мастерство в создание диванов, кресел и пуфов, и как воплощение идеи устойчивого потребления. С каждым возвращенным к жизни предметом мебели, мы не только сохраняем историю и уникальность каждого изделия, но и противостоим бездумному обновлению интерьера за счет экологии и рационального использования ресурсов.

        • Нравится
      • 0 ответов
    • Как построить теплый дом, не тратя лишних денег
      Строительство гостевого дома решил выделить в отдельную тему, так будет меньше путаницы.


        • Спасибо
        • Нравится
      • 248 ответов
    • Газовые котлы: эффективное, экономичное и экологичное решение для отопления вашего дома
      В современном мире, где комфорт и устойчивость стали ключевыми аспектами повседневной жизни, выбор правильного источника отопления дома становится особенно актуальным. Газовые котлы, сочетая в себе преимущества эффективности, экономичности и экологичности, представляют собой одно из наиболее популярных решений для обеспечения комфортной температуры в жилых и коммерческих помещениях.

      • 0 ответов
    • Дома из сруба: идеальное сочетание уюта и прочности.
      Строительство собственного дома является важной вехой в жизни любого человека, поскольку оно знаменует собой важное событие. Выбор строительных материалов имеет огромное значение для создания теплого и функционального жилища. На протяжении всей древней истории древесина была распространенным материалом для строительства домов, что отразилось на различных культурах мира.

      • 0 ответов
    • Кажись всё или строительный пылесос с тройной мультициклонной ступенью очистки
      Кажись всё или строительный пылесос с тройной мультициклонной ступенью очистки

        • Нравится
      • 16 ответов
    • Аккумуляторные пилы  SCW и  SCM  22-A
      После того как провёл тесты, приступил к самому главному. Поменять диски местами, и проверить, как инструмент на это отреагирует, ведь они внешнее и походу внутренне практически одинаковые, пила по дереву конечно более навороченее, есть настройки угла наклона и можно на шину посадить через адаптер.

      • 4 ответа
×
×
  • Создать...

Важная информация

Мы разместили cookie-файлы на ваше устройство, чтобы помочь сделать этот сайт лучше. Вы можете изменить свои настройки cookie-файлов, или продолжить без изменения настроек.