Перейти к содержанию
Форумы о ремонте и строительстве

помогите пожалуйста с планировкой 3к хрущевки

Оценить эту тему:


Рекомендуемые сообщения

Опубликовано

здравствуйте!есть 3 в панельной хрущевке на 5 этаже.думаю сделать как на 2 рисунке - то есть проход между кухней и коридором переоборудовать под гардеробнуюкухню полностью или нет совместить с гостиной.подскажите как лучше все организовать и расставить мебель?телек планирую на стену из гк которая закроет проход

post-81365-1331561756_thumb.jpg

post-81365-1331561782_thumb.jpg

Здравствуйте, коллега! У нас точно такая же квартира только в 4х-этажном кирпичном доме 60какого-то года. Сейчас в активной стадии капремонта :)). Если интересно, могу выложить схему нашей переделки:).

john66811! Свой вариант пока рисую, а вот вспомнила, что в свое время на IVD (Идеи вашего дома) вот такие варианты предлагали (фото по порядку соответственно):

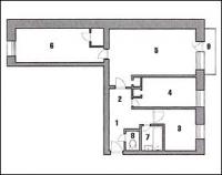
Исходный вариант:

1. Прихожая - 5,06 м2

2. Коридор - 1,53 м2

3. Кухня - 4,85 м2

4. Комната - 10,05 м2

5. Комната - 18,94 м2

6. Комната - 13,01 м2

7. Ванная комната - 2,01 м2

8. Туалет - 1,22 м2

9. Балкон - 2,27 м2

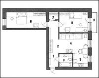
Вариант 1:

1. Прихожая - 3,2 м2

2. Коридор - 6,97 м2

3. Кухня - 4,8 м2

4. Гостиная - 8,1 м2

5. Детская - 14,8 м2

6. Спальня - 13 м2

7. Гардеробная - 1,8 м2

8. Санузел - 4 м2

9. Балкон - 2,27 м2

Вариант 2:

1. Прихожая - 5,1 м2

2. Коридор - 3,7 м2

3. Кухня-столовая - 8,4 м2

4. Гостиная - 7,6 м2

5. Спальня - 14,06 м2

6. Детская - 13,01 м2

7. Санузел - 4,8 м2

8. Балкон - 2,27 м2

Вариант 3:

1. Прихожая - 3,5 м2

2. Кухня - 10,27 м2

3. Гостиная - 19,5 м2

4. Спальня - 7,4 м2

5. Детская - 10,3 м2

6. Гардеробная - 1,8 м2

7. Санузел - 3,9 м2

8. Балкон - 2,27 м2

Вот ссылка, там описания еще можно посмотреть - http://www.ivd.ru/type.xg...t=0&project=

post-81092-1331708600_thumb.jpg

post-81092-1331708650_thumb.jpg

post-81092-1331708703_thumb.jpg

post-81092-1331708754_thumb.jpg

john66811, вот примерно что у нас будет. Мебель, конечно условная - так, расположение. Размеры помещений такие, +-5см. Насчет объединения кухни и гостиной - у вас, наверное, газ? Если да, то полностью объединять нельзя, нужна хоть какая-то дверь или перегородка. По правилам.

post-81092-1331731951_thumb.jpg

Спасибо. Сами примерно так же думаем. Только у нас кухня меньше, если туда холодильник ставить как у вас то совсем места не будет...А почему решили диван к этой стене ставить а не к кухонной?

Мы сейчас живем в точно такой же квартире, планировка только другая - так холодильник в коридоре (у левой стены) - привыкли, конечно, но все-таки хочется по-нормальному пользоваться, а не км наматывать. Так что у себя только в кухню его планируем. А у вас какого она размера? На плане плохо видно. Наша фактически будет 2,4*2,3 (сейчас 2,1*2,4). А с диваном - сначала хотели его на с/у-стену (заходишь и справа) - но потом подумали, что придется его все время обходить на пути с/у-кухня. А так - заходишь и из коридора вид на диванчик, гостепреимно :)).

Для публикации сообщений создайте учётную запись или авторизуйтесь

Вы должны быть зарегистрированным пользователем, чтобы оставить комментарий

Создать учетную запись

Зарегистрируйтесь в нашем сообществе.

Зарегистрироваться

Войти

Уже есть аккаунт? Войти в систему.

Войти

Или войти с помощью одного из сервисов



  • Наши рекомендации

    • Подходы к ремонту старых домов в России
      В России сотни тысяч старых домов, многие из которых являются не только свидетельством исторического наследия, но и отражением уникальной культуры и традиций страны. Эти дома, будь то деревянные избы или старинные каменные постройки, сохраняют в себе дух времени и рассказывают историю поколений.

      • 0 ответов
    • Газовые котлы: эффективное, экономичное и экологичное решение для отопления вашего дома
      В современном мире, где комфорт и устойчивость стали ключевыми аспектами повседневной жизни, выбор правильного источника отопления дома становится особенно актуальным. Газовые котлы, сочетая в себе преимущества эффективности, экономичности и экологичности, представляют собой одно из наиболее популярных решений для обеспечения комфортной температуры в жилых и коммерческих помещениях.

      • 0 ответов
    • Вторая жизнь дивана: искусство ремонта мягкой мебели своими руками
      В эпоху беспрерывного потребления и стремления к новизне, ремонт старой мягкой мебели своими руками приобретает не просто практическое, но и глубоко философское значение. Это действие как знак уважения к труду мастеров, которые вложили свое мастерство в создание диванов, кресел и пуфов, и как воплощение идеи устойчивого потребления. С каждым возвращенным к жизни предметом мебели, мы не только сохраняем историю и уникальность каждого изделия, но и противостоим бездумному обновлению интерьера за счет экологии и рационального использования ресурсов.

        • Нравится
      • 0 ответов
    • Кажись всё или строительный пылесос с тройной мультициклонной ступенью очистки
      Кажись всё или строительный пылесос с тройной мультициклонной ступенью очистки

        • Нравится
      • 16 ответов
    • Аккумуляторные пилы  SCW и  SCM  22-A
      После того как провёл тесты, приступил к самому главному. Поменять диски местами, и проверить, как инструмент на это отреагирует, ведь они внешнее и походу внутренне практически одинаковые, пила по дереву конечно более навороченее, есть настройки угла наклона и можно на шину посадить через адаптер.

      • 4 ответа
    • Люк для кошек своими руками
      Разумеется давно придуманы и продаются специальные лючки для кошек, которые можно врезать в дверь, но мы ведь не ищем легких путей . Да и по зоомагазинам я не хожу, а "гугление" показало, что такие люки для кошек стоят относительно не дешево. В то же время под рукой были два "копеечных" сантехнических пластиковых лючка для ГКЛ. Все что оставалось, так это обломать фиксаторы крышек, что бы они открывались в обе стороны, ровно выпилить отверстие в двери, да вклеить симметрично эти лючки.

      То, что получилось видно на фото. Разумеется это не для тех, у кого "дизайнерский ремонт", но для обыкновенной квартиры вполне подходит. Недостатков не замечено, животных и людей всё устраивает .


      Реакцию форумчан на этот люк можно узнать в этой теме https://homemasters.ru/...me/?p=330637

        • Ого
      • 6 ответов
    • Дома из сруба: идеальное сочетание уюта и прочности.
      Строительство собственного дома является важной вехой в жизни любого человека, поскольку оно знаменует собой важное событие. Выбор строительных материалов имеет огромное значение для создания теплого и функционального жилища. На протяжении всей древней истории древесина была распространенным материалом для строительства домов, что отразилось на различных культурах мира.

      • 0 ответов
    • Как построить теплый дом, не тратя лишних денег
      Строительство гостевого дома решил выделить в отдельную тему, так будет меньше путаницы.


        • Спасибо
        • Нравится
      • 259 ответов
×
×
  • Создать...

Важная информация

Мы разместили cookie-файлы на ваше устройство, чтобы помочь сделать этот сайт лучше. Вы можете изменить свои настройки cookie-файлов, или продолжить без изменения настроек.