Перейти к содержанию
Форумы о ремонте и строительстве

Разделение зон в 1-комнатной квартиры

Оценить эту тему:


Рекомендуемые сообщения

Опубликовано

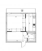
Добрый вечер, Уважаемые форумчане!Делаю ремонт в 1-ке, площадь квартиры 30-33 кв.метра.Снес стены разделяющие комнату от коридора и кухни, удлинил ванну сантиметров на 10 в сторону зала.Сейчас зашел в тупик))))) необходимо отделить корридор от комнаты, да и кухню наверно закрыть не мешало бы....все таки кухня ведь.....готовка, запахи по все квартире.склоняюсь к вариантам:1. Пустить купейные перегородки с дверьми по старому плану...тоесть в сантиметрах 60-70 от стенки санузла.......на протяжении все квартиры......получится таже самая стенка что и была, просто более мобильная в блане передвижения....захотел туда сдвинул, захотел сюда)))2. Отгородить перегородкой коридор от комнаты, а на кухне сделать барную стойку))))......пространства больше....но опять же квартира то однушка......спрятаться от девачки некуда будет(((((3. Отсечь купейными дверями кухню и корридор по линии стенки ванны.........кухонька тогда совсм малЛЛЛая будет...да и в коридоре только каблучки снять и всЁ.4. оставить все как есть)))).Склоняюсь к 1 варианту......пугает цена вопроса .....от 60 рублей))))Кто имеет подобный опыт эксперементов...поделитесь)))...да и мнение со стороны послушаю с удовольствием!!!Фото прилагаю! Заранее БЛАГОДАРЮ!

изображения вставлять - нажимать кнопку обзор внизу справа, выбирать файл, нажать "загрузить". потом поставить курсор в сообщение в то место, где должна быть картинка и выбрать загруженый файл в выпадающем меню "управление текущими файлами"

если фотографии есть в интернете - проще: нажать кнопку с пейзажем над окном редактирования сообщения и вставить ссылку (вот этого не надо делать, скоро вообще включу запрет на включение картинок с интернета, потом там их удаляют, здесь "дырки" остаются/

KGB)

в том то и дело.........что нету кнопки обзор))))).....первый раз была..........а сейчас нет!

post-59909-1363523742_thumb.jpgесли выбираете редактирование сообщения - выбирайте полное
 
в том то и дело.........что нету кнопки обзор))))).....первый раз была..........а сейчас нет!

Первый раз Вы создавали тему, а сейчас пытаетесь "быстрым ответом" воспльзоваться

Не забываем установить аватар, заполнить профиль, и создать свой блог

https://homemasters.ru/

alekseika27 ну в чем застопорились-то?

покажу свой вариант на всякий, мож пригодится

post-59909-1363643731_thumb.jpg

вы не фотографии выкладывайте, а планировку

Если есть возможность, обратитесь к дизайнерам и они вам всё обыграют.

 
Если есть возможность, обратитесь к дизайнерам и они вам всё обыграют.

Если есть возможность, обратитесь к строителям и они вам все построят  :D

Почему-то мое сообщение с ссылкой удалили.  А я топикстартеру предлагала подумать над вариантами перегородок - можно же не только купейными дверями зонировать комнату, есть и много других способов. Например - стеллажи, шторы.

 
Почему-то мое сообщение с ссылкой удалили 

наверное потому и удалили,что со ссылкой. Давайте делать интересным ЭТОТ форум,а не ссылать народ на другие сайты. Если есть чем поделиться -думаю,все с удовольствием посмотрят и почитают текст с картинками ,размещенными ЗДЕСЬ.

 
Хороший дизайнер с хорошими строителями

Если конечно они работают в одной связке...

Для публикации сообщений создайте учётную запись или авторизуйтесь

Вы должны быть зарегистрированным пользователем, чтобы оставить комментарий

Создать учетную запись

Зарегистрируйтесь в нашем сообществе.

Зарегистрироваться

Войти

Уже есть аккаунт? Войти в систему.

Войти

Или войти с помощью одного из сервисов



  • Наши рекомендации

    • Подходы к ремонту старых домов в России
      В России сотни тысяч старых домов, многие из которых являются не только свидетельством исторического наследия, но и отражением уникальной культуры и традиций страны. Эти дома, будь то деревянные избы или старинные каменные постройки, сохраняют в себе дух времени и рассказывают историю поколений.

      • 0 ответов
    • Люк для кошек своими руками
      Разумеется давно придуманы и продаются специальные лючки для кошек, которые можно врезать в дверь, но мы ведь не ищем легких путей . Да и по зоомагазинам я не хожу, а "гугление" показало, что такие люки для кошек стоят относительно не дешево. В то же время под рукой были два "копеечных" сантехнических пластиковых лючка для ГКЛ. Все что оставалось, так это обломать фиксаторы крышек, что бы они открывались в обе стороны, ровно выпилить отверстие в двери, да вклеить симметрично эти лючки.

      То, что получилось видно на фото. Разумеется это не для тех, у кого "дизайнерский ремонт", но для обыкновенной квартиры вполне подходит. Недостатков не замечено, животных и людей всё устраивает .


      Реакцию форумчан на этот люк можно узнать в этой теме https://homemasters.ru/...me/?p=330637

        • Ого
      • 6 ответов
    • Кажись всё или строительный пылесос с тройной мультициклонной ступенью очистки
      Кажись всё или строительный пылесос с тройной мультициклонной ступенью очистки

        • Нравится
      • 16 ответов
    • Дома из сруба: идеальное сочетание уюта и прочности.
      Строительство собственного дома является важной вехой в жизни любого человека, поскольку оно знаменует собой важное событие. Выбор строительных материалов имеет огромное значение для создания теплого и функционального жилища. На протяжении всей древней истории древесина была распространенным материалом для строительства домов, что отразилось на различных культурах мира.

      • 0 ответов
    • Вторая жизнь дивана: искусство ремонта мягкой мебели своими руками
      В эпоху беспрерывного потребления и стремления к новизне, ремонт старой мягкой мебели своими руками приобретает не просто практическое, но и глубоко философское значение. Это действие как знак уважения к труду мастеров, которые вложили свое мастерство в создание диванов, кресел и пуфов, и как воплощение идеи устойчивого потребления. С каждым возвращенным к жизни предметом мебели, мы не только сохраняем историю и уникальность каждого изделия, но и противостоим бездумному обновлению интерьера за счет экологии и рационального использования ресурсов.

        • Нравится
      • 0 ответов
    • Аккумуляторные пилы  SCW и  SCM  22-A
      После того как провёл тесты, приступил к самому главному. Поменять диски местами, и проверить, как инструмент на это отреагирует, ведь они внешнее и походу внутренне практически одинаковые, пила по дереву конечно более навороченее, есть настройки угла наклона и можно на шину посадить через адаптер.

      • 4 ответа
    • Газовые котлы: эффективное, экономичное и экологичное решение для отопления вашего дома
      В современном мире, где комфорт и устойчивость стали ключевыми аспектами повседневной жизни, выбор правильного источника отопления дома становится особенно актуальным. Газовые котлы, сочетая в себе преимущества эффективности, экономичности и экологичности, представляют собой одно из наиболее популярных решений для обеспечения комфортной температуры в жилых и коммерческих помещениях.

      • 0 ответов
    • Как построить теплый дом, не тратя лишних денег
      Строительство гостевого дома решил выделить в отдельную тему, так будет меньше путаницы.


        • Спасибо
        • Нравится
      • 255 ответов
×
×
  • Создать...

Важная информация

Мы разместили cookie-файлы на ваше устройство, чтобы помочь сделать этот сайт лучше. Вы можете изменить свои настройки cookie-файлов, или продолжить без изменения настроек.