Перейти к содержанию
Форумы о ремонте и строительстве

Электропроводка в двушке и щиток. Покритикуйте и посоветуйте как лучше

Оценить эту тему:


Рекомендуемые сообщения

Опубликовано

Здравствуйте. Есть 2ушка в хрущевке после кап ремонта. проводка стояка - была заменена, содержимое щитков - тоже.

Моя задача - заменить своими силами проводку в квартире, заменить силами электрика внутренний щиток + счетчик. Схема первого я уже набросал, а вот с схемой щитка, и порядком замены счетчика - у меня пока что представление только на уровне автоматов. Всякие там УЗО, дифф автоматы - для меня темный лес, поэтому прошу помощи общественности. :hi:

на данный момент есть внешний щиток:

post-87326-0-78061300-1388956308_thumb.jpg

насколько я понимаю - это дифференциальный автомат на 32а.

Есть также внутренний щиток:

post-87326-0-12802100-1388956358_thumb.jpg

(тут я не понимаю - зачем нужен самый правый автомат - сверху проводок в него вроде воткнут, но снизу - ничего не воткнуто - если его отключить - ничего в квартире не отключается).

Таблица потребителей и групп у меня получилась вот такая:

post-87326-0-14516800-1388956997_thumb.jpg

Из особенностей - разделений групповых линий не по комнатам, а "по устройствам", т,е. например группа 5 - защищена UPS на два киловатта, все компьютеры, мониторы, и прочее подобное  в квартире будут подключаться именно к ней; группа 6 - преимущественно под мало-точные устройства(иногда - пылесос, редко - какая - нибудь дрель), из серии зарядок, стационарного телефона и подобного, поэтому розетки этой группы есть и на кухне, и в комнатах; TB техника - висит тоже на отдельной линии - 8.

часть линий уже проложена и замурована - это линии 5, 6, 7, 8. К сожалению электрик попался так себе, пришлось отказаться от его услуг, поэтому есть косяки из серии кабеля ПВС 3X1.5 от UPS до каждой компьютерной четверки розеток - он это аргументировал тем что как раз удлинители для компьютеров этим кабелем и делают. но в целом, на один компьютер вряд ли будет больше киловатта, поэтому тут переделывать не буду, оставлю как есть.

Вот схема силовых групп:

post-87326-0-72388400-1388957582_thumb.png

Красные квадраты - это распаячные коробки, но часть распаек я хочу делать в глубоких подрозетниках (красные розетки). Соединять провода буду через паяные скрутки,  и сверху для верности закручивать СИЗЫ(это нормальный вариант?). Потренировался - вроде влезает скрутка в подрозетник, и еще место остается для самой розетки. Принципиально не хочу соединять шлейфами розетки - буду от скрутки в "распаячном подрозетнике" кидать свою параллельную линию на каждую розетку. Этим и PE не будет прерываться, и в целом будут более надежно работать сами розетки - если одна сломается, останутся в живых все остальные.

Вот схема группы освещения на комнаты:

post-87326-0-64885600-1388958113_thumb.png

Из особенностей - все распайки группы я опять же планирую разместить в глубоком подрозетнике, в котором также будет расположен двойной выключатель  света гостиной.

А вот схема этой распайки, посмотрите пожалуйста - я тут нигде не накосячил?

 post-87326-0-71837900-1388958239_thumb.png

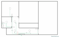
Теперь привожу общую схему освещения коридора/ванной/кухни:

post-87326-0-34637200-1388958397_thumb.png

Опять же, тут все распайки группы - в подрозетниках; плюс тут проходные выключатели света в коридоре. Вот схема этой распайки, если можно - гляньте, все ли верно:

post-87326-0-43689000-1388958486_thumb.png

Что мне нужно:

1) ваша критика и комментарии по схеме электропроводки и способу монтажа, который я выбрал.

2) что мне дальше делать с щитком? какие УЗО, или/и дифф автоматы в него ставить?

3) как мне заменить счетчик? я так понимаю, это нужно приглашать товарищей из мосэнергосбыта. Какой порядок замены будет? мне нужно будет подать заявление, потом - пригласить товарищей на установку нового счетчика? а специалист от мосэнергосбыта не начнет придераться к тому что я заменил электропроводку в квартире? может быть еще придется и проект какой нибудь делать, его как то там защищать? Помогите плиз, разъясните что к чему :)

post-87326-0-98960100-1388958395_thumb.png

таблицу придется переделывать, не диф автоматов или узо  нету,  таблица как минимум вдвое должна быть больше

32а на кухню  на розетки,  это в корне не правильно,  у вас есть кабель 3х2.5  его должен защищать 16А   вы же туда тащите  3Х4  под 32А при этом там потребители  обычные бытовые приборы, лучше просто больше групп сделать и каждую под свой отдельный автомат распределить

СВЧ чайник  3х2.5 16А

прочее  3х2.5  10А  или 6А (кабель на всякий случай  больше сечением) или  3х1.5   если экономия требует

и так всё остальное пересмотреть

Подписываемся на тему День за днём, моя работа https://homemasters.ru/...esta-raboty/ и на мой инстарам https://www.instagram.c...gda35remont/

Принимаю заказы на мебель из слэбов

 

(изменено)

@Sano,  вы писали:

таблицу придется переделывать, не диф автоматов или узо  нету,  таблица как минимум вдвое должна быть больше

переделать придется потому что мало групп, или потому что нет диф автоматов и узо? я просто в последних не разбираюсь, надеялся что мне форум хоть как нибудь поможет...

СВЧ чайник  3х2.5 16А

не уверен что у меня хватит одной ветки 16а под свч и чайник. я купил вот эту свч http://market.yandex.ru/model-spec....16&hid=90595, Она в смешенных режимах по 2800ватт потребляет. а это уже 12 ампер. плюс если на эту же ветку повесить нормальный мощный чайник, и включить их одновременно, а такое в принципе бывает не редко, то это будет одновременно около 20а легко, а это уже больше 16а... Думаете стоит просто несколько линий под 16А сделать, по розетке на штуку? А не проще все таки одним мощным кабелем, почему вы вариант с ним забраковали?

и так все остальное пересмотреть

кроме кухни есть по комнатам подобные замечания?

Изменено пользователем Grizzli

вкратце,   на работе некогда печатать

переделать придется потому что мало групп, или потому что нет диф автоматов и узо?

по этим обоим причинам

А не проще все таки одним мощным кабелем, почему вы вариант с ним забраковали?

не проще, все розетки  кроме силовых рассчитаны на 16А,  это 32А  вообще ничего не защитит,  всё сплавится  и только потом он от КЗ сработает

если потребители мощные  значит отдельные линии к ним, группировать есть смысл  только маломощные  потребители, например  вытяжку и телек в кухне,  ещё что добавить в виде розетки под блэндер и прочее

кроме кухни есть по комнатам подобные замечания?

Второй объект это санузел,  там тоже требуется всё с защитой и правильно распределить

там и до комнат можно добраться

Подписываемся на тему День за днём, моя работа https://homemasters.ru/...esta-raboty/ и на мой инстарам https://www.instagram.c...gda35remont/

Принимаю заказы на мебель из слэбов

 

я тут нигде не накосячил?

Всё верно.

гляньте, все ли верно

Ага, всё правильно.

Что касается узо/дифов, то сначала определись что именно будешь ими защищать и окончательно определись с количеством розеточных групп. Тогда и будет смысл про узо говорить.

П.С. И по вводному дифу. На фотке не видно его характеристик (мА).

Sano


там и до комнат можно добраться

 
Вот новая версия таблицы и схемы силовой разводки по всей квартире(2420 - это ватты):
post-87326-0-33956400-1389013597_thumb.png post-87326-0-35596100-1389013604_thumb.jpg
Bagis:
 

И по вводному дифу. На фотке не видно его характеристик (мА).

 

30mA

Я бы ограничился двумя узо 16А10мА. Одно да розетки ванной, другое на стиралку. 

Не понятно управление светом в совмещённом туалете/ванной (если это они конечно, там ничего не подписано :)).

Зачем две лампы и два отдельных выключателя, не проще проходные поставить, как в коридоре, если нужно изнутри свет выключать ;)?

Не понятно управление светом в совмещённом туалете/ванной (если это они конечно, там ничего не подписано ). Зачем две лампы и два отдельных выключателя, не проще проходные поставить, как в коридоре, если нужно изнутри свет выключать ?

да, это совмещенный санузел. снаружи - выключатель общего света в ванной. внутри - выключатель подсветки ниши. там просто шкафчик со спотами, у него свой выключатель есть.

баба яга против

освещение можно  и больше групп сделать,  вырубит автомат  или будите люстру вешать  лампы менять  пыль протирать,  все будут без света сидеть

а сан узел тем более отдельно

и по защите так не понятно узо или  диф

Подписываемся на тему День за днём, моя работа https://homemasters.ru/...esta-raboty/ и на мой инстарам https://www.instagram.c...gda35remont/

Принимаю заказы на мебель из слэбов

 

и по защите так не понятно узо или диф

Мне тоже не понятно, поэтому помощи и прошу с ними... мне вообще не понятно, что оно такое, и с чем их едят.. Может быть вы предложите какой нибудь свой вариант?

мне вообще не понятно, что оно такое, и с чем их едят.

тогда лучше  вам самим разобраться с этим, для понимания,  т.к.  они не дешевые  от 1500р и дальше 

тут есть темы про узо и диф.автоматы

Подписываемся на тему День за днём, моя работа https://homemasters.ru/...esta-raboty/ и на мой инстарам https://www.instagram.c...gda35remont/

Принимаю заказы на мебель из слэбов

 

@Grizzli, не, он спрашивает что на вводе стоит за агрегат. Ты сфотай его поближе чтоб цифры и рисунки было видно.

По уму должен быть ДифАвтомат, но лучше уточнить.

Количество УЗО, итем более Дифов зависит от Ваших финансовых возможностей и как следствие применяемой линейки производителя защитной аппаратуры. Исходя из вашей группировки логичнее использовать УЗО на 30мА (скажем 2 штуки), можно в принципе найти место и для 10мА-х УЗО, но тогда бы вся группировка была другая и одним бы дело не ограничилось (это дополнительно к 30мА-м). :)

Видите, УЗО/группировка автоматов/количество хвостов на питание следуют одно из другого... Есть логика: срабатывание УЗО влечёт обесточивание каких-то групп (свет,розетки, устройства отдельные). Это верно естественно и в отношении отдельных автоматов на группы. В зависимости от критичности такого обесточивания и строится схема. Если некритично, можно поставить одно УЗО на всю квартиру (оно у вас в принципе уже стоит). Если критично - разбивайте на 2,3 и более критичных групп и на каждую делай те своё УЗО. А вводное можно заменить, на на 100мА, Автомат или в принципе Выключатель Нагрузки (типа рубильника).

одним узо тут точно не обойтись,  по утечке сработает  и привет  сидим без энергии

3-4 штуки  но это уже по карману хорошо ударит

Подписываемся на тему День за днём, моя работа https://homemasters.ru/...esta-raboty/ и на мой инстарам https://www.instagram.c...gda35remont/

Принимаю заказы на мебель из слэбов

 

Ты сфотай его поближе чтоб цифры и рисунки было видно.
Так @Grizzli же уже писал - 30мА. На первой фотке видно название - АД12, значит диф :)

Именно поэтому я и предложил ограничится всего двумя узо 16А10мА.

На всякий случай: узо подключается в паре с автоматом. Последовательно. В данном случае можно сначала линейный автомат (16А), а потом вышеозначенное узо, можно наоборот - сначала узо, потом автомат. Как удобнее.

Именно поэтому я и предложил ограничится всего двумя узо 16А10мА.

непрокатит,  ладно на санузел 10мА,  но одно узо на всё остальное, по утечке вполне начнёт срабатывать

Подписываемся на тему День за днём, моя работа https://homemasters.ru/...esta-raboty/ и на мой инстарам https://www.instagram.c...gda35remont/

Принимаю заказы на мебель из слэбов

 

Именно поэтому я и предложил ограничится всего двумя узо 16А10мА
Я ж говорю, схему придётся переделать. Сработает на "остальное" и кукуй впотёмках.

Насколько я помню у вас сейчас сплошь и рядом в лестничных щитках УК ставят дифы, и именно на 30мА. Тут уже несколько раз мелькали фотки с подобными щитками. Народ вроде не жаловался, да и вы раньше к этому не придирались ;)

Но если ТС решит и в лестничном щитке порядок наводить - я только ЗА :)

ставят,  только дальнейшие проблемы негров  шерифа не тыкают,  кстати они и автоматики на 25А не забывают поставить,а штобы не выбивало :)

Подписываемся на тему День за днём, моя работа https://homemasters.ru/...esta-raboty/ и на мой инстарам https://www.instagram.c...gda35remont/

Принимаю заказы на мебель из слэбов

 

Для публикации сообщений создайте учётную запись или авторизуйтесь

Вы должны быть зарегистрированным пользователем, чтобы оставить комментарий

Создать учетную запись

Зарегистрируйтесь в нашем сообществе.

Зарегистрироваться

Войти

Уже есть аккаунт? Войти в систему.

Войти

Или войти с помощью одного из сервисов



  • Наши рекомендации

    • Кажись всё или строительный пылесос с тройной мультициклонной ступенью очистки
      Кажись всё или строительный пылесос с тройной мультициклонной ступенью очистки

        • Нравится
      • 16 ответов
    • Вторая жизнь дивана: искусство ремонта мягкой мебели своими руками
      В эпоху беспрерывного потребления и стремления к новизне, ремонт старой мягкой мебели своими руками приобретает не просто практическое, но и глубоко философское значение. Это действие как знак уважения к труду мастеров, которые вложили свое мастерство в создание диванов, кресел и пуфов, и как воплощение идеи устойчивого потребления. С каждым возвращенным к жизни предметом мебели, мы не только сохраняем историю и уникальность каждого изделия, но и противостоим бездумному обновлению интерьера за счет экологии и рационального использования ресурсов.

        • Нравится
      • 0 ответов
    • Аккумуляторные пилы  SCW и  SCM  22-A
      После того как провёл тесты, приступил к самому главному. Поменять диски местами, и проверить, как инструмент на это отреагирует, ведь они внешнее и походу внутренне практически одинаковые, пила по дереву конечно более навороченее, есть настройки угла наклона и можно на шину посадить через адаптер.

      • 4 ответа
    • Как построить теплый дом, не тратя лишних денег
      Строительство гостевого дома решил выделить в отдельную тему, так будет меньше путаницы.


        • Спасибо
        • Нравится
      • 239 ответов
    • Дома из сруба: идеальное сочетание уюта и прочности.
      Строительство собственного дома является важной вехой в жизни любого человека, поскольку оно знаменует собой важное событие. Выбор строительных материалов имеет огромное значение для создания теплого и функционального жилища. На протяжении всей древней истории древесина была распространенным материалом для строительства домов, что отразилось на различных культурах мира.

      • 0 ответов
    • Люк для кошек своими руками
      Разумеется давно придуманы и продаются специальные лючки для кошек, которые можно врезать в дверь, но мы ведь не ищем легких путей . Да и по зоомагазинам я не хожу, а "гугление" показало, что такие люки для кошек стоят относительно не дешево. В то же время под рукой были два "копеечных" сантехнических пластиковых лючка для ГКЛ. Все что оставалось, так это обломать фиксаторы крышек, что бы они открывались в обе стороны, ровно выпилить отверстие в двери, да вклеить симметрично эти лючки.

      То, что получилось видно на фото. Разумеется это не для тех, у кого "дизайнерский ремонт", но для обыкновенной квартиры вполне подходит. Недостатков не замечено, животных и людей всё устраивает .


      Реакцию форумчан на этот люк можно узнать в этой теме https://homemasters.ru/...me/?p=330637

        • Ого
      • 6 ответов
    • Подходы к ремонту старых домов в России
      В России сотни тысяч старых домов, многие из которых являются не только свидетельством исторического наследия, но и отражением уникальной культуры и традиций страны. Эти дома, будь то деревянные избы или старинные каменные постройки, сохраняют в себе дух времени и рассказывают историю поколений.

      • 0 ответов
    • Газовые котлы: эффективное, экономичное и экологичное решение для отопления вашего дома
      В современном мире, где комфорт и устойчивость стали ключевыми аспектами повседневной жизни, выбор правильного источника отопления дома становится особенно актуальным. Газовые котлы, сочетая в себе преимущества эффективности, экономичности и экологичности, представляют собой одно из наиболее популярных решений для обеспечения комфортной температуры в жилых и коммерческих помещениях.

      • 0 ответов
×
×
  • Создать...

Важная информация

Мы разместили cookie-файлы на ваше устройство, чтобы помочь сделать этот сайт лучше. Вы можете изменить свои настройки cookie-файлов, или продолжить без изменения настроек.