Перейти к содержанию
Форумы о ремонте и строительстве

Hager EU100 и замена ввода в квартиру

Оценить эту тему:


Рекомендуемые сообщения

(изменено)

Сейчас пока так
post-14527-0-86374800-1399537511_thumb.jpg
В зале и оставшихся прихожих пока по старой алюминиевой проводке. Автомат на вводе в этажном щитке 16А, т.к. одна линия алюминий 2,5мм. То, что уже есть, собрано во временном щитке в зале. Новый щиток будет стоять внутри квартиры возле входных дверей.

Планирую сделать так

post-14527-0-85984000-1399537497_thumb.jpg

Изменено пользователем rosst

Так при такой схеме противопожарное - деньги на ветер! Тут и так уже все линии групповыми узо перекрыты. Противопожарное есть смысл ставить когда имеются не "закрытые" автоматы.

Дело, конечно, не моё, но зачем для освещения ванной и остальных помещений на этом автомате, автомат на 16 и кабель 2.5? Хватило бы 10 и 1.5 соответственно.

зачем для освещения ванной и остальных помещений на этом автомате, автомат на 16 и кабель 2.5? Хватило бы 10 и 1.5 соответственно.

На одном стиралка, свет ванная и туалет, вентилятор; второй: розетка ванная (фен), розетка туалет (водогрей - работает постоянно); третий: основной свет в кухне, свет прихожая и розетка в прихожей, от которой очень часто запитан пылесос 2кВт и парогенератор 1,8кВт. Выключатели ванная, туалет, прихожая, кухня - все в одном месте между туалетом и ванной.

Смысла городить еще одну линию отдельно на свет я не видел. Проводка меняется частями, где делается ремонт: сначала туалет, ванная, прихожая рядом; потом спальни (линии в спальни идут через кухню); потом кухня. Теперь планирую зал, через который идут все линии к будущему щитку возле входной двери, и оставшиеся прихожие.

В общем, пока я смотрю что с чем включать, чтобы не выбило, а когда включаю духовку - больше ничего не включаю, даже выключаю водогрей, кроме света и телевизоров - выбивает.

Так при такой схеме противопожарное - деньги на ветер! Тут и так уже все линии групповыми узо перекрыты. Противопожарное есть смысл ставить когда имеются не "закрытые" автоматы.

Для чего тогда, вообще, ставят противопожарные узо, если узо на линиях сработают гораздо раньше? Или оно на случай если узо на линиях не стаботало и утечка продолжается, разогревая при этом проводник?

Если первое УЗО на 63А на второй схеме не подразумевается как противопожарное,то оно вообще бессмысленно.
Что гласит по поводу пожарного УЗО ПУЭ: 7.1.84. Для повышения уровня защиты от возгорания при замыканиях на заземленные части, когда величина тока недостаточна для срабатывания максимальной токовой защиты, на вводе в квартиру, индивидуальный дом и т.п. рекомендуется установка УЗО с током срабатывания до 300 мА.

Для чего тогда, вообще, ставят противопожарные узо, если узо на линиях сработают гораздо раньше?

Наверное я невнятно объяснил. Не все ставят так много узо на 30мА как у тебя. У тебя на схеме все линии уже закрыты узошками. Смысла в ещё одном общем сугубо противопожарном нет. С этой противопожарной функцией справятся те три что уже стоят. А отдельное противопожарное ставится там где есть линии не защищённые другими, ниже стоящими, узо. Так яснее?  :)

Если первое УЗО на 63А на второй схеме не подразумевается как противопожарное,то оно вообще бессмысленно.

Оно как раз и подразумевается как противопожарное, только, на мой взгляд, в данном случае оно и как противопожарное тут нафиг не надо :)

на мой взгляд, в данном случае оно и как противопожарное тут нафиг не надо

И на мой тоже :) 

 

Серега прозревать начал :lol:  не прошло и полтора года, УЗО противопожарное, ставится когда после него есть провода не защищенные (узо или дифавтоматами) к примеру до щитка квартирного, до ламп освещения

но ИМХО зачем защищать провод на лампы в бетонной плите - деньги на ветер, если будет повреждение - влажность повысится, автомат сработает

Это чавойто ты на меня батон крошишь? :D Да, я всегда за противопожарное, но только там где оно действительно надо :)

(изменено)

Так яснее? 

Теперь понял  :)

Оно как раз и подразумевается как противопожарное, только, на мой взгляд, в данном случае оно и как противопожарное тут нафиг не надо

И на мой тоже

УЗО противопожарное, ставится когда после него есть провода не защищенные (узо или дифавтоматами) к примеру до щитка квартирного, до ламп освещения

Все, убедили  :)

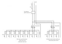
Теперь будет так

post-14527-0-23179900-1399613255_thumb.jpg

Спасибо всем!  :D

Изменено пользователем rosst
  • 1 год спустя...

После вынужденный паузы возвращаюсь к затронутой теме но немного  в другом ракурсе. Цель: 1. Замена проводки от этажного щита до квартиры (4 метра); 2. Установка квартирного щитка с входным 2-х полюсным автоматом 25А "С", реле напряжение РН-104 (40А) "Новатек-Электро" и 2 автоматических выключателя 16А "С".
В этажном щитке остается пакетный переключатель и сам счетчик. Кабель использую ВВГ 3х4. На даном этапе не рассматриваю установку УЗО  - его установка будет после полного ремонта квартиры. Прошу беспощадной оценки и указания ошибок.

post-71642-0-80370700-1442156616_thumb.jpg

Прошу беспощадной оценки и указания ошибок.
Да тут особо и оценавать то нечего) Ошибок тоже нет.
В настоящий момент что находится в этажном щитке?

Щит 1987-1988 гг. По договору на квартиру 3кВт. Вот схема: post-71642-0-63289100-1442267549_thumb.gif


Да тут особо и оценавать то нечего) Ошибок тоже нет.

Автоматы "С"  или "В"?

Автоматы "С"  или "В"?
Если есть возможность, то лучше В, но и, как верно заметил Димп, С тоже можно.
Если есть возможность, то лучше В, но и, как верно заметил Димп, С тоже можно.
 

Hager MC225A In=25А,2п,С,6kA - 1 шт.;
Hager MB116A In=16А,1п,В,6kA, - 2 шт.

Или заменить МС225А на МВ225А?

@gorik, неверно поняли друг друга. 25 как раз хорошо что С, а линейные, как раз, хорошо что В) Короче, всё пучком))

Еще вопросы:

1. Есть ли смысл устанавливать отдельный АВ: входной звонок + модем, или может "зацепить" это на коридорную линию розеток?

2. Обясните по характеристике предельного тока короткого замыкания: что лучше 4,5 кА или 6 кА?

Еще вопросы:

1. Есть ли смысл устанавливать отдельный АВ: входной звонок + модем, или может "зацепить" это на коридорную линию розеток?

Я так понял это пока времянка? Тогда можно и на коридорную линию.

2. Обясните по характеристике предельного тока короткого замыкания: что лучше 4,5 кА или 6 кА?

Скажу так, в Европе на 4.5 запрещены и не используются.

Для публикации сообщений создайте учётную запись или авторизуйтесь

Вы должны быть зарегистрированным пользователем, чтобы оставить комментарий

Создать учетную запись

Зарегистрируйтесь в нашем сообществе.

Зарегистрироваться

Войти

Уже есть аккаунт? Войти в систему.

Войти

Или войти с помощью одного из сервисов



  • Наши рекомендации

    • Кажись всё или строительный пылесос с тройной мультициклонной ступенью очистки
      Кажись всё или строительный пылесос с тройной мультициклонной ступенью очистки

        • Нравится
      • 16 ответов
    • Люк для кошек своими руками
      Разумеется давно придуманы и продаются специальные лючки для кошек, которые можно врезать в дверь, но мы ведь не ищем легких путей . Да и по зоомагазинам я не хожу, а "гугление" показало, что такие люки для кошек стоят относительно не дешево. В то же время под рукой были два "копеечных" сантехнических пластиковых лючка для ГКЛ. Все что оставалось, так это обломать фиксаторы крышек, что бы они открывались в обе стороны, ровно выпилить отверстие в двери, да вклеить симметрично эти лючки.

      То, что получилось видно на фото. Разумеется это не для тех, у кого "дизайнерский ремонт", но для обыкновенной квартиры вполне подходит. Недостатков не замечено, животных и людей всё устраивает .


      Реакцию форумчан на этот люк можно узнать в этой теме https://homemasters.ru/...me/?p=330637

        • Ого
      • 6 ответов
    • Газовые котлы: эффективное, экономичное и экологичное решение для отопления вашего дома
      В современном мире, где комфорт и устойчивость стали ключевыми аспектами повседневной жизни, выбор правильного источника отопления дома становится особенно актуальным. Газовые котлы, сочетая в себе преимущества эффективности, экономичности и экологичности, представляют собой одно из наиболее популярных решений для обеспечения комфортной температуры в жилых и коммерческих помещениях.

      • 0 ответов
    • Аккумуляторные пилы  SCW и  SCM  22-A
      После того как провёл тесты, приступил к самому главному. Поменять диски местами, и проверить, как инструмент на это отреагирует, ведь они внешнее и походу внутренне практически одинаковые, пила по дереву конечно более навороченее, есть настройки угла наклона и можно на шину посадить через адаптер.

      • 4 ответа
    • Как построить теплый дом, не тратя лишних денег
      Строительство гостевого дома решил выделить в отдельную тему, так будет меньше путаницы.


        • Спасибо
        • Нравится
      • 259 ответов
    • Подходы к ремонту старых домов в России
      В России сотни тысяч старых домов, многие из которых являются не только свидетельством исторического наследия, но и отражением уникальной культуры и традиций страны. Эти дома, будь то деревянные избы или старинные каменные постройки, сохраняют в себе дух времени и рассказывают историю поколений.

      • 0 ответов
    • Дома из сруба: идеальное сочетание уюта и прочности.
      Строительство собственного дома является важной вехой в жизни любого человека, поскольку оно знаменует собой важное событие. Выбор строительных материалов имеет огромное значение для создания теплого и функционального жилища. На протяжении всей древней истории древесина была распространенным материалом для строительства домов, что отразилось на различных культурах мира.

      • 0 ответов
    • Вторая жизнь дивана: искусство ремонта мягкой мебели своими руками
      В эпоху беспрерывного потребления и стремления к новизне, ремонт старой мягкой мебели своими руками приобретает не просто практическое, но и глубоко философское значение. Это действие как знак уважения к труду мастеров, которые вложили свое мастерство в создание диванов, кресел и пуфов, и как воплощение идеи устойчивого потребления. С каждым возвращенным к жизни предметом мебели, мы не только сохраняем историю и уникальность каждого изделия, но и противостоим бездумному обновлению интерьера за счет экологии и рационального использования ресурсов.

        • Нравится
      • 0 ответов
×
×
  • Создать...

Важная информация

Мы разместили cookie-файлы на ваше устройство, чтобы помочь сделать этот сайт лучше. Вы можете изменить свои настройки cookie-файлов, или продолжить без изменения настроек.