Перейти к содержанию
Форумы о ремонте и строительстве

Можно ли так переделать подключение ПС?

Оценить эту тему:


Рекомендуемые сообщения

Опубликовано

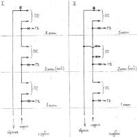
Здравствуйте уважаемые мастера водопроводно-сантехнических дел!Я живу на 2-ом этаже 3-х этажного дома. Задумав ремонтировать свои санузлы, я и сосед, живущий подо мной, самостоятельно заменили старые водопроводные стояки на ПП на всех трёх этажах (т.е. от подвала до самой верхней точки). При этом схему разводки труб оставили без изменений. На коряво нарисованной прикреплённой ниже картинке (уж простите меня - изобразил как сумел) она находится слева. Сейчас я делаю небольшую перепланировку своего санузла (полотенцесушитель порядком отдаляется от стояка) и у меня возник вопрос, а нельзя ли мне переделать подключение ПС по варианту II (на рисунке справа)? Не "просажу" ли я таким подключением давление горячей воды у соседа сверху? Каково у нас давление на входе в стояк мне, к сожалению не известно. Стояки мы с содедом сделали из ПП трубы 25мм, отводы для разбора воды внутри квартир - из ПП 20мм. Старые стальные были 3/4" и 1/2" соответственно, но с учётом отложений внутри них, мягко говоря, значительно меньше. Если задуманный мной вариант имеет право на жизнь, то отводы на ПС, наверное следует делать из ПП 20мм или это не принципиально?

post-3954-1225360833_thumb.jpg

Не имеет право на жизнь, оставите соседа без ГВ, и потом, с Вашими то тремя этажами... чего кипятка не поделите соседи? В)

Как раз кипятком-то мне и не хочется соседа обделять! Идея возникла в связи с перепланировкой и ремонтом у меня в санузле. Во-первых, мне показалось, что витиевато изгибать стояк у себя на этаже (полотенцесушитель переезжает на новое место жительства) как-то не правильно, а во-вторых, хотелось бы на время ремонта иметь возможность работы со снятым ПС (чтобы неспеша и аккуратно уложить плиточку), не мешая лишний раз тем же соседям перекрываниями стояка. Раз вариант, про который я спросил, права на жизнь не имеет, значит остаётся сделать байпас.P.S. Однако же, мне любопытно как, же в других домах сделано так, что для входов и выходов на ПС имеются отводы от разных стояков? Какие для такой двухтрубной схемы необходимы особые условия? Давление выше? Верхняя разводка может быть нужна? Или ещё что?

никакой паталогии в вашей схеме переделке (вернее переподключения) ПС не вижу. Вода у соседа будет

Вода у соседа будет

Да будет... при правильной врезке - байпасом о чем автор и упомянул

Для публикации сообщений создайте учётную запись или авторизуйтесь

Вы должны быть зарегистрированным пользователем, чтобы оставить комментарий

Создать учетную запись

Зарегистрируйтесь в нашем сообществе.

Зарегистрироваться

Войти

Уже есть аккаунт? Войти в систему.

Войти

Или войти с помощью одного из сервисов



  • Наши рекомендации

    • Как построить теплый дом, не тратя лишних денег
      Строительство гостевого дома решил выделить в отдельную тему, так будет меньше путаницы.


        • Спасибо
        • Нравится
      • 259 ответов
    • Люк для кошек своими руками
      Разумеется давно придуманы и продаются специальные лючки для кошек, которые можно врезать в дверь, но мы ведь не ищем легких путей . Да и по зоомагазинам я не хожу, а "гугление" показало, что такие люки для кошек стоят относительно не дешево. В то же время под рукой были два "копеечных" сантехнических пластиковых лючка для ГКЛ. Все что оставалось, так это обломать фиксаторы крышек, что бы они открывались в обе стороны, ровно выпилить отверстие в двери, да вклеить симметрично эти лючки.

      То, что получилось видно на фото. Разумеется это не для тех, у кого "дизайнерский ремонт", но для обыкновенной квартиры вполне подходит. Недостатков не замечено, животных и людей всё устраивает .


      Реакцию форумчан на этот люк можно узнать в этой теме https://homemasters.ru/...me/?p=330637

        • Ого
      • 6 ответов
    • Аккумуляторные пилы  SCW и  SCM  22-A
      После того как провёл тесты, приступил к самому главному. Поменять диски местами, и проверить, как инструмент на это отреагирует, ведь они внешнее и походу внутренне практически одинаковые, пила по дереву конечно более навороченее, есть настройки угла наклона и можно на шину посадить через адаптер.

      • 4 ответа
    • Дома из сруба: идеальное сочетание уюта и прочности.
      Строительство собственного дома является важной вехой в жизни любого человека, поскольку оно знаменует собой важное событие. Выбор строительных материалов имеет огромное значение для создания теплого и функционального жилища. На протяжении всей древней истории древесина была распространенным материалом для строительства домов, что отразилось на различных культурах мира.

      • 0 ответов
    • Подходы к ремонту старых домов в России
      В России сотни тысяч старых домов, многие из которых являются не только свидетельством исторического наследия, но и отражением уникальной культуры и традиций страны. Эти дома, будь то деревянные избы или старинные каменные постройки, сохраняют в себе дух времени и рассказывают историю поколений.

      • 0 ответов
    • Вторая жизнь дивана: искусство ремонта мягкой мебели своими руками
      В эпоху беспрерывного потребления и стремления к новизне, ремонт старой мягкой мебели своими руками приобретает не просто практическое, но и глубоко философское значение. Это действие как знак уважения к труду мастеров, которые вложили свое мастерство в создание диванов, кресел и пуфов, и как воплощение идеи устойчивого потребления. С каждым возвращенным к жизни предметом мебели, мы не только сохраняем историю и уникальность каждого изделия, но и противостоим бездумному обновлению интерьера за счет экологии и рационального использования ресурсов.

        • Нравится
      • 0 ответов
    • Газовые котлы: эффективное, экономичное и экологичное решение для отопления вашего дома
      В современном мире, где комфорт и устойчивость стали ключевыми аспектами повседневной жизни, выбор правильного источника отопления дома становится особенно актуальным. Газовые котлы, сочетая в себе преимущества эффективности, экономичности и экологичности, представляют собой одно из наиболее популярных решений для обеспечения комфортной температуры в жилых и коммерческих помещениях.

      • 0 ответов
    • Кажись всё или строительный пылесос с тройной мультициклонной ступенью очистки
      Кажись всё или строительный пылесос с тройной мультициклонной ступенью очистки

        • Нравится
      • 16 ответов
×
×
  • Создать...

Важная информация

Мы разместили cookie-файлы на ваше устройство, чтобы помочь сделать этот сайт лучше. Вы можете изменить свои настройки cookie-файлов, или продолжить без изменения настроек.