Перейти к содержанию
Форумы о ремонте и строительстве

Коллектор для пластиковых труб

Оценить эту тему:


Рекомендуемые сообщения

Опубликовано

Хочу заменить трубы в туалете новостройки

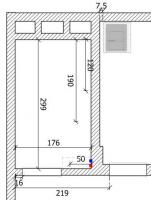
Стояки расположены на лестничной клетке (наверное, для удобства считывания показаний счётчиков и перекрывания воды потребителям) далее трубы в квартиры входят под полом. На плане ниже синей и красной точкой отображены места ввода. Серым пунктиром стенки будущего короба, а 50 см это расстояние от стены до трубы отопления.

Помня непередаваемые ощущения радости, возникающие, когда ты находишься в душе, а кто то на кухне открывает воду, было решено сделать так широко используемый тут коллектор.

Трубы планируется поставить пластиковые. Я уже побывал в галерее Tehnik-san и взглянул на монтаж пластикового трубопровода и «магистральный коллектор»

И в связи с этим у меня возникает вопрос.

Как же правильно его сделать?

1 шаг в любом случае одинаков, нарастить трубы вверх и врезать краны и проточные фильтры (косые фильтры грубой очистки и счётчик уже установлены на лестничной клетке) обратный клапан вроде сильно не нужен, а места в коробе для картриджных фильтров может не хватить, так что они опциональны.

2 сам коллектор и разводка

Тут на форуме проскочила мысль что пластиковый коллектор должен быть на 1” при условии что потребителям идут трубы ½”

Исходя из этого, коллектор можно установить вертикально в коробе либо вмонтировать вдоль потребителей в стену

В первом варианте, очень много труб

Во втором труба одна точнее две, но на них должна быть ещё и теплоизоляция, что ведёт к увеличению объёма трубы, а сама стена сделана из газоблоков и толщиной 10 см плюс по 1,5 - 2 см штукатурки

Ну вот мы и вернулись к сабжу , как же поступить в данной ситуации?

post-30160-1249996673_thumb.jpg

post-30160-1249996795_thumb.jpg

post-30160-1249996803_thumb.jpg

Ну дык я тоже стал её сторонником наслушавшись хвалебных отзывов тут на сайте, не даром же я же перелопатил всё что было на форуме за последние 2 годаВопрос же бы, какой из вариантов выбрать, и если ни какой, то какова альтернативаА метало-пластик это конечно круто, но я смутно подозреваю что найти спецов по нему и тем более качественные материалы тут проблематично, поэтому и был выбран ПП

А метало-пластик это конечно круто, но я смутно подозреваю что найти спецов по нему и тем более качественные материалы тут проблематично, поэтому и был выбран ПП

Мнение Tehnik-san о коллекторах

ссылка https://homemasters.ru/...bor/?p=64600

цитирую:

Выскажу свое мнение,(не претендуя на истину,в последней инстанции).Считаю что коллекторная система (К.С.) оправдана только для металлопластиковых труб,а не для полипропилена. К.С. придумана для укладки целой трубы,без спрятанных в стены лишних соединений в штробы,без замурованных стыков-это присуще для металлопластиковой трубы,от коллектора к потребителю всего один стык на водорозетке и тот под пресс.Рассмотрим полипропилен-сколько там паянных и затем замурованных стыков при коллекторной разводке? Нонсенс ? Конечно ! Рассмотрим вопрос по гидравлике- при одновременном включении потребителей падает давление и можно обжечься принимая душ,когда на кухне супруга включит смеситель мойки и у нас стоИт последовательная схема ? Так это же решаеться в последовательной схеме методом вытянутого коллектора из той же трассы,только большего диаметра.увеличением сечения основной трассы....как бы паянного тройниками коллектора.Обьясню проще.Если выбрали полипропилен,тогда от ввода начинаем укладку 32ПП трубы при 5-7 потребителях и 25ПП трубы при 3 потребителях(это касаеться отдельного стояка кухни) и от ПП32 идёт трасса на два потребителя ПП25 и от неё ПП20 к каждому.Если стоят приборы близко к узлу ввода-то от ПП32 так же как и от коллектора к потребителю ПП20.

Но здесь возникает вопрос-как отсечь независимо при поломке или обслуживании приборы,не имеющие своих кранов именно в точке размещения-это смеситель ванны,встраиваемый гиг.душ или встраиваемый смеситель душкабины.Как раз этих потребителей и следует запитать от коллектора.Но если есть ещё сан.узлы в квартире,то можно и на пару часов или суток,для замены и перекрыть общие краны в ИМЕННО этот ремонтируемый С/У и пользоваться другим.Каждый раз это оговариваеться индивидуально и принимаеться решение в зависимости от предпочтений потребителя.Большинство приборов:умывальник,кухня,W C имеют свои угловые краны на своих же водорозетках,зачем дублировать их и на коллекторе-это имелось ввиду.Лишь встраиваемые смесители не имеют такой конструктивной особенности отдельного автономного отключения при последовательном трубопроводе и чтобы их отключать,при последовательной схеме,требуеться перекрывать общие краны на весь С/У.Поэтому чаще всего и монтирую СОВМЕЩЁННУЮ коллекторно-последовательную схему . От коллектора вести трассы только к смесителю ванны,гиг.душа и душ.кабины к остальным же приборам схема остаёться последовательной,через тройники.Это касаеться разводки или медью или ПП.Металлопластиком приемлима только коллеторная схема-она себя именно при металлопласте и оправдывает.При меди и ПП - коллекторная схема квартирного водоснабжения являеться излишеством,это моя уже наработанная схема и личное мнение, плюсы и минусы приводил ранее

Спасибо за цитату, но как раз именно на ней и основан один из вариантовВдоль всей стены идут 2 трубы 25ПП и от неё разводятся к потребителям отводы по 20ППМне просто интересно на сколько жизнеспособен этот вариант

Спасибо за цитату, но как раз именно на ней и основан один из вариантов

Вдоль всей стены идут 2 трубы 25ПП и от неё разводятся к потребителям отводы по 20ПП

Мне просто интересно на сколько жизнеспособен этот вариант

Сделайте как описал ниже Tehnik-san и не переживайте всё будет хорошо работать :)

Цитата:

Рассмотрим вопрос по гидравлике- при одновременном включении потребителей падает давление и можно обжечься принимая душ,когда на кухне супруга включит смеситель мойки и у нас стоИт последовательная схема ?

Так это же решаеться в последовательной схеме методом вытянутого коллектора из той же трассы,только большего диаметра.увеличением сечения основной трассы....как бы паянного тройниками коллектора.Обьясню проще.Если выбрали полипропилен,тогда от ввода начинаем укладку 32ПП трубы при 5-7 потребителях и 25ПП трубы при 3 потребителях(это касаеться отдельного стояка кухни) и от ПП32 идёт трасса на два потребителя ПП25 и от неё ПП20 к каждому.

Да будет работать - кто же спорит. Но там глобальная переделка получается: перепаять ввод - заменить полдюймовый отвод на 32, заменить полдюймовый водомер на 32 и так далее до фильтров и бойлера. Удорожание по комплектующим только ради диаметра будет раза в 4 превышать самые лучшие полдюймовые варианты в базе, а местами и в 10 раз взлетит - и никуда не денесся. По своему опыту могу сказать, что 9 человек из 10 не идут на это из-за непонимания взлетающей цены либо откладывают все эти расходы напотом. В итоге монтируется несуразная система с дорогими но ненаработающими на полную мощность комплектующими. Классика жанра - поставить после опломбированного полдюймового счетчика роскошный фильтр с 32 вводом))), надеясь, что потом с новых доходов все это переделается. Оно не переделывается, поскольку и так работает, просто не так, как задумано.В итоге разводку делаешь на 16, а все, что выше коллектора просто тупо копишь до лучших времен - мало ли действительно сподобятся на покупку счетчиков за пять тыщ.

Да будет работать - кто же спорит. Но там глобальная переделка получается: перепаять ввод - заменить полдюймовый отвод на 32, заменить полдюймовый водомер на 32 и так далее до фильтров и бойлера. Удорожание по комплектующим только ради диаметра будет раза в 4 превышать самые лучшие полдюймовые варианты в базе, а местами и в 10 раз взлетит - и никуда не денесся.

Я считаю, что не нужно не чего переваривать.

с полдюймовым счетчиком -- нинасколько.

Сделайте как описал ниже Tehnik-san и не переживайте всё будет хорошо работать :)

Цитата:

Рассмотрим вопрос по гидравлике- при одновременном включении потребителей падает давление и можно обжечься принимая душ,когда на кухне супруга включит смеситель мойки и у нас стоИт последовательная схема ?

Так это же решаеться в последовательной схеме методом вытянутого коллектора из той же трассы,только большего диаметра.увеличением сечения основной трассы....как бы паянного тройниками коллектора.Обьясню проще.Если выбрали полипропилен,тогда от ввода начинаем укладку 32ПП трубы при 5-7 потребителях и 25ПП трубы при 3 потребителях(это касаеться отдельного стояка кухни) и от ПП32 идёт трасса на два потребителя ПП25 и от неё ПП20 к каждому.

Я считаю, что не нужно не чего переваривать.

Ну ребята вы меня тут слегка запутали :unsure:

По опыту своей работы не связанной с темой знаю что не всегда то что верно в теории верно и в практике.

Накопал пару фоток в галереи Tehnik-san ибо он вроде единственный кто выкладывал подобные фото для ПП

Тут вроде на входе стоят полудюймовые счётчики а дальше труба 32ПП, и не верить в работоспособность человеку сломавшему на этом не один десяток копий вроде нет

С одной стороны полудюймовый счётчик на входе вроде бутылочного горлышка, а с другой огромным опыт по внедрению подобных систем

Поэтому я в раздумьях :unsure:

post-30160-1250056007_thumb.jpg

post-30160-1250056016_thumb.jpg

Спасибо за цитату, но как раз именно на ней и основан один из вариантов

Вдоль всей стены идут 2 трубы 25ПП и от неё разводятся к потребителям отводы по 20ПП

Мне просто интересно на сколько жизнеспособен этот вариант

с полдюймовым счетчиком -- нинасколько.

buka неправ! Гидравлическое сопротивление трубопровода, как известно, пропорционально его протяжённости (длине). Отводы от стояка + счётчики + "грязевики" - это, во-первых, в сумме участки незначительной длины по сравнению с длиной магистральных внутриквартирных труб от водоразборного узла до самого дальнего потребителя, а во-вторых, в любом случае, не следует увеличивать их (участков с малым проходным сечением) длину применением 20мм ПП трубы при последовательной разводке. Так что вариант вполне подходящий. Неужели же Вы сомневаетесь в правильности рекомендаций Tehnik-sanа и greshnovа? Это же самые высококлассные специалисты в вопросах сантехники на этом форуме. Только вот, основываясь, опять-таки, на рекомендации Tehnik-sanа, холодную магистраль надо бы сделать из ПП не 25мм, а 32мм (5 потребителей).

Я считаю, что не нужно ничего переваривать.

Я тоже!

Накопал пару фоток в галерее Tehnik-san, ибо он вроде единственный, кто выкладывал подобные фото для ПП. Тут вроде на входе стоят полудюймовые счётчики, а дальше труба 32ПП, и не верить в работоспособность человеку, сломавшему на этом не один десяток копий, оснований вроде нет.

Вот именно! Нет никаких оснований.

buka неправ! Гидравлическое сопротивление трубопровода, как известно, пропорционально его протяжённости (длине). Отводы от стояка + счётчики + "грязевики" - это, во-первых, в сумме участки незначительной длины по сравнению с длиной магистральных внутриквартирных труб от водоразборного узла до самого дальнего потребителя, а во-вторых, в любом случае, не следует увеличивать их (участков с малым проходным сечением) длину применением 20мм ПП трубы при последовательной разводке. Так что вариант вполне подходящий. Неужели же Вы сомневаетесь в правильности рекомендаций Tehnik-sanа и greshnovа? Это же самые высококлассные специалисты в вопросах сантехники на этом форуме. Только вот, основываясь, опять-таки, на рекомендации Tehnik-sanа, холодную магистраль надо бы сделать из ПП не 25мм, а 32мм (5 потребителей).

Я тоже!

Вот именно! Нет никаких оснований.

Если бы я сомневался в компетенции людей у которых прошу совета, то я бы этого не делал

Но всё же если вернуться к первому моему сообщению, то там написано что, стояк находится на лестничной клетке и трубы подводятся в квартиру под подом и на плане указанно место ввода

От стояка до отметки на плане около 6 метров и там замурован 20ПП, а весь внутри квартирный водопровод будет находится 3-х метровой вдоль стены. это я уточняю ещё раз по поводу (Отводы от стояка + счётчики + "грязевики" - это, во-первых, в сумме участки незначительной длины по сравнению с длиной магистральных внутриквартирных труб от водоразборного узла до самого дальнего потребителя, а во-вторых, в любом случае, не следует увеличивать их (участков с малым проходным сечением) длину применением 20мм ПП трубы при последовательной разводке)длину применением 20мм ПП трубы при последовательной разводке

И возвращаясь в первому посту я бы попросил обратить внимание на 2 наброска

в Первом случае имелось ввиду что после вывода с пола и прохождения фильтров труба 20ПП подключалась к метровому отрезку 25ПП от которого шли отводы 20ПП к конечным точкам

во Втором случае после фильтров вдоль стены было уложена трубы 25ПП и 32ПП (по вашей рекомендации труба для холодной воды должна быть 32ПП) и от неё короткими отрезками по 20ПП шло подключение к конечным потребителям

То есть вариант номер 2 наиболее жизнеспособен?

P.S. Прошу прощение за занудство

buka неправ! Гидравлическое сопротивление трубопровода, как известно, пропорционально его протяжённости (длине). Отводы от стояка + счётчики + "грязевики" - это, во-первых, в сумме участки незначительной длины по сравнению с длиной магистральных внутриквартирных труб от водоразборного узла до самого дальнего потребителя, а во-вторых, в любом случае, не следует увеличивать их (участков с малым проходным сечением) длину применением 20мм ПП трубы при последовательной разводке. Так что вариант вполне подходящий. Неужели же Вы сомневаетесь в правильности рекомендаций Tehnik-sanа и greshnovа? Это же самые высококлассные специалисты в вопросах сантехники на этом форуме

Заужение на входе - хороший повод для отказа системы. В моем понимании это не отсутствие воды в кране, а элементарные скачки, нестабильность работы системы. Я тоже не ставлю коммунальные счетчики в квартиры вместо бытовых (бытовые на полдюйма все), потому что это глупость и заумь. Сам делаю такой же бред, как предлагается выше 16-20-16 и сам по своим объектам знаю, что давление хоть и не постоянно, но таки скачет и причина этому совершенно дебильное устройство ввода. В былые времена, когда водомеров не было, системы работали идеально. Можно было собрать идеальнейшую схему, которая работала как часы. И коллекторы сами ваяли, и последовательные системы собирали - все работало вообще без проседаний давления.

От стояка до отметки на плане около 6 метров и там замурован 20ПП, а весь внутри квартирный водопровод будет находится 3-х метровой вдоль стены.

Ого! Насчёт 6 метров (да плюс опускание в пол и подъём из него) я был не в курсе. Обычно эти расстояния составляют десятки сантиметров. Даже не знаю, что и сказать теперь. Пусть выскажутся авторитетные в этом деле форумчане - Tehnik-san и greshnov. Но всё равно, я думаю, что и при этих условиях "веерная" раздача воды на потребители либо "растянутым по трассе" коллектором будет предпочтительней, чем последовательная 20мм трубой.

И возвращаясь в первому посту я бы попросил обратить внимание на 2 наброска

в Первом случае имелось ввиду что после вывода с пола и прохождения фильтров труба 20ПП подключалась к метровому отрезку 25ПП от которого шли отводы 20ПП к конечным точкам

во Втором случае после фильтров вдоль стены было уложена трубы 25ПП и 32ПП (по вашей рекомендации труба для холодной воды должна быть 32ПП) и от неё короткими отрезками по 20ПП шло подключение к конечным потребителям

То есть вариант номер 2 наиболее жизнеспособен?

Принципиально оба варианта, пожалуй, равнозначны, но 2-ой, я бы сказал, более естественен.

Ого! Насчёт 6 метров (да плюс опускание в пол и подъём из него) я был не в курсе. Обычно эти расстояния составляют десятки сантиметров. Даже не знаю, что и сказать теперь. Пусть выскажутся авторитетные в этом деле форумчане - Tehnik-san и greshnov. Но всё равно, я думаю, что и при этих условиях "веерная" раздача воды на потребители либо "растянутым по трассе" коллектором будет предпочтительней, чем последовательная 20мм трубой.

Принципиально оба варианта, пожалуй, равнозначны, но 2-ой, я бы сказал, более естественен.

Вот и я к тому же

по крайней мере хуже не станет

Заужение на входе - хороший повод для отказа системы. В моем понимании это не отсутствие воды в кране, а элементарные скачки, нестабильность работы системы. Я тоже не ставлю коммунальные счетчики в квартиры вместо бытовых (бытовые на полдюйма все), потому что это глупость и заумь. Сам делаю такой же бред, как предлагается выше 16-20-16 и сам по своим объектам знаю, что давление хоть и не постоянно, но таки скачет и причина этому совершенно дебильное устройство ввода. В былые времена, когда водомеров не было, системы работали идеально. Можно было собрать идеальнейшую схему, которая работала как часы. И коллекторы сами ваяли, и последовательные системы собирали - все работало вообще без проседаний давления.

Квартира будет введена в строй примерно через месяц

я отпишусь

понимаю что в данном конкретном случае это просто не реальный геморрой с пачкой не известных, но по крайней мере у вас будет отчёт о том что получилось в конце )))

в любом случае спасибо за ответ

Вы обозначьте требования к системе по убыванию. Чем выше в этом списке будет требование к стабильности давления, тем призрачнее будут ваши надежды добиться корректной работы от этой системы.6 метров -- не предел. Тащили по потолкам и больше (есть какая-то новая манера у застройщиков раскидывать стояки в разные углы - сверлят перекрытия не там, где надо, а там, де удобно. Я собрал бы коллектор (проще обслуживать потом), всю сборку разместил бы на одой стене и подвел бы вводы куда реально потребуется. То есть начните монтаж с конца и все будет ок. Последовательную систему я городить бы не стал - пустое.

Вот вы чертовы идиоты!

Спасибо на добром слове!

...в профессиональной среде все это звучит даже смешнее петросяновских прибауток.

Что именно?

Заужение на входе - хороший повод для отказа системы. В моем понимании это не отсутствие воды в кране, а элементарные скачки, нестабильность работы системы. Я тоже не ставлю коммунальные счетчики в квартиры вместо бытовых (бытовые на полдюйма все), потому что это глупость и заумь. Сам делаю такой же бред, как предлагается выше 16-20-16 и сам по своим объектам знаю, что давление хоть и не постоянно, но таки скачет и причина этому совершенно дебильное устройство ввода. В былые времена, когда водомеров не было, системы работали идеально. Можно было собрать идеальнейшую схему, которая работала как часы.

Ну хорошо, в былые времена не было водомеров, но пол-дюймовые отводы-то в квартирах были ведь и раньше, не так ли? Или они всякий раз подлежали непременной замене на больший диаметр?

Квартира будет введена в строй примерно через месяця отпишусьпонимаю что в данном конкретном случае это просто не реальный геморрой с пачкой не известных, но по крайней мере у вас будет отчёт о том что получилось в конце )))в любом случае спасибо за ответ

Будто я не знаю, что будет. Я такие квартиры сдаю в месяц по несколько штук и прекрасно знаю, что можно сделать, а что нет и какими силами. Я и сам вам могу написать, что можно сделать и чем все закончится. Но в этом случае я хочу знать пределы ваших финансовых возможностей. Сделать можно как 20, так и на 80 - работать будет одинаково, но выглядеть по-разному.

Я собрал бы коллектор (проще обслуживать потом), всю сборку разместил бы на одой стене и подвел бы вводы куда реально потребуется. То есть начните монтаж с конца и все будет ок. Последовательную систему я городить бы не стал - пустое.

Автор решил делать водопровод полипропиленом, чего в этом "коллекторе" обслуживать?

Ну хорошо, в былые времена не было водомеров, но пол-дюймовые отводы-то в квартирах были ведь и раньше, не так ли? Или они всякий раз подлежали непременной замене на больший диаметр?

Я всегда переделываю ввод. Абсолютно всегда. Он может не устраивать меня как диаметром, так и месторасположением. Может быть ниже нужного, короче нужного, вообще не там находиться или не в ту сторону быть ориентированным. Все это подлежит переделке в обязательном порядке.

Автор решил делать водопровод полипропиленом, чего в этом "коллекторе" обслуживать?

Ну тут два мнения:1. В пользу коллектора - избавиться от лишней запорной арматуры2. В пользу последовательной - на таком коротком участке стены (да еще в ряд) лучше и проще собрать все потребители на одной трубе. Цена такой работы тыщ 5-7, но человек изведется от отсутствия красотуль в его сортире.

Для публикации сообщений создайте учётную запись или авторизуйтесь

Вы должны быть зарегистрированным пользователем, чтобы оставить комментарий

Создать учетную запись

Зарегистрируйтесь в нашем сообществе.

Зарегистрироваться

Войти

Уже есть аккаунт? Войти в систему.

Войти

Или войти с помощью одного из сервисов



  • Наши рекомендации

    • Газовые котлы: эффективное, экономичное и экологичное решение для отопления вашего дома
      В современном мире, где комфорт и устойчивость стали ключевыми аспектами повседневной жизни, выбор правильного источника отопления дома становится особенно актуальным. Газовые котлы, сочетая в себе преимущества эффективности, экономичности и экологичности, представляют собой одно из наиболее популярных решений для обеспечения комфортной температуры в жилых и коммерческих помещениях.

      • 0 ответов
    • Люк для кошек своими руками
      Разумеется давно придуманы и продаются специальные лючки для кошек, которые можно врезать в дверь, но мы ведь не ищем легких путей . Да и по зоомагазинам я не хожу, а "гугление" показало, что такие люки для кошек стоят относительно не дешево. В то же время под рукой были два "копеечных" сантехнических пластиковых лючка для ГКЛ. Все что оставалось, так это обломать фиксаторы крышек, что бы они открывались в обе стороны, ровно выпилить отверстие в двери, да вклеить симметрично эти лючки.

      То, что получилось видно на фото. Разумеется это не для тех, у кого "дизайнерский ремонт", но для обыкновенной квартиры вполне подходит. Недостатков не замечено, животных и людей всё устраивает .


      Реакцию форумчан на этот люк можно узнать в этой теме https://homemasters.ru/...me/?p=330637

        • Ого
      • 6 ответов
    • Дома из сруба: идеальное сочетание уюта и прочности.
      Строительство собственного дома является важной вехой в жизни любого человека, поскольку оно знаменует собой важное событие. Выбор строительных материалов имеет огромное значение для создания теплого и функционального жилища. На протяжении всей древней истории древесина была распространенным материалом для строительства домов, что отразилось на различных культурах мира.

      • 0 ответов
    • Кажись всё или строительный пылесос с тройной мультициклонной ступенью очистки
      Кажись всё или строительный пылесос с тройной мультициклонной ступенью очистки

        • Нравится
      • 16 ответов
    • Аккумуляторные пилы  SCW и  SCM  22-A
      После того как провёл тесты, приступил к самому главному. Поменять диски местами, и проверить, как инструмент на это отреагирует, ведь они внешнее и походу внутренне практически одинаковые, пила по дереву конечно более навороченее, есть настройки угла наклона и можно на шину посадить через адаптер.

      • 4 ответа
    • Как построить теплый дом, не тратя лишних денег
      Строительство гостевого дома решил выделить в отдельную тему, так будет меньше путаницы.


        • Спасибо
        • Нравится
      • 262 ответа
    • Подходы к ремонту старых домов в России
      В России сотни тысяч старых домов, многие из которых являются не только свидетельством исторического наследия, но и отражением уникальной культуры и традиций страны. Эти дома, будь то деревянные избы или старинные каменные постройки, сохраняют в себе дух времени и рассказывают историю поколений.

      • 0 ответов
    • Вторая жизнь дивана: искусство ремонта мягкой мебели своими руками
      В эпоху беспрерывного потребления и стремления к новизне, ремонт старой мягкой мебели своими руками приобретает не просто практическое, но и глубоко философское значение. Это действие как знак уважения к труду мастеров, которые вложили свое мастерство в создание диванов, кресел и пуфов, и как воплощение идеи устойчивого потребления. С каждым возвращенным к жизни предметом мебели, мы не только сохраняем историю и уникальность каждого изделия, но и противостоим бездумному обновлению интерьера за счет экологии и рационального использования ресурсов.

        • Нравится
      • 0 ответов
×
×
  • Создать...

Важная информация

Мы разместили cookie-файлы на ваше устройство, чтобы помочь сделать этот сайт лучше. Вы можете изменить свои настройки cookie-файлов, или продолжить без изменения настроек.