Перейти к содержанию
Форумы о ремонте и строительстве

включение света из нескольких мест!

Оценить эту тему:


VSA_smile

Рекомендуемые сообщения

Опубликовано

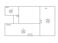
Доброго здоровья всем! Ребята, вопрос состоит в том, что хочу организовать включение света из нескольких мест. а именно включение светильника 2 выключателями 1,2 и 3. Хотелось бы чтоб переключатель 2 включал еще какой-нибудь источник света (тоесть был двух клавишным), а выключатель 1 включал и светильник 2 и 1, и соответственно выключатель 3 включал светильник как 2 так и 3 (тоже были двух клавишные). Так вот вопросs^ 1) возможно ли это и какие комплектующие нужны? переключатели (обычные или проходные), скольки клавишные, и т.д. 2) схема подключения как кабелей так и конкретно по выключателям. тоесть если нужен переходной переключатель, то куда фаза входит, где выходит и т.д.? Заранее спасибо за помощь. Фото прилогаю. И еще чтоб не загружать одинаковыми темами прошу покритиковать схему внутреннего квартирного щита. Вопросы по схеме: 1) какие ошибки? 2) В месте где после узо идет расслоение на 3 автомата нужно именно через шину вести и фазу и ноль или есть другие варианты? 3) в квартиру завожу провод 4 м2. Дальнейшее соединение проводить тоже 4 м2? Фото прилогаю.

post-21602-1253988062_thumb.jpg

post-21602-1253988094_thumb.jpg

Проходные двухклавишники искать надо.

А сколько штук? Все три №1,2,3 должны быть проходными двухклавишными?Я так понимаю что только переключатель 2...

Схема включения одной нагрузки из трех мест

https://homemasters.ru/...z-treh-mest/

.Но проще будет,если выкл 2 перенести к входу в зал,тогда будет достаточно коридорную лампу включать-выключать из двух мест (2 и 3 выключатель),так меньше проводо кидать и проходные переключатели проще найти,чем перекрестный.Схема управления из двух мест

https://homemasters.ru/...kolkih-mest/

Спасибо за схемку. ;) Я так понял что для организации освещения из трех мест нужен не проходной а перекрестный переключатель? Привожу фразу из ссылки присланной вами "Для этого используются два переключателя и один перекрестный переключатель. Последний иногда называют коридорным или проходным переключателем." Помогите основательно расставить точки!!!!!!!! :rolleyes:

Для переключения из 3-х мест

используются два переключателя и один перекрестный переключатель.

А насчет включения из 2-х мест вариант не рассматривается?
(изменено)

Дело в том, что выключатель 2 находиться возле двери входа в квартиру с улицы. Идеальным был бы вариант из трех мест. но если не найду перекрестный нужного цвета - прийдется чем то жертвовать. Или может использовать люстру в коридоре на 2 режима включения-выключения и тогда просто для каждой использовать включение из двух мест. Возможен вариант?P.S. Не подскажите может двухклавишный проходной как то может изменить ситуацию?????

Изменено пользователем VSA_smile

Вот попалась на глаза статейка "Перекрестный выключатель можно купить в магазинах или сделать из двухклавишного проходного выключателя. Для этого нужно поставить пару перемычек, затем аккуратно склеить клавиши клеем или заменить их одной большой клавишей от одноклавишного выключателя." Не подскажите по этому поводу поподробнее что за перемычка и куда ставиться?

Набросал вот корявенько.Перемычка делается таким же проводом,какой к выключателю подводится.Хотя не знаю,получится ли прилично сделать из двухклавишного одноклавишный.. :huh:

post-9894-1254231390_thumb.jpg

post-9894-1254231397_thumb.jpg

Спасибо! Буду что то думать и определяться. Вся проблема в цветовой гамме. Перекрестный найти это одно. а вот чтоб он был еще и золотого цвета.... вот задача!!!!!! :D :D :D :D ;)

  • 2 месяца спустя...

Для публикации сообщений создайте учётную запись или авторизуйтесь

Вы должны быть зарегистрированным пользователем, чтобы оставить комментарий

Создать учетную запись

Зарегистрируйтесь в нашем сообществе.

Зарегистрироваться

Войти

Уже есть аккаунт? Войти в систему.

Войти

Или войти с помощью одного из сервисов



  • Наши рекомендации

    • Подходы к ремонту старых домов в России
      В России сотни тысяч старых домов, многие из которых являются не только свидетельством исторического наследия, но и отражением уникальной культуры и традиций страны. Эти дома, будь то деревянные избы или старинные каменные постройки, сохраняют в себе дух времени и рассказывают историю поколений.

      • 0 ответов
    • Газовые котлы: эффективное, экономичное и экологичное решение для отопления вашего дома
      В современном мире, где комфорт и устойчивость стали ключевыми аспектами повседневной жизни, выбор правильного источника отопления дома становится особенно актуальным. Газовые котлы, сочетая в себе преимущества эффективности, экономичности и экологичности, представляют собой одно из наиболее популярных решений для обеспечения комфортной температуры в жилых и коммерческих помещениях.

      • 0 ответов
    • Дома из сруба: идеальное сочетание уюта и прочности.
      Строительство собственного дома является важной вехой в жизни любого человека, поскольку оно знаменует собой важное событие. Выбор строительных материалов имеет огромное значение для создания теплого и функционального жилища. На протяжении всей древней истории древесина была распространенным материалом для строительства домов, что отразилось на различных культурах мира.

      • 0 ответов
    • Люк для кошек своими руками
      Разумеется давно придуманы и продаются специальные лючки для кошек, которые можно врезать в дверь, но мы ведь не ищем легких путей . Да и по зоомагазинам я не хожу, а "гугление" показало, что такие люки для кошек стоят относительно не дешево. В то же время под рукой были два "копеечных" сантехнических пластиковых лючка для ГКЛ. Все что оставалось, так это обломать фиксаторы крышек, что бы они открывались в обе стороны, ровно выпилить отверстие в двери, да вклеить симметрично эти лючки.

      То, что получилось видно на фото. Разумеется это не для тех, у кого "дизайнерский ремонт", но для обыкновенной квартиры вполне подходит. Недостатков не замечено, животных и людей всё устраивает .


      Реакцию форумчан на этот люк можно узнать в этой теме https://homemasters.ru/...me/?p=330637

        • Ого
      • 6 ответов
    • Кажись всё или строительный пылесос с тройной мультициклонной ступенью очистки
      Кажись всё или строительный пылесос с тройной мультициклонной ступенью очистки

        • Нравится
      • 16 ответов
    • Вторая жизнь дивана: искусство ремонта мягкой мебели своими руками
      В эпоху беспрерывного потребления и стремления к новизне, ремонт старой мягкой мебели своими руками приобретает не просто практическое, но и глубоко философское значение. Это действие как знак уважения к труду мастеров, которые вложили свое мастерство в создание диванов, кресел и пуфов, и как воплощение идеи устойчивого потребления. С каждым возвращенным к жизни предметом мебели, мы не только сохраняем историю и уникальность каждого изделия, но и противостоим бездумному обновлению интерьера за счет экологии и рационального использования ресурсов.

        • Нравится
      • 0 ответов
    • Как построить теплый дом, не тратя лишних денег
      Строительство гостевого дома решил выделить в отдельную тему, так будет меньше путаницы.


        • Спасибо
        • Нравится
      • 259 ответов
    • Аккумуляторные пилы  SCW и  SCM  22-A
      После того как провёл тесты, приступил к самому главному. Поменять диски местами, и проверить, как инструмент на это отреагирует, ведь они внешнее и походу внутренне практически одинаковые, пила по дереву конечно более навороченее, есть настройки угла наклона и можно на шину посадить через адаптер.

      • 4 ответа
×
×
  • Создать...

Важная информация

Мы разместили cookie-файлы на ваше устройство, чтобы помочь сделать этот сайт лучше. Вы можете изменить свои настройки cookie-файлов, или продолжить без изменения настроек.