Перейти к содержанию
Форумы о ремонте и строительстве

Вопрос по межкомнатным дверям

Оценить эту тему:


Рекомендуемые сообщения

Опубликовано (изменено)

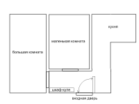
В квартире делается ремонт и будут меняться межкомнатные двери, вот думаю в какую сторону двери будут открываться/закрываться, подскажите как сделать оптимальнее. Заранее спасибо :)

post-33195-1263075422_thumb.png

Изменено пользователем FICUS 1

Имхо. Если коридор узкий, то двери открывать внутрь комнат, иначе двери будут мешать друг другу. У меня такой же вопрос скоро встанет. После того как просмотрел несколько вариантов, решил одинарные открывать, у себя, внутрь комнат, а двойные, поскольку полотно узкое, в коридор.К стати, в квартирах входные двери открываются внутрь из соображения противопожарной безопасности, в случае эвакуации множество открытых дверей могут создать препятствия для продвижения.

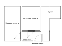
изначально двери открывались так:вот думаю или оставить всё так же или может сделать по другому.... посоветуйте мастера :unsure:

post-33195-1263125538_thumb.png

О у меня такая же планировка была, а счас всё по другому, однако перепланировка, сорри за офф, а сколько у тебя квадратных метров?!А по поводу дверей вопрос интересен, я тоже долго ломал голову, но у меня всё проще, а в твоём случае точно могу сказать, что в большую комнату лучше оставь как есть, входная тоже похоже без вариантов, а в маленькую может всё же во внутрь, хотя она и так маленькая...

octyabrenok

во-первых по пожарной безопасности все двери должны открываться из помещения!во-вторых если толщина стен больше дверной коробки и будете использовать доборы, то если двери будут открываться внутрь из коридора они будут утопленными вглубь !__! вот так.

octyabrenok

По первому пункту - у всех почему-то внутрь комнат открываются. Даже при строительстве дома так ставят.

По второму - вообще ничего не ясно. Доборы можно ставить с любой стороны, да и непонятно что вы имели в виду.

У меня вопрос созрел. В общем история такая, пришло время делать ванную комнату, ну я ею и занялся вплотную. В итоге сломал уже две стены, одну переложил, вторую перекладываю, уж больно они кривые были. Скоро в ванную нужно будет покупать или делать дверь. Проём сделал под полотно 700 мм. Теперь собственно вопрос. Можно ли в ванную комнату дверь из массива ставить? У нас в продаже белорусские двери есть, это единственное путное и доступное по цене решение. Остальное откровенное г%%%.

У меня вопрос созрел. В общем история такая, пришло время делать ванную комнату, ну я ею и занялся вплотную. В итоге сломал уже две стены, одну переложил, вторую перекладываю, уж больно они кривые были. Скоро в ванную нужно будет покупать или делать дверь. Проём сделал под полотно 700 мм. Теперь собственно вопрос. Можно ли в ванную комнату дверь из массива ставить? У нас в продаже белорусские двери есть, это единственное путное и доступное по цене решение. Остальное откровенное г%%%.

Ставь. Если полотно качественное все нормально будет.Еще конечно количество слоев лака имеет значение. У меня Александрийские стоят на комнате и на ванной уже 3-й год разницы не вижу, а вот ручка дверная Армадилло (под золото)облезла именно со стороны ванной. Ну и еще конечно как париться любишь и вентиляция шоб о-кей.

Для публикации сообщений создайте учётную запись или авторизуйтесь

Вы должны быть зарегистрированным пользователем, чтобы оставить комментарий

Создать учетную запись

Зарегистрируйтесь в нашем сообществе.

Зарегистрироваться

Войти

Уже есть аккаунт? Войти в систему.

Войти

Или войти с помощью одного из сервисов



  • Наши рекомендации

    • Подходы к ремонту старых домов в России
      В России сотни тысяч старых домов, многие из которых являются не только свидетельством исторического наследия, но и отражением уникальной культуры и традиций страны. Эти дома, будь то деревянные избы или старинные каменные постройки, сохраняют в себе дух времени и рассказывают историю поколений.

      • 0 ответов
    • Люк для кошек своими руками
      Разумеется давно придуманы и продаются специальные лючки для кошек, которые можно врезать в дверь, но мы ведь не ищем легких путей . Да и по зоомагазинам я не хожу, а "гугление" показало, что такие люки для кошек стоят относительно не дешево. В то же время под рукой были два "копеечных" сантехнических пластиковых лючка для ГКЛ. Все что оставалось, так это обломать фиксаторы крышек, что бы они открывались в обе стороны, ровно выпилить отверстие в двери, да вклеить симметрично эти лючки.

      То, что получилось видно на фото. Разумеется это не для тех, у кого "дизайнерский ремонт", но для обыкновенной квартиры вполне подходит. Недостатков не замечено, животных и людей всё устраивает .


      Реакцию форумчан на этот люк можно узнать в этой теме https://homemasters.ru/...me/?p=330637

        • Ого
      • 6 ответов
    • Аккумуляторные пилы  SCW и  SCM  22-A
      После того как провёл тесты, приступил к самому главному. Поменять диски местами, и проверить, как инструмент на это отреагирует, ведь они внешнее и походу внутренне практически одинаковые, пила по дереву конечно более навороченее, есть настройки угла наклона и можно на шину посадить через адаптер.

      • 4 ответа
    • Дома из сруба: идеальное сочетание уюта и прочности.
      Строительство собственного дома является важной вехой в жизни любого человека, поскольку оно знаменует собой важное событие. Выбор строительных материалов имеет огромное значение для создания теплого и функционального жилища. На протяжении всей древней истории древесина была распространенным материалом для строительства домов, что отразилось на различных культурах мира.

      • 0 ответов
    • Кажись всё или строительный пылесос с тройной мультициклонной ступенью очистки
      Кажись всё или строительный пылесос с тройной мультициклонной ступенью очистки

        • Нравится
      • 16 ответов
    • Как построить теплый дом, не тратя лишних денег
      Строительство гостевого дома решил выделить в отдельную тему, так будет меньше путаницы.


        • Спасибо
        • Нравится
      • 259 ответов
    • Вторая жизнь дивана: искусство ремонта мягкой мебели своими руками
      В эпоху беспрерывного потребления и стремления к новизне, ремонт старой мягкой мебели своими руками приобретает не просто практическое, но и глубоко философское значение. Это действие как знак уважения к труду мастеров, которые вложили свое мастерство в создание диванов, кресел и пуфов, и как воплощение идеи устойчивого потребления. С каждым возвращенным к жизни предметом мебели, мы не только сохраняем историю и уникальность каждого изделия, но и противостоим бездумному обновлению интерьера за счет экологии и рационального использования ресурсов.

        • Нравится
      • 0 ответов
    • Газовые котлы: эффективное, экономичное и экологичное решение для отопления вашего дома
      В современном мире, где комфорт и устойчивость стали ключевыми аспектами повседневной жизни, выбор правильного источника отопления дома становится особенно актуальным. Газовые котлы, сочетая в себе преимущества эффективности, экономичности и экологичности, представляют собой одно из наиболее популярных решений для обеспечения комфортной температуры в жилых и коммерческих помещениях.

      • 0 ответов
×
×
  • Создать...

Важная информация

Мы разместили cookie-файлы на ваше устройство, чтобы помочь сделать этот сайт лучше. Вы можете изменить свои настройки cookie-файлов, или продолжить без изменения настроек.