Перейти к содержанию
Форумы о ремонте и строительстве

Размещение внутренних блоков мультисплита

Оценить эту тему:


Рекомендуемые сообщения

Опубликовано

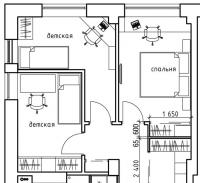
Возникли затруднения при расположении внутренних блоков в спальне и двух детских. Прошу совета.Мультисплит на 3 внутренних блока, инвертор, допустимая длина трасс - до 25м.

post-46399-1287205462_thumb.jpg

Думаю что это оптимальный вариант установки внутренних блоков.post-36870-1287340245_thumb.jpg

Думаю что это оптимальный вариант установки внутренних блоков.

Не уверен, что размещение кондиционера над кроватью и рабочим местом - это оптимальный вариант. Пока на ум приходит только такой вариант

post-46399-1287353839_thumb.jpg

captain andrew, а как думаете, при таком расположении, решать вопрос со сливом конденсате из внутренних блоков?

captain andrew, а как думаете, при таком расположении, решать вопрос со сливом конденсате из внутренних блоков?

наверно так...

от двух блоков конденсат можно вывести с наклоном на фасад, где установлен наружный блок.

а с третьего - в канализацию санузла (частично показан внизу картинки)

post-46399-1287401227_thumb.jpg

Не уверен, что размещение кондиционера над кроватью и рабочим местом - это оптимальный вариант. Пока на ум приходит только такой вариант

При таком расположении внутренних блоков человек находящийся в кресле детской комнаты и в кресле либо на кровати в спальной комнате 100% будет ходить с насморком (проверено).post-36870-1287412761_thumb.jpg
(изменено)

При таком расположении внутренних блоков человек находящийся в кресле детской комнаты и в кресле либо на кровати в спальной комнате 100% будет ходить с насморком (проверено).

честно говоря, при всех вариантах установки блоков рабочие и спальные зоны так или иначе затрагиваются. хотелось наиболее оптимальный вариант. но так как это - мультисплит инвертор, то думаю в предложенной схеме он не так сильно будет дуть, по крайней мере на спальные места. там мы больше времени проводим, нежели за столом.есть еще мнения? с удовольствием выслушаю. Изменено пользователем captain andrew

Для публикации сообщений создайте учётную запись или авторизуйтесь

Вы должны быть зарегистрированным пользователем, чтобы оставить комментарий

Создать учетную запись

Зарегистрируйтесь в нашем сообществе.

Зарегистрироваться

Войти

Уже есть аккаунт? Войти в систему.

Войти

Или войти с помощью одного из сервисов



  • Наши рекомендации

    • Люк для кошек своими руками
      Разумеется давно придуманы и продаются специальные лючки для кошек, которые можно врезать в дверь, но мы ведь не ищем легких путей . Да и по зоомагазинам я не хожу, а "гугление" показало, что такие люки для кошек стоят относительно не дешево. В то же время под рукой были два "копеечных" сантехнических пластиковых лючка для ГКЛ. Все что оставалось, так это обломать фиксаторы крышек, что бы они открывались в обе стороны, ровно выпилить отверстие в двери, да вклеить симметрично эти лючки.

      То, что получилось видно на фото. Разумеется это не для тех, у кого "дизайнерский ремонт", но для обыкновенной квартиры вполне подходит. Недостатков не замечено, животных и людей всё устраивает .


      Реакцию форумчан на этот люк можно узнать в этой теме https://homemasters.ru/...me/?p=330637

        • Ого
      • 6 ответов
    • Подходы к ремонту старых домов в России
      В России сотни тысяч старых домов, многие из которых являются не только свидетельством исторического наследия, но и отражением уникальной культуры и традиций страны. Эти дома, будь то деревянные избы или старинные каменные постройки, сохраняют в себе дух времени и рассказывают историю поколений.

      • 0 ответов
    • Как построить теплый дом, не тратя лишних денег
      Строительство гостевого дома решил выделить в отдельную тему, так будет меньше путаницы.


        • Спасибо
        • Нравится
      • 245 ответов
    • Дома из сруба: идеальное сочетание уюта и прочности.
      Строительство собственного дома является важной вехой в жизни любого человека, поскольку оно знаменует собой важное событие. Выбор строительных материалов имеет огромное значение для создания теплого и функционального жилища. На протяжении всей древней истории древесина была распространенным материалом для строительства домов, что отразилось на различных культурах мира.

      • 0 ответов
    • Вторая жизнь дивана: искусство ремонта мягкой мебели своими руками
      В эпоху беспрерывного потребления и стремления к новизне, ремонт старой мягкой мебели своими руками приобретает не просто практическое, но и глубоко философское значение. Это действие как знак уважения к труду мастеров, которые вложили свое мастерство в создание диванов, кресел и пуфов, и как воплощение идеи устойчивого потребления. С каждым возвращенным к жизни предметом мебели, мы не только сохраняем историю и уникальность каждого изделия, но и противостоим бездумному обновлению интерьера за счет экологии и рационального использования ресурсов.

        • Нравится
      • 0 ответов
    • Аккумуляторные пилы  SCW и  SCM  22-A
      После того как провёл тесты, приступил к самому главному. Поменять диски местами, и проверить, как инструмент на это отреагирует, ведь они внешнее и походу внутренне практически одинаковые, пила по дереву конечно более навороченее, есть настройки угла наклона и можно на шину посадить через адаптер.

      • 4 ответа
    • Кажись всё или строительный пылесос с тройной мультициклонной ступенью очистки
      Кажись всё или строительный пылесос с тройной мультициклонной ступенью очистки

        • Нравится
      • 16 ответов
    • Газовые котлы: эффективное, экономичное и экологичное решение для отопления вашего дома
      В современном мире, где комфорт и устойчивость стали ключевыми аспектами повседневной жизни, выбор правильного источника отопления дома становится особенно актуальным. Газовые котлы, сочетая в себе преимущества эффективности, экономичности и экологичности, представляют собой одно из наиболее популярных решений для обеспечения комфортной температуры в жилых и коммерческих помещениях.

      • 0 ответов
×
×
  • Создать...

Важная информация

Мы разместили cookie-файлы на ваше устройство, чтобы помочь сделать этот сайт лучше. Вы можете изменить свои настройки cookie-файлов, или продолжить без изменения настроек.