Перейти к содержанию
Форумы о ремонте и строительстве

Потолок в коттедже

Оценить эту тему:


Рекомендуемые сообщения

Опубликовано

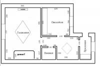
С лёгкой руки Bagis, появилась работа, в виде отделки коттеджа. План первого этажа с размерами прилагается.

Нужна ваша помощь. Необходимо придумать потолки, да в принципе и интерьер, на первом этаже.

В гостиной, на потолке, хозяева хотят совместить гипсокартон с натяжным потолком. Если разделить весь потолок на части, то натяжной должен быть в зоне примыкающей к стене с входом в комнату. Потолки высокие 3,2 метра. Параллельно буду думать и сам. Надеюсь что общими усилиями мы сотворим что нибудь хорошее...

P.S. Интересно, что нибудь получиться, я имею ввиду общие усилия?

post-40814-1289768596_thumb.jpg

Ну, у Вас то не может не получится. Типа подмазался, а теперь уведу тему чуть в сторону. Перекрытие между первым и вторым этажом из чего?З.Ы. Про потолок я потом чего-нибудь тоже ляпну. Подумать надо.

А мебель пока неизвестно где и какая? Если пол будет из плитки, то может забабахать такой ромб, а на потолке повторить его же из ГКЛ. Камин сюда перенести (если можно), а над ним ТВ. post-15106-1289808526_thumb.jpg

Там всё по взрослому. Плиты перекрытия, пустотки.

Ну вот, опять пролёт :)

а сами-то хозяева как-то высказывают пожелания (кроме потолка) ?Какой стиль им ближе? Требование придумать потолок,чтоб и натяжной и гипсокартон был-это из разряда "насмотрелись-захотелось" ? Надеюсь,натяжной хоть не глянцевый планируют?...Картинки для подбора определений ,вроде "вот это может быть,а вот так категорически нет...."post-11625-1289819228_thumb.jpgpost-11625-1289819235_thumb.jpgpost-11625-1289819240_thumb.jpgpost-11625-1289819246_thumb.jpgpost-11625-1289819253_thumb.jpgpost-11625-1289819258_thumb.jpgpost-11625-1289819263_thumb.jpgpost-11625-1289819267_thumb.jpg

Какой стиль им ближе?

Хозяйка говорит, что ей нравиться классика и чтобы красиво было.

Требование придумать потолок,чтоб и натяжной и гипсокартон был-это из разряда "насмотрелись-захотелось" ?

Скорее всего так.

Надеюсь,натяжной хоть не глянцевый планируют?

Пока не знаю.Из фотографий, пожалуй вторая и четвёртая, но камин там настоящий, не бутафорский.Вот такой вариант потолков набросал.В столовой потолок (второй уровень) переходит в разделительную перегородку между АОГВ и собственно кухней.В гостиной подсветка из под второго уровня на натяжной потолок.

post-40814-1289835431_thumb.jpg

Из фоток Alef-а мне тоже вторая понравилась. А на вашем плане интересна задумка с перетеканием потолка из холла в гостиную.

  • 4 недели спустя...

Bagis, да ни хрена там не получилось, не срослось.

Хозяева отзвонились, сказали, что ходили потолки натяжные заказывать, а им там рассоветовали из гипсокартона делать.

Извинились за моё потраченное на них время, сказали что везде будут натяжные делать и что в моих услугах больше не нуждаются.

Ну что я могу им сказать. Не хотят - не надо.

Натяжные потолки натягивают с помощью высокой температуры. А стены там из чего? А то если дерево, то могут вспыхнуть... А на счет осваивай... - нужна тепловая пушка

  • 3 недели спустя...

Ой, вы знаете. Мы тоже хотели на кухне натяжные потолки сделать))) Просто нам так описали их: противопожарные, влагу не пропускают, и моются хорошо.

Правильно описали. только не все навсетные потолки такеи, нужно выбирать качественные, они пусть и немного дороже, но гораздо надежнее. Мы тоже сделали натяжные французские потолки exstenzo во всех комнатах и очень рады.

Для публикации сообщений создайте учётную запись или авторизуйтесь

Вы должны быть зарегистрированным пользователем, чтобы оставить комментарий

Создать учетную запись

Зарегистрируйтесь в нашем сообществе.

Зарегистрироваться

Войти

Уже есть аккаунт? Войти в систему.

Войти

Или войти с помощью одного из сервисов



  • Наши рекомендации

    • Как построить теплый дом, не тратя лишних денег
      Строительство гостевого дома решил выделить в отдельную тему, так будет меньше путаницы.


        • Спасибо
        • Нравится
      • 255 ответов
    • Газовые котлы: эффективное, экономичное и экологичное решение для отопления вашего дома
      В современном мире, где комфорт и устойчивость стали ключевыми аспектами повседневной жизни, выбор правильного источника отопления дома становится особенно актуальным. Газовые котлы, сочетая в себе преимущества эффективности, экономичности и экологичности, представляют собой одно из наиболее популярных решений для обеспечения комфортной температуры в жилых и коммерческих помещениях.

      • 0 ответов
    • Аккумуляторные пилы  SCW и  SCM  22-A
      После того как провёл тесты, приступил к самому главному. Поменять диски местами, и проверить, как инструмент на это отреагирует, ведь они внешнее и походу внутренне практически одинаковые, пила по дереву конечно более навороченее, есть настройки угла наклона и можно на шину посадить через адаптер.

      • 4 ответа
    • Подходы к ремонту старых домов в России
      В России сотни тысяч старых домов, многие из которых являются не только свидетельством исторического наследия, но и отражением уникальной культуры и традиций страны. Эти дома, будь то деревянные избы или старинные каменные постройки, сохраняют в себе дух времени и рассказывают историю поколений.

      • 0 ответов
    • Кажись всё или строительный пылесос с тройной мультициклонной ступенью очистки
      Кажись всё или строительный пылесос с тройной мультициклонной ступенью очистки

        • Нравится
      • 16 ответов
    • Вторая жизнь дивана: искусство ремонта мягкой мебели своими руками
      В эпоху беспрерывного потребления и стремления к новизне, ремонт старой мягкой мебели своими руками приобретает не просто практическое, но и глубоко философское значение. Это действие как знак уважения к труду мастеров, которые вложили свое мастерство в создание диванов, кресел и пуфов, и как воплощение идеи устойчивого потребления. С каждым возвращенным к жизни предметом мебели, мы не только сохраняем историю и уникальность каждого изделия, но и противостоим бездумному обновлению интерьера за счет экологии и рационального использования ресурсов.

        • Нравится
      • 0 ответов
    • Люк для кошек своими руками
      Разумеется давно придуманы и продаются специальные лючки для кошек, которые можно врезать в дверь, но мы ведь не ищем легких путей . Да и по зоомагазинам я не хожу, а "гугление" показало, что такие люки для кошек стоят относительно не дешево. В то же время под рукой были два "копеечных" сантехнических пластиковых лючка для ГКЛ. Все что оставалось, так это обломать фиксаторы крышек, что бы они открывались в обе стороны, ровно выпилить отверстие в двери, да вклеить симметрично эти лючки.

      То, что получилось видно на фото. Разумеется это не для тех, у кого "дизайнерский ремонт", но для обыкновенной квартиры вполне подходит. Недостатков не замечено, животных и людей всё устраивает .


      Реакцию форумчан на этот люк можно узнать в этой теме https://homemasters.ru/...me/?p=330637

        • Ого
      • 6 ответов
    • Дома из сруба: идеальное сочетание уюта и прочности.
      Строительство собственного дома является важной вехой в жизни любого человека, поскольку оно знаменует собой важное событие. Выбор строительных материалов имеет огромное значение для создания теплого и функционального жилища. На протяжении всей древней истории древесина была распространенным материалом для строительства домов, что отразилось на различных культурах мира.

      • 0 ответов
×
×
  • Создать...

Важная информация

Мы разместили cookie-файлы на ваше устройство, чтобы помочь сделать этот сайт лучше. Вы можете изменить свои настройки cookie-файлов, или продолжить без изменения настроек.