Перейти к содержанию
Форумы о ремонте и строительстве

Гостинная и Кухня

Оценить эту тему:


Velka13@mail.ru

Рекомендуемые сообщения

Опубликовано

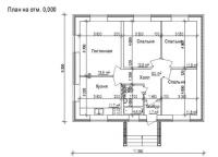
Строим дом. По плану кухня и гостинная раздельно, через стену, я бы хотела их разделить барной перегородкой. Подскажите удобно ли это, ведь тогда и диван и шторки будут впитывать все ароматы приготовленной пищи. Может кто поделеться нажитым опытом? А еще может подскажите ака расширить прихожку с сохранением правой спальни. Прихожка маловата, даже шкаф - раздевалка не влезет всего 1450. жду предложений и решения спорного вопроса!

post-60384-1299527655_thumb.jpg

1. При такой площади кухни и гостинной, я бы не стал их объединять.2. Помоему нет вариантов. Пусть лучше комнаты и ванная будут больше, чем коридор.Евгений

На самом деле можно,получится около 20м2,впринципе очень даже ни чего!))

На кухне газ?При таких площадях, лучше отказаться от того, что дизайнеры нарисовали в журналах, а использовать то, что проверенно годами. Евгений

Я бы тоже не стал объединять - площади хорошие.А прихожую только за счет спальни, но вы на это скорее всего не пойдете - она ведь ваша ? Я угадал? :)И дверь в санузел я бы сделал внутрь-направо.

Velka13@mail.ru

Спасибо. ну а шкаф- раздевалку тогда куда?Да на кухне газ!Конечно спальню бы хотелось оставить, но и вариант как большой холл-гостинная тоже рассматриваем. Но вот деток планируем разных полов и спальни им тоже разные нужны, ну и нам конечно хотяб малипусенькую! :rolleyes:

А что такое шкаф раздевалка?У меня дома шкаф-купе 430 мм глубиной. Смотрите можно ли такой поставить в коридор, либо просто установите напольную вешалку.А почему все двери открываются внутрь комнат? Мне кажется это крадет место в самих комнатах.Евгений

Velka13@mail.ru

Вообще из начально мы хотели чтоб в доме была гордеобная, но нам предложили всего два плана дома и ни в одном не планировалась гардеробная, из них мы выбрали этот. Так я назвала именно шкаф- в который вешать вещи при входе с улицы. Напольную вешалку не очень хочеться, а шкаф купе, даже с глубиной в 40 -как мне кажеться скрадет пространство. Хотя, чесно сказать я об этом даже не думала. А на счет дверей вы правы, возьму на заметку! Спасибочки!

А на счет дверей вы правы, возьму на заметку! Спасибочки!

То была шутка юмора, у вас нет ни одной двери, которую можно было бы открыть в коридор. Сами посмотрите..

Я бы тоже не стал объединять - площади хорошие.

11 и 16 метров - хорошие площади.. Вы не родственник ли товарищу Хрущеву?Насчет кухни-гостинной я бы даже думать не стал, объединять по-любому. Вы просто физически не сможете использовать столько отдельных помещений, если только вас не 10 человек. Ютиться в 10-метровых каморках - ради чего?.Такое вот мое мнение. :)ЗЫ Кстати, если это все же дом и вы его сами строите, то скажу честно - планировка до жути неудачная, да и не надо скромничать с площадью, благо в случае со строительством дома стоимость увеличивается совсем не в прямой пропорции к площади. Для семьи из 4-х человек 100 метров - катастрофически мало. (Да, я слышал, что в коммуналках тоже живут люди, и более того - приходилось жить, недолго правда).

11 и 16 метров - хорошие площади.. Вы не родственник ли товарищу Хрущеву?

Я не знаю в каком дворце вы живете, но для нас, простых людей, это оооочень хорошие площади.
Velka13@mail.ru

Да я думаю площади нам будет отлично хватать, так как сейчас мы живем в трешке площадью 58 квадратов, так что с этим мы уже все обдумали. Слишком большие дома еще как то отопить надо, а если большая квадратура то и газа уйдет много, следовательно платить много. А мы хотим чтоб выгодно еще для жизни было :P:rolleyes: :rolleyes: :rolleyes: :rolleyes:

Может так? Часть стены с холодным тамбуром, не очень хорошее соседство, поэтому и возникло желание встроить в это место шкаф-купе, со стороны комнаты.В свою очередь, образуется ниша для шкафа-купе, со стороны холла.А кухню от гостиной я бы разделил большими, прозрачными, раздвижными дверями.

post-40814-1300146938_thumb.jpg

Для публикации сообщений создайте учётную запись или авторизуйтесь

Вы должны быть зарегистрированным пользователем, чтобы оставить комментарий

Создать учетную запись

Зарегистрируйтесь в нашем сообществе.

Зарегистрироваться

Войти

Уже есть аккаунт? Войти в систему.

Войти

Или войти с помощью одного из сервисов



  • Наши рекомендации

    • Кажись всё или строительный пылесос с тройной мультициклонной ступенью очистки
      Кажись всё или строительный пылесос с тройной мультициклонной ступенью очистки

        • Нравится
      • 16 ответов
    • Вторая жизнь дивана: искусство ремонта мягкой мебели своими руками
      В эпоху беспрерывного потребления и стремления к новизне, ремонт старой мягкой мебели своими руками приобретает не просто практическое, но и глубоко философское значение. Это действие как знак уважения к труду мастеров, которые вложили свое мастерство в создание диванов, кресел и пуфов, и как воплощение идеи устойчивого потребления. С каждым возвращенным к жизни предметом мебели, мы не только сохраняем историю и уникальность каждого изделия, но и противостоим бездумному обновлению интерьера за счет экологии и рационального использования ресурсов.

        • Нравится
      • 0 ответов
    • Дома из сруба: идеальное сочетание уюта и прочности.
      Строительство собственного дома является важной вехой в жизни любого человека, поскольку оно знаменует собой важное событие. Выбор строительных материалов имеет огромное значение для создания теплого и функционального жилища. На протяжении всей древней истории древесина была распространенным материалом для строительства домов, что отразилось на различных культурах мира.

      • 0 ответов
    • Газовые котлы: эффективное, экономичное и экологичное решение для отопления вашего дома
      В современном мире, где комфорт и устойчивость стали ключевыми аспектами повседневной жизни, выбор правильного источника отопления дома становится особенно актуальным. Газовые котлы, сочетая в себе преимущества эффективности, экономичности и экологичности, представляют собой одно из наиболее популярных решений для обеспечения комфортной температуры в жилых и коммерческих помещениях.

      • 0 ответов
    • Как построить теплый дом, не тратя лишних денег
      Строительство гостевого дома решил выделить в отдельную тему, так будет меньше путаницы.


        • Спасибо
        • Нравится
      • 239 ответов
    • Аккумуляторные пилы  SCW и  SCM  22-A
      После того как провёл тесты, приступил к самому главному. Поменять диски местами, и проверить, как инструмент на это отреагирует, ведь они внешнее и походу внутренне практически одинаковые, пила по дереву конечно более навороченее, есть настройки угла наклона и можно на шину посадить через адаптер.

      • 4 ответа
    • Люк для кошек своими руками
      Разумеется давно придуманы и продаются специальные лючки для кошек, которые можно врезать в дверь, но мы ведь не ищем легких путей . Да и по зоомагазинам я не хожу, а "гугление" показало, что такие люки для кошек стоят относительно не дешево. В то же время под рукой были два "копеечных" сантехнических пластиковых лючка для ГКЛ. Все что оставалось, так это обломать фиксаторы крышек, что бы они открывались в обе стороны, ровно выпилить отверстие в двери, да вклеить симметрично эти лючки.

      То, что получилось видно на фото. Разумеется это не для тех, у кого "дизайнерский ремонт", но для обыкновенной квартиры вполне подходит. Недостатков не замечено, животных и людей всё устраивает .


      Реакцию форумчан на этот люк можно узнать в этой теме https://homemasters.ru/...me/?p=330637

        • Ого
      • 6 ответов
    • Подходы к ремонту старых домов в России
      В России сотни тысяч старых домов, многие из которых являются не только свидетельством исторического наследия, но и отражением уникальной культуры и традиций страны. Эти дома, будь то деревянные избы или старинные каменные постройки, сохраняют в себе дух времени и рассказывают историю поколений.

      • 0 ответов
×
×
  • Создать...

Важная информация

Мы разместили cookie-файлы на ваше устройство, чтобы помочь сделать этот сайт лучше. Вы можете изменить свои настройки cookie-файлов, или продолжить без изменения настроек.