Перейти к содержанию
Форумы о ремонте и строительстве

Соединение унитаза с канализацией

Оценить эту тему:


Рекомендуемые сообщения

Опубликовано (изменено)

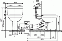
Вот что имеем. Прошу совета чем подвести вывод из канальи к унитазу (не расматривая подключение через гофру)

post-74461-1318000765_thumb.jpg

post-74461-1318000788_thumb.jpg

post-74461-1318000804_thumb.jpg

Изменено пользователем Gorny

Gorny что тут скажешь , подключить прямой кишкой того , кто собрал Вам это...

По существу если в таком положении унитаз уже придвинут бачком вплотную к стене , то пересобрать отвод (составить из нескольких элементов с разнвми углами), можно попробовать применить "эксцентрики" (хотя по фото думаю это не лучший способ) это может и не есть правильно , но если ничего другого не получается... на то они и придуманы.

Gorny - в растуб вставить отвод 30* , чтобы перейти в горизонтальную плоскость , затем короткий прямой кусок трубы , затем еще один отвод 30* и в него прямой раструб Viega

post-3123-1318018673_thumb.gif

post-3123-1318019499_thumb.jpg

Gorny - в растуб вставить отвод 30* , чтобы перейти в горизонтальную плоскость , затем короткий прямой кусок трубы , затем еще один отвод 30* и в него прямой раструб Viega

Спасибо. Мысль понял

Собрал 2 отвода 110*30, прямой + манжета "ани" (с Viega проще их у нас нет) Спасибо за совет Tehnik-san. Вот только почему-то из сливного бачка мелкой струйкой подтекает в унитаз. Толи резинка сливного клапана не держит, то-ли прокладка между сливной раматурой и бачком воду не держит. Унитаз воротынский. Прийдётся бачок снимать снова всё разбирать :(

post-74461-1318083340_thumb.jpg

Собрал 2 отвода 110*30, прямой + манжета "ани" (с Viega проще их у нас нет)

Указывайте в профиле своё географ. местоположение - точнее будут рекомендации , если бы я знал , то вместо Viega можно было предложить поставить обычный отечественный раструб для толчков с черной широкой резинкой - т.к. они долговечнее "ани". По поводу протечки - это только вскрытие покажет , но скорее всего под сливной клапан попала грязь из водопровода

Вот только почему-то из сливного бачка мелкой струйкой подтекает в унитаз. Толи резинка сливного клапана не держит, то-ли прокладка между сливной раматурой и бачком воду не держит. Унитаз воротынский. Прийдётся бачок снимать снова всё разбирать

А может быть у вас "поплавок" неотрегулирован и через перелив водичка бежит ?

Прокладку на посадочном месте на силикон посадил, течь ликвидировал. Бежало из под неё

  • 4 месяца спустя...

а,как соеденить унитаз с горизонтальным выходомpost-71355-1330614236_thumb.jpg

2 колена под 90 градусов должно быть как раз.

(изменено)

А может два угла по 30* (один на отвод унитаза, другой в раструб и соединить прямым обрезком) или два по 45*

Изменено пользователем melden

2 колена под 90 градусов не подходят, выше получается

Bagis

Фановые эксцентрики для унитаза. Там слишком большой выбор, мне лень было картинки вставлять, проще ссылку кинуть.

Для публикации сообщений создайте учётную запись или авторизуйтесь

Вы должны быть зарегистрированным пользователем, чтобы оставить комментарий

Создать учетную запись

Зарегистрируйтесь в нашем сообществе.

Зарегистрироваться

Войти

Уже есть аккаунт? Войти в систему.

Войти

Или войти с помощью одного из сервисов



  • Наши рекомендации

    • Как построить теплый дом, не тратя лишних денег
      Строительство гостевого дома решил выделить в отдельную тему, так будет меньше путаницы.


        • Спасибо
        • Нравится
      • 259 ответов
    • Кажись всё или строительный пылесос с тройной мультициклонной ступенью очистки
      Кажись всё или строительный пылесос с тройной мультициклонной ступенью очистки

        • Нравится
      • 16 ответов
    • Вторая жизнь дивана: искусство ремонта мягкой мебели своими руками
      В эпоху беспрерывного потребления и стремления к новизне, ремонт старой мягкой мебели своими руками приобретает не просто практическое, но и глубоко философское значение. Это действие как знак уважения к труду мастеров, которые вложили свое мастерство в создание диванов, кресел и пуфов, и как воплощение идеи устойчивого потребления. С каждым возвращенным к жизни предметом мебели, мы не только сохраняем историю и уникальность каждого изделия, но и противостоим бездумному обновлению интерьера за счет экологии и рационального использования ресурсов.

        • Нравится
      • 0 ответов
    • Подходы к ремонту старых домов в России
      В России сотни тысяч старых домов, многие из которых являются не только свидетельством исторического наследия, но и отражением уникальной культуры и традиций страны. Эти дома, будь то деревянные избы или старинные каменные постройки, сохраняют в себе дух времени и рассказывают историю поколений.

      • 0 ответов
    • Газовые котлы: эффективное, экономичное и экологичное решение для отопления вашего дома
      В современном мире, где комфорт и устойчивость стали ключевыми аспектами повседневной жизни, выбор правильного источника отопления дома становится особенно актуальным. Газовые котлы, сочетая в себе преимущества эффективности, экономичности и экологичности, представляют собой одно из наиболее популярных решений для обеспечения комфортной температуры в жилых и коммерческих помещениях.

      • 0 ответов
    • Аккумуляторные пилы  SCW и  SCM  22-A
      После того как провёл тесты, приступил к самому главному. Поменять диски местами, и проверить, как инструмент на это отреагирует, ведь они внешнее и походу внутренне практически одинаковые, пила по дереву конечно более навороченее, есть настройки угла наклона и можно на шину посадить через адаптер.

      • 4 ответа
    • Дома из сруба: идеальное сочетание уюта и прочности.
      Строительство собственного дома является важной вехой в жизни любого человека, поскольку оно знаменует собой важное событие. Выбор строительных материалов имеет огромное значение для создания теплого и функционального жилища. На протяжении всей древней истории древесина была распространенным материалом для строительства домов, что отразилось на различных культурах мира.

      • 0 ответов
    • Люк для кошек своими руками
      Разумеется давно придуманы и продаются специальные лючки для кошек, которые можно врезать в дверь, но мы ведь не ищем легких путей . Да и по зоомагазинам я не хожу, а "гугление" показало, что такие люки для кошек стоят относительно не дешево. В то же время под рукой были два "копеечных" сантехнических пластиковых лючка для ГКЛ. Все что оставалось, так это обломать фиксаторы крышек, что бы они открывались в обе стороны, ровно выпилить отверстие в двери, да вклеить симметрично эти лючки.

      То, что получилось видно на фото. Разумеется это не для тех, у кого "дизайнерский ремонт", но для обыкновенной квартиры вполне подходит. Недостатков не замечено, животных и людей всё устраивает .


      Реакцию форумчан на этот люк можно узнать в этой теме https://homemasters.ru/...me/?p=330637

        • Ого
      • 6 ответов
×
×
  • Создать...

Важная информация

Мы разместили cookie-файлы на ваше устройство, чтобы помочь сделать этот сайт лучше. Вы можете изменить свои настройки cookie-файлов, или продолжить без изменения настроек.