Перейти к содержанию
Форумы о ремонте и строительстве

Помогите с дизайном гостиной

Оценить эту тему:


Рекомендуемые сообщения

Опубликовано

Здравствуйте, делаем ремонт в гостиной размером 5,6м на 3,2м, она у нас является также иногда спальней, и в то же время это проходная комната. Решили отделить ее от коридора, ведущего в другие комнаты, шторой, которую можно закрывать на время сна-отдыха, а также под шторой будет граница, разделяющая 2 разные фактуры пола. Первая загвоздка в обоях: стоит ли их клеить, придерживаясь этой границы (штора-пол)? Обои вот такие:

ext_73759de6bd6ea2e0ed21e34007abbd88.jpg

ext_700952f07060cc64214639c33f39eb7e.jpg

ext_8fffdf0673c7d2f831e1705e88d8bab3.jpg

Цветы на бежефом фоне, фиолетовые сплошные и вместо сиреневых лепестков (как на картинке) мы взяли бежевые. Планируем клеить вот так: за диваном вся стена в цветах, стена, где окно и зеркало (противоположные) сплошным фиолетовым, стена за тумбой тв бежевыми лепестками

ext_044a9db5a94d2152e99362be56cb0261.jpg

Вот и размышляем, может сделать на границе шторы фиолетовую вставку и от окна такую же фиолетовую вставку, получится как рамка, в которой цветы, а все остальное наклеить лепестками? или первый вариант лучше? Подскажите, кто как считает, пожалуйста, а то уже голова кружится)) Еще есть момент с зеркалом. Стена, на которой оно запланировано, немного неровная, но не критично (к верху стены отход 2-3мм). Ровнять, естесственно не хочется. Гда-то читала, что и на волнистые стены зеркало можно прикрепить. Но все-таки не хочется, чтобы всё обрушилось. Подскажите, это выполнимо? зеркала разных размеров, толщиной 5мм, общая конструкция размером 2,40м х 1,5м. Это будет как аппликация из 10 зеркал.

ext_6f3c66534ab102d13f7be7a16a914e6e.jpg

Обои уже выбраны, стекла подогнаны - осталось всё воплотить в жизнь. И, конечно, самое для меня нелегкое - подобрать декор интерьера. Хочется оживить комнату, не делать ее серо-бело-фиолетовой. Какие цвета можно рассматривать? В комнате предполагаются светло-бежевые шторы, возле стола еще будет стул, также кресло, навесных шкафов не хочется над тв. Буду очень признательна, если кто-нибудь покажет как обыграть такую цветовую гамму, ну и мебель. пока из мебели только диван в наличии, вот такого цвета:

ext_c7fb131315a7729889f2719fc7775011.jpg

Заранее спасибо!

  • 2 недели спустя...

сиреневый достаточно тяжёлый, но если вы хотите, чтобы было ярко, можно накидать зелёных подушек - это существенно оживит комнату, как мне кажется.а вообще хотел бы сказать, что идея очень оригинальная! всё со вкусом!

  • 2 недели спустя...

Здравствуйте, спасибо за ответ и отзыв :) Мне тоже думалось, что нелегкий цвет мы выбрали, но почему-то хотелось именно его. Сейчас, когда обои уже наклеены, комната перегруженной фиолетовым не кажется. Выглядит одна сторона так: https://homemasters.ru/up...aedf5622.jpg Фиолетовая стена, конечно, выглядит немного агрессивно, но на всю стену там будут шторы, так что ее практически и не будет видно, хотя мне нравится такой контраст. Остальные две стены нежного бежевого цвета, немного играют и переливаются от света. стена с зеркалами пока не завершена. Вот, на время праздников всё заморозили. Доотдыхаем и будем по-тихоньку мастерить дальше :rolleyes:

Однозначно нужен сочный зеленый цвет в подушках, цветы или ваза какая-нить. Если с идеей шторы еще не распрощались, то лучше раздвижную перегородку из стекла, но это канешно самый лучший и отнюдь не дешевый вариант. На 4 дверцы скорее всего судя по вашим размерам.У меня самой запланировано было разделение коридора от гостинной, а то двери входные открываешь - всё как на ладони. Приготовлено место под направляйки, и от пыли строительной временно была повешана штора. Так вот как только я ее повесила - сразу поняла что это вообще не вариант. Четкая ассоциация со шторкой в комнате в общаге, какой бы богатой и дорогой не была ткань, колхоз вообщим. Замерщик уже приходил, насчитал на мой проём шириной 2400 на 2500 высоты, на три дверцы одна из которых не двигается за работу и материалы 30 т.р. Вполне приемлемо.

На счет цвета, которым разбавлять комнату - думала еще за оранжевый, смотрела картинки - вроде ничего. Ну вот тут, например: https://homemasters.ru/up...c8025d75.jpg еще ярче: https://homemasters.ru/up...82b8cb89.jpg А вот здесь мне очень нравится, как сочетается зеленый. Наверное, он будет более спокойным для интерьера. Хотя, это и не спальня, чтобы успокаивать :unsure:https://homemasters.ru/up...5c556cbe.jpg Как считаете? Оранжевый хуже? На счет перегородки: дело не то чтобы в стоимости, замерщик нам посчитал не так уж много за нее - вполне земная для нас цена. Но как-то за счет нее комната становится очень маленькой, как соседняя спальня, только чуть шире. Плюс мы задумали зеркала на стене, а с перегородкой они как-то совсем не будут смотреться. Ну мне так кажется. Может я, конечно, ошибаюсь. На фото мне понравились проэкты со шторами. Они то в основном будут развинуты на две стороны к стенам и подвязаны красивыми воланами. Вроде заходишь и большой зал, а не маленьких коридорчик и средняя комната, в которой уже впятером будет тесновато (гостям). Запутываюсь я, в общем... А поначалу все так легко представлялось. Теперь, когда обдумываешь каждую деталь, все становится туманнее и туманнее :( Спасибо всем, кто мне пытается подсказать, очень благодарна за любой совет.

По перегородке. У моего друга была та же проблема - от входной двери отлично просматривалась гостиная. Он сделал так: прихожую отгородил полукруглой стеночкой высотой 1,5 метра, отделанной искусственным камнем, а выше сделал специальные остекленные деревянные рамы, на которых пескоструйкой нанесен вид Сиднея. Получилось все - респект просто. И прихожка получила естественный свет, гостиная не просматривается и решение - со вкусом.К сожалению, фотки нет, но верьте на слово :)Мне не понравилось на вашем плане, что через зеркальную стену будут заглядывать даже вам в спальню. post-70849-1326100672_thumb.jpgНе делайте там зеркало. Я не понял из плана - у вас где люди будут при входе раздеваться, куда одежду вешать, обувь ставить?

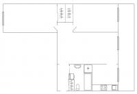
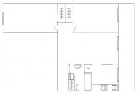
Troy, попыталась представить то, что Вы описали (как у друга сделано) - очень интересно. У нас раньше стоял угловой диван с высоким быльцем, уголом к проходу, а за ним этажерка. Вроде как и перегородка, хоть и прозрачная. Через зеркало в спальню... Ну там какбы дверь. И всегда закрытая. А вообще, и не подумала об этом. При входе люди будут раздеваться в прихожей, там и обувь, и одежда. А тут у меня изображена уже сама комната. Ну вот такой еще план всей квартиры могу показать, может понятней из него будет, где у нас что https://homemasters.ru/up...8f8be79d.jpg Это я нашла в интернете план такой квартиры, как у нас. с программами, в которых можно воспроизвести квартиру в формате 3д, у меня отношения что-то никак не складываются... На рисунке показано, что мы изменяли в стандартной планировке и всё-таки квартира так и осталась не очень удобной. Ну, хрущевки - они такие :) В прихожей обрезали немного угол ванной, а то там совсем тесно - развернуться негде (впрочем, как и в ванной), даже шкафчик для обуви не поставишь толком, уже не говорю про шкаф для верхней одежды... но это уже следующий этап стройки) Вход в зал был посреди комнаты и очень широкий, поэтому этот вход мы заложили и сделали дверь сразу напротив входной. Из маленькой спальни был вход в кладовую. этот вход было решено заложить и сделать гардеробную не из спальни, а так, чтобы все жильцы могли иметь в нее доступ, не шастая через спальню. Вот такие небольшие изменения мы внесли. Еще у нас есть балкон-пристройка (живем на 1-м этаже). какое это спасение для такой маленькой кухни, как у нас... благодаря ему у нас теперь рабочая зона и столовая размером с еще одну такую же кухню. *все изменения на плане оранжевым цветом А как Вы считаете, лучше вместо зеркала просто закончить стену обоями и все? Так хочется зеркало в комнате, аж не могу)))

Troy, попыталась представить то, что Вы описали (как у друга сделано) - очень интересно. У нас раньше стоял угловой диван с высоким быльцем, уголом к проходу, а за ним этажерка. Вроде как и перегородка, хоть и прозрачная.

Смотрится даже лучше, чем я описал. Он вообще без помощи дизайнера сделал очень красивый ремонт, все продумано.По вашему плану. Я бы сделал так:post-70849-1326108259_thumb.jpgЭто всего лишь схема, без размеров помещения я не смогу сказать, получится ли сделать то, что я нарисовал.Вообщем так:1. Вход в кухню из зала через широкий проем2. Справа от входа шкаф-купе (там можно сделать одну створку зеркальной)3. Бывший коридор делиться так: место в кухне под холодильник, остальное отдать ванной (а то мы у нее забрали место под шкаф)4. Вход в с/у оформляем дверью купе.5. Гардеробная пилится пополам, дверь напротив входной двери мне не понравилась.Enjoy! :)P.S.: В переделке.тв очень часто делают всю стену зеркальной "для раздвигания пространства" - мне ни в одном случае не понравилось.

Я делал такую квартиру. Troy Вам набросал оптимальный, на мой взгляд, вариант. Я делал точно так же, только кухня с гостиной объединялась. Сквозной проход в спальни отделяли "прозрачной" перегородкой с поворотным телевизором. На обратной стороне зеркало. Полки соответственно можно использовать как под книги, так и под всякий декор. Примерно то о чём я говорю можете в моём альбоме глянуть. Ну или что то, как на этом первом фото.

Или вот, в соседней ветке Alef картинок с перегородками набросал. Мне первая понравилась, со скруглёнными (овальными) полками (фото 2)

Если её из гипсокартона замутить, классная вещь получиться.

https://homemasters.ru/fo...lnogo-mesta/

По моему, Вам нужно в эту сторону думать.

post-40814-1326111197_thumb.jpg

post-40814-1326112839_thumb.jpg

... Я делал точно так же, только кухня с гостиной объединялась.

Мне не очень нравится объединение гостиной и кухни - запахи будут летать по всей квартире.Я бы даже сделал так:post-70849-1326127160_thumb.jpgПроход в кухню сделал бы пошире, где то 1,2-1,5м и сдвижную стену. В новой квартире иду по этому пути. Ну вы знаете :) Как раз делаю пенал под эту стену.

По вашему плану. Я бы сделал так:post-70849-1326108259_thumb.jpgЭто всего лишь схема, без размеров помещения я не смогу сказать, получится ли сделать то, что я нарисовал.Вообщем так:1. Вход в кухню из зала через широкий проем2. Справа от входа шкаф-купе (там можно сделать одну створку зеркальной)3. Бывший коридор делиться так: место в кухне под холодильник, остальное отдать ванной (а то мы у нее забрали место под шкаф)4. Вход в с/у оформляем дверью купе.5. Гардеробная пилится пополам, дверь напротив входной двери мне не понравилась.Enjoy! :)P.S.: В переделке.тв очень часто делают всю стену зеркальной "для раздвигания пространства" - мне ни в одном случае не понравилось.

Так, как Вы написали, сделана квартира у моей подруги. Отвечу тоже по пунктам1. Делать из зала еще бОльшую проходную комнату, чем она уже есть сейчас, мне не хочется. Ведь предполагается, что это место бывает иногда спальным местом. А с проемом в кухню это невозможно.2. Шкаф в прихожей нам критически и не нужен. Для всей верхней одежды предусмотрена гардеробная. В прихожей достаточно стеллажа под обувь и небольшой вешалки.3. В кухне и так есть, где всё расставить благодаря пристройке. Ванная, конечно да... маленькая.5. Категорически не хотели делить так гардеробную. Вход в нее был как раз из комнаты. Это получают две маленькие коморки. А так - отличное вместительное помещение для громоздкой верхней одежды и всякого хлама.Ну и перестраивать квартиру,в которой только сделали ремонт в комнатах и кухне (остались ванная, прихожая и балкон), неразумно. Поэтому доделываем то, что уже есть и отдыхаем от строительной пыли до осени :)А за предложенный вариант спасибо

Если её из гипсокартона замутить, классная вещь получиться.https://homemasters.ru/fo...lnogo-mesta/По моему, Вам нужно в эту сторону думать.

Опять же. Какие строительные работы из гипсокартона можно делать, если поклеены обои, и лежит новый пол. Все сдирать и строить заново? :unsure: Из перегородок пока все больше склоняемся таки к варианту, который предложила Gluka - раздвижная межкомнатная.

Мне не очень нравится объединение гостиной и кухни - запахи будут летать по всей квартире.

Я работаю не для себя. У себя я уже забыл когда что то делал. Моя квартира. по сравнению с Вашими выглядит как хижина дяди Тома.

Я работаю не для себя. У себя я уже забыл когда что то делал. Моя квартира. по сравнению с Вашими выглядит как хижина дяди Тома.

Я понимаю, что это хотения заказчика. А я завтра сделаю пару фото со своих развалин, там сейчас даже не хижина :)А у вас нет парочки картинок с дизайном, который вам нравится? Может, найду себе идею, а то всю голову уже сломал.

Поэтому доделываем то, что уже есть и отдыхаем от строительной пыли до осени :)А за предложенный вариант спасибо

Ну ладно, может другим этот вариант понравится :)

"перегородка" может быть и тканевая,и при это не выглядеть как "сов.ком.-занавеска".post-11625-1326213167_thumb.jpgа если развить идею ,взяв за основу вот такой принцип,то можно и очень интересный арт-объект из неё сделать... post-11625-1326213367_thumb.jpg

(изменено)

Alef, расскажите, пожалуйста, что это за красивые штуки, не японские шторы ли? И как они крепятся? Направляющие к стене?

Изменено пользователем Йанчег

"красивые штуки"-это со светом которые? Я картинку вставил лишь как иллюстрацию.Конкретно это оригинальное "полотно-лампа" стоит неприлично дорого(700$ :blink: ) Мне просто подумалось что в вашем варианте можно было бы сделать подобное.Допустим,две таких панели ,между ними проём,который при необходимости можно закрывать прямыми тканевыми панелями .Продумать рисунок,цвет,цвет и интенсивность подсветки-может получиться очень интересный и оригинальный элемент интерьера.

а сами эти панели - не японские шторы? Может как-то светодиодную подсветку можно с ними совместить? Только как же провода подводить тогда :unsure:

те,которые подвижные-да,"японские шторы".Крайние панели, у стен которые, по сути тоже японские шторы,но в два слоя с промежутком между слоями.Вот в эти крайние панели и можно вмонтировать подсветку ,так что проблем с проводкой не вижу.post-11625-1326220357_thumb.jpgpost-11625-1326220370_thumb.jpg

А можно я еще Вас помучаю расспросами?)) Можно ли организовать эту подсветку в нашей ситуации, когда обои уже поклеены и строительная часть работ по сути завершена? Это же, наверное, надо было провода тянуть, чтобы потом эту подсветку подключить? Или как оно работает?

Для публикации сообщений создайте учётную запись или авторизуйтесь

Вы должны быть зарегистрированным пользователем, чтобы оставить комментарий

Создать учетную запись

Зарегистрируйтесь в нашем сообществе.

Зарегистрироваться

Войти

Уже есть аккаунт? Войти в систему.

Войти

Или войти с помощью одного из сервисов



  • Наши рекомендации

    • Люк для кошек своими руками
      Разумеется давно придуманы и продаются специальные лючки для кошек, которые можно врезать в дверь, но мы ведь не ищем легких путей . Да и по зоомагазинам я не хожу, а "гугление" показало, что такие люки для кошек стоят относительно не дешево. В то же время под рукой были два "копеечных" сантехнических пластиковых лючка для ГКЛ. Все что оставалось, так это обломать фиксаторы крышек, что бы они открывались в обе стороны, ровно выпилить отверстие в двери, да вклеить симметрично эти лючки.

      То, что получилось видно на фото. Разумеется это не для тех, у кого "дизайнерский ремонт", но для обыкновенной квартиры вполне подходит. Недостатков не замечено, животных и людей всё устраивает .


      Реакцию форумчан на этот люк можно узнать в этой теме https://homemasters.ru/...me/?p=330637

        • Ого
      • 6 ответов
    • Кажись всё или строительный пылесос с тройной мультициклонной ступенью очистки
      Кажись всё или строительный пылесос с тройной мультициклонной ступенью очистки

        • Нравится
      • 16 ответов
    • Как построить теплый дом, не тратя лишних денег
      Строительство гостевого дома решил выделить в отдельную тему, так будет меньше путаницы.


        • Спасибо
        • Нравится
      • 256 ответов
    • Дома из сруба: идеальное сочетание уюта и прочности.
      Строительство собственного дома является важной вехой в жизни любого человека, поскольку оно знаменует собой важное событие. Выбор строительных материалов имеет огромное значение для создания теплого и функционального жилища. На протяжении всей древней истории древесина была распространенным материалом для строительства домов, что отразилось на различных культурах мира.

      • 0 ответов
    • Газовые котлы: эффективное, экономичное и экологичное решение для отопления вашего дома
      В современном мире, где комфорт и устойчивость стали ключевыми аспектами повседневной жизни, выбор правильного источника отопления дома становится особенно актуальным. Газовые котлы, сочетая в себе преимущества эффективности, экономичности и экологичности, представляют собой одно из наиболее популярных решений для обеспечения комфортной температуры в жилых и коммерческих помещениях.

      • 0 ответов
    • Вторая жизнь дивана: искусство ремонта мягкой мебели своими руками
      В эпоху беспрерывного потребления и стремления к новизне, ремонт старой мягкой мебели своими руками приобретает не просто практическое, но и глубоко философское значение. Это действие как знак уважения к труду мастеров, которые вложили свое мастерство в создание диванов, кресел и пуфов, и как воплощение идеи устойчивого потребления. С каждым возвращенным к жизни предметом мебели, мы не только сохраняем историю и уникальность каждого изделия, но и противостоим бездумному обновлению интерьера за счет экологии и рационального использования ресурсов.

        • Нравится
      • 0 ответов
    • Подходы к ремонту старых домов в России
      В России сотни тысяч старых домов, многие из которых являются не только свидетельством исторического наследия, но и отражением уникальной культуры и традиций страны. Эти дома, будь то деревянные избы или старинные каменные постройки, сохраняют в себе дух времени и рассказывают историю поколений.

      • 0 ответов
    • Аккумуляторные пилы  SCW и  SCM  22-A
      После того как провёл тесты, приступил к самому главному. Поменять диски местами, и проверить, как инструмент на это отреагирует, ведь они внешнее и походу внутренне практически одинаковые, пила по дереву конечно более навороченее, есть настройки угла наклона и можно на шину посадить через адаптер.

      • 4 ответа
×
×
  • Создать...

Важная информация

Мы разместили cookie-файлы на ваше устройство, чтобы помочь сделать этот сайт лучше. Вы можете изменить свои настройки cookie-файлов, или продолжить без изменения настроек.