Перейти к содержанию
Форумы о ремонте и строительстве

Как выравнить глубину входного проёма (выступ 5 см)?

Оценить эту тему:


Рекомендуемые сообщения

Опубликовано

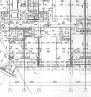
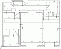
Проектировщики дома, где у меня квартира, решили сэкономить на кирпичах: между квартирой и коридором положили кирпич (толщина стены 25 см.), а между квартирами – пазогребневые плиты в два слоя (толщина 20 см.). Нормальные люди сделали бы так, чтобы скос смотрел наружу и пришёлся на место стыка стен, но эти товарищи скос повернули в квартиру (на фото можно увидеть разницу над уголком, заменяющим балку).

Так вот, как мне выравнить глубину дверного проёма?

На третьей фотографии можно разглядеть выступ над правой границей входного проёма

post-76885-1330249152_thumb.jpg

post-76885-1330249187_thumb.jpg

post-76885-1330249270_thumb.jpg

post-76885-1330249440_thumb.jpg

post-76885-1330249460_thumb.jpg

post-76885-1330249498_thumb.jpg

post-76885-1330249507_thumb.jpg

post-76885-1330249553_thumb.gif

Тут либо вытягивать всю стену, либо вытянуть проём и дальше обыграть перепад слоев дизайнерским ходом. Что у тебя вдоль этой стены планируется? Если шкаф, то можно выровнять до шкафа, а делее шкаф глубже будет.

palych70 извини за офф. У тебя что , дверь внутрь открывается или я переработал сёдня ?

pavlik123! Планирую с обоих сторон шкафы-купе на всю высоту потолка.

У тебя что , дверь внутрь открывается?

Ага, во внутрь. А всё из-за того, что слишком близко соседская дверь (думаю, пожарники бы не разрешили строителям поставить двери, открывающиеся наружу). Но я, конечно, буду менять дверь.

post-76885-1330363838_thumb.jpg

так по пожарным нормам входные двери должны открываться наружу как раз, чтобы в случае Ж - можно было быстро и беспрепятственно выбегать.меня это на плане смутило, входная дверь и еще одна межкомнатная открываются внутрь...P.S.: был частично не прав...

4.12. Двери на путях эвакуации должны открываться по направлению выхода из здания.Двери на балконы, лоджии (за исключением дверей, ведущих в воздушную зону незадымляемых лестничных клеток 1-го типа) и на площадки наружных лестниц, предназначенных для эвакуации, двери из помещений с одновременным пребыванием не более 15 чел., двери из кладовых площадью не более 200 м2 и санитарных узлов допускается проектировать открывающимися внутрь помещений.

С дверями надо с соседом согласовать, чтоб двери друг к дружке плошмя открывались, иначе можно "заклинится" в дверях. По коридору таки не парся, если шкафы будут, выравнивай проём до условного шкафа, потом шкаф или впритык к образовавшемуся углу(тогда шкаф будет глубже на 5 условных сантиметров), или шкаф внутрь образовавшегося угла(тогда коридор будет шире на 5см.)

С соседом уже всё обговорено: он тоже будет ставить дверь с открыванием наружу.

Для публикации сообщений создайте учётную запись или авторизуйтесь

Вы должны быть зарегистрированным пользователем, чтобы оставить комментарий

Создать учетную запись

Зарегистрируйтесь в нашем сообществе.

Зарегистрироваться

Войти

Уже есть аккаунт? Войти в систему.

Войти

Или войти с помощью одного из сервисов



  • Наши рекомендации

    • Подходы к ремонту старых домов в России
      В России сотни тысяч старых домов, многие из которых являются не только свидетельством исторического наследия, но и отражением уникальной культуры и традиций страны. Эти дома, будь то деревянные избы или старинные каменные постройки, сохраняют в себе дух времени и рассказывают историю поколений.

      • 0 ответов
    • Газовые котлы: эффективное, экономичное и экологичное решение для отопления вашего дома
      В современном мире, где комфорт и устойчивость стали ключевыми аспектами повседневной жизни, выбор правильного источника отопления дома становится особенно актуальным. Газовые котлы, сочетая в себе преимущества эффективности, экономичности и экологичности, представляют собой одно из наиболее популярных решений для обеспечения комфортной температуры в жилых и коммерческих помещениях.

      • 0 ответов
    • Аккумуляторные пилы  SCW и  SCM  22-A
      После того как провёл тесты, приступил к самому главному. Поменять диски местами, и проверить, как инструмент на это отреагирует, ведь они внешнее и походу внутренне практически одинаковые, пила по дереву конечно более навороченее, есть настройки угла наклона и можно на шину посадить через адаптер.

      • 4 ответа
    • Вторая жизнь дивана: искусство ремонта мягкой мебели своими руками
      В эпоху беспрерывного потребления и стремления к новизне, ремонт старой мягкой мебели своими руками приобретает не просто практическое, но и глубоко философское значение. Это действие как знак уважения к труду мастеров, которые вложили свое мастерство в создание диванов, кресел и пуфов, и как воплощение идеи устойчивого потребления. С каждым возвращенным к жизни предметом мебели, мы не только сохраняем историю и уникальность каждого изделия, но и противостоим бездумному обновлению интерьера за счет экологии и рационального использования ресурсов.

        • Нравится
      • 0 ответов
    • Люк для кошек своими руками
      Разумеется давно придуманы и продаются специальные лючки для кошек, которые можно врезать в дверь, но мы ведь не ищем легких путей . Да и по зоомагазинам я не хожу, а "гугление" показало, что такие люки для кошек стоят относительно не дешево. В то же время под рукой были два "копеечных" сантехнических пластиковых лючка для ГКЛ. Все что оставалось, так это обломать фиксаторы крышек, что бы они открывались в обе стороны, ровно выпилить отверстие в двери, да вклеить симметрично эти лючки.

      То, что получилось видно на фото. Разумеется это не для тех, у кого "дизайнерский ремонт", но для обыкновенной квартиры вполне подходит. Недостатков не замечено, животных и людей всё устраивает .


      Реакцию форумчан на этот люк можно узнать в этой теме https://homemasters.ru/...me/?p=330637

        • Ого
      • 6 ответов
    • Дома из сруба: идеальное сочетание уюта и прочности.
      Строительство собственного дома является важной вехой в жизни любого человека, поскольку оно знаменует собой важное событие. Выбор строительных материалов имеет огромное значение для создания теплого и функционального жилища. На протяжении всей древней истории древесина была распространенным материалом для строительства домов, что отразилось на различных культурах мира.

      • 0 ответов
    • Как построить теплый дом, не тратя лишних денег
      Строительство гостевого дома решил выделить в отдельную тему, так будет меньше путаницы.


        • Спасибо
        • Нравится
      • 239 ответов
    • Кажись всё или строительный пылесос с тройной мультициклонной ступенью очистки
      Кажись всё или строительный пылесос с тройной мультициклонной ступенью очистки

        • Нравится
      • 16 ответов
×
×
  • Создать...

Важная информация

Мы разместили cookie-файлы на ваше устройство, чтобы помочь сделать этот сайт лучше. Вы можете изменить свои настройки cookie-файлов, или продолжить без изменения настроек.