Перейти к содержанию
Форумы о ремонте и строительстве

Электропроводка в двухкомнатной квартире

Оценить эту тему:


Рекомендуемые сообщения

Опубликовано

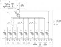
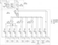
День добрый. Ремонт вторичного жилья в разгаре. Ремонтирую естественно сам, так как денег чтобы платить профессионалам - нет. Дом не старый, но я решил заменить алюминиевую проводку и заодно сделать внутриквартирный щит. В щитке подъезда стоит автомат АЕ2046М 25А, счётчик и автоматы трёх групп - две группы освещение по 16А и одна группа розетки на 25А. Вводный автомат планирую поменять на АЕ2046М 40А т.к. электрик из ЖЭКа посоветовал ставить такой же чтобы совпал по креплению. Затем будет идти старый счётчик и вместо трех групповых автоматов планирую установить противопожарное УЗО. Сечение проводов указано сразу для группы фаза, ноль, земля. Там где сечение не указано соединение буду производить шиной. На монтажной схеме не указана шина заземления, но она будет. Далее на схеме всё есть. Вопросы: 1) К сожалению УЗО на 300 мА у нас найти я пока не смог, так что остановился на ВД1-63 2Р 100А 100мА. Подойдёт ли такое УЗО? 2) Двухполюсный автомат на входе в квартирный щиток решил установить для удобства. Или не стоит его туда ставить, а просто взять УЗО которое предназначено в щиток подъезда и поставить его внутрь квартиры? 3) Электрик ЖЭКа сказал, что если кабель из щитка в квартиру буду кидать в металлическом рукаве, рукав надо заземлять. Обязательно? 4) Имеет ли значение для УЗО с какой стороны в него заходит нагрузка, сверху или снизу? Это важно для монтажа. Хочу максимально использовать шины. Хотя можно ведь ввод в первый автомат сделать снизу... :huh: 5) Для монтажа планирую использовать NYM. По номиналам сечений кабелей есть ли какие-то рекомендации или на схеме указано правильно? 6) В качестве щитка планирую использовать Бокс ЩРВ-П-18. Хороший щит или неудобный? Есть в нём куда крепить шины? 7) УЗО у нас продают фирмы ИЭК. Других фирм не видел, а вот автоматы есть всякие. Стоит гнаться за Schneider, АВВ и искать их, или IEK пойдёт? Заранее спасибо за внимание.

post-81595-1337256484_thumb.jpg

post-81595-1337256494_thumb.jpg

Вводный автомат планирую поменять на АЕ2046М 40А

А разрешение у вас есть?1) Подойдет.2)3) Обязательно. А что заштукатурить или в гофре пустить нельзя?4) Имеет. Вход сверху, выход - снизу. Для автоматов - так же.5) На схеме перебор. Розетки (кухня - прихожая) - 16 А. 16 А на один холодильник - перебор.Остальное скажут профи :)

В щитке подъезда стоит автомат АЕ2046М 25А...

Автомат 3-х полюсный? Гугл мне именно 3-х полюсный показывает.

Вводный автомат планирую поменять на АЕ2046М 40А т.к. электрик из ЖЭКа посоветовал ставить такой же чтобы совпал по креплению.

Вот так вот взял и разрешил заменить 25 на 40? :wow: И бумагу подпишет? :)Если автомат правда 3-х полюсный, то схему придётся переделывать, но скорее всего явно косяк, и сеть однофазная, так что и по схемке "пройдусь".

1) ВД1-63 2Р 100А 100мА. Подойдёт ли такое УЗО?

Пойдёт.

2) Двухполюсный автомат на входе в квартирный щиток решил установить для удобства.

Можно и так.

4) Имеет ли значение для УЗО с какой стороны в него заходит нагрузка, сверху или снизу?

По моему ему, УЗО, по барабану, но если что меня скоро поправят :)

5)По номиналам сечений кабелей есть ли какие-то рекомендации или на схеме указано правильно?

На розетки кухни идёт 4-ка после автомата на 25А. Розетки точно рассчитаны на 25А?С розетками и освещением балкона не ясно, где что будет стоять? Причём там кондей?П.С.

4) Имеет. Вход сверху, выход - снизу. Для автоматов - так же.

Вот если про узо я не уверен, то автомату точно всё равно :)
(изменено)

А разрешение у вас есть?

Электрик из ЖЭКа приходил сказал без проблем меняй на 40А.3)Штукатурить это значит штробить стену в подъезде и укладывать туда. А если потом кто додумается что-нибудь там проложить и засверлится? Лучше сверху в металлической гофре уложу и заведу в отверстие под потолком прихожей прямо в квартиру.5) В кухне я предположил наличие микроволновки и в будущем водонагревателя и посудомоечной машины. Холодильник может и многовато, но я изначально думал туда на 6А поставить, а потом подумал вдруг ещё что-нибудь к этой розетке подцеплю так как холодильник будет стоять у противоположной стены от основных розеток в кухне.2 Bagis,Автомат 3Р всё верно. Используются 2 полюса для фазы и нуля. Уж что есть то есть.4) Мне также кажется.5) Розетки будут обычные на 10А, просто предположил большую нагрузку в виде водонагревателя микроволновки, посудомоечной машины и т.д. На лоджии будет освещение и возможно розетки для будущей установки сплит системы.Ещё один вопрос появился. Стоит ли вместо связки УЗО2 и АВ4 установить один АВДТ32 2Р С25 30мА? Изменено пользователем BuT9l
post-73269-1337259757_thumb.jpgПроизводители рекомендуют подключать УЗО так, что бы сама схема УЗО при срабатывании была отключена от сети.

Вот если про узо я не уверен, то автомату точно всё равно

Есть подвижные контакты и неподвижные. Нагрузка подсоединяется к подвижным, а ввод к неподвижным.

Розетки будут обычные на 10А,

Тогда и 16-ти амперного автомата, если делать всё по уму, многовато.

На лоджии будет освещение и возможно розетки для будущей установки сплит системы.

Ну так внутренний блок же всё равно будет в комнате? Или и его на лоджию? :) Короче, если розетки на лоджии, то их, очень рекомендуется, через узо на 30мА.

Стоит ли вместо связки УЗО2 и АВ4 установить один АВДТ32 2Р С25 30мА?

Можно и так, но связка обычно дешевле.

Manul, какой контакт тут подвижный? :)

post-15106-1337263036_thumb.jpg

Manul, может уже на ты перейдём? Вы хоть и старше, но не так уж и намного :)

Это Вы сами собрали?

Это я сам разобрал :)

Или эконом вариант?

Автомат GE промышленная серия. Хотя думаю начинка, что у промышленной, что у домашней серии, одинаковая.

Ну и козырной туз -

Имеет. Вход сверху, выход - снизу. Для автоматов - так же.

У подавляющего большинства автоматов место для установки шины снизу, так что с Вашим утверждением не вяжется :P

Manul, может уже на ты перейдём?

Добро! Меня Николаем зовут.

Хотя думаю начинка, что у промышленной, что у домашней серии, одинаковая.

Сравните начинку:post-73269-1337272553_thumb.jpg

У подавляющего большинства автоматов место для установки шины снизу, так что с Вашим утверждением не вяжется

post-73269-1337272789_thumb.jpgА по ней не скажешь, что её только снизу ставить :)

Меня Николаем зовут.

Очень приятно. А я Сергей.

Сравните начинку:

Да отличий не так и много.

А по ней не скажешь, что её только снизу ставить :)

Как это не скажешь?! Она ставится в спец. прорезь, под головку винта. А прорезь эта, в большинстве случаев, снизу. По моему всего один автомат видел у которого прорезь была и сверху, и снизу (OEZ). Но он ужасно уродливый :D

Друзья, вы всё-таки определитесь как можно поключать УЗО и автоматы, а то я не человек-электрик.

Тогда и 16-ти амперного автомата, если делать всё по уму, многовато.

Если ставить 16А тогда 2,5 квадрата хватит?

Можно и так, но связка обычно дешевле.

Дифавтомат 25А/30мА по прайсу 413 рублей, а узо на такой же номинал 430 + автомат 37 рублей. Может конечно этот диф и гавно за такие-то деньги.По изделиям фирмы IEK что скажете? Стоит их брать или искать "фирмУ"?Хочется как-то уже подвести итог по щитку.У меня ведь ещё вопросы будут по дальнейшему монтажу кабелей, распредкорбок, розеток и света. :rolleyes:

По изделиям фирмы IEK что скажете? Стоит их брать или искать "фирмУ"?

Не буду ни советовать, ни отговаривать, так как сам достоверно не знаю, но дам повод для размышления: ИЭКи обычно ставят застройщики в своих щитках. А они как правило ставят самое говно, потому что оно самое дешевое. Так что, по крайней мере касаемо УЗО или дифа, я для себя решил так: если ИЭК или никакого - то ИЭК, если ИЭК или какой-то другой - то какой-то другой. Главное - не забывай кнопочкой проверять, чтобы отловить возможный выход из строя.

Друзья, вы всё-таки определитесь как можно поключать УЗО и автоматы, а то я не человек-электрик.

Про автоматы я уже сказал, узо у меня дома и так и так подключены. Послушаем что скажет "стая" :)

Если ставить 16А тогда 2,5 квадрата хватит?

Ага.

У меня ведь ещё вопросы будут по дальнейшему монтажу...

А это, завсегда, милости просим :)

как подключать зависит от узо, большинство дорогих позволяют любое подключение на маркировке клемм стоит надпись 1(2) и 2(1) можно и так и таксмотри картинку

post-4333-1337281311_thumb.jpg

Стоит заморачиваться на электромеханическое УЗО или покатит любое?И еще по монтажу в шкафу: - выводы после автоматов и нули, земли с шин желательно завести на клеммы и оттуда вести кабели по квартире?- или кабели тупо заводить и подключать в автоматы и на шины?

Да щиток то всего на 18 мест, куда там ещё клеммы? Прямо на автоматы заводить да и всё. Меньше соединений - надёжней работа :)

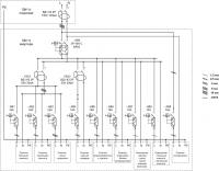
С учетом критики доработал схему.Уменьшил номенклатуру кабелей. Ввод из подъезда решил делать ВВГнгп 3х6, думаю хватит.Поставил УЗО на лоджию. Уменьшил номиналы автоматов на кухню и к холодильнику.Монтажную не стал переделывать - посмотрю по факту какие будут УЗО и автоматы.Клеммники видимо некуда будет впихивать, надеюсь хоть шины нулей и земли будет куда присобачить в этом щитке.

post-81595-1337322966_thumb.jpg

Как по мне, так всё пучком.Единственное, исходя из этого -

Холодильник может и многовато, но я изначально думал туда на 6А поставить, а потом подумал вдруг ещё что-нибудь к этой розетке подцеплю...

предлагаю, всё же, сразу кабель заложить на 2.5. А 10 потом, если понадобится, легко в щитке можно будет заменить на 16. И узо1 вполне может быть на 50 или даже 40А. Возможно это поможет сэкономить немного денюжки :)
(изменено)

Единственное, исходя из этого - предлагаю, всё же, сразу кабель заложить на 2.5. А 10 потом, если понадобится, легко в щитке можно будет заменить на 16.

Разница между автоматом на 10 и на 16 ампер ничтожна, а между кабелями значительна. Тогда уж смысла нет экономить на автомате и сразу делать 16А и 2,5 квадрата.

И узо1 вполне может быть на 50 или даже 40А. Возможно это поможет сэкономить немного денюжки :)

Где-то здесь же читал что номинал УЗО должен быть больше суммы номиналов автоматов стоящих после него. Вот из этого утверждения я и исходил.

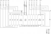
post-81595-1337331411_thumb.jpg

Изменено пользователем BuT9l

Читал не внимательно :P Там говорилось, что то типа: больше или равен сумме токов автоматов стоящих после, или номиналу автомата стоящего до. У тебя до стоит 40-ка, хотя и она всё ещё под сомнением. Нельзя так просто взять и заменить 25 на 40. Даже если электрик разрешил :) Нужно согласование в энергосетех.

Для публикации сообщений создайте учётную запись или авторизуйтесь

Вы должны быть зарегистрированным пользователем, чтобы оставить комментарий

Создать учетную запись

Зарегистрируйтесь в нашем сообществе.

Зарегистрироваться

Войти

Уже есть аккаунт? Войти в систему.

Войти

Или войти с помощью одного из сервисов



  • Наши рекомендации

    • Люк для кошек своими руками
      Разумеется давно придуманы и продаются специальные лючки для кошек, которые можно врезать в дверь, но мы ведь не ищем легких путей . Да и по зоомагазинам я не хожу, а "гугление" показало, что такие люки для кошек стоят относительно не дешево. В то же время под рукой были два "копеечных" сантехнических пластиковых лючка для ГКЛ. Все что оставалось, так это обломать фиксаторы крышек, что бы они открывались в обе стороны, ровно выпилить отверстие в двери, да вклеить симметрично эти лючки.

      То, что получилось видно на фото. Разумеется это не для тех, у кого "дизайнерский ремонт", но для обыкновенной квартиры вполне подходит. Недостатков не замечено, животных и людей всё устраивает .


      Реакцию форумчан на этот люк можно узнать в этой теме https://homemasters.ru/...me/?p=330637

        • Ого
      • 6 ответов
    • Аккумуляторные пилы  SCW и  SCM  22-A
      После того как провёл тесты, приступил к самому главному. Поменять диски местами, и проверить, как инструмент на это отреагирует, ведь они внешнее и походу внутренне практически одинаковые, пила по дереву конечно более навороченее, есть настройки угла наклона и можно на шину посадить через адаптер.

      • 4 ответа
    • Вторая жизнь дивана: искусство ремонта мягкой мебели своими руками
      В эпоху беспрерывного потребления и стремления к новизне, ремонт старой мягкой мебели своими руками приобретает не просто практическое, но и глубоко философское значение. Это действие как знак уважения к труду мастеров, которые вложили свое мастерство в создание диванов, кресел и пуфов, и как воплощение идеи устойчивого потребления. С каждым возвращенным к жизни предметом мебели, мы не только сохраняем историю и уникальность каждого изделия, но и противостоим бездумному обновлению интерьера за счет экологии и рационального использования ресурсов.

        • Нравится
      • 0 ответов
    • Дома из сруба: идеальное сочетание уюта и прочности.
      Строительство собственного дома является важной вехой в жизни любого человека, поскольку оно знаменует собой важное событие. Выбор строительных материалов имеет огромное значение для создания теплого и функционального жилища. На протяжении всей древней истории древесина была распространенным материалом для строительства домов, что отразилось на различных культурах мира.

      • 0 ответов
    • Как построить теплый дом, не тратя лишних денег
      Строительство гостевого дома решил выделить в отдельную тему, так будет меньше путаницы.


        • Спасибо
        • Нравится
      • 259 ответов
    • Газовые котлы: эффективное, экономичное и экологичное решение для отопления вашего дома
      В современном мире, где комфорт и устойчивость стали ключевыми аспектами повседневной жизни, выбор правильного источника отопления дома становится особенно актуальным. Газовые котлы, сочетая в себе преимущества эффективности, экономичности и экологичности, представляют собой одно из наиболее популярных решений для обеспечения комфортной температуры в жилых и коммерческих помещениях.

      • 0 ответов
    • Кажись всё или строительный пылесос с тройной мультициклонной ступенью очистки
      Кажись всё или строительный пылесос с тройной мультициклонной ступенью очистки

        • Нравится
      • 16 ответов
    • Подходы к ремонту старых домов в России
      В России сотни тысяч старых домов, многие из которых являются не только свидетельством исторического наследия, но и отражением уникальной культуры и традиций страны. Эти дома, будь то деревянные избы или старинные каменные постройки, сохраняют в себе дух времени и рассказывают историю поколений.

      • 0 ответов
×
×
  • Создать...

Важная информация

Мы разместили cookie-файлы на ваше устройство, чтобы помочь сделать этот сайт лучше. Вы можете изменить свои настройки cookie-файлов, или продолжить без изменения настроек.