Перейти к содержанию
Форумы о ремонте и строительстве

Перепланировка 3-х комнатной квартиры

Оценить эту тему:


Рекомендуемые сообщения

Опубликовано

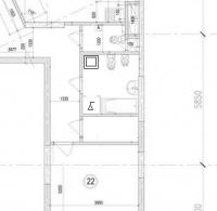
Уважаемые форумчане! Планируем к покупке квартиру в новом доме. К сожалению, планировки не очень хорошие, хотя площадь довольно большая. В наличии остались квартиры следующих планировок. post-83976-1360139314_thumb.jpg Недостатки налицо: - длинный коридор (к тому же углом) - ванная хоть и приличной площади, но унитаз там не установить. А кроме унитаза в санузлах хотелось бы биде и душевую кабину. На мой взгляд, в таком санузле (даже расширенном за счет подсобного помещения), сложно придумать размещение душевой кабины. Второй тип планировки: post-83976-1360139339_thumb.jpg Здесь тоже недостатки: -площадь кухни существенно уменьшается за счет "неработающего" куска у входа; - извилистый коридор налево от входа. Прошу Вас высказаться, что можно улучшить в этих планировках. Буду очень благодарна. С уважением Favirit.

вам нужны 3 изолированные комнаты?

лично меня бы сразу напугал такой вопрос :) . Хотя люди настолько непредсказуемы,что дай им 200 квадратных метров,так окажется что нет места для игрищ трёх домашних ротвейлеров,а в ванной хорошо бы ещё бассЭйн организовать...."Планировочки" конечно шедевральные,но если уж выбирать ,то я за первый вариант.Второй это вообще "финиш"...

чем напугал бы? не поняла) коридоры не только съедают площадь, но и делают неудобным передвижение.по второму варианту у меня нет вариантов (простите за тавтологию), а по первому - ломать стенки большой комнаты (отделяющие от коридора и, возможно, от кухни), расширять подсобку, делать из большой комнаты вход в верхнюю комнату

Да, нужно три изолированные комнаты: спальня, кабинет и гостиная (кухня отдельно).

тем напугал бы,что при такой площади ломать стены-только портить.Вот так люди берут "й-й-ех...." А дальше смелости (и понимания) хватает только на то,чтобы расставить вдоль стен мебелЯ разнокалиберные . Коридор шириной два метра(да ещё и такой длинный) -это больше чем коридор.Это самостоятельное помещение,дающее возможность превратить его в интересное,функциональное,уютное пространство и сохранить при этом максимум "приватности" в отношении других помещений.

(изменено)

Вопрос я задала именно из-за большого коридора (в первом случае). Это же не набегаешься с одного конца в другой. К тому же почти 36 кв метров коридор - это слишком... Хочется эти планировки как-то исправить, улучшить. Я согласна, что гардеробную в конце коридора надо убирать. Коридор станет короче. Во втором случае при большой площади получается несоразмерно маленькая кухня...

Изменено пользователем favirit

дело вкуса и личных предпочтений :) большой коридор - тоже коридор

точно.Главное чтобы человек ,пришедший за советом, правильно сориентировался в форумских мнениях о вкусах и предпочтениях .

Вот у меня и возникли вопросы по поводу очень большого коридора (и а том, и в другом случае). Хочется его как-то обыграть...

Во втором варианте коридор абсолютно бестолковый,а вот в первом есть с чем поработать.

Kvaky, мне Ваше предложение понравилось. Может быть, что-то еще посоветуете?

значит вам нужны не три изолированные комнаты, а просто три комнаты, отдельные от кухни. изолированные - когда вход во все только из коридора. я не вижу ничего плохого в том чтобы гостиная была проходной.вот при беглом взгляде второй вариант мне нравится больше - при той же площади он компактнее, меньше хождений. но так сразу и не поймешь, что с ним можно сделать. во втором варианте какая комната у вас была бы гостиной?

Я полагаю, что во втором варианте №63 - гостиная, №62 - спальня, № 64 - кабинет. Я подумываю, может быть, расширить кухню за счет кабинета?

я тоже об этом подумала. а какого размера нужен кабинет - для работы или там будет например размещена библиотека собранная 5-ю поколениями?тут с областью спальни с одной стороны очевидно - убрать коридорчик, расширить с/у и подсобку за счет него, а с другой стороны тогда придется из спальни в туалет ходить через гостиную. в первом варианте спальная зона как-бы в глубине, подальше от общественности - это хорошовы обязательно попросите Алефа озвучить идеи насчет первой планировки - он общепризнаный гений в этом смысле, всегда предлагает что-то неожиданное и очень интересное, может вам так понравится, что больше ни о чем и думать не будете

(изменено)

Коридор со стороны спальни убирать, вероятно, не буду. Причину Вы одну озвучили. К тому же площадь теперешнего санузла (без расширения площади вполне достаточная). Кабинет не требуется очень большой: стол, кресло, диван, шкафы для книг. Предполагается, что это будет по совместительству гостевая.Alef, озвучьте, пожалуйста Ваши предложения по первой квартире. "превратить в интересное,функциональное,уютное пространство и сохранить при этом максимум "приватности" в отношении других помещений". спасибо.

Изменено пользователем favirit

нужно три изолированные комнаты: спальня, кабинет и гостиная

Предполагается, что это будет по совместительству гостевая.

внесите ясность. будет отдельно гостиная, и отдельно еще гостевая в кабинете?

Нет, комнат будет три: гостиная, спальня, кабинет. Когда будут приезжать гости, они будут располагаться в кабинете. Поэтому нужен диван и небольшой шкаф для одежды.

общепризнаный гений в этом смысле

эта роль ругательная,и я прошу её ко мне не применять :) В первом варианте конечно проектировщики наплевательски отнеслись к санузлу. Можно попробовать вот так решить post-11625-1360220405_thumb.jpg попутно переориентировать подсобное помещение в гардеробную при спальне.Во втором варианте санузел конечно большой,но это скорее случайно так получилось. Второй "туалетик" возле входа не менее случайный .Ну да ладно.Предпринял робкую попытку хоть как-то облагородить этот дикий коридор ,разместив слева от входа "прихожую",захватывающую собой всю левую стену ,"спрятав" в ней сдвижную дверь в подсобное помещение.Задача такого решения хоть как-то придать уют этому помещению,состоящему сплошь из дверных проёмов. Если кухню и расширять ,то наверное так.post-11625-1360221027_thumb.jpg Теперь "+" и "-" каждого варианта.Начну со второго(который лично мне нравится намного меньше первого). Итак ,"+" - некая "компактность" .Всё рядом,нет длинных переходов.Ещё "+" ...ну,наверное балконы. По первому варианту ."+" ,он же "-" по мнению автора топика- длинный коридор. Конечно,в этом есть логика. Но если смотреть на это только с такой позиции "это ж сколько ходить!..." -то владельцы двухуровневых пентхаусов и домов в 400 квадратных метров самые что ни на есть бедолаги,сколько же им ходить приходится :) . А если посмотреть на этот коридор,как на самостоятельное помещение,которое может стать ....библиотекой (наверное смешно такое писать в "век гаджетов",но ведь книги на бумаге продолжают выпускать,и это радует . )А может домашним "фотоальбомом".А может и тем,и другим,и ещё будет куда поставить лыжи и велосипед :) .В общем,на что хватит фантазии,вкуса и денег ...post-11625-1360222514_thumb.jpg post-11625-1360222524_thumb.jpgpost-11625-1360222533_thumb.jpgpost-11625-1360222545_thumb.jpgpost-11625-1360222555_thumb.jpgpost-11625-1360222567_thumb.jpgpost-11625-1360222577_thumb.jpgЕщё важными критериями при выборе могут послужить расположение относительно сторон света,этаж,близость автодорог и даже вид из окон . В общем-то мои суждения очень субъективны конечно :) Мне просто первый вариант нравится ,а второй не нравится совсем :)
(изменено)

Alef, Большое спасибо за Ваше мнение. По поводе санузла ваше решение интересное. Я тоже "крутила" его. Но у меня получилось, что туалет остается, а ванная расширяется за счет коридора (тогда ширина ванной будет 2500 и рядом с ванной поместится душевая кабина. Ну где-то так.post-83976-1360237044_thumb.jpgПо второй квартире тоже были аналогичные мысли (расширила кухню за счет кабинета)post-83976-1360237686_thumb.jpgПравда, потом от перепланировки коридора отказалась по причине того, что санузел и так большой, а отдельный вход теряется.В "треугольной квартире не нравится кухня и треугольные комнаты. Самое плохое, что это практически не улучшается.По поводу "длинной" квартиры - да, я с вами согласна, коридор очень даже можно использовать, но уж очень много площади он занимает.Прочие условия (расположение квартир) практически одинаковы, так что мы выбираем в основном планировку.Еще раз благодарю за отклик.Забыла написать. В Вашем случае при планировке санузлов скуорее всего, возникнут трудности с расположением унитаза. (там одна точка "слива" - посмотрите чертеж (или я что-то не поняла?) а устанавливать системы "транспортировки" отходов в канализацию не хочется. Поэтому я расположила унитаз рядом со сливом (и биде рядом).

Изменено пользователем favirit

я просто не с таким размахом ,как Вы,сузил коридор :) . Можно наверное и так. А если тщательнее подобрать сантехнику (ванну в частности),то и душевая получится нормальная. В Вашем варианте она маловата. Что касается переноса второго унитаза ,то расстояние до стояка там 2 метра (+- несколько см)что при соблюдении уклона и диаметра трубы вполне реально и без доп.устройств.Можете поинтересоваться у профессионалов сантехников в соответствующем разделе нашего форума. Кстати,если всё же увеличиваете санузел до таких размеров,как во втором варианте,как быть с обеспечением комфортной температуры в таком немаленьком помещении?

(изменено)

Санузел получится не такой уж и большой, около 7-7,5 кв м (все зависит от того, насколько "отхватить" от соседнего вспомогательного помещения.Очень хочется просторный санузел. А по поводу комфортной температуры в нем (квартира в середине дома) - теплые полы, горячий полотенцесушитель. Думаю, этого будет вполне достаточно.Кстати, по поводу сужения мной коридора - не вполне хорошо получится. Такой аппендикс. В смысле санузлов и гардеробной безусловно интереснее "треугольная" квартира.

Изменено пользователем favirit

Для публикации сообщений создайте учётную запись или авторизуйтесь

Вы должны быть зарегистрированным пользователем, чтобы оставить комментарий

Создать учетную запись

Зарегистрируйтесь в нашем сообществе.

Зарегистрироваться

Войти

Уже есть аккаунт? Войти в систему.

Войти

Или войти с помощью одного из сервисов



  • Наши рекомендации

    • Подходы к ремонту старых домов в России
      В России сотни тысяч старых домов, многие из которых являются не только свидетельством исторического наследия, но и отражением уникальной культуры и традиций страны. Эти дома, будь то деревянные избы или старинные каменные постройки, сохраняют в себе дух времени и рассказывают историю поколений.

      • 0 ответов
    • Люк для кошек своими руками
      Разумеется давно придуманы и продаются специальные лючки для кошек, которые можно врезать в дверь, но мы ведь не ищем легких путей . Да и по зоомагазинам я не хожу, а "гугление" показало, что такие люки для кошек стоят относительно не дешево. В то же время под рукой были два "копеечных" сантехнических пластиковых лючка для ГКЛ. Все что оставалось, так это обломать фиксаторы крышек, что бы они открывались в обе стороны, ровно выпилить отверстие в двери, да вклеить симметрично эти лючки.

      То, что получилось видно на фото. Разумеется это не для тех, у кого "дизайнерский ремонт", но для обыкновенной квартиры вполне подходит. Недостатков не замечено, животных и людей всё устраивает .


      Реакцию форумчан на этот люк можно узнать в этой теме https://homemasters.ru/...me/?p=330637

        • Ого
      • 6 ответов
    • Как построить теплый дом, не тратя лишних денег
      Строительство гостевого дома решил выделить в отдельную тему, так будет меньше путаницы.


        • Спасибо
        • Нравится
      • 239 ответов
    • Газовые котлы: эффективное, экономичное и экологичное решение для отопления вашего дома
      В современном мире, где комфорт и устойчивость стали ключевыми аспектами повседневной жизни, выбор правильного источника отопления дома становится особенно актуальным. Газовые котлы, сочетая в себе преимущества эффективности, экономичности и экологичности, представляют собой одно из наиболее популярных решений для обеспечения комфортной температуры в жилых и коммерческих помещениях.

      • 0 ответов
    • Кажись всё или строительный пылесос с тройной мультициклонной ступенью очистки
      Кажись всё или строительный пылесос с тройной мультициклонной ступенью очистки

        • Нравится
      • 16 ответов
    • Аккумуляторные пилы  SCW и  SCM  22-A
      После того как провёл тесты, приступил к самому главному. Поменять диски местами, и проверить, как инструмент на это отреагирует, ведь они внешнее и походу внутренне практически одинаковые, пила по дереву конечно более навороченее, есть настройки угла наклона и можно на шину посадить через адаптер.

      • 4 ответа
    • Дома из сруба: идеальное сочетание уюта и прочности.
      Строительство собственного дома является важной вехой в жизни любого человека, поскольку оно знаменует собой важное событие. Выбор строительных материалов имеет огромное значение для создания теплого и функционального жилища. На протяжении всей древней истории древесина была распространенным материалом для строительства домов, что отразилось на различных культурах мира.

      • 0 ответов
    • Вторая жизнь дивана: искусство ремонта мягкой мебели своими руками
      В эпоху беспрерывного потребления и стремления к новизне, ремонт старой мягкой мебели своими руками приобретает не просто практическое, но и глубоко философское значение. Это действие как знак уважения к труду мастеров, которые вложили свое мастерство в создание диванов, кресел и пуфов, и как воплощение идеи устойчивого потребления. С каждым возвращенным к жизни предметом мебели, мы не только сохраняем историю и уникальность каждого изделия, но и противостоим бездумному обновлению интерьера за счет экологии и рационального использования ресурсов.

        • Нравится
      • 0 ответов
×
×
  • Создать...

Важная информация

Мы разместили cookie-файлы на ваше устройство, чтобы помочь сделать этот сайт лучше. Вы можете изменить свои настройки cookie-файлов, или продолжить без изменения настроек.