Перейти к содержанию
Форумы о ремонте и строительстве

Нужен совет по планировке квартиры 25 этаж\48 м2

Оценить эту тему:


Рекомендуемые сообщения

Опубликовано

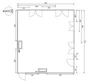
Долго не заглядывал, но покупка квартиры дала повод потренироваться с планировками помещений. Квартира :) в новостройке, свободная планировка, пять окон по периметру и две вентшахты, возле каждой есть стояк с ХВ и ГВС,  вид очень хороший с 25 этажа, но поигравшись неделю в "свит хоум 3 д" пришел в тупик. Хочется в угловой стороне квартиры с видом на юго-восток сделать гостиную, при этом сохранить спальню и детскую комнаты. Буду благодарен за новаторские предложения по планировке, а то ведь уже ручёнки чешутся начинать ремонт :), надо с перегородок затевать.

post-4213-0-37613300-1410111740_thumb.png

post-4213-0-43586900-1410111749_thumb.jpg

надо с перегородок затевать.

во все и нет,  пока есть свободный периметр   можно его оштукатурить  в геометрию под 90гр  и оконные откосы также

потом перегородки легче будет ставить 

Подписываемся на тему День за днём, моя работа https://homemasters.ru/...esta-raboty/ и на мой инстарам https://www.instagram.c...gda35remont/

Принимаю заказы на мебель из слэбов

 

Гостиная расположенная в ЮВ углу съест у вас пространство на проход к ней, что уменьшит и без того небольшую площадь дуругих комнат. У вас получится хрущевка на 25-ом этаже.

На отдельную гостиную у вас просто нет места, только на объединенную с кухней, а коммуникации вам особо не дадут разгуляться, к тому же более менее просторной она становится как раз за счет объединения холла, гостиной и кухни. Так что +/- планировка будет примерно как у вас. 

Но в этой планировке есть ещё, что покрутить до того как приступите к перегородкам. 

Спасибо, а может совершенно креативные идеи есть у форума?

...пришел в тупик

из тупика сложно будет выйти ,потому что вечная история получается - "Есть двуха,хотим трёху.Есть трёха, хотим пятикомнатную ... " По закону жанра, попытки перехитрить себя обязательно увенчаются успехом :) . В общем,если уж "мудрить",то я бы наверное как-то так это делал.

post-11625-0-65787700-1410783161_thumb.jpg

...и да,будет уютно,но о-о-о-чень всё скромно по габаритам. Однако открытое пространство "прихожая-санузел-кухня-гостиная"  совсем не вариант...

то я бы наверное как-то так это делал.

а как это сверху выглядит ?

Подписываемся на тему День за днём, моя работа https://homemasters.ru/...esta-raboty/ и на мой инстарам https://www.instagram.c...gda35remont/

Принимаю заказы на мебель из слэбов

 

а как это сверху выглядит ?

@Sano, я намеренно не стал выкладывать вид сверху :) Просто интересно кому как видится.Вот ты возьми и набросай вид сверху.По-моему, картинки с ракурсов дают вполне ясную картину что там и как :) Ну Сань,поддержи тему,а? А то часто впечатление что никому это не интересно :noddle:.   

Ну Сань,поддержи тему,а? А то часто впечатление что никому это не интересно

да я бы рад,  просто я технически как сделать вижу,  а вот создать красоту тут мне уже сложно,  в прогах не умею, рисую в голове прямо

столик перед тв только лишний   и так мало место


я потому и спросил вид сверху  так как мне кажется  слишком много места м2 в коридоры ушло

Подписываемся на тему День за днём, моя работа https://homemasters.ru/...esta-raboty/ и на мой инстарам https://www.instagram.c...gda35remont/

Принимаю заказы на мебель из слэбов

 

Сань, нарисуй хотя бы на бумажке и сфоткай на телефон) как-то совсем непонятно где там еще две комнаты уместились и санузел и как кухня протиснулась к стояку

слишком много места м2 в коридоры ушло

да всё практически как на первом эскизе от@FSN, просто двери в комнаты уголком и шкаф-стенка(тоже присутствующая на первом эскизе в виде невнятного угла в кухне) ,чтобы хоть немного отделить санузел и прихожую. Между шкафом-стенкой и санузлом проход метровой ширины.

на первом втором  рисунке так аляпавато дана картина что глаз сломишь

не думаю что так трудно дать обычный чертёж   :)


и вообще сам заказчик собирается  хоть что то обсуждать или ждёт манну небесную  :)

Подписываемся на тему День за днём, моя работа https://homemasters.ru/...esta-raboty/ и на мой инстарам https://www.instagram.c...gda35remont/

Принимаю заказы на мебель из слэбов

 

В который раз оговорюсь - такой метраж это хорошая двушка,стремление выжать максимум понятно,но чудес не бывает.Я просто попытался облагородить "всё это"...

post-11625-0-24329600-1410809862_thumb.jpg

теперь видно,  действительно выжал всё что можно,  даже обеденной группы лишил,  но надо жертвовать чем то 

:)

хороший вариант

Подписываемся на тему День за днём, моя работа https://homemasters.ru/...esta-raboty/ и на мой инстарам https://www.instagram.c...gda35remont/

Принимаю заказы на мебель из слэбов

 

даже обеденной группы лишил

ну так "щедро" ,как на верхнем эскизе,"обеденная группа" это фантастика,а вот столик-трансформер у меня предусмотрен (даже на картинке есть :) ,и это не то,что у дивана)

Если поменять местами кухню и санузел, то всё может получиться, только без естественного освещения на кухне и угрозы не кухонных запахов на ней  :)

Немного погуляв по квартирам соседей в доме у кого уже сделаны ремонты, у меня родилась новая концепция. В маленькой квартире нужно ощущение перспективы...

Детская комната нужна не более как для уроков и сна, вариант с двушкой правилен, но когда приедут гости их комфортнее уложить спать в обособленном помещении :).  Alef,  ну а если и двушка, то какие предложения, ведь тогда в зале нужно все таки зонировать детский уголок для игрушек, уроков, кровати?

post-1-0-93137900-1411368955_thumb.jpg

вот это поворот.. здорово. визуально только горшку узковато. сколько там ширина между ванной и стеной? по нормам надо около 80 см

Горшку место выделю, просто ванная по плану угловая 150*100 но в образцах дизайн программы нет угловой ванной.

Кроме обозначенной перед форумом задачи по участию в дизайне и критике моих концепций, перед мастерами ставится вопрос о прикладном применении своих навыков. Приглашаю на ремонт своей квартиры спецов с форума, абсолютно серьёзно, срок выполнения работ два месяца, план помещения в начале темы, объемы: полы в спальне - ламинат, детской- ковролин, остальное - плитка, перегородки- ПГП под штукатурку (в ванной стеклоблоки), стены под обои (ванная есть плитка :) ) , потолки - комбинированные  ГКЛ с встроенной подсветкой led и натяжные, электро-разводка по всем помещениям, сантехника. На период ремонта возможно проживание и для командированных в столицу резидентов Хоуммастерс :).

Для публикации сообщений создайте учётную запись или авторизуйтесь

Вы должны быть зарегистрированным пользователем, чтобы оставить комментарий

Создать учетную запись

Зарегистрируйтесь в нашем сообществе.

Зарегистрироваться

Войти

Уже есть аккаунт? Войти в систему.

Войти

Или войти с помощью одного из сервисов



  • Наши рекомендации

    • Подходы к ремонту старых домов в России
      В России сотни тысяч старых домов, многие из которых являются не только свидетельством исторического наследия, но и отражением уникальной культуры и традиций страны. Эти дома, будь то деревянные избы или старинные каменные постройки, сохраняют в себе дух времени и рассказывают историю поколений.

      • 0 ответов
    • Как построить теплый дом, не тратя лишних денег
      Строительство гостевого дома решил выделить в отдельную тему, так будет меньше путаницы.


        • Спасибо
        • Нравится
      • 256 ответов
    • Газовые котлы: эффективное, экономичное и экологичное решение для отопления вашего дома
      В современном мире, где комфорт и устойчивость стали ключевыми аспектами повседневной жизни, выбор правильного источника отопления дома становится особенно актуальным. Газовые котлы, сочетая в себе преимущества эффективности, экономичности и экологичности, представляют собой одно из наиболее популярных решений для обеспечения комфортной температуры в жилых и коммерческих помещениях.

      • 0 ответов
    • Аккумуляторные пилы  SCW и  SCM  22-A
      После того как провёл тесты, приступил к самому главному. Поменять диски местами, и проверить, как инструмент на это отреагирует, ведь они внешнее и походу внутренне практически одинаковые, пила по дереву конечно более навороченее, есть настройки угла наклона и можно на шину посадить через адаптер.

      • 4 ответа
    • Дома из сруба: идеальное сочетание уюта и прочности.
      Строительство собственного дома является важной вехой в жизни любого человека, поскольку оно знаменует собой важное событие. Выбор строительных материалов имеет огромное значение для создания теплого и функционального жилища. На протяжении всей древней истории древесина была распространенным материалом для строительства домов, что отразилось на различных культурах мира.

      • 0 ответов
    • Люк для кошек своими руками
      Разумеется давно придуманы и продаются специальные лючки для кошек, которые можно врезать в дверь, но мы ведь не ищем легких путей . Да и по зоомагазинам я не хожу, а "гугление" показало, что такие люки для кошек стоят относительно не дешево. В то же время под рукой были два "копеечных" сантехнических пластиковых лючка для ГКЛ. Все что оставалось, так это обломать фиксаторы крышек, что бы они открывались в обе стороны, ровно выпилить отверстие в двери, да вклеить симметрично эти лючки.

      То, что получилось видно на фото. Разумеется это не для тех, у кого "дизайнерский ремонт", но для обыкновенной квартиры вполне подходит. Недостатков не замечено, животных и людей всё устраивает .


      Реакцию форумчан на этот люк можно узнать в этой теме https://homemasters.ru/...me/?p=330637

        • Ого
      • 6 ответов
    • Кажись всё или строительный пылесос с тройной мультициклонной ступенью очистки
      Кажись всё или строительный пылесос с тройной мультициклонной ступенью очистки

        • Нравится
      • 16 ответов
    • Вторая жизнь дивана: искусство ремонта мягкой мебели своими руками
      В эпоху беспрерывного потребления и стремления к новизне, ремонт старой мягкой мебели своими руками приобретает не просто практическое, но и глубоко философское значение. Это действие как знак уважения к труду мастеров, которые вложили свое мастерство в создание диванов, кресел и пуфов, и как воплощение идеи устойчивого потребления. С каждым возвращенным к жизни предметом мебели, мы не только сохраняем историю и уникальность каждого изделия, но и противостоим бездумному обновлению интерьера за счет экологии и рационального использования ресурсов.

        • Нравится
      • 0 ответов
×
×
  • Создать...

Важная информация

Мы разместили cookie-файлы на ваше устройство, чтобы помочь сделать этот сайт лучше. Вы можете изменить свои настройки cookie-файлов, или продолжить без изменения настроек.