Перейти к содержанию
Форумы о ремонте и строительстве

Оценить эту тему:


Перейти к решению Решено kylan,

Рекомендуемые сообщения

Опубликовано

Добрый день всем)
Назрел очередной вопрос, по поводу которого хотелось бы услышать рекомендации со стороны...
В общем, в нестандартной пятиугольной спальне есть закуток в углу, который хотелось бы закрыть зеркальными дверями-купе и организовать место хранения. Также в этой комнате будет обычный встроенный шкаф (100 * 50 * 270 см):

post-104463-0-40978600-1459862149_thumb.jpg

В итоге дозрела до такого варианта:

post-104463-0-93552000-1459862221_thumb.jpg post-104463-0-37653700-1459862238_thumb.jpg post-104463-0-84944800-1459862327_thumb.jpg

Двери открыты / закрыты:

post-104463-0-00107900-1459862294_thumb.jpgpost-104463-0-57369500-1459862294_thumb.jpg

Антресольная полка:

post-104463-0-37485900-1459862369_thumb.jpg

1) Какие могут быть косяки и проблемы? Кроме ювелирной точности замера, расчетов и нарезки дсп...

2) Можно ли делать такую здоровенную и "кривую" антресольную полку? Достаточно ли будет ее крепить на кронштейнах? или еще какие-то ребра жесткости будут нужны?
3) Может быть как-то иначе организовать пространство, м? Мозг немного закипает))
Допустим, сделать одну обычную дверь, а не две купейные – проем достроить газоблоками и по другому все перевесить? Сейчас у нас сделан только левый простенок, шириной 370 мм (там, где будут совсем маленькие полочки)

4) ?..

Еще пара попутных вопросов – в маленьких полках (и косых, и прямых) необходимо кромить все торцы или можно обойтись только видимыми?

Как оптимизировать антресольную полку?

необходимо кромить все торцы или можно обойтись только видимыми?

можно обойтись видимыми.

Вот только кто нарезать это все будет, чтоб точно в размер

Не забываем установить аватар, заполнить профиль, и создать свой блог

https://homemasters.ru/

можно обойтись видимыми.

Вот только кто нарезать это все будет, чтоб точно в размер

Контора по распилу ДСП? или это размечталась?)  Сама еще не пробовала, но некоторые утверждают, что все реально... Главное правильно размеры снять, а вот с этим точно могут быть проблемы...

А в остальном как конструкция?

С нарезкой лично я не вижу проблем. Ни чего сложного, чуть больше возни, чем с прямоугольными щитами.

Вопрос к автору- какая система дверей купе планируется? Какой потолок в помещении? К нему можно крепить верхний трек, к примеру? Высота помещения 2700мм?

Можно ли делать такую здоровенную и "кривую" антресольную полку?
Сделать то можно, но вот впихнуть ее потом возможно не сможете. Ошибка в замере на пару миллиметров, неточность раскроя. Гемморой с монтажем. Я бы изменил конструкцию. Чтоб в случае нестыковки можно было бы легко переделать или подрезать небольшую деталь, нежели всю кривую.
Может быть как-то иначе организовать пространство
Будет время, попробую прикинуть вариант. Прям сейчас- нет. Ближе к выходным.

В математике я не сильна, но у меня у родителей один в один в углу купе, даже полки так же все расположены, очень удобно и места много.

Спасибо за конкретные вопросы!

Вопрос к автору- какая система дверей купе планируется? Какой потолок в помещении? К нему можно крепить верхний трек, к примеру? Высота помещения 2700мм?

Сделать то можно, но вот впихнуть ее потом возможно не сможете. Ошибка в замере на пару миллиметров, неточность раскроя. Гемморой с монтажем. Я бы изменил конструкцию. Чтоб в случае нестыковки можно было бы легко переделать или подрезать небольшую деталь, нежели всю кривую.

Двери самые обычные из леруа  Высота пока что в чистом виде без пола 2730. В комнате будет натяжной потолок, этот угол они будут обходить.

Сама конструкция пока что выглядит так, в привязке к так сказать к проекту :)

post-104463-0-83182600-1459922920_thumb.jpg

Т.е. слева простенок 370 мм сделан из газоблоков. Планировали сверху опустить гипсокартоновую перемычку до необходимой высоты под двери. Вроде народ на такие навешивает двери-купе...

С антресолью вы абсолютно правы! Эт я размахнулась с такой конструкцией)) Упростила (см. выше)

Также есть вопрос, что делать с правой частью нишу, где дверь будет под углом прикасаться к стене. Советуют либо брус распилить под углом (но это тоже идеально надо рассчитать), либо просто добор поставить, вроде так наши таджики уже делали где-то 

Очень интересно было бы взглянуть на ваш вариант! пока мы окончательно дров не наломали))

Двери самые обычные из леруа

Я спрашивал про систему купе, а не про двери. Да бог с ними. Полагаю, раз двери обычные, значит место под них займет 100мм. Соответственно, вы должны понимать, что ваши угловые полки станут меньше, чем вы планируете и рисуете на своих эскизах.  К тому же что там складывать на них? На стольких то углах? Может просто оставить место под пылесос и гладильную доску? Тогда полка сверху как раз под утюг и принадлежности к нему. Все меньше станет бестолкового места.

Очень интересно было бы взглянуть на ваш вариант!

Мой вариант пока даже бумагу не нюхал. К выходным ближе. Уж раньше никак.

К тому же что там складывать на них? На стольких то углах? Может просто оставить место под пылесос и гладильную доску? Тогда полка сверху как раз под утюг и принадлежности к нему. Все меньше станет бестолкового места.

Я рассчитывала на эти косые полки складывать какие-нибудь вещи, не требующие идеального сворачивания – шапки, шарфы, носки и прочую мелочевку) А в сам этот закуток вешать демисезонные вещи и то, что носится сейчас. Для чистого и белья будет обычный платной шкаф.

Для пылесоса и прочей хоз.утвари мы сделали маленький встроенный чуланчик в коридоре

Добрый день всем)

Назрел очередной вопрос, по поводу которого хотелось бы услышать рекомендации со стороны...

В общем, в нестандартной пятиугольной спальне есть закуток в углу, который хотелось бы закрыть зеркальными дверями-купе и организовать место хранения. Также в этой комнате будет обычный встроенный шкаф (100 * 50 * 270 см):

attachicon.gifПЛАН-спальня-нишы.jpg

В итоге дозрела до такого варианта:

attachicon.gifНИША.jpg attachicon.gifНИША-sm-polki.jpg attachicon.gifНИША-inside-2.jpg

Двери открыты / закрыты:

attachicon.gifНИША-door-left.jpgattachicon.gifНИША-door-right.jpg

Антресольная полка:

attachicon.gifантресоль-2.jpg

1) Какие могут быть косяки и проблемы? Кроме ювелирной точности замера, расчетов и нарезки дсп...

2) Можно ли делать такую здоровенную и "кривую" антресольную полку? Достаточно ли будет ее крепить на кронштейнах? или еще какие-то ребра жесткости будут нужны?

3) Может быть как-то иначе организовать пространство, м? Мозг немного закипает))

Допустим, сделать одну обычную дверь, а не две купейные – проем достроить газоблоками и по другому все перевесить? Сейчас у нас сделан только левый простенок, шириной 370 мм (там, где будут совсем маленькие полочки)

4) ?..

Ваш вариант по расположению хорош. А вот теперь по организационным моментам опытом поделюсь.

Честно Вам скажу, когда ставила свой шкаф-купе, обратилась к опытным товарищам. Мне там и полки рассчитали и двери (двери вышли очень нестандартные). Решила сэкономить, и наполнение купила в ИКЕЕ, а двери заказала у них. В результате двери чуть не влезли в замеры, потому что шкаф оказался глубже.

Вывод: доверьтесь профессионалам и проконсультируйтесь с ними. Вам очень классные варианты предложат, о которых вы и не думали по началу. (кстати, с наполнением из ИКЕИ дешевле не вышло. выгоду доставка съела).

Вот фото того, что вышло у меня. Может идеи возникнут) Немного не Ваш вариант конечно, но можно про двери подумать.

post-104667-0-26747800-1460025428_thumb.jpg

post-104667-0-34708300-1460025440_thumb.jpg

Вывод: доверьтесь профессионалам и проконсультируйтесь с ними. Вам очень классные варианты предложат, о которых вы и не думали по началу. (кстати, с наполнением из ИКЕИ дешевле не вышло. выгоду доставка съела).

Спасибо за поддержку! но профессионалы пока только пинают мой бедный уголок)) не практично, тесно и тд... Хотя мы вроде люди компактные и исходя из размеров в проекте, вполне можно будет использовать этот угол. Но когда пришла в квартиру и еще раз воочию на него посмотрела – кажется, что туда вообще ничего не влезет))

Моменты стыковки дверей, самого проема и начинки пока что для меня крайне расплывчаты... Чтобы не наступить на Ваши грабли, по-идее, мы сначала должны до конца доделать проем (с учетом конкретных размеров дверей, а мы с ними пока тоже никак не можем определится). Затем еще раз промерить внутреннее пространство (и вычесть на всякий случай пару сантиметров). Заказать распил, смонтировать все и только после этого навешивать двери. Иначе я не представляю, как с уже установленными дверьми, возиться с монтажом внутренностей нашей гардеробной  :noddle:

Блин, как в итоге не пролететь, если профессионалы носы морщат?))

  • Решение

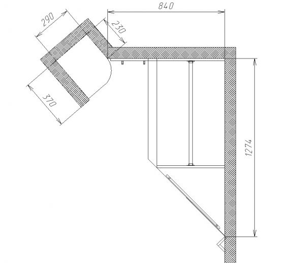
post-87242-0-37129300-1460036379_thumb.jpg post-87242-0-67744700-1460036390_thumb.jpg post-87242-0-01519900-1460036397_thumb.jpg post-87242-0-13519000-1460036404_thumb.jpg 

В плане конструктива сильно не разгонишся. Почти как у вас. Но нюансы:

1. Умещаемся на один лист 2750*1830мм ЛДСП площадью 5,0325 м2.

2. Максимум прямоугольных деталей. Даже те треугольники это распилиные по диагонали квадраты.

3. Геометрия угла теперь практически не страшна. Так как большие детали привязаны не более чем к двум стенам и одному углу и очень легко вымеряются. Мелкие полки в закуток легко изготовить по шаблону, вырезанному ножницами из картонки.

4. Просто опишу другие нюансы- Дополнительные крючки, для халата к примеру (место то все равно есть). Тем более там планка как раз и выполняет три функции- дердит полку, держит штангу, и собственно сами крючки. На угловых полках я вам прилепил ручку рейлинг с межцентровым расстоянием 480мм (у меня ей цена 135руб. не дорого). Её функция- бортик (перила). Чтоб вещи не скользили по ЛДСП, и как ограничитель.

5. Примыкание двери- видно из рисунка. Две планки, скрученные под прямым углом. Торцы самих планок запилины под 45 гр. Крепить к стене просто. Сперва крепим брус (прямоугольный, распилиный по диагонали на две треугольные половинки). А ух потом ваш добор к нему на пену и жидкие гвозди или саморезы или ... .

В общем как то так.

Да, еще момент, там у вас где то углы кривые. у меня по вашим размерам не сложилась линия дверей с линией пристенка (тот который 370мм). Полагаю, что угол между 840 и 1274 развернутый.

1. Умещаемся на один лист 2750*1830мм ЛДСП площадью 5,0325 м2.

Вот это профессиональный подход!  B)  Огромное Вам спасибо!!! Теперь точно все встало на свои места и наш угол таки принесет пользу) И критиканы будут посрамлены, хехе)) Идея полочек с закругленным краем просто гениальна – мы выигрываем больше 10 см дополнительного пространства, теперь там точно можно разместить постельное белье. И рейлинги – тоже хитрый лайфхак)) я прям в восторге)

1) Правильно ли я понимаю, что при такой конструкции отдел под штангу будет порядка 70 см? А длина сторон у косых полок – около 48 см?

Да, еще момент, там у вас где то углы кривые. у меня по вашим размерам не сложилась линия дверей с линией пристенка (тот который 370мм). Полагаю, что угол между 840 и 1274 развернутый.

2) Да, скорее всего где-то моя ошибка... В любом случае мы будем проводить прямую линию дверей от этого пристенка. Если Вас не затруднит, после возведения проема и снятия уже реальных размеров, не могли бы Вы еще раз проверить конструкцию?

3) И еще вопрос – правильна ли последовательность действий:

  1. Делаем проем из гипсокартона под конкретные двери + примыкание дверей 
  2. Снимаем окончательные размеры, сверяемся с Вашим планом и отдаем в производство на распил
  3. Устанавливаем все это добро
  4. Ставим двери и наслаждаемся))
1) Правильно ли я понимаю, что при такой конструкции отдел под штангу будет порядка 70 см
У меня там 766 мм.
А длина сторон у косых полок – около 48 см?
У меня 485мм.
не могли бы Вы еще раз проверить конструкцию?
Мне не трудно. Только вы не забудьте перепроверится за мной. Ведь вам по месту всегда можно размерчик пробросить.
правильна ли последовательность действий
1. Да. Только не забываете, если у вас купе- учитываем перехлест, если распашные - то зазоры.

2. Размеры да, снимаем по новой. Сверятся с моим планом не нужно, он очевидно не подойдет по многим моментам, чтоб отдать в работу. Здесь просто выложите ваши новые замеры, а я вам подготовлю адекватную деталировку, которую вы проверяете у себя на месте. И если все нормально, то уже отдаете на раскрой.

3 и 4 - Да. 

Теперь все стало окончательно ясно и груз спал с моих плечей) Все выполнимо, ура! :thankyou:

Еще раз огромное Вам спасибо за реальную помощь и рекомендации! Надеюсь в итоге похвастаться результатами)

  • 9 месяцев спустя...

@kylan, ну вот, не прошло и года, как мы собрали этот многострадальный угол)) Благодаря и Вашей помощи, за что огромное спасибо!

Получилось, может быть, несколько кустарно, но это от того, что все профессиональные мебельщики либо бежали в ужасе от наших кривых стен (как оказалось, нет ни одного прямого угла), либо выставляли космический ценник. В итоге один добрый дяденька согласился помочь и на коленке подгонял каждую полочку под размер )

post-104463-0-42455400-1486144954_thumb.jpgpost-104463-0-61937800-1486144967_thumb.jpg

По мне, так удобный угол получился – можно спокойно войти и выбрать, что надо. И даже стремянку поставить 

Для публикации сообщений создайте учётную запись или авторизуйтесь

Вы должны быть зарегистрированным пользователем, чтобы оставить комментарий

Создать учетную запись

Зарегистрируйтесь в нашем сообществе.

Зарегистрироваться

Войти

Уже есть аккаунт? Войти в систему.

Войти

Или войти с помощью одного из сервисов



  • Наши рекомендации

    • Подходы к ремонту старых домов в России
      В России сотни тысяч старых домов, многие из которых являются не только свидетельством исторического наследия, но и отражением уникальной культуры и традиций страны. Эти дома, будь то деревянные избы или старинные каменные постройки, сохраняют в себе дух времени и рассказывают историю поколений.

      • 0 ответов
    • Кажись всё или строительный пылесос с тройной мультициклонной ступенью очистки
      Кажись всё или строительный пылесос с тройной мультициклонной ступенью очистки

        • Нравится
      • 16 ответов
    • Аккумуляторные пилы  SCW и  SCM  22-A
      После того как провёл тесты, приступил к самому главному. Поменять диски местами, и проверить, как инструмент на это отреагирует, ведь они внешнее и походу внутренне практически одинаковые, пила по дереву конечно более навороченее, есть настройки угла наклона и можно на шину посадить через адаптер.

      • 4 ответа
    • Как построить теплый дом, не тратя лишних денег
      Строительство гостевого дома решил выделить в отдельную тему, так будет меньше путаницы.


        • Спасибо
        • Нравится
      • 259 ответов
    • Люк для кошек своими руками
      Разумеется давно придуманы и продаются специальные лючки для кошек, которые можно врезать в дверь, но мы ведь не ищем легких путей . Да и по зоомагазинам я не хожу, а "гугление" показало, что такие люки для кошек стоят относительно не дешево. В то же время под рукой были два "копеечных" сантехнических пластиковых лючка для ГКЛ. Все что оставалось, так это обломать фиксаторы крышек, что бы они открывались в обе стороны, ровно выпилить отверстие в двери, да вклеить симметрично эти лючки.

      То, что получилось видно на фото. Разумеется это не для тех, у кого "дизайнерский ремонт", но для обыкновенной квартиры вполне подходит. Недостатков не замечено, животных и людей всё устраивает .


      Реакцию форумчан на этот люк можно узнать в этой теме https://homemasters.ru/...me/?p=330637

        • Ого
      • 6 ответов
    • Дома из сруба: идеальное сочетание уюта и прочности.
      Строительство собственного дома является важной вехой в жизни любого человека, поскольку оно знаменует собой важное событие. Выбор строительных материалов имеет огромное значение для создания теплого и функционального жилища. На протяжении всей древней истории древесина была распространенным материалом для строительства домов, что отразилось на различных культурах мира.

      • 0 ответов
    • Газовые котлы: эффективное, экономичное и экологичное решение для отопления вашего дома
      В современном мире, где комфорт и устойчивость стали ключевыми аспектами повседневной жизни, выбор правильного источника отопления дома становится особенно актуальным. Газовые котлы, сочетая в себе преимущества эффективности, экономичности и экологичности, представляют собой одно из наиболее популярных решений для обеспечения комфортной температуры в жилых и коммерческих помещениях.

      • 0 ответов
    • Вторая жизнь дивана: искусство ремонта мягкой мебели своими руками
      В эпоху беспрерывного потребления и стремления к новизне, ремонт старой мягкой мебели своими руками приобретает не просто практическое, но и глубоко философское значение. Это действие как знак уважения к труду мастеров, которые вложили свое мастерство в создание диванов, кресел и пуфов, и как воплощение идеи устойчивого потребления. С каждым возвращенным к жизни предметом мебели, мы не только сохраняем историю и уникальность каждого изделия, но и противостоим бездумному обновлению интерьера за счет экологии и рационального использования ресурсов.

        • Нравится
      • 0 ответов
×
×
  • Создать...

Важная информация

Мы разместили cookie-файлы на ваше устройство, чтобы помочь сделать этот сайт лучше. Вы можете изменить свои настройки cookie-файлов, или продолжить без изменения настроек.