Перейти к содержанию
Форумы о ремонте и строительстве

Терморегулятор для теплого пола

Оценить эту тему:


Рекомендуемые сообщения

Опубликовано

Видел такую же тему только для эл. теплых полов

Вопролс таков какой посовтетуете выбрать регулятор по след критериям:

  1. Электронный терморегулятор
  2. Толь ко пол (воздух не нужен)
  3. Симпотный 
  4. Качественный
  5. Бюджетный

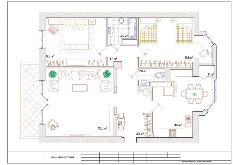
Теплый пол на на 100 квадратов...3 комнаты...кухня, коридор...два туалета...

Сколько их нужно?

post-107648-0-17335900-1483598940_thumb.jpg

Ребят еще два таких вопроса...

Какой брать только температура пола и температура воздуха в комнате?

Читаю про центральный пункт управления...Если он ставится нужны ли в каждой комнате регуляторы?или я могу вывести датчики из каждой комнаты в одну точек и поставить один центральны блок?

  • 3 недели спустя...
Инженерные Инновации

Недорогие и качественные терморегуляторы - российские "Теплолюкс". Есть модели от самых простых, до управляемых со смартфона - терморегулятор Теплолюкс Premium для управления системами обогрева помещений. Если у вас теплый пол для комфорта (чтобы ногам было не холодно), то температуру воздуха в помещении измерять не нужно, достаточно датчика температуры пола. При использовании датчика температуры в помещении, терморегулятор может отключать теплый пол при высокой температуре в помещении. Это вполне нормально, если теплый пол используется для отопления.

Соответственно, сколько петель теплого пола (помещений), столько и терморегуляторов с датчиками. 

  • 3 недели спустя...

Недорогие и качественные терморегуляторы - российские "Теплолюкс". Есть модели от самых простых, до управляемых со смартфона - терморегулятор Теплолюкс Premium для управления системами обогрева помещений. Если у вас теплый пол для комфорта (чтобы ногам было не холодно), то температуру воздуха в помещении измерять не нужно, достаточно датчика температуры пола. При использовании датчика температуры в помещении, терморегулятор может отключать теплый пол при высокой температуре в помещении. Это вполне нормально, если теплый пол используется для отопления.

Соответственно, сколько петель теплого пола (помещений), столько и терморегуляторов с датчиками. 

Дороговатые они...

Ребят нашел кое что...

термо регулятор-на контролер...контроллер кпо 230 кабелю на сервпривод...

Каким сигналным кабелем соединить регуляторы с контроллером?

  • 2 недели спустя...
ВладимирВован

Могу сказать, что терморугелятор терморегулятору рознь и тут зависит все от многих параметров, которые вами не указаны. Поэтому вы сначала просчитаете все необходимые параметры а уже под них ищите терморегулятор,.

термо регулятор-на контролер...контроллер кпо 230 кабелю на сервпривод...
Это для водяного ТП.
  • 3 месяца спустя...
В 05.01.2017 в 08:49, micluho сказал:

Видел такую же тему только для эл. теплых полов

Вопролс таков какой посовтетуете выбрать регулятор по след критериям:

  1. Электронный терморегулятор
  2. Толь ко пол (воздух не нужен)
  3. Симпотный 
  4. Качественный
  5. Бюджетный

Теплый пол на на 100 квадратов...3 комнаты...кухня, коридор...два туалета...

Сколько их нужно?

post-107648-0-17335900-1483598940_thumb.jpg

я бы Вам посоветовал терморегуляторы Heat Plus - симпотные, качественные, недорогие, электронные. Только это в Украине

Для публикации сообщений создайте учётную запись или авторизуйтесь

Вы должны быть зарегистрированным пользователем, чтобы оставить комментарий

Создать учетную запись

Зарегистрируйтесь в нашем сообществе.

Зарегистрироваться

Войти

Уже есть аккаунт? Войти в систему.

Войти

Или войти с помощью одного из сервисов



  • Наши рекомендации

    • Как построить теплый дом, не тратя лишних денег
      Строительство гостевого дома решил выделить в отдельную тему, так будет меньше путаницы.


        • Спасибо
        • Нравится
      • 259 ответов
    • Кажись всё или строительный пылесос с тройной мультициклонной ступенью очистки
      Кажись всё или строительный пылесос с тройной мультициклонной ступенью очистки

        • Нравится
      • 16 ответов
    • Подходы к ремонту старых домов в России
      В России сотни тысяч старых домов, многие из которых являются не только свидетельством исторического наследия, но и отражением уникальной культуры и традиций страны. Эти дома, будь то деревянные избы или старинные каменные постройки, сохраняют в себе дух времени и рассказывают историю поколений.

      • 0 ответов
    • Люк для кошек своими руками
      Разумеется давно придуманы и продаются специальные лючки для кошек, которые можно врезать в дверь, но мы ведь не ищем легких путей . Да и по зоомагазинам я не хожу, а "гугление" показало, что такие люки для кошек стоят относительно не дешево. В то же время под рукой были два "копеечных" сантехнических пластиковых лючка для ГКЛ. Все что оставалось, так это обломать фиксаторы крышек, что бы они открывались в обе стороны, ровно выпилить отверстие в двери, да вклеить симметрично эти лючки.

      То, что получилось видно на фото. Разумеется это не для тех, у кого "дизайнерский ремонт", но для обыкновенной квартиры вполне подходит. Недостатков не замечено, животных и людей всё устраивает .


      Реакцию форумчан на этот люк можно узнать в этой теме https://homemasters.ru/...me/?p=330637

        • Ого
      • 6 ответов
    • Вторая жизнь дивана: искусство ремонта мягкой мебели своими руками
      В эпоху беспрерывного потребления и стремления к новизне, ремонт старой мягкой мебели своими руками приобретает не просто практическое, но и глубоко философское значение. Это действие как знак уважения к труду мастеров, которые вложили свое мастерство в создание диванов, кресел и пуфов, и как воплощение идеи устойчивого потребления. С каждым возвращенным к жизни предметом мебели, мы не только сохраняем историю и уникальность каждого изделия, но и противостоим бездумному обновлению интерьера за счет экологии и рационального использования ресурсов.

        • Нравится
      • 0 ответов
    • Газовые котлы: эффективное, экономичное и экологичное решение для отопления вашего дома
      В современном мире, где комфорт и устойчивость стали ключевыми аспектами повседневной жизни, выбор правильного источника отопления дома становится особенно актуальным. Газовые котлы, сочетая в себе преимущества эффективности, экономичности и экологичности, представляют собой одно из наиболее популярных решений для обеспечения комфортной температуры в жилых и коммерческих помещениях.

      • 0 ответов
    • Аккумуляторные пилы  SCW и  SCM  22-A
      После того как провёл тесты, приступил к самому главному. Поменять диски местами, и проверить, как инструмент на это отреагирует, ведь они внешнее и походу внутренне практически одинаковые, пила по дереву конечно более навороченее, есть настройки угла наклона и можно на шину посадить через адаптер.

      • 4 ответа
    • Дома из сруба: идеальное сочетание уюта и прочности.
      Строительство собственного дома является важной вехой в жизни любого человека, поскольку оно знаменует собой важное событие. Выбор строительных материалов имеет огромное значение для создания теплого и функционального жилища. На протяжении всей древней истории древесина была распространенным материалом для строительства домов, что отразилось на различных культурах мира.

      • 0 ответов
×
×
  • Создать...

Важная информация

Мы разместили cookie-файлы на ваше устройство, чтобы помочь сделать этот сайт лучше. Вы можете изменить свои настройки cookie-файлов, или продолжить без изменения настроек.