Перейти к содержанию
Форумы о ремонте и строительстве

Как правильно построить ПГП (пазогребень) перегородку?

Оценить эту тему:


Рекомендуемые сообщения

8 минут назад, zmeygordynich сказал(а):

@Сергей Слезкин если стяжка лежит не на чем-то пенистом, или волокнистом, а просто на черной полиэтиленовой пленке, сплошной и монолитной, и мягкого там ниже нет, то она не плавающая и можно стену класть спокойно сверху.

Трещина не смертельно. Можно склеить (тем же клеем для пгп, шпателем поглубже загнать) и армировать той же сеткой, например. Будет как новая.

ну не знаю, там трещина идет по середине стена на 80-100см высотой примерно, на метр в сторону и потом вниз. этот кусок отколотый гуляет, но трещина больше чем наполовину такая что я не загоню туда никакого раствора, тонкая полоска, с обеих сторон. сначала еще может немного, мб на см глубь получится. к этой стене будет крепиться дверная коробка, не вызывает доверия вся этак конструкция с дверью =(

я пока не знаю что там под полиэтиленом, как буду там, узнаю, пока настали рабочие дни -( не успел расковырятьдумаю после ковыряний я смогу просто составить список вопросов и начать действовать без лишних сообщений

если надо будет резать стяжку в алмазную резко позвоню, вроде не дорого должно получиться за 170х10 см

поч первый ряд такой мелкий делают? можно было чтоб сразу торчал на все 67см вверх от плиты, а там писюля какая то 5см

20 минут назад, zmeygordynich сказал(а):

@Сергей Слезкин если стяжка лежит не на чем-то пенистом, или волокнистом, а просто на черной полиэтиленовой пленке, сплошной и монолитной, и мягкого там ниже нет, то она не плавающая и можно стену класть спокойно сверху.

Трещина не смертельно. Можно склеить (тем же клеем для пгп, шпателем поглубже загнать) и армировать той же сеткой, например. Будет как новая.

схематично трещина идет так от края резки, внизу будето не закреплена и ходит туда-сюда

Screenshot_4

8 часов назад, zmeygordynich сказал(а):

@Сергей Слезкин если стяжка лежит не на чем-то пенистом, или волокнистом, а просто на черной полиэтиленовой пленке, сплошной и монолитной, и мягкого там ниже нет, то она не плавающая и можно стену класть спокойно сверху.

Трещина не смертельно. Можно склеить (тем же клеем для пгп, шпателем поглубже загнать) и армировать той же сеткой, например. Будет как новая.

короче сегодня с утра позвонил застройщику, терроризировал по вопросу как построен пол - ответ такой, два слоя, первый перекрытие (плита), потом полиэтилен, и потом верхний слой стяжки который я вижу. похоже этот гребень в полу это действительно раствор принявший форму блока. так и как теперь мне строить перегородки? правильно, особенно новую на старом месте (в нише от старой) и чтобы она продолжилась там где ее раньше не было? (это типо резать стяжку или заливать нишу, верно? )

а я верил яндексу который говорит "Плавающая стяжка – разновидность цементно-песчаной стяжки. Основное отличие от традиционной стяжки заключается в том, что плавающая не связана с прилегающими стенами и основанием пола." так вроде подходит под определение, от всего пленочками отгорожена же

2 часа назад, Сергей Слезкин сказал(а):

как

Вскрывать до плиты, ставить на пробковую подложку и от стяжки демпферной лентой отделять.

11 час назад, Сергей Слезкин сказал(а):

поч первый ряд такой мелкий делают?

Я же писал. Чтобы раствор не проседал.

2 часа назад, Сергей Слезкин сказал(а):

как теперь мне строить перегородки?

Прямо на стяжку. Это если там сплошная пленка только отделяет стяжку от плиты. Это не плавающая стяжка, это стяжка с разделительным слоем.

2 часа назад, Сергей Слезкин сказал(а):

вроде подходит под определение, от всего пленочками отгорожена же

Сплошной полиэтилен весьма жёсткий. Спокойно выдержит даже 10 м кладки. Можно не вскрывать до плиты.

А вот пробку Вам советуют правильно.

  • 3 недели спустя...

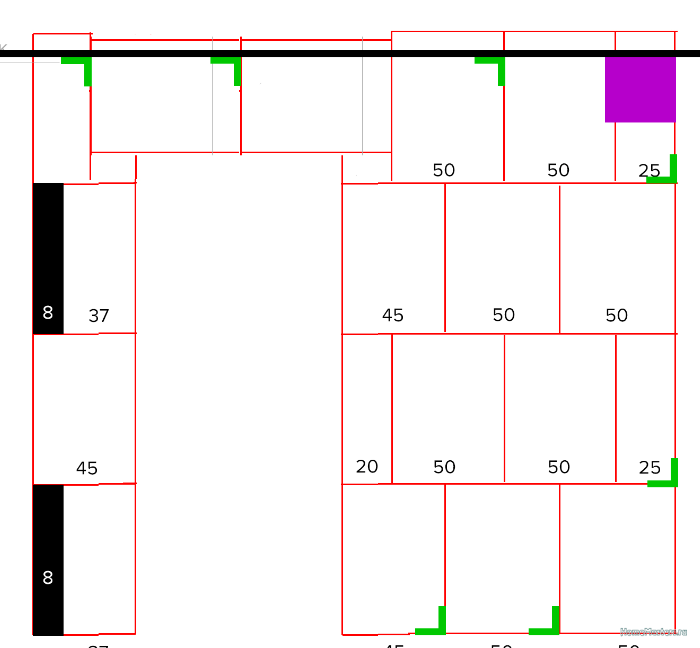
Привет! Ну вот, так получилось, что нашелся человек который обещал построить мне все по технологии, даже разрезав стяжку и поставив перегородку на плиту. впринципе так и получилось, но все же есть несколько вопросов которые меня беспокоят как чайника, т.к я читал как в телории, но не знаю как на практике.Прошу у вас откомментировать. на фото вы видите место установки старой перегородки (по потолку), и вырез в стяжке под новую.

1) швы между перегородкой и стяжкой внизу наглухо заделаны гипсовым клеем. (то место где по идее лежит демпферная лента, на старой перегородке лежала, на этой соответственно ее нет). Это очень плохо? может ли от хлждений треснуть прегородка ? или это все фигня и ничего не бывает?

2) проем строитель все же построил не так как я ему нарисовал, а по своему, поэтому одна плити типо висит в воздухе просто, и от этого мне как-то некомфортно. это нормально и все чики-пуки? на арматуре этот блок нормально не лежит, точнее не лежит вовсе.45.png.811b06a819cdff86cfd9a0428f711660.png

3) на отмеченном месте плита будто отошла от пробковой прокладки, трещина вдоль стыка прокладка-плита, у стены. это критично? 455.thumb.png.c14c02aee9efd945a14cf27d7aa02885.png

4) использовал пробковую прокладку. когда стукаю по стене слева от проема, все довольно спокойно. когда стукаю по стене справа от проема, очень долго волнами идет резонирующий звук. неприятно. че это?

5) как он сказал плита была неровная и он положил хороши слой кнауф перлфикса под прокладку для выравнивания, это нормально?

как в целом построено, можно двигаться дальше? швы у стяжки больше беспокоят, типо стяжка пошевелится немного на 2 мм надавит и все треснет.

Ssn-waO5yAY

NLYRpm9QuXc

KkQd3_Ymm2A

u8c0_S5LXuw

Для публикации сообщений создайте учётную запись или авторизуйтесь

Вы должны быть зарегистрированным пользователем, чтобы оставить комментарий

Создать учетную запись

Зарегистрируйтесь в нашем сообществе.

Зарегистрироваться

Войти

Уже есть аккаунт? Войти в систему.

Войти

Или войти с помощью одного из сервисов



  • Наши рекомендации

    • Кажись всё или строительный пылесос с тройной мультициклонной ступенью очистки
      Кажись всё или строительный пылесос с тройной мультициклонной ступенью очистки

        • Нравится
      • 16 ответов
    • Газовые котлы: эффективное, экономичное и экологичное решение для отопления вашего дома
      В современном мире, где комфорт и устойчивость стали ключевыми аспектами повседневной жизни, выбор правильного источника отопления дома становится особенно актуальным. Газовые котлы, сочетая в себе преимущества эффективности, экономичности и экологичности, представляют собой одно из наиболее популярных решений для обеспечения комфортной температуры в жилых и коммерческих помещениях.

      • 0 ответов
    • Подходы к ремонту старых домов в России
      В России сотни тысяч старых домов, многие из которых являются не только свидетельством исторического наследия, но и отражением уникальной культуры и традиций страны. Эти дома, будь то деревянные избы или старинные каменные постройки, сохраняют в себе дух времени и рассказывают историю поколений.

      • 0 ответов
    • Аккумуляторные пилы  SCW и  SCM  22-A
      После того как провёл тесты, приступил к самому главному. Поменять диски местами, и проверить, как инструмент на это отреагирует, ведь они внешнее и походу внутренне практически одинаковые, пила по дереву конечно более навороченее, есть настройки угла наклона и можно на шину посадить через адаптер.

      • 4 ответа
    • Дома из сруба: идеальное сочетание уюта и прочности.
      Строительство собственного дома является важной вехой в жизни любого человека, поскольку оно знаменует собой важное событие. Выбор строительных материалов имеет огромное значение для создания теплого и функционального жилища. На протяжении всей древней истории древесина была распространенным материалом для строительства домов, что отразилось на различных культурах мира.

      • 0 ответов
    • Как построить теплый дом, не тратя лишних денег
      Строительство гостевого дома решил выделить в отдельную тему, так будет меньше путаницы.


        • Спасибо
        • Нравится
      • 259 ответов
    • Люк для кошек своими руками
      Разумеется давно придуманы и продаются специальные лючки для кошек, которые можно врезать в дверь, но мы ведь не ищем легких путей . Да и по зоомагазинам я не хожу, а "гугление" показало, что такие люки для кошек стоят относительно не дешево. В то же время под рукой были два "копеечных" сантехнических пластиковых лючка для ГКЛ. Все что оставалось, так это обломать фиксаторы крышек, что бы они открывались в обе стороны, ровно выпилить отверстие в двери, да вклеить симметрично эти лючки.

      То, что получилось видно на фото. Разумеется это не для тех, у кого "дизайнерский ремонт", но для обыкновенной квартиры вполне подходит. Недостатков не замечено, животных и людей всё устраивает .


      Реакцию форумчан на этот люк можно узнать в этой теме https://homemasters.ru/...me/?p=330637

        • Ого
      • 6 ответов
    • Вторая жизнь дивана: искусство ремонта мягкой мебели своими руками
      В эпоху беспрерывного потребления и стремления к новизне, ремонт старой мягкой мебели своими руками приобретает не просто практическое, но и глубоко философское значение. Это действие как знак уважения к труду мастеров, которые вложили свое мастерство в создание диванов, кресел и пуфов, и как воплощение идеи устойчивого потребления. С каждым возвращенным к жизни предметом мебели, мы не только сохраняем историю и уникальность каждого изделия, но и противостоим бездумному обновлению интерьера за счет экологии и рационального использования ресурсов.

        • Нравится
      • 0 ответов
×
×
  • Создать...

Важная информация

Мы разместили cookie-файлы на ваше устройство, чтобы помочь сделать этот сайт лучше. Вы можете изменить свои настройки cookie-файлов, или продолжить без изменения настроек.