Перейти к содержанию
Форумы о ремонте и строительстве

Радиусный письменный стол

Оценить эту тему:


Рекомендуемые сообщения

Опубликовано

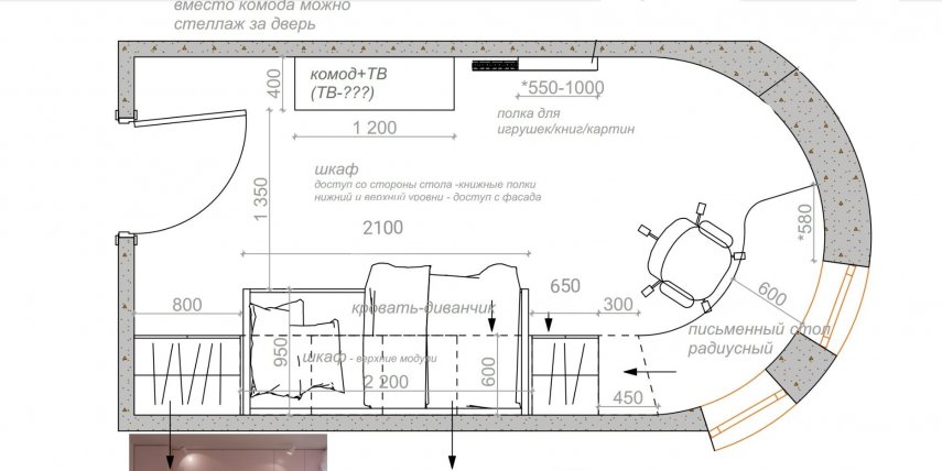
Доброго времени суток! Делаем ремонт в детской комнате, сейчас стоит вопрос с заказом мебели, в том числе письменного стола для дочки, будущей школьницы, учитывая то что комната с эркером и окнами на нем, то стол хотим сделать радиусным в районе естественного освещения, но проблема в том, что подоконники в нижних точках имеют высоту от пола 735-740 мм, по утверждениям прочитанным в интернете оптимальной высотой стола является 750 мм или немного больше, меньше не желательно, отсюда вопрос как лучше поступить? Пустить столешницу под подоконником с высотой 730? Пустить над подоконником? Или срезать как бы выступающую часть подоконника (которая буквой "Г") и тогда высота 750 получится.

Screenshot_20220608_074641

Screenshot_20220608_190426

Screenshot_20220608_190517

Screenshot_20220608_190659

интернете оптимальной высотой стола является 750 мм или немного больше

770 у вас на фото, это и есть высота вашего стола, по моему у вас получается желаемое

Подписываемся на тему День за днём, моя работа https://homemasters.ru/...esta-raboty/ и на мой инстарам https://www.instagram.c...gda35remont/

Принимаю заказы на мебель из слэбов

 

делаете просто встык к существующему подоконнику, раз заказная столешница то шаблон из двп сделают по месту и на производстве напилят по шаблону

более лучший вариант это снять подоконники и продолжить столеницу до окна

Подписываемся на тему День за днём, моя работа https://homemasters.ru/...esta-raboty/ и на мой инстарам https://www.instagram.c...gda35remont/

Принимаю заказы на мебель из слэбов

 

Снять подоконники это интересно, не думал об этом, я думал столешница будет либо под подоконником (730 получается) либо уже над ним, вырезать именно по уровню подоконника наверное проблематично, но если есть вариант с шаблоном, то обсужу это! Спасибо!

11 час назад, Sano сказал(а):

делаете просто встык к существующему подоконнику, раз заказная столешница то шаблон из двп сделают по месту и на производстве напилят по шаблону

более лучший вариант это снять подоконники и продолжить столеницу до окна

А подскажи если без снятия подоконника, то есть поверх него столешницу до окна сделать?

2 часа назад, Alessandro_52 сказал(а):

А подскажи если без снятия подоконника, то есть поверх него столешницу до окна сделать?

Если столешница не будет мешать открыванию окна, можно и так. Только уровень квалификации мебельщиков должен быть достаточно высокий. Точно разметиться и выкроить деталь. Чтоб плотно, без щелей и зазоров подогнать к стенам и откосам. И в этом случае столешницу из нескольких элементов формировать. Чисто физически не получится завести одним куском в два оконных проёма.

Я бы сказал, офигенно высокий, такую выкройку состыковать и чтобы незаметно было, по типу еврозапила...

А может, наоборот поступить? Снять подоконники и сделать железобетонную столешницу на месте, облицевав её кварцвинилом и т.п.? Если стены бетонные, то можно вообще без опор обойтись - анкерами. Да даже если пенобетон, просто завести туда столешницу для опоры. Бетона не надо много, сантиметра 4 хватит. Можно с керамзитом. Тогда масса не большая будет.

Но не эргономично такое расположение будет. Свет из окна должен падать слева, а не спереди. Вот и поставить обычный стол справа от правого окна, с закруглением сзади с левой стороны столешки. А остальное перетасовать. Может, стол-кровать применить, чтобы спать наверху над столом. Или шкаф-кровать. А пространство эркера оставить как свободное пространство комнаты. Пространство за дверью напрашивается на шкаф, кстати...

1 час назад, zmeygordynich сказал(а):

Я бы сказал, офигенно высокий, такую выкройку состыковать и чтобы незаметно было, по типу еврозапила...

А может, наоборот поступить? Снять подоконники и сделать железобетонную столешницу на месте, облицевав её кварцвинилом и т.п.? Если стены бетонные, то можно вообще без опор обойтись - анкерами. Да даже если пенобетон, просто завести туда столешницу для опоры. Бетона не надо много, сантиметра 4 хватит. Можно с керамзитом. Тогда масса не большая будет.

Но не эргономично такое расположение будет. Свет из окна должен падать слева, а не спереди. Вот и поставить обычный стол справа от правого окна, с закруглением сзади с левой стороны столешки. А остальное перетасовать. Может, стол-кровать применить, чтобы спать наверху над столом. Или шкаф-кровать. А пространство эркера оставить как свободное пространство комнаты. Пространство за дверью напрашивается на шкаф, кстати...

Дело в том, что сам гарнитур который вдоль стены пойдет он уже заказан, такой как на фото, вопрос только со столом который будет к нему примыкать остался открытый, вот и думаем как лучше сделать, железобетонная столешница звучит основательно) но отделка финишная уже выполнена, боюсь сильно ломать придется, хотелось бы подоконник оставить на месте, а если столешницу делать как бы одной плоскостью с подоконником это тоже сложная выкройка?

IMG-20220429-WA0003

2 часа назад, Alessandro_52 сказал(а):

если столешницу делать как бы одной плоскостью с подоконником это тоже сложная выкройка?

Нет, это куда проще, один шаблон и всё.

Лично я не вижу сложностей аккуратно демонтировать подоконники, снять откосы. Поставить столешницы, а она будет составная, хотя могут и не составную сделать. Поставить новые откосы

Подписываемся на тему День за днём, моя работа https://homemasters.ru/...esta-raboty/ и на мой инстарам https://www.instagram.c...gda35remont/

Принимаю заказы на мебель из слэбов

 

1 час назад, Sano сказал(а):

Поставить новые откосы

А, если и откосы менять, тогда конечно, можно прирезать в их области с запасом и всё будет ОК.

Но ИМХО, изначально идея так себе - эркер занять столом...

а почему бы и нет, сам по себе эркер конечно пустопорожнее место, красиво только когда площади большие

Подписываемся на тему День за днём, моя работа https://homemasters.ru/...esta-raboty/ и на мой инстарам https://www.instagram.c...gda35remont/

Принимаю заказы на мебель из слэбов

 

20 часов назад, Sano сказал(а):

сам по себе эркер конечно пустопорожнее место, красиво только когда площади большие

Ну в комнате как раз место и нужно. Свободное. Чтобы пройти, потанцевать там, поставить что-то временно... Почему не эркер? Лицом к свету заниматься за столом не очень удобно. Разве что если сторона северная...

Для публикации сообщений создайте учётную запись или авторизуйтесь

Вы должны быть зарегистрированным пользователем, чтобы оставить комментарий

Создать учетную запись

Зарегистрируйтесь в нашем сообществе.

Зарегистрироваться

Войти

Уже есть аккаунт? Войти в систему.

Войти

Или войти с помощью одного из сервисов



  • Наши рекомендации

    • Кажись всё или строительный пылесос с тройной мультициклонной ступенью очистки
      Кажись всё или строительный пылесос с тройной мультициклонной ступенью очистки

        • Нравится
      • 16 ответов
    • Люк для кошек своими руками
      Разумеется давно придуманы и продаются специальные лючки для кошек, которые можно врезать в дверь, но мы ведь не ищем легких путей . Да и по зоомагазинам я не хожу, а "гугление" показало, что такие люки для кошек стоят относительно не дешево. В то же время под рукой были два "копеечных" сантехнических пластиковых лючка для ГКЛ. Все что оставалось, так это обломать фиксаторы крышек, что бы они открывались в обе стороны, ровно выпилить отверстие в двери, да вклеить симметрично эти лючки.

      То, что получилось видно на фото. Разумеется это не для тех, у кого "дизайнерский ремонт", но для обыкновенной квартиры вполне подходит. Недостатков не замечено, животных и людей всё устраивает .


      Реакцию форумчан на этот люк можно узнать в этой теме https://homemasters.ru/...me/?p=330637

        • Ого
      • 6 ответов
    • Дома из сруба: идеальное сочетание уюта и прочности.
      Строительство собственного дома является важной вехой в жизни любого человека, поскольку оно знаменует собой важное событие. Выбор строительных материалов имеет огромное значение для создания теплого и функционального жилища. На протяжении всей древней истории древесина была распространенным материалом для строительства домов, что отразилось на различных культурах мира.

      • 0 ответов
    • Аккумуляторные пилы  SCW и  SCM  22-A
      После того как провёл тесты, приступил к самому главному. Поменять диски местами, и проверить, как инструмент на это отреагирует, ведь они внешнее и походу внутренне практически одинаковые, пила по дереву конечно более навороченее, есть настройки угла наклона и можно на шину посадить через адаптер.

      • 4 ответа
    • Вторая жизнь дивана: искусство ремонта мягкой мебели своими руками
      В эпоху беспрерывного потребления и стремления к новизне, ремонт старой мягкой мебели своими руками приобретает не просто практическое, но и глубоко философское значение. Это действие как знак уважения к труду мастеров, которые вложили свое мастерство в создание диванов, кресел и пуфов, и как воплощение идеи устойчивого потребления. С каждым возвращенным к жизни предметом мебели, мы не только сохраняем историю и уникальность каждого изделия, но и противостоим бездумному обновлению интерьера за счет экологии и рационального использования ресурсов.

        • Нравится
      • 0 ответов
    • Как построить теплый дом, не тратя лишних денег
      Строительство гостевого дома решил выделить в отдельную тему, так будет меньше путаницы.


        • Спасибо
        • Нравится
      • 259 ответов
    • Газовые котлы: эффективное, экономичное и экологичное решение для отопления вашего дома
      В современном мире, где комфорт и устойчивость стали ключевыми аспектами повседневной жизни, выбор правильного источника отопления дома становится особенно актуальным. Газовые котлы, сочетая в себе преимущества эффективности, экономичности и экологичности, представляют собой одно из наиболее популярных решений для обеспечения комфортной температуры в жилых и коммерческих помещениях.

      • 0 ответов
    • Подходы к ремонту старых домов в России
      В России сотни тысяч старых домов, многие из которых являются не только свидетельством исторического наследия, но и отражением уникальной культуры и традиций страны. Эти дома, будь то деревянные избы или старинные каменные постройки, сохраняют в себе дух времени и рассказывают историю поколений.

      • 0 ответов
×
×
  • Создать...

Важная информация

Мы разместили cookie-файлы на ваше устройство, чтобы помочь сделать этот сайт лучше. Вы можете изменить свои настройки cookie-файлов, или продолжить без изменения настроек.