Перейти к содержанию
Форумы о ремонте и строительстве

Разводка в ванной

Оценить эту тему:


Рекомендуемые сообщения

Опубликовано

Привет!Скажите, вот что имею. Отдельная ветка. На ней УЗО, автомат. На ней висят ванна и стиралка. В ванну приходит один провод. И дальше нужно от него отвод один на ванну сделать, а другой на стиралку. правильно ли я понимаю, что просто соединить нужно все нули, фазы и земли между собой?и еще хотел спросить как лучше соединить провода (3*2,5) простой скруткой (всё таки ванна, а еще сантехник неудачно вывел кран стиралки, которая находится прямо над этой розеткой только на 50 см выше) и потом изолентой? Спасибо!

ринат чего то ты начал за здравие а заканчиваешь не очень

делать всегда проще чем переделывать (семь раз отмерь один отрежь :) как в ералаше)

про провода вроде правильно - но схему нарисуй (на всякий) скрутку нафиг возьми ваго, розетка под краном - совсем не в тему

ринат чего то ты начал за здравие а заканчиваешь не очень

делать всегда проще чем переделывать (семь раз отмерь один отрежь :) как в ералаше)

про провода вроде правильно - но схему нарисуй (на всякий) скрутку нафиг возьми ваго, розетка под краном - совсем не в тему

Вот схема. Правда, я вот не помню, что идет ближе к проводу в ванную, УЗО или автомат :)

стиралка

/

УЗО-автомат------

\

ванная

Фото как розетка находится прилагаю.

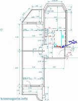
Во второй фото план ванной (В - ванна, С - стиралка). И как туда приходит провод (красный)

И как лучше переделать тогда ванную? (над краном в 40 см почти по центру висит полотенцесушитель)

А не скажете что такое ваго?

Посмотрел, что сдвинулись стрелки от автомата, но думаю понятно, что идет раздвоение.

А вот меня еще один вопрос мучает: вот приходит один провод и раздваиваю его. Так получается что когда у меня включена стиралка, то обратный ток по нулю скатывается в нуль ванны или всё уходит во входящий? т.е. если я дотронусь до нуля ванной, когда работает стиралка, будет ли там ток?

post-10355-1215178196_thumb.jpg

post-10355-1215178441_thumb.jpg

Для публикации сообщений создайте учётную запись или авторизуйтесь

Вы должны быть зарегистрированным пользователем, чтобы оставить комментарий

Создать учетную запись

Зарегистрируйтесь в нашем сообществе.

Зарегистрироваться

Войти

Уже есть аккаунт? Войти в систему.

Войти

Или войти с помощью одного из сервисов



  • Наши рекомендации

    • Газовые котлы: эффективное, экономичное и экологичное решение для отопления вашего дома
      В современном мире, где комфорт и устойчивость стали ключевыми аспектами повседневной жизни, выбор правильного источника отопления дома становится особенно актуальным. Газовые котлы, сочетая в себе преимущества эффективности, экономичности и экологичности, представляют собой одно из наиболее популярных решений для обеспечения комфортной температуры в жилых и коммерческих помещениях.

      • 0 ответов
    • Аккумуляторные пилы  SCW и  SCM  22-A
      После того как провёл тесты, приступил к самому главному. Поменять диски местами, и проверить, как инструмент на это отреагирует, ведь они внешнее и походу внутренне практически одинаковые, пила по дереву конечно более навороченее, есть настройки угла наклона и можно на шину посадить через адаптер.

      • 4 ответа
    • Как построить теплый дом, не тратя лишних денег
      Строительство гостевого дома решил выделить в отдельную тему, так будет меньше путаницы.


        • Спасибо
        • Нравится
      • 259 ответов
    • Вторая жизнь дивана: искусство ремонта мягкой мебели своими руками
      В эпоху беспрерывного потребления и стремления к новизне, ремонт старой мягкой мебели своими руками приобретает не просто практическое, но и глубоко философское значение. Это действие как знак уважения к труду мастеров, которые вложили свое мастерство в создание диванов, кресел и пуфов, и как воплощение идеи устойчивого потребления. С каждым возвращенным к жизни предметом мебели, мы не только сохраняем историю и уникальность каждого изделия, но и противостоим бездумному обновлению интерьера за счет экологии и рационального использования ресурсов.

        • Нравится
      • 0 ответов
    • Дома из сруба: идеальное сочетание уюта и прочности.
      Строительство собственного дома является важной вехой в жизни любого человека, поскольку оно знаменует собой важное событие. Выбор строительных материалов имеет огромное значение для создания теплого и функционального жилища. На протяжении всей древней истории древесина была распространенным материалом для строительства домов, что отразилось на различных культурах мира.

      • 0 ответов
    • Подходы к ремонту старых домов в России
      В России сотни тысяч старых домов, многие из которых являются не только свидетельством исторического наследия, но и отражением уникальной культуры и традиций страны. Эти дома, будь то деревянные избы или старинные каменные постройки, сохраняют в себе дух времени и рассказывают историю поколений.

      • 0 ответов
    • Кажись всё или строительный пылесос с тройной мультициклонной ступенью очистки
      Кажись всё или строительный пылесос с тройной мультициклонной ступенью очистки

        • Нравится
      • 16 ответов
    • Люк для кошек своими руками
      Разумеется давно придуманы и продаются специальные лючки для кошек, которые можно врезать в дверь, но мы ведь не ищем легких путей . Да и по зоомагазинам я не хожу, а "гугление" показало, что такие люки для кошек стоят относительно не дешево. В то же время под рукой были два "копеечных" сантехнических пластиковых лючка для ГКЛ. Все что оставалось, так это обломать фиксаторы крышек, что бы они открывались в обе стороны, ровно выпилить отверстие в двери, да вклеить симметрично эти лючки.

      То, что получилось видно на фото. Разумеется это не для тех, у кого "дизайнерский ремонт", но для обыкновенной квартиры вполне подходит. Недостатков не замечено, животных и людей всё устраивает .


      Реакцию форумчан на этот люк можно узнать в этой теме https://homemasters.ru/...me/?p=330637

        • Ого
      • 6 ответов
×
×
  • Создать...

Важная информация

Мы разместили cookie-файлы на ваше устройство, чтобы помочь сделать этот сайт лучше. Вы можете изменить свои настройки cookie-файлов, или продолжить без изменения настроек.