Перейти к содержанию
Форумы о ремонте и строительстве

Страничка Sano(и) или хитрости, навык, опыт

Оценить эту тему:


Рекомендуемые сообщения

Bagis

Странная картинка, смотря что имеется ввиду.

Вообще туда ставят уплотнительную ленту из вспененного полиэтилена, но тут, похоже, что-то другое.

Учитывая, что масштаб вообще никак не соблюден, трудно сказать наверняка.

max_fox, вот и я не понял. По цвету вроде ГКЛ, но по размеру не подходит...Может деревяха?! Подождём наших гуру.

И ещё вот по этой картинке вопрос - на стыке профиль не ставится? Стык в воздухе висит?

post-15106-1300210956_thumb.jpg

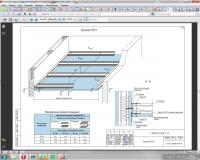
Смотрел схемы кнауфа и возник вопрос - из чего полоска?

Из ГКЛ (ГВЛ)

И ещё вот по этой картинке вопрос - на стыке профиль не ставится? Стык в воздухе висит?

Если речь идёт о стыке листов утоненными кромками, то да, висит в воздухе (по технологии), но если вы спросите меня, то я ставлю.

Значит первая картинка коряво нарисована?! Там толщина около 20 мм. Значит должно было быть две полоски ГКЛ?По второй картинке. Значит и я поставлю :)

Значит первая картинка коряво нарисована?! Там толщина около 20 мм. Значит должно было быть две полоски ГКЛ?

Может быть и две и три толщины, зависит от того, на какую подвижку стен рассчитываете.А на счёт ленты. Есть лента уплотнительная, а есть разделительная. Это две разных по назначению ленты. Наверняка многие путают их назначение. Например я почти уверен, что разделительной лентой никто не пользуется. ;)

Блин, не понятно. По картинке и ей названию я решил что это что-то типа понта. А теперь Вы говорите что для компенсации подвижек. А как это работает? Ведь собрано-скручено всё жёстко. За счёт чего компенсация? Что куда прогибается?

Например я почти уверен, что разделительной лентой никто не пользуется. ;)

Я такую даже и не видел. Надо будет в магазине посмотреть. А она для чего предназначена?

За счёт чего компенсация?

Лист не крепится саморезами к ПН.

Я такую даже и не видел. Надо будет в магазине посмотреть. А она для чего предназначена?

Для того чтобы шпатлёвка в углу не лопалась. И в подвижных соединениях она нужна обязательно.

Лист не крепится саморезами к ПН.

А на картинке крепится. Какой-то чудак через букву М эту картинку рисовал :)

Да, именно так. Где вы её взяли?.Насколько я знаю про эти соединения, так там не должно крепиться.На второй картинке понятно почему прокручено. Там потолок без подвесов, а здесь ????????

Лист не крепится саморезами к ПН.

Если он не крепиться, зачем прослойка из ГКЛ между ПН и стеной?

Для тог чтобы стены туда-сюда ходили, а потолочек бы висел как ни в чём не бывало.

Для того чтобы шпатлёвка в углу не лопалась. И в подвижных соединениях она нужна обязательно.

Для тог чтобы стены туда-сюда ходили, а потолочек бы висел как ни в чём не бывало.

В подвижном соединении (т.е. в этом примыкании к стене, не имеющем жесткой связи) шпатлевка лопнет хоть с уплотнителем, хоть без. Не вижу логики. Чтобы снять напряжение с конструкции потолка - "да", чтобы избавиться от трещин в примыкании - "нет".

Да, именно так. Где вы её взяли?.

Скачал сегодня с оф сайта российского кнауф. Стр 41 - 12_Potolki_iz_KNAUF-listov_i_K.pdf

В подвижном соединении (т.е. в этом примыкании к стене, не имеющем жесткой связи) шпатлевка лопнет хоть с уплотнителем, хоть без.

Я думаю метод потому и называется теневой, что шпаклёвка в примыкание стена-потолок вообще не набивается...

Серег, я говорю о примыкании в принципе. Или ПП во всех остальных случаях, кроме данной схемы, крепиться жестко к ПН?

Так если в принципе, то хождения и быть не должно. Этот же метод рассчитан как раз для "подвижных" стен.

никто не против если я тут спрошу? такой вопрос к спецам.буду делать потолок но у меня под потолком труба отопления через две стены идет.можно ли прикрутить на двух стенах профиль 27\28 а там где труба нет.просто профиль сд дойдет до трубы и на конце кинуть подвес.возможно ли так??других вариантов не вижу.

fomins, раз уж про ленты заговорили, то что за зверь Свинцовая лента, самоклеящаяся? Есть разной толщины. Куда и зачем её пихать?

В подвижном соединении (т.е. в этом примыкании к стене, не имеющем жесткой связи) шпатлевка лопнет хоть с уплотнителем, хоть без.

Не надо валить всё в кучу. Я ведь уже сказал, что уплотнительная и разделительная лента, это две разные по назначению ленты.Уплотнительная нужна для плотного прилегания профиля к ограждающим конструкциям (стенам) и для уменьшения шума.Разделительная лента нужна для того чтобы шпатлёвка к стене не прилипала и соответственно для предотвращения трещин по периметру потолка, в следствии вертикального его сдвига. А для горизонтальных подвижек и деформационных швов и предусмотрена система такого сопряжения.

Этот же метод рассчитан как раз для "подвижных" стен.

Тогда нафига уплотнитель? Имхо, уплотнитель-амортизатор нужен при жестком креплении ПП и ПН. При плавающем креплении он нахрен?

Разделительная лента нужна для того чтобы шпатлёвка к стене не прилипала и соответственно для предотвращения трещин по периметру потолка, в следствии вертикального его сдвига.

Т.е. она (лента) сама создает искусственную трещину?ЗЫ: Чет я один по ходу не вкуриваю.

Для публикации сообщений создайте учётную запись или авторизуйтесь

Вы должны быть зарегистрированным пользователем, чтобы оставить комментарий

Создать учетную запись

Зарегистрируйтесь в нашем сообществе.

Зарегистрироваться

Войти

Уже есть аккаунт? Войти в систему.

Войти

Или войти с помощью одного из сервисов



  • Наши рекомендации

    • Подходы к ремонту старых домов в России
      В России сотни тысяч старых домов, многие из которых являются не только свидетельством исторического наследия, но и отражением уникальной культуры и традиций страны. Эти дома, будь то деревянные избы или старинные каменные постройки, сохраняют в себе дух времени и рассказывают историю поколений.

      • 0 ответов
    • Дома из сруба: идеальное сочетание уюта и прочности.
      Строительство собственного дома является важной вехой в жизни любого человека, поскольку оно знаменует собой важное событие. Выбор строительных материалов имеет огромное значение для создания теплого и функционального жилища. На протяжении всей древней истории древесина была распространенным материалом для строительства домов, что отразилось на различных культурах мира.

      • 0 ответов
    • Как построить теплый дом, не тратя лишних денег
      Строительство гостевого дома решил выделить в отдельную тему, так будет меньше путаницы.


        • Спасибо
        • Нравится
      • 257 ответов
    • Аккумуляторные пилы  SCW и  SCM  22-A
      После того как провёл тесты, приступил к самому главному. Поменять диски местами, и проверить, как инструмент на это отреагирует, ведь они внешнее и походу внутренне практически одинаковые, пила по дереву конечно более навороченее, есть настройки угла наклона и можно на шину посадить через адаптер.

      • 4 ответа
    • Кажись всё или строительный пылесос с тройной мультициклонной ступенью очистки
      Кажись всё или строительный пылесос с тройной мультициклонной ступенью очистки

        • Нравится
      • 16 ответов
    • Вторая жизнь дивана: искусство ремонта мягкой мебели своими руками
      В эпоху беспрерывного потребления и стремления к новизне, ремонт старой мягкой мебели своими руками приобретает не просто практическое, но и глубоко философское значение. Это действие как знак уважения к труду мастеров, которые вложили свое мастерство в создание диванов, кресел и пуфов, и как воплощение идеи устойчивого потребления. С каждым возвращенным к жизни предметом мебели, мы не только сохраняем историю и уникальность каждого изделия, но и противостоим бездумному обновлению интерьера за счет экологии и рационального использования ресурсов.

        • Нравится
      • 0 ответов
    • Люк для кошек своими руками
      Разумеется давно придуманы и продаются специальные лючки для кошек, которые можно врезать в дверь, но мы ведь не ищем легких путей . Да и по зоомагазинам я не хожу, а "гугление" показало, что такие люки для кошек стоят относительно не дешево. В то же время под рукой были два "копеечных" сантехнических пластиковых лючка для ГКЛ. Все что оставалось, так это обломать фиксаторы крышек, что бы они открывались в обе стороны, ровно выпилить отверстие в двери, да вклеить симметрично эти лючки.

      То, что получилось видно на фото. Разумеется это не для тех, у кого "дизайнерский ремонт", но для обыкновенной квартиры вполне подходит. Недостатков не замечено, животных и людей всё устраивает .


      Реакцию форумчан на этот люк можно узнать в этой теме https://homemasters.ru/...me/?p=330637

        • Ого
      • 6 ответов
    • Газовые котлы: эффективное, экономичное и экологичное решение для отопления вашего дома
      В современном мире, где комфорт и устойчивость стали ключевыми аспектами повседневной жизни, выбор правильного источника отопления дома становится особенно актуальным. Газовые котлы, сочетая в себе преимущества эффективности, экономичности и экологичности, представляют собой одно из наиболее популярных решений для обеспечения комфортной температуры в жилых и коммерческих помещениях.

      • 0 ответов
×
×
  • Создать...

Важная информация

Мы разместили cookie-файлы на ваше устройство, чтобы помочь сделать этот сайт лучше. Вы можете изменить свои настройки cookie-файлов, или продолжить без изменения настроек.