Перейти к содержанию
Форумы о ремонте и строительстве

Нужно толково распланировать мансарду.

Оценить эту тему:


Рекомендуемые сообщения

Наоборот, лично я, буду только рад! Ведь тему для того и создал, чтоб послушать разные мнения. Потому как пока ничего не сделано, всё можно изменить и подправить. А потом, если что не так, останется только локти кусать. Так что я жду вечернего "разгрома" :)

Неплохо было бы горшочек хоть немного развернуть, в уголок поставить, чтобы носом в стену не упираться, да и для двери, что внутрь открывается, так лучше будет. 1250мм это достаточно мало, можно нос об дверь ободрать.У меня например этот размерчик 1600мм.

fomins, не получится ни то, ни другое. Моя труба вентиляции оказалась не самой ближней, как я думал раньше, а совсем наоборот. Я её конечно "добыл", но теперь короб, из бывших 27 см, разрастется примерно до 40 -

post-15106-1305050435_thumb.jpg

И теперь от короба до перегородки будет что-то около 80 см (на фотке кусочек доски виден. Вот примерно там перегородка и планируется.)

Да и, на мой взгляд, поворачивать горшок вроде как-то не айс.

Размер сильно увеличить тоже совсем не просто, нужно кучу перемычек ставить, да и коридорчик станет совсем узеньким -

post-15106-1305052138_thumb.jpg

Да всё понятно, просто я уверен, что будете себя чувствовать некомфортно. Даже 1400мм маловато, а тут 1250мм.Поэтому и подумал под углом горшок поставить, всё же посвободнее будет, но вам на месте виднее и вам там жить и в туалет ходить. :)

Да Вы всё правильно говорите, помещение малюсенькое. Хотя на плане, что Alef нарисовал, вроде как и не тесно. Попробую в выходные на натуре "унитаз" подвигать, посмотрю что будет получаться.

И напомню, это второй туалет. Как я сейчас думаю, им будут пользоваться значительно меньше чем первым.

а у нас знаете ли частенько можно встретить такие "апартаменты",люди "входят и выходят,продвигаются вперёд..." :)  Да,не самый просторный вариант,но зайти,закрыть за собой дверь,сесть в позу роденовского "мыслителя" (или встать на четвереньки и изобразить страшшшного льва-тут уж зависит от обстоятельств) вполне осуществимо,лбом в двери никто не упирается,носы не царапает...У родителей в съёмной квартире один из туалетов такой.Я 182 см ростом,брат 185 ...(родители "покомпактнее" конечно :)  )И потом,всё это можно смоделировать в реальных условиях... А при таких шикарных балках,как теперь вижу на фото,вовсе можно собрать основу под стены в прежнем варианте ничего не двигая...

 
А при таких шикарных балках,как теперь вижу на фото,вовсе можно собрать основу под стены в прежнем варианте ничего не двигая...

Можно конечно, но есть два момента - сдвинутый вариант, по крайней мере на картинке, для меня, выглядит вполне приемлемо. И второе - нужно будет перемычки между балками ставить. А это создаст новую проблему. В С/У на полу будет плитка. Значит ДСП на пол уже не подходит. Планирую зашить влагостойкой фанерой (18мм), сверху половой регипс, а на него уже плитку. + ещё хотелось чтоб уровень С/У был хоть на 1 см ниже остальных помещений. Вот и получается, если смещать перегородку за балку, сложнее уровни стыковать. Хотя я возможно как-то не так себе эту схему представляю...

fomins, Вы опять оказались правы. Даже страшно становиться :) 
Сегодня смоделировал ситуацию. Мне, с моими 188 см, реально будет места маловато :(  Придется обратно "откатываться". Хотя бы до размера 135 см. Теперь правда придется с полом париться. Ну да ладно, лучше сейчас дольше провозиться, чем потом остаток дней себя корить.
Alef, извиняй что зря потревожил :pray_:

  • 2 недели спустя...

Что-то max_fox напугал тем что будет критиковать, а сам вообще с форума пропал (ни чего не случилось?). Я пока ему, и всем остальным, проявляющим интерес к этой теме, вынесу на суд план спальни. Вижу её пока так -

post-15106-1305972810_thumb.jpg

Из света планируется два бра над тумбочками и торшер в углу. Интересует ваше мнение по поводу ширины прохода между кроватью и радиатором, не мало? Сам радиатор конечно Уже, регулятор выступает на 17 см. Ну и всевозможные замечания и предложения, как всегда приветствуются.
Стена за изголовьем кровати будет зашита ГКЛ с ватой. Так что в ней можно что-то из ниш замутить. Вот только я пока не придумал для них назначение, а значит сомневаюсь в их надобности. Стена, на которой висит тв выглядит так - . Там тоже возможны варианты. Я пока только нишу под тв придумал забабахать.
Alef, на твоём последнем плане, в спальне есть ниша, я её стрелочкой отметил, ты что в ней планировал разместить?
post-15106-1305973856_thumb.png

 
Alef, на твоём последнем плане, в спальне есть ниша, я её стрелочкой отметил, ты что в ней планировал разместить?

это если тебе вдруг не нужна глубокая ниша в гардеробной,можно разделить её и сделать нишу в спальне-открытую с полками для книг и всякой всячины (или вовсе декоративную с подсветкой), закрытую с дверцей для вещей...Можно нишу не делать вообще.

Понял. А что с "проходом", хватит? Может ещё что посоветуешь?

ну так же как с туалетом- смоделируй "живьём" и смотри...Я видел варианты и пожестче по габаритам(видел...вижу каждый вечер-у меня спальня 2.60 на 3 метра... :D плюс купе в нише глубиной 60см,так вот на "чистых" 2.60 на 3 стоит кровать 160 на 205 см ,причём стоит поперёк,то есть 260 минус 205-55 см проход...и ничего :) а по бокам считай -3 метра минус метр шестьдесят,сколько остается?Правильно ,метр сорок,то есть по 70 см с каждой стороны от кровати до стены и до купе соответственно...),но всё зависит от индивидуального восприятия,так что я не знаю как здесь можно сказать "достаточно" или "мало"...

 
Из света планируется два бра над тумбочками и торшер в углу.

Бра и торшер, это местное освещение. Хотелось бы увидеть общее. Им не обязательно пользоваться постоянно, но оно должно быть.

А вот общего как раз и не будет. Если конечно не переубедите :) Мы как то были в гостинице, и номер попался как раз в мансарде. Так там освещение было сделано именно так. Нам понравилось.

 
Им не обязательно пользоваться постоянно, но оно должно быть.

Это моё мнение. Я всегда так делаю.

 
Если конечно не переубедите

Не буду.

 
Мы как то были в гостинице, и номер попался как раз в мансарде. Так там освещение было сделано именно так

Вы были типа в гостях, непродолжительное время.Предлагаю заложить провод за обшивку потолка, в месте предполагаемого светильника и пусть будет там, до поры до времени.Время покажет кто прав :)

 
 
Предлагаю заложить провод за обшивку потолка, в месте предполагаемого светильника и пусть будет там, до поры до времени.
 

А вот это не сложно. Тем-более делать короб, почти по центру, чтоб закрыть балку, всё равно придется. Вот в нём и спрячу.

Время покажет кто прав

Поживем - увидим :)

  • 4 недели спустя...
 
чем обусловлено такое,надо сказать,неожиданное решение?

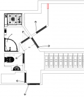
А по другому у меня не лезет :)  Я самовольно :ph34r:  чуток сдвинул гардеробную. И теперь душевая выглядит так -post-15106-1308241250_thumb.jpgpost-15106-1308241267_thumb.jpgpost-15106-1308241321_thumb.jpgpost-15106-1308241424_thumb.jpgСам видишь, больше вроде и некуда. Зато у жены гардеробная будет больше.Если по фоткам чего-нибудь не понятно, расшифрую :) З.Ы. + всё-таки ужал с/у до 125см, как и хотел раньше. В туалете, кстати, дверь тоже "перевесил" :ph34r:  Ты только не ругайся :rolleyes:  Теперь она будет открываться наружу в сторону кладовки.Мне уже просто неудобно было тебя "теребить" из-за этих моих изменений. Знаю что ты и так сейчас в запаре. Но детскую не тронул, как и обещал :)

ну что я могу сказать,"убил" ты меня наповал. Могу лишь посоветовать теперь сделать звонок-колокольчик внутри туалета и душа,как в Италии на узких улочках-предупреждать народ о намерении открыть дверь... :)  Много на гардеробной выиграл? :)

 
Много на гардеробной выиграл?

Пока не знаю, потом покажу. Насчёт колокольчиков - идея хорошая :biggrin:  А если серьёзно, там хождения особого быть не должно. Коридор стал шире, двери 60-ки. А та что из душа, за тупой угол, будет выступать всего на 5-10 см. Я на месте долго ходил-меделировал, вроде всё проходит-помещается.Да пока ещё в принципе ничего не сделано. Вот так примерно перегородка пойдёт -post-15106-1308243496_thumb.jpgpost-15106-1308243509_thumb.jpgИ прикручено всего два профиля, этот -post-15106-1308247790_thumb.jpgи от него по стене.З.Ы. Дальше двигаться буду только в субботу. Если ты видишь ещё какие-то косяки в моей переделке - не молчи. Всё ещё легко переиграть. Вот только двери внутрь вешать не буду :)

Вот опять ты замолчал, а потом ругаться будешь :) Я, кстати, делал всё максимально приближённо к твоей схеме -post-15106-1308251994_thumb.pngИ у меня дверь внутрь душевой ну никак не помещалась. Может я где в размерах напутал? Хотя я все стенки перемерял. С теми размерами, что выкладывал, сходятся...А гардеробную расширю за счёт того аппендикса (где красным дорисовал), и сдвину эту же стенку внутрь спальни. Так чтоб ширина спальни стала 2.60. 1.60 кровать и по 50 проходы. На сколько эта перегородка сдвинется от оригинала, тебе виднее. Да, ещё дверь в гардеробную сделаю по другому :)  Не пугайся только, не наружу :)  Планирую сделать сдвижную, да ещё и зеркальную. Таким образом убью двух зайцев - место за дверью можно будет практичнее использовать, ну а с зеркалом и так всё ясно. Ну вот, пока как-то так.

Для публикации сообщений создайте учётную запись или авторизуйтесь

Вы должны быть зарегистрированным пользователем, чтобы оставить комментарий

Создать учетную запись

Зарегистрируйтесь в нашем сообществе.

Зарегистрироваться

Войти

Уже есть аккаунт? Войти в систему.

Войти

Или войти с помощью одного из сервисов



  • Наши рекомендации

    • Люк для кошек своими руками
      Разумеется давно придуманы и продаются специальные лючки для кошек, которые можно врезать в дверь, но мы ведь не ищем легких путей . Да и по зоомагазинам я не хожу, а "гугление" показало, что такие люки для кошек стоят относительно не дешево. В то же время под рукой были два "копеечных" сантехнических пластиковых лючка для ГКЛ. Все что оставалось, так это обломать фиксаторы крышек, что бы они открывались в обе стороны, ровно выпилить отверстие в двери, да вклеить симметрично эти лючки.

      То, что получилось видно на фото. Разумеется это не для тех, у кого "дизайнерский ремонт", но для обыкновенной квартиры вполне подходит. Недостатков не замечено, животных и людей всё устраивает .


      Реакцию форумчан на этот люк можно узнать в этой теме https://homemasters.ru/...me/?p=330637

        • Ого
      • 6 ответов
    • Подходы к ремонту старых домов в России
      В России сотни тысяч старых домов, многие из которых являются не только свидетельством исторического наследия, но и отражением уникальной культуры и традиций страны. Эти дома, будь то деревянные избы или старинные каменные постройки, сохраняют в себе дух времени и рассказывают историю поколений.

      • 0 ответов
    • Как построить теплый дом, не тратя лишних денег
      Строительство гостевого дома решил выделить в отдельную тему, так будет меньше путаницы.


        • Спасибо
        • Нравится
      • 259 ответов
    • Кажись всё или строительный пылесос с тройной мультициклонной ступенью очистки
      Кажись всё или строительный пылесос с тройной мультициклонной ступенью очистки

        • Нравится
      • 16 ответов
    • Газовые котлы: эффективное, экономичное и экологичное решение для отопления вашего дома
      В современном мире, где комфорт и устойчивость стали ключевыми аспектами повседневной жизни, выбор правильного источника отопления дома становится особенно актуальным. Газовые котлы, сочетая в себе преимущества эффективности, экономичности и экологичности, представляют собой одно из наиболее популярных решений для обеспечения комфортной температуры в жилых и коммерческих помещениях.

      • 0 ответов
    • Дома из сруба: идеальное сочетание уюта и прочности.
      Строительство собственного дома является важной вехой в жизни любого человека, поскольку оно знаменует собой важное событие. Выбор строительных материалов имеет огромное значение для создания теплого и функционального жилища. На протяжении всей древней истории древесина была распространенным материалом для строительства домов, что отразилось на различных культурах мира.

      • 0 ответов
    • Вторая жизнь дивана: искусство ремонта мягкой мебели своими руками
      В эпоху беспрерывного потребления и стремления к новизне, ремонт старой мягкой мебели своими руками приобретает не просто практическое, но и глубоко философское значение. Это действие как знак уважения к труду мастеров, которые вложили свое мастерство в создание диванов, кресел и пуфов, и как воплощение идеи устойчивого потребления. С каждым возвращенным к жизни предметом мебели, мы не только сохраняем историю и уникальность каждого изделия, но и противостоим бездумному обновлению интерьера за счет экологии и рационального использования ресурсов.

        • Нравится
      • 0 ответов
    • Аккумуляторные пилы  SCW и  SCM  22-A
      После того как провёл тесты, приступил к самому главному. Поменять диски местами, и проверить, как инструмент на это отреагирует, ведь они внешнее и походу внутренне практически одинаковые, пила по дереву конечно более навороченее, есть настройки угла наклона и можно на шину посадить через адаптер.

      • 4 ответа
×
×
  • Создать...

Важная информация

Мы разместили cookie-файлы на ваше устройство, чтобы помочь сделать этот сайт лучше. Вы можете изменить свои настройки cookie-файлов, или продолжить без изменения настроек.