Перейти к содержанию
Форумы о ремонте и строительстве

Нужно толково распланировать мансарду.

Оценить эту тему:


Рекомендуемые сообщения

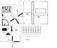
посмотри,вот так подразумевалось.Проверь эти размеры ,посмотри куда у тебя что убежало.Хотя ,если ты "вытянул" боковую стенку душевой(та самая,со "смешным" углом ) и она потянула за собой дверной проём,то понятно почему всё съёжилось и от "бани" до входа получились несерьёзные 50 см.(это совсем никуда не годится! :(  )post-11625-1308288943_thumb.pngДавай тщательнее "обжуём" всё.Завтра с утра я дома(можно здесь не мусорить,в личке "поговорим")

Да я уже сейчас вижу где ошибка. Душевую я заложил 700х900, а на твоём плане она 545. Тут всё и сдвинулось. Душкабину я сам планирую делать так что размеры могут гулять. Хотел прямоугольную, но вечером смоделирую угловой вариант.А в твоей программе дверь перевесить ведь не сильно долго :rolleyes: ?! Может ты её переместишь, тогда и посмотрим страшно она выступает за угол или нет :)

но ты всё же проверь пожалуйста все размеры,ok? "+-" конечно возможен,но совсем незначительный.А с душевой -имхо, 700-порнуха жуткая.ТОЛЬКО углом.И вовсе не обязательно она должна быть симметричной и полукругом.Короче,поговорим...(дверь перевешу конечно,но я с таким решением категорически не согласен :)  )

Перемерю, но ошибка очевидна.

 
700-порнуха жуткая

Оки, тут настаивать не буду :)

И всё же продолжать "трендеть" решил тут :) 
Сначала повосхищаюсь лазерником. Дай Бог здоровья человеку, если он конечно ещё жив, который придумал лазерный уровень! Просто супер. Вообще не знаю как бы я без него перенёс разметку с пола на потолок в этом месте -

post-15106-1308680186_thumb.jpg

post-15106-1308680208_thumb.jpg

post-15106-1308680226_thumb.jpg

Вернее зная конечно, но отвесом промудохался бы очень долго, да и все нервы бы себе истрепал :)  А тут - раз, два и готово. Короче я в восторге :rolleyes: 

Ещё, раз меня не попинали у Сано, начал собирать этот злосчастный угол -

post-15106-1308680242_thumb.jpg

post-15106-1308680274_thumb.jpg

Сегодня успел только два профиля поставить. Мелкие спать - работа встала. Потом продолжу. Пока на профилях пузо есть, но надеюсь его убрать прикрутив следующие профиля.
Продолжение следует...

Вчера вечером скрутил и поставил ещё два профиля, как планировал. Сегодня (у нас праздники) разобрал. Не понравилось. Профиля хорошие, не гнуться как мне надо.
Переделал по новому плану. Получилось нечто среднее между тем что предлагали Сано с Фоминсом, с одной стороны, и Алеф, с другой :) 
У одного из первой пары профилей отрезал половину полки -

post-15106-1308822409_thumb.jpg
post-15106-1308822575_thumb.jpg

К этой отрезанной полке прикрутил ещё один профиль, а к тем что "идут" в другую сторону - полоски гкл. И, через гкл, ещё один разрезанный вдоль профиль прикрутил в третью сторону -

post-15106-1308822705_thumb.jpg
post-15106-1308822725_thumb.jpg
post-15106-1308822769_thumb.jpg

Получилось примерно так -

post-15106-1308823136_thumb.jpg

Вышло жёстко и ровно. Меня устроило полностью.

Едем дальше. Тупой угол собрал из целого профиля и обрезков. И не потому что я такой жадный :)  , а потому что обрезки значительно легче гнуть. Причем в этот раз я сначала гнул, а потом прикручивал. Хоть прикручивать и неудобно, но, всё равно, получилось значительно быстрее.post-15106-1309023781_thumb.jpgpost-15106-1309023791_thumb.jpgpost-15106-1309023799_thumb.jpg

А со следующим тупым углом решил вообще не парится и сделал так -post-15106-1309193933_thumb.jpgВсё равно поверх ГКЛ будет или плитки, или штукатурка. Между листами тоже зазор оставлю, примерно в 1 см, и пены туда задую. Думаю что держать будет замечательно.Профиля же и сейчас, между собой, "связал" обрезками - post-15106-1309193944_thumb.jpg

Вот это другое дело, похоже на жизненную правду. Выходит уже надоело заниматься изысками в углостроении :biggrin:

Так я пока ещё "ищу себя" :)  Да и таких сложных углов, с которого всё началось, возможно больше и не будет (ттт).

  • 3 недели спустя...
  • 5 месяцев спустя...
Предлагаю заложить провод за обшивку потолка, в месте предполагаемого светильника и пусть будет там, до поры до времени.
Время покажет кто прав

Идею с торшером похоронили, так что, fomins, будет по Вашему :) 
Но есть и вопросы. Хочу закрыть эту балку и тут же сделать светильник. Так сказать два в одном.

post-15106-1324839911_thumb.jpg

post-15106-1324839928_thumb.jpg

post-15106-1324839941_thumb.jpg

post-15106-1324839954_thumb.jpg

post-15106-1324839968_thumb.jpg

Проблемы в том что оконный откос прям тут же и от чернового пола до балки всего 203 см.
Придумал дугообразно оргстекло выгнуть и им эту балку закрыть, но не понятно как его к потолку закрепить. Да ещё чтоб и съёмное было, дабы к лампам можно было добраться. Может у кого идеи есть как это место достойно обыграть?
З.Ы. Не обязательно с гнутым оргстеклом, но очень желательно чтоб получилось именно 2 в 1.

Я думаю тут можно светящийся карниз (карман) применить. Может конечно придётся уголок у балки стесать, чтобы в верхнюю плоскость откоса попасть.Типа так:

post-40814-1324910719_thumb.jpg

Хотелось бы чтоб свет сразу вниз падал. А то, при таком варианте, боюсь освещать плохо будет. Балка не по центру комнаты. Я на плане балку дорисовал (окно не в масштабе, так, для ориентира), может поможет -post-15106-1324921762_thumb.png

Я думаю, если сделать светильник во всю длину балки, то он смотреться не будет.А что это за комната, какой функционал у неё?Детская или спальня?Продолжаю гнуть своюлиниюМожно чтобы и вниз светило.

post-40814-1324926946_thumb.jpg

Это спальня. Комнатка совсем малюсенькая. Около 9м².Значит Вы всё же лоббируете вариант со ступенькой :)  Ладно, остановимся пока на нём. Только без полки. Посмотрю габариты маленьких светильников дневного света, чтоб прикинуть насколько этот короб опустится.

  • 1 месяц спустя...

Хочу про доску для пола посоветоваться. Рассматриваю три варианта:1. Сосновая доска 35 х 92 мм длиной 3м. (7 наших денег за квадрат)2. Берёзовая доска 20 х 120 мм длиной 3м. (8,5)3. Берёзовая доска 20 х 120 мм длиной 0,3 – 0,7 м (5)Помещение как раз 2.9мОчень интересно послушать ваше мнение и ваши + - у вариантов. Доску планирую покрывать маслом.

Доска с пазами,шпунтами будет(короткая)?,снизу пропилы по всей длине есть? берёзу при такой ширине поведёт,на длинных стопудово будут сучки,на ней они видны сильно,особенно тёмные :) Сосна самый стабильный вариант,но мягче,или берёзовые коротыши,но их тоже будет вести.Если масло будет светлым древесина даст желтизну.

Сосновую вчера смотрел. Сучков и на ней предостаточно. Плюс хранят, хоть и под крышей, но всё равно считай на улице. Сама доска довольно тяжёлая, отсюда я сделал вывод что недостаточно сухая :)  Сосновая мне больше по толщине подходит. Если её возьму, то смогу небольшой перепад с полом с/у сделать. Но это не самый важный критерий отбора.Вот сосновая -post-15106-1328180713_thumb.jpgА вот тут картинка "обрезков" -

Живьём её пока не видел. В понедельник тока можно будет поехать. Вот и интересуюсь, есть ли вообще смысл ехать и смотреть.С маслом я потом к тебе ещё отдельно пристану :)

Ну с сосной стало понятно,это пипец, :)  берёзу как я понял сушат,но сучочки чёрные как угли.Тонировать её только в тёмный цвет,но вот вопрос,впитается ли в неё так масло ,чтобы не сильно бросались в глаза сучочки.Несмотря на то что берёзу сушат она всё равно будет сильно играть,и я бы побоялся её клеить к основанию.Хотя знаешь,если будешь брать маленькие куски,не так заметно,мой последний дуб рустиковый тоже сыграл будь здоров :)

Для публикации сообщений создайте учётную запись или авторизуйтесь

Вы должны быть зарегистрированным пользователем, чтобы оставить комментарий

Создать учетную запись

Зарегистрируйтесь в нашем сообществе.

Зарегистрироваться

Войти

Уже есть аккаунт? Войти в систему.

Войти

Или войти с помощью одного из сервисов



  • Наши рекомендации

    • Подходы к ремонту старых домов в России
      В России сотни тысяч старых домов, многие из которых являются не только свидетельством исторического наследия, но и отражением уникальной культуры и традиций страны. Эти дома, будь то деревянные избы или старинные каменные постройки, сохраняют в себе дух времени и рассказывают историю поколений.

      • 0 ответов
    • Вторая жизнь дивана: искусство ремонта мягкой мебели своими руками
      В эпоху беспрерывного потребления и стремления к новизне, ремонт старой мягкой мебели своими руками приобретает не просто практическое, но и глубоко философское значение. Это действие как знак уважения к труду мастеров, которые вложили свое мастерство в создание диванов, кресел и пуфов, и как воплощение идеи устойчивого потребления. С каждым возвращенным к жизни предметом мебели, мы не только сохраняем историю и уникальность каждого изделия, но и противостоим бездумному обновлению интерьера за счет экологии и рационального использования ресурсов.

        • Нравится
      • 0 ответов
    • Дома из сруба: идеальное сочетание уюта и прочности.
      Строительство собственного дома является важной вехой в жизни любого человека, поскольку оно знаменует собой важное событие. Выбор строительных материалов имеет огромное значение для создания теплого и функционального жилища. На протяжении всей древней истории древесина была распространенным материалом для строительства домов, что отразилось на различных культурах мира.

      • 0 ответов
    • Кажись всё или строительный пылесос с тройной мультициклонной ступенью очистки
      Кажись всё или строительный пылесос с тройной мультициклонной ступенью очистки

        • Нравится
      • 16 ответов
    • Аккумуляторные пилы  SCW и  SCM  22-A
      После того как провёл тесты, приступил к самому главному. Поменять диски местами, и проверить, как инструмент на это отреагирует, ведь они внешнее и походу внутренне практически одинаковые, пила по дереву конечно более навороченее, есть настройки угла наклона и можно на шину посадить через адаптер.

      • 4 ответа
    • Газовые котлы: эффективное, экономичное и экологичное решение для отопления вашего дома
      В современном мире, где комфорт и устойчивость стали ключевыми аспектами повседневной жизни, выбор правильного источника отопления дома становится особенно актуальным. Газовые котлы, сочетая в себе преимущества эффективности, экономичности и экологичности, представляют собой одно из наиболее популярных решений для обеспечения комфортной температуры в жилых и коммерческих помещениях.

      • 0 ответов
    • Люк для кошек своими руками
      Разумеется давно придуманы и продаются специальные лючки для кошек, которые можно врезать в дверь, но мы ведь не ищем легких путей . Да и по зоомагазинам я не хожу, а "гугление" показало, что такие люки для кошек стоят относительно не дешево. В то же время под рукой были два "копеечных" сантехнических пластиковых лючка для ГКЛ. Все что оставалось, так это обломать фиксаторы крышек, что бы они открывались в обе стороны, ровно выпилить отверстие в двери, да вклеить симметрично эти лючки.

      То, что получилось видно на фото. Разумеется это не для тех, у кого "дизайнерский ремонт", но для обыкновенной квартиры вполне подходит. Недостатков не замечено, животных и людей всё устраивает .


      Реакцию форумчан на этот люк можно узнать в этой теме https://homemasters.ru/...me/?p=330637

        • Ого
      • 6 ответов
    • Как построить теплый дом, не тратя лишних денег
      Строительство гостевого дома решил выделить в отдельную тему, так будет меньше путаницы.


        • Спасибо
        • Нравится
      • 257 ответов
×
×
  • Создать...

Важная информация

Мы разместили cookie-файлы на ваше устройство, чтобы помочь сделать этот сайт лучше. Вы можете изменить свои настройки cookie-файлов, или продолжить без изменения настроек.