Перейти к содержанию
Форумы о ремонте и строительстве

перепланировка 2-х комнатной хрущевки

Оценить эту тему:


Рекомендуемые сообщения

Опубликовано

всем привет! уважаемые, кто уже сделал подобное:2-х комнатная односторонняя квартира со смежными комнатами, есть желание разделить комнаты, как показано на эскизе..ваши отзывы.. боюсь сильно уменьшится зал, да и длинный корридор как то смущает. в конце корридора шкаф для верхней одежды.просьба поделиться опытом перепланировки 2х комнатной хрущевки.спасибо.

post-63158-1301877809_thumb.jpg

у меня такая же но однокомнатная. мечтаю соседнюю смежную заполучить во владения :rolleyes: состав семьи и стиль жизни конечно у всех разные.. я бы сделал вот так.собственно у меня так и сделано, только на месте входа во вторую комнату (столь желанную) стоит шкаф :)

post-37500-1301895760_thumb.jpg

да, вариант хорош.. но тогда смысл раздельных комнат утерян, мне нужно разделить комнаты, причина-ребенок 6 лет, и возможно пополнение через годик.. два.. потому хочется разделить территории)))

это и понятно, что хочется сделать две непроходных комнаты.. но создать простор при таком варианте ИМХО нереально. Моя квартирка приобразилась в таком исполнении, у друзей глаза на лоб лезут когда заходят спрашивают та ли это квартира :D можно как-то так, но где проводить время всей семьей? смотреть кино или посидеть компанией друзей? Я считаю, чтобы иметь две отдельные комнаты нужно минимум трушку квартиру, либо большую кухню, а не хрущевскую..

post-37500-1301979971_thumb.jpg

vasilich.l согласен полностью! но вкусы у всех разныетопикстартеру нужно рисовать карандашем все варианты, потом прорисовывать в трехмерке наилучшие и выбирать оптимальный для него расклад

А еще топикстартеру неплохо бы указать, какие стены капитальные, а какие - перегородки, а то напланировать можно чего угодно...

Может так прокатит?И пусть зал станет спальней, а спальня, залом

post-40814-1301998329_thumb.jpg

Такая же история хрущевка 2ка 41.7кв.м сделал длинный коридор ширина 110см в конце вход в спальню и небольшая гардеробная,посмотрел ваши варианты и задумался ,еще не поздно переделать

Посмотрите у меня в блоге, как мы делаем перепланировку... Тоже учимся потихоньку, раньше никогда такими делами не занимались. Может, что-нибудь интересное для себя увидите. Ссылка на блог ниже.

(изменено)

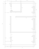
Вот мои варианты планировок: ( в спальню можно подвести вентиляцию).Вот ещё вариант, но только план.

post-63380-1302081973_thumb.jpg

post-63380-1302082092_thumb.jpg

post-63380-1302082228_thumb.jpg

post-63380-1302082626_thumb.jpg

post-63380-1302082632_thumb.jpg

post-63380-1302082638_thumb.jpg

post-63380-1302083087_thumb.jpg

Изменено пользователем DimaSV

Для публикации сообщений создайте учётную запись или авторизуйтесь

Вы должны быть зарегистрированным пользователем, чтобы оставить комментарий

Создать учетную запись

Зарегистрируйтесь в нашем сообществе.

Зарегистрироваться

Войти

Уже есть аккаунт? Войти в систему.

Войти

Или войти с помощью одного из сервисов



  • Наши рекомендации

    • Подходы к ремонту старых домов в России
      В России сотни тысяч старых домов, многие из которых являются не только свидетельством исторического наследия, но и отражением уникальной культуры и традиций страны. Эти дома, будь то деревянные избы или старинные каменные постройки, сохраняют в себе дух времени и рассказывают историю поколений.

      • 0 ответов
    • Газовые котлы: эффективное, экономичное и экологичное решение для отопления вашего дома
      В современном мире, где комфорт и устойчивость стали ключевыми аспектами повседневной жизни, выбор правильного источника отопления дома становится особенно актуальным. Газовые котлы, сочетая в себе преимущества эффективности, экономичности и экологичности, представляют собой одно из наиболее популярных решений для обеспечения комфортной температуры в жилых и коммерческих помещениях.

      • 0 ответов
    • Люк для кошек своими руками
      Разумеется давно придуманы и продаются специальные лючки для кошек, которые можно врезать в дверь, но мы ведь не ищем легких путей . Да и по зоомагазинам я не хожу, а "гугление" показало, что такие люки для кошек стоят относительно не дешево. В то же время под рукой были два "копеечных" сантехнических пластиковых лючка для ГКЛ. Все что оставалось, так это обломать фиксаторы крышек, что бы они открывались в обе стороны, ровно выпилить отверстие в двери, да вклеить симметрично эти лючки.

      То, что получилось видно на фото. Разумеется это не для тех, у кого "дизайнерский ремонт", но для обыкновенной квартиры вполне подходит. Недостатков не замечено, животных и людей всё устраивает .


      Реакцию форумчан на этот люк можно узнать в этой теме https://homemasters.ru/...me/?p=330637

        • Ого
      • 6 ответов
    • Дома из сруба: идеальное сочетание уюта и прочности.
      Строительство собственного дома является важной вехой в жизни любого человека, поскольку оно знаменует собой важное событие. Выбор строительных материалов имеет огромное значение для создания теплого и функционального жилища. На протяжении всей древней истории древесина была распространенным материалом для строительства домов, что отразилось на различных культурах мира.

      • 0 ответов
    • Кажись всё или строительный пылесос с тройной мультициклонной ступенью очистки
      Кажись всё или строительный пылесос с тройной мультициклонной ступенью очистки

        • Нравится
      • 16 ответов
    • Как построить теплый дом, не тратя лишних денег
      Строительство гостевого дома решил выделить в отдельную тему, так будет меньше путаницы.


        • Спасибо
        • Нравится
      • 256 ответов
    • Аккумуляторные пилы  SCW и  SCM  22-A
      После того как провёл тесты, приступил к самому главному. Поменять диски местами, и проверить, как инструмент на это отреагирует, ведь они внешнее и походу внутренне практически одинаковые, пила по дереву конечно более навороченее, есть настройки угла наклона и можно на шину посадить через адаптер.

      • 4 ответа
    • Вторая жизнь дивана: искусство ремонта мягкой мебели своими руками
      В эпоху беспрерывного потребления и стремления к новизне, ремонт старой мягкой мебели своими руками приобретает не просто практическое, но и глубоко философское значение. Это действие как знак уважения к труду мастеров, которые вложили свое мастерство в создание диванов, кресел и пуфов, и как воплощение идеи устойчивого потребления. С каждым возвращенным к жизни предметом мебели, мы не только сохраняем историю и уникальность каждого изделия, но и противостоим бездумному обновлению интерьера за счет экологии и рационального использования ресурсов.

        • Нравится
      • 0 ответов
×
×
  • Создать...

Важная информация

Мы разместили cookie-файлы на ваше устройство, чтобы помочь сделать этот сайт лучше. Вы можете изменить свои настройки cookie-файлов, или продолжить без изменения настроек.